賃貸マンション
デイグラン心斎橋イーストの賃貸物件情報(ワンルーム/5階)
| 家賃 | 管理費等 | 敷金 | 礼金 | 間取り | 専有面積 |
|---|---|---|---|---|---|
| 11万円 | 1.1万円 | なし | 11万円 | ワンルーム | 53m2 |
入居決定でお祝い金最大100,000円
- 保証金
- -
- 償却・敷引
- -
- 築年数
- 築23年
- 所在階
- 5階
- 向き
- 南
- 交通
- 地下鉄堺筋線 日本橋駅(大阪) 徒歩3分
地下鉄谷町線 谷町九丁目駅 徒歩11分
地下鉄御堂筋線 なんば駅(大阪メトロ) 徒歩13分
- 所在地
- 大阪府大阪市中央区道頓堀
デイグラン心斎橋イースト
[地図を表示]
Point
他社様のインターネット掲載物件はどの物件でもまとめてご案内可能です。もちろん割引サービス適用可能です。【当日ご内覧・オンライン案内・クレジット決済】などどんなことでもご相談下さい。
提供:(株)エーポジション中崎町店(SUUMO経由)

詳細情報 デイグラン心斎橋イースト
物件紹介
デイグラン心斎橋イーストは地下鉄堺筋線日本橋駅から徒歩3分にあり、駅近で通勤通学に便利なマンションです。
このお部屋は2階以上に位置しているので、通行人や周囲の住人からの視線が気になりにくく、防犯面でも安心。建物のエントランスはオートロックがついており、インターホンにはTVモニタもついているため、相手の顔を確認してから来客対応することができます。
人気の南向き・フローリングのお部屋。角部屋でもあるため、周囲の居住者の生活音も気になりにくい場所です。キッチンはシステムキッチン仕様になっていますので、お料理好きの方にもぴったり。バス・トイレは別なので、のんびりお風呂タイムも楽しめるでしょう。また、雨の日でも浴室乾燥機を使えば、お洗濯も問題ありません。
通信設備面ではBSアンテナ・CSアンテナがあり、CATVにも対応しているので、おうち時間も充実するでしょう(別途工事、契約料が必要な場合あり)。
建物にはエレベーターがついているので、重い荷物があっても安心。
このお部屋は2階以上に位置しているので、通行人や周囲の住人からの視線が気になりにくく、防犯面でも安心。建物のエントランスはオートロックがついており、インターホンにはTVモニタもついているため、相手の顔を確認してから来客対応することができます。
人気の南向き・フローリングのお部屋。角部屋でもあるため、周囲の居住者の生活音も気になりにくい場所です。キッチンはシステムキッチン仕様になっていますので、お料理好きの方にもぴったり。バス・トイレは別なので、のんびりお風呂タイムも楽しめるでしょう。また、雨の日でも浴室乾燥機を使えば、お洗濯も問題ありません。
通信設備面ではBSアンテナ・CSアンテナがあり、CATVにも対応しているので、おうち時間も充実するでしょう(別途工事、契約料が必要な場合あり)。
建物にはエレベーターがついているので、重い荷物があっても安心。
お金・契約の情報
※「-」と表示されているものは、実際は料金が発生するものもございます。詳細はお問い合わせください。
| 家賃 | 11万円 | 管理費・共益費 | 1.1万円 |
|---|---|---|---|
| 敷金 | なし | 礼金 | 11万円 |
| 入居決定でお祝い金最大100,000円 | |||
| 保証金 | - | 償却・敷引 | - |
| 住宅保険料 | - | 更新料 | - |
| 保証会社利用 | 必須 | 保証会社名 | - |
| 保証会社費用 | - | 保証会社備考 | 保証会社利用必 初回保証料:月額総賃料の50%(保証人有)100%(保証人無 要相談) 1年更新:12 000円 その他のプラン有 |
| 契約形態 | 定期借家 | 契約期間 | 2年 |
| 入居・引渡期間 | 即時 | 現況 | - |
| 契約備考 | 巡回管理/大阪府内全域どこでもお探し可能です。経験豊富なスタッフがご対応させて頂きますので、ご納得行くまでトコトンお探しさせていただきます。お部屋探しについて何でもご相談下さい。尚、引越業者も多数提携しております。お部屋探しはエーポジションへお任せ下さい。 合計9.95万円(内訳:DPCP入会金1.65万円抗菌コート代1.65万円鍵交換代1.65万円ペット飼育時礼金UP5万円) 家賃引落手数料 月額550円 町会費 月額200円 DPCP月会費 月額1100円 ペット飼育時家賃UP 月額2000円 ワンルーム 定期借家2年 損保【2万円2年】 バストイレ別、バルコニー、エアコン、クロゼット、フローリング、シャワー付洗面台、TVインターホン、浴室乾燥機、オートロック、室内洗濯置、シューズボックス、システムキッチン、南向き、角住戸、温水洗浄便座、脱衣所、エレベーター、洗面所独立、洗面化粧台、2口コンロ、駐輪場、CATV、外壁タイル張り、即入居可、2面採光、BS・CS、敷金不要、対面式キッチン、防犯カメラ、IHクッキングヒーター、全居室洋室、全居室フローリング、2沿線利用可、LDK15畳以上、CS、キッチンに窓、全室南向き、エアコン全室、保証金不要、浴室に窓、24時間換気システム、電子ロック、全室2面採光、2駅利用可、3駅以上利用可、3沿線以上利用可、駅徒歩5分以内、駅徒歩10分以内、24時間ゴミ出し可、敷地内ごみ置き場、LDK12畳以上、LDK18畳以上、全居室6畳以上、全居室8畳以上、都市ガス、三面鏡付洗面化粧台、玄関収納、BS、高齢者歓迎、初期費用カード決済可 | ||
部屋の情報
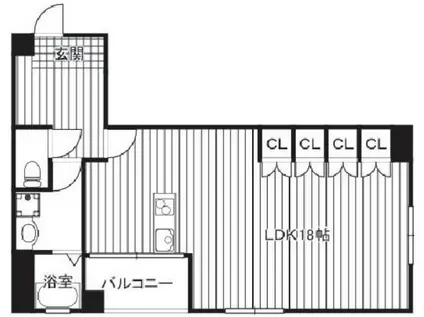
| 間取り | ワンルーム | 専有面積 | 53m2 |
|---|---|---|---|
| 所在階 / 向き | 5階 / 南 | バルコニー面積 | 5m2 |
| 水道 / ガス | - | ||
| 設備 | バス・トイレ別、2階以上、オートロック、テレビドアホン、浴室乾燥機、システムキッチン、エアコン、エレベーター、温水洗浄便座、南向き、角部屋、バルコニー、フローリング、洗髪洗面化粧台、2口コンロ、コンロ:IH、CATV、CSアンテナ、BSアンテナ、洗濯機:室内 | ||
| 当社物件ID | 43829390 | ||
建物の情報
| 建物名 | デイグラン心斎橋イースト | ||
|---|---|---|---|
| 所在地 | 大阪府大阪市中央区道頓堀 | ||
| 交通 | 地下鉄堺筋線 日本橋駅(大阪) 徒歩3分 地下鉄谷町線 谷町九丁目駅 徒歩11分 地下鉄御堂筋線 なんば駅(大阪メトロ) 徒歩13分 | ||
| 階数 | 7階建 | 総戸数 | - |
| 築年月 | 2003年02月 / 築23年 | エレベーター | あり |
| 駐車場 | 近隣 150m38500円 | バイク置き場 | - |
| 駐輪場 | あり | 管理人/管理会社 | - |
| 周辺環境 | その他 なんばマルイ(その他)まで973m その他 スーパー玉出 日本橋店(スーパー)まで385m その他 心斎橋オーパ(ショッピングセンター)まで1334m その他 ドン・キホーテ道頓堀北館(その他)まで575m その他 ローソン 高津三丁目店(コンビニ)まで405m その他 スギドラッグ 瓦屋町店(ドラッグストア)まで668m | ||
| 建物種別 | マンション | 建物構造 | SRC(鉄骨鉄筋コンクリート) |
この部屋の取扱い不動産会社
| 会社名 | (株)エーポジション中崎町店(SUUMO経由) | ||
|---|---|---|---|
| 所在地 | 大阪府大阪市北区中崎1-5-21 | 交通 | - |
| 営業時間 | 10:00~19:00 | 定休日 | 年末年始 |
| 免許番号 | 大阪府知事58754 | 取引態様 | 仲介 |
| 不動産会社管理番号 | 100484105093 | 当社管理番号 | 89 |
| 所属団体 | (公社)全日本不動産協会大阪府本部会員 | ||
| 公正取引協議会 | (公社)近畿地区不動産公正取引協議会加盟 | ||
| 取扱い物件情報 | 物件詳細へ | ||
※各種情報と現状に差異がある場合は、現状優先となります。問い合わせをすることで、より詳しい条件、情報を確認する事ができます。
提供:(株)エーポジション中崎町店(SUUMO経由)
この物件が気になったら掲載期限まであと11日
デイグラン心斎橋イーストに条件(家賃・エリア)が近い物件一覧
| 写真 | 家賃 管理費等 | 敷金 礼金 | 間取り 専有面積 | 築年数 | 最寄り駅 所在地 | キープ | 詳細 |
|---|---|---|---|---|---|---|---|
マンション CONFORT SEKI(2DK/4階) | |||||||
![]() | 7.1万円 6,000円 | なし 7.1万円 | 2DK 45m2 | 築38年 | 京阪本線 古川橋駅 徒歩3分 京阪本線 門真市駅 徒歩14分 大阪モノレール本線 門真市駅 徒歩14分 大阪府門真市末広町 | 詳細を見る | |
アパート レオパレスWAM(1K/2階) | |||||||
| 8.5万円 5,000円 | なし 8.5万円 | 1K 20.28m2 | 築22年 | 東海道本線 千里丘駅 徒歩5分 阪急電鉄京都線 摂津市駅 徒歩10分 大阪モノレール本線 沢良宜駅 徒歩16分 大阪府摂津市千里丘東1丁目3-23 | 詳細を見る | ||
マンション ARCA正雀(1K/3階) | |||||||
| 6.95万円 6,000円 | なし 6.95万円 | 1K 23.67m2 | 築1年 | 阪急電鉄京都線 正雀駅 徒歩4分 東海道本線 岸辺駅 徒歩12分 大阪モノレール本線 摂津駅 徒歩22分 大阪府摂津市正雀本町1丁目20-9 | 詳細を見る | ||
マンション 大阪市御堂筋線 江坂駅 徒歩7分 築21年(1K/7階) | |||||||
![]() | 7万円 8,000円 | 7万円 14万円 | 1K 28.8m2 | 築21年 | 大阪市御堂筋線 江坂駅 徒歩7分 北大阪急行南北線 江坂駅 徒歩7分 阪急電鉄千里線 豊津駅(大阪) 徒歩13分 大阪府吹田市垂水町3丁目 | 詳細を見る | |
マンション AZURE ESAKA(1K/6階) | |||||||
| 6.7万円 8,000円 | 6.7万円 6.7万円 | 1K 28.92m2 | 築24年 | 北大阪急行南北線 江坂駅 徒歩6分 阪急電鉄千里線 豊津駅(大阪) 徒歩13分 阪急電鉄千里線 関大前駅 徒歩19分 大阪府吹田市江坂町1丁目16-2 | 詳細を見る | ||
アパート フラワーガーデンB棟(3DK/2階) | |||||||
| 7万円 3,000円 | なし 7万円 | 3DK 52.84m2 | 築31年 | 東海道本線 岸辺駅 徒歩14分 阪急電鉄京都線 正雀駅 徒歩22分 大阪モノレール本線 摂津駅 徒歩41分 大阪府吹田市岸部北5丁目26-10 | 詳細を見る | ||
マンション アルテーヌ浜寺元町(2LDK/3階) | |||||||
![]() | 14.2万円 1.2万円 | 2万円 29万円 | 2LDK 68m2 | 新築 | 南海電鉄南海本線 浜寺公園駅 徒歩12分 南海電鉄南海本線 諏訪ノ森駅 徒歩15分 南海電鉄南海本線 羽衣駅 徒歩19分 大阪府堺市西区浜寺元町3丁 | 詳細を見る | |
マンション プレサンス江坂クォーレ(1K/8階) | |||||||
| 7.7万円 1.1万円 | なし 7.7万円 | 1K 22.64m2 | 築5年 | 大阪市御堂筋線 江坂駅 徒歩13分 おおさか東線 南吹田駅 徒歩14分 大阪市御堂筋線 東三国駅 徒歩24分 大阪府吹田市南吹田5丁目15-30 | 詳細を見る | ||



