賃貸マンション
駒沢ガーデンハウスの賃貸物件情報(3LDK/3階)
| 家賃 | 管理費等 | 敷金 | 礼金 | 間取り | 専有面積 |
|---|---|---|---|---|---|
| 65万円 | なし | 195万円 | なし | 3LDK | 147.02m2 |
入居決定でお祝い金最大100,000円
Point
駒沢公園至近、緑溢れる住環境にゆったりと佇む大型の高級マンション。フィットネスルームやゲストルーム、ピアノルーム、フロントサービス等、充実した共用設備。
提供:プラザホームズ(株)(SUUMO経由)

詳細情報 駒沢ガーデンハウス
物件紹介
駒沢ガーデンハウスは東急田園都市線駒沢大学駅から徒歩4分にあり、駅近で通勤通学に便利なマンションです。
このお部屋は2階以上に位置しているので、通行人や周囲の住人からの視線が気になりにくく、防犯面でも安心。インターホンにはTVモニタもついているため、相手の顔を確認してから来客対応することができます。
室内には人気のウォークインクローゼットがありますので、たくさんの荷物も効率的に収納ができます。キッチンはシステムキッチン仕様になっていますので、お料理好きの方にもぴったり。バス・トイレは別なので、のんびりお風呂タイムも楽しめるでしょう。また、雨の日でも浴室乾燥機を使えば、お洗濯も問題ありません。
通信設備面では、インターネット接続が可能です。また、BSアンテナがありCATVにも対応しているので、おうち時間も充実するでしょう(別途工事、契約料が必要な場合あり)。
建物にはエレベーターがついているので、重い荷物があっても安心。
このお部屋は2階以上に位置しているので、通行人や周囲の住人からの視線が気になりにくく、防犯面でも安心。インターホンにはTVモニタもついているため、相手の顔を確認してから来客対応することができます。
室内には人気のウォークインクローゼットがありますので、たくさんの荷物も効率的に収納ができます。キッチンはシステムキッチン仕様になっていますので、お料理好きの方にもぴったり。バス・トイレは別なので、のんびりお風呂タイムも楽しめるでしょう。また、雨の日でも浴室乾燥機を使えば、お洗濯も問題ありません。
通信設備面では、インターネット接続が可能です。また、BSアンテナがありCATVにも対応しているので、おうち時間も充実するでしょう(別途工事、契約料が必要な場合あり)。
建物にはエレベーターがついているので、重い荷物があっても安心。
お金・契約の情報
※「-」と表示されているものは、実際は料金が発生するものもございます。詳細はお問い合わせください。
| 家賃 | 65万円 | 管理費・共益費 | なし |
|---|---|---|---|
| 敷金 | 195万円 | 礼金 | なし |
| 入居決定でお祝い金最大100,000円 | |||
| 保証金 | - | 償却・敷引 | - |
| 住宅保険料 | - | 更新料 | - |
| 契約形態 | 定期借家 | 契約期間 | 3年 |
| 入居・引渡期間 | 即時 | 現況 | - |
| 契約備考 | 3LDK 定期借家3年 損保【要】 バストイレ別、エアコン、TVインターホン、浴室乾燥機、システムキッチン、エレベーター、CATV、即入居可、礼金不要、閑静な住宅地、24時間有人管理、全居室洋室、ウォークインクロゼット、ガスレンジ付、ネット専用回線、洗濯機、食器洗乾燥機、乾燥機、保証金不要、オーブンレンジ、トイレ2ヶ所、フロントサービス、アスレチックR、駅徒歩5分以内、ゲストルーム、専有面積30坪以上、全居室6畳以上、BS、IT重説対応物件 | ||
部屋の情報
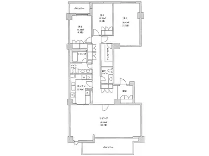
| 間取り | 3LDK | 専有面積 | 147.02m2 |
|---|---|---|---|
| 所在階 / 向き | 3階 / - | バルコニー面積 | - |
| 水道 / ガス | - | ||
| 設備 | バス・トイレ別、2階以上、テレビドアホン、浴室乾燥機、ウォークインクローゼット、インターネット対応、システムキッチン、エアコン、エレベーター、コンロ:ガス、CATV、BSアンテナ | ||
| 当社物件ID | 160159811 | ||
建物の情報
| 建物名 | 駒沢ガーデンハウス | ||
|---|---|---|---|
| 所在地 | 東京都世田谷区駒沢 | ||
| 交通 | 東急田園都市線 駒沢大学駅 徒歩4分 | ||
| 階数 | 8階建 | 総戸数 | - |
| 築年月 | 1989年12月 / 築37年 | エレベーター | あり |
| 駐車場 | 空有 44000円 | バイク置き場 | - |
| 駐輪場 | - | 管理人/管理会社 | - |
| 周辺環境 | その他 駒沢オリンピック公園(公園)まで510m その他 東京医療センター(病院)まで1120m その他 マルエツ(スーパー)まで383m その他 セブンイレブン(コンビニ)まで367m その他 駒沢小学校(小学校)まで764m その他 駒沢中学校(中学校)まで1003m | ||
| 建物種別 | マンション | 建物構造 | RC(鉄筋コンクリート) |
この部屋の取扱い不動産会社
| 会社名 | プラザホームズ(株)(SUUMO経由) | ||
|---|---|---|---|
| 所在地 | 東京都港区麻布台1-9-12 | 交通 | - |
| 営業時間 | 月~土 9:00 ~ 17:40 | 定休日 | 日・祝 |
| 免許番号 | 東京都知事86890 | 取引態様 | 仲介 |
| 不動産会社管理番号 | 100481273213 | 当社管理番号 | 89 |
| 所属団体 | (公社)東京都宅地建物取引業協会会員 | ||
| 公正取引協議会 | (公社)首都圏不動産公正取引協議会加盟 | ||
| 取扱い物件情報 | 物件詳細へ | ||
※各種情報と現状に差異がある場合は、現状優先となります。問い合わせをすることで、より詳しい条件、情報を確認する事ができます。
提供:プラザホームズ(株)(SUUMO経由)
この物件が気になったら掲載期限まであと10日
駒沢ガーデンハウスに条件(家賃・エリア)が近い物件一覧
| 写真 | 家賃 管理費等 | 敷金 礼金 | 間取り 専有面積 | 築年数 | 最寄り駅 所在地 | キープ | 詳細 |
|---|---|---|---|---|---|---|---|
マンション ザ・パークハビオ代々木(3LDK/8階) | |||||||
![]() | 61万円 3万円 | 61万円 61万円 | 3LDK 75.14m2 | 築1年 | 小田急線 参宮橋駅 徒歩6分 小田急線 南新宿駅 徒歩6分 JR山手線 代々木駅 徒歩8分 東京都渋谷区代々木 | 詳細を見る | |
マンション プラチナテラス・ロイロ(3LDK/3階) | |||||||
![]() | 48万円 3.5万円 | 96万円 96万円 | 3LDK 106.52m2 | 築4年 | 西武新宿線 下井草駅 徒歩9分 西武新宿線 鷺ノ宮駅 徒歩13分 西武新宿線 都立家政駅 徒歩20分 東京都杉並区下井草 | 詳細を見る | |
マンション 恵比寿ガーデンテラス弐番館(2LDK/8階) | |||||||
![]() | 98.5万円 なし | 197万円 197万円 | 2LDK 108.49m2 | 築32年 | JR山手線 恵比寿駅 徒歩10分 東京メトロ南北線 目黒駅 徒歩15分 都営三田線 白金台駅 徒歩21分 東京都渋谷区恵比寿 | 詳細を見る | |
マンション F K DAIKANYAMA(1LDK/1階) | |||||||
![]() | 42万円 なし | 42万円 42万円 | 1LDK 67.25m2 | 築5年 | 東急東横線 代官山駅 徒歩4分 東京都渋谷区猿楽町 | 詳細を見る | |
マンション ザ・パークハウス恵比寿(2LDK/7階) | |||||||
![]() | 50万円 なし | 50万円 50万円 | 2LDK 68.25m2 | 築7年 | JR山手線 恵比寿駅 徒歩4分 東京メトロ日比谷線 広尾駅 徒歩13分 東急東横線 代官山駅 徒歩17分 東京都渋谷区恵比寿 | 詳細を見る | |
アパート TOKYOβ三軒茶屋1 1棟貸し (ワンルーム/1階) | |||||||
![]() | 76.2万円 18万円 | なし なし | ワンルーム 132.08m2 | 築9年 | 東急田園都市線 三軒茶屋駅 徒歩11分 東急世田谷線 西太子堂駅 徒歩17分 東急東横線 祐天寺駅 徒歩20分 東京都世田谷区下馬 | 詳細を見る | |
マンション 松涛アパートメント(1LDK/3階) | |||||||
![]() | 41.5万円 3万円 | 41.5万円 83万円 | 1LDK 63.44m2 | 築23年 | 京王井の頭線 神泉駅 徒歩4分 JR山手線 渋谷駅 徒歩9分 東急田園都市線 池尻大橋駅 徒歩18分 東京都渋谷区松濤 | 詳細を見る | |
マンション フレンシア外苑西 Ⅰ(2LDK/6階) | |||||||
![]() | 43.6万円 なし | 43.6万円 なし | 2LDK 57.97m2 | 築18年 | 東京都大江戸線 国立競技場駅 徒歩4分 東京都渋谷区千駄ヶ谷1丁目 | 詳細を見る | |









/105x80-f1-q70-wp1)