賃貸マンション
駒沢ガーデンハウスの賃貸物件情報(3LDK/3階)
| 家賃 | 管理費等 | 敷金 | 礼金 | 間取り | 専有面積 |
|---|---|---|---|---|---|
| 65万円 | なし | 195万円 | なし | 3LDK | 154.84m2 |
入居決定でお祝い金最大100,000円
Point
駒沢公園至近、緑溢れる住環境にゆったりと佇む大型の高級マンション。フィットネスルームやゲストルーム、ピアノルーム、フロントサービス等、充実した共用設備。
提供:プラザホームズ(株)(SUUMO経由)

詳細情報 駒沢ガーデンハウス
物件紹介
駒沢ガーデンハウスは東急田園都市線駒沢大学駅から徒歩4分にあり、駅近で通勤通学に便利なマンションです。
このお部屋は2階以上に位置しているので、通行人や周囲の住人からの視線が気になりにくく、防犯面でも安心。インターホンにはTVモニタもついているため、相手の顔を確認してから来客対応することができます。
人気の南向きのお部屋。室内にはウォークインクローゼットがありますので、たくさんの荷物も効率的に収納ができます。キッチンはシステムキッチン仕様になっていますので、お料理好きの方にもぴったり。また、バス・トイレは別で、のんびりお風呂タイムも楽しめるでしょう。
通信設備面では、インターネット接続が可能です。また、BSアンテナがありCATVにも対応しているので、おうち時間も充実するでしょう(別途工事、契約料が必要な場合あり)。
建物にはエレベーターがついているので、重い荷物があっても安心。
このお部屋は2階以上に位置しているので、通行人や周囲の住人からの視線が気になりにくく、防犯面でも安心。インターホンにはTVモニタもついているため、相手の顔を確認してから来客対応することができます。
人気の南向きのお部屋。室内にはウォークインクローゼットがありますので、たくさんの荷物も効率的に収納ができます。キッチンはシステムキッチン仕様になっていますので、お料理好きの方にもぴったり。また、バス・トイレは別で、のんびりお風呂タイムも楽しめるでしょう。
通信設備面では、インターネット接続が可能です。また、BSアンテナがありCATVにも対応しているので、おうち時間も充実するでしょう(別途工事、契約料が必要な場合あり)。
建物にはエレベーターがついているので、重い荷物があっても安心。
お金・契約の情報
※「-」と表示されているものは、実際は料金が発生するものもございます。詳細はお問い合わせください。
| 家賃 | 65万円 | 管理費・共益費 | なし |
|---|---|---|---|
| 敷金 | 195万円 | 礼金 | なし |
| 入居決定でお祝い金最大100,000円 | |||
| 保証金 | - | 償却・敷引 | - |
| 住宅保険料 | - | 更新料 | - |
| 契約形態 | 定期借家 | 契約期間 | 3年 |
| 入居・引渡期間 | 即時 | 現況 | - |
| 契約備考 | 緑溢れる住環境にゆったりと佇む大型の高級マンション。 3LDK 定期借家3年 損保【要】 バストイレ別、エアコン、TVインターホン、システムキッチン、南向き、エレベーター、CATV、即入居可、礼金不要、閑静な住宅地、24時間有人管理、全居室洋室、ウォークインクロゼット、冷蔵庫、ガスレンジ付、ネット専用回線、洗濯機、食器洗乾燥機、乾燥機、保証金不要、オーブンレンジ、トイレ2ヶ所、フロントサービス、アスレチックR、駅徒歩5分以内、ゲストルーム、専有面積30坪以上、全居室6畳以上、BS、IT重説対応物件 | ||
部屋の情報
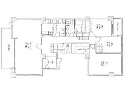
| 間取り | 3LDK | 専有面積 | 154.84m2 |
|---|---|---|---|
| 所在階 / 向き | 3階 / 南 | バルコニー面積 | - |
| 水道 / ガス | - | ||
| 設備 | バス・トイレ別、2階以上、テレビドアホン、ウォークインクローゼット、インターネット対応、システムキッチン、エアコン、エレベーター、南向き、コンロ:ガス、CATV、BSアンテナ | ||
| 当社物件ID | 25050885 | ||
建物の情報
| 建物名 | 駒沢ガーデンハウス | ||
|---|---|---|---|
| 所在地 | 東京都世田谷区駒沢 | ||
| 交通 | 東急田園都市線 駒沢大学駅 徒歩4分 | ||
| 階数 | 8階建 | 総戸数 | - |
| 築年月 | 1989年12月 / 築37年 | エレベーター | あり |
| 駐車場 | 空有 44000円 | バイク置き場 | - |
| 駐輪場 | - | 管理人/管理会社 | - |
| 周辺環境 | その他 駒沢オリンピック公園(公園)まで510m その他 東京医療センター(病院)まで1120m その他 マルエツ(スーパー)まで383m その他 セブンイレブン(コンビニ)まで367m その他 駒沢小学校(小学校)まで764m その他 駒沢中学校(中学校)まで1003m | ||
| 建物種別 | マンション | 建物構造 | RC(鉄筋コンクリート) |
この部屋の取扱い不動産会社
| 会社名 | プラザホームズ(株)(SUUMO経由) | ||
|---|---|---|---|
| 所在地 | 東京都港区麻布台1-9-12 | 交通 | - |
| 営業時間 | 月~土 9:00 ~ 17:40 | 定休日 | 日・祝 |
| 免許番号 | 東京都知事86890 | 取引態様 | 仲介 |
| 不動産会社管理番号 | 100489784787 | 当社管理番号 | 89 |
| 所属団体 | (公社)東京都宅地建物取引業協会会員 | ||
| 公正取引協議会 | (公社)首都圏不動産公正取引協議会加盟 | ||
| 取扱い物件情報 | 物件詳細へ | ||
※各種情報と現状に差異がある場合は、現状優先となります。問い合わせをすることで、より詳しい条件、情報を確認する事ができます。
提供:プラザホームズ(株)(SUUMO経由)
この物件が気になったら掲載期限まであと10日
駒沢ガーデンハウスに条件(家賃・エリア)が近い物件一覧
| 写真 | 家賃 管理費等 | 敷金 礼金 | 間取り 専有面積 | 築年数 | 最寄り駅 所在地 | キープ | 詳細 |
|---|---|---|---|---|---|---|---|
マンション アーバンパーク代官山I・II(2LDK/4階) | |||||||
![]() | 40万円 1万円 | 40万円 40万円 | 2LDK 67.11m2 | 築20年 | 東急東横線 代官山駅 徒歩6分 JR埼京線 渋谷駅 徒歩10分 東京メトロ日比谷線 恵比寿駅 徒歩11分 東京都渋谷区猿楽町 | 詳細を見る | |
マンション アーバンパーク代官山II(3LDK/5階) | |||||||
![]() | 67万円 1.5万円 | 67万円 67万円 | 3LDK 111.54m2 | 築20年 | 東急東横線 代官山駅 徒歩6分 JR山手線 渋谷駅 徒歩10分 東京メトロ日比谷線 中目黒駅 徒歩13分 東京都渋谷区猿楽町 | 詳細を見る | |
マンション ザ・パークハウスグラン神山町(2LDK/2階) | |||||||
![]() | 98万円 なし | 196万円 98万円 | 2LDK 83.57m2 | 築3年 | 東京メトロ千代田線 代々木公園駅 徒歩9分 小田急線 代々木八幡駅 徒歩11分 東京メトロ半蔵門線 渋谷駅 徒歩12分 東京都渋谷区神山町 | 詳細を見る | |
マンション クリオレミントンハウス恵比寿(2LDK/3階) | |||||||
![]() | 41.8万円 なし | 41.8万円 41.8万円 | 2LDK 81.58m2 | 築27年 | JR山手線 目黒駅 徒歩10分 JR山手線 恵比寿駅 徒歩13分 東京メトロ南北線 白金台駅 徒歩20分 東京都目黒区三田 | 詳細を見る | |
マンション ガーデンハイツ代官山(1LDK/1階) | |||||||
![]() | 40万円 2万円 | 40万円 40万円 | 1LDK 69.77m2 | 築29年 | 東急東横線 代官山駅 徒歩2分 東京メトロ日比谷線 恵比寿駅 徒歩8分 東急東横線 中目黒駅 徒歩11分 東京都渋谷区恵比寿西 | 詳細を見る | |
マンション アクティ目黒駅前2棟(2LDK/8階) | |||||||
![]() | 39.9万円 8,000円 | 39.9万円 39.9万円 | 2LDK 68.97m2 | 築26年 | JR山手線 目黒駅 徒歩3分 東京メトロ南北線 白金台駅 徒歩16分 東急目黒線 不動前駅 徒歩20分 東京都目黒区目黒 | 詳細を見る | |
マンション パークナード恵比寿(2LDK/2階) | |||||||
![]() | 43万円 3万円 | 43万円 43万円 | 2LDK 62.55m2 | 築7年 | 東京メトロ日比谷線 恵比寿駅 徒歩5分 東急東横線 代官山駅 徒歩5分 JR山手線 渋谷駅 徒歩21分 東京都渋谷区恵比寿南 | 詳細を見る | |








