賃貸マンション
エルフラット田町の賃貸物件情報(1K/9階)
| 家賃 | 管理費等 | 敷金 | 礼金 | 間取り | 専有面積 |
|---|---|---|---|---|---|
| 11.9万円 | 5,000円 | なし | 11.9万円 | 1K | 20.52m2 |
入居決定でお祝い金最大100,000円
- 保証金
- -
- 償却・敷引
- -
- 築年数
- 築20年
- 所在階
- 9階
- 向き
- 北西
Point
まずはお問い合わせ!
不動産会社は街のプロ、あなたに合った物件がきっと見つかります。
提供:(株)クラッシー・ホームズ浜松町本店(SUUMO経由)

詳細情報 エルフラット田町
物件紹介
エルフラット田町はJR山手線田町駅から徒歩7分にあり、駅近で通勤通学に便利なマンションです。
このお部屋は2階以上に位置しているので、通行人や周囲の住人からの視線が気になりにくく、防犯面でも安心。建物のエントランスはオートロックがついており、インターホンにはTVモニタもついているため、相手の顔を確認してから来客対応することができます。
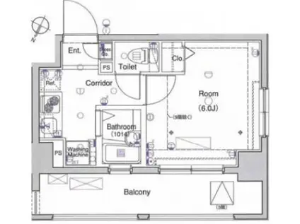
人気の角部屋で周囲の居住者の生活音も気になりにくく、また、フローリングのお部屋なのでお掃除もラクラク。キッチンはシステムキッチン仕様になっていますので、お料理好きの方にもぴったり。また、バス・トイレは別で、のんびりお風呂タイムも楽しめるでしょう。
通信設備面では、インターネット接続が可能です(別途工事、契約料が必要な場合あり)。
建物にはエレベーターがついているので、重い荷物があっても安心。共用部には宅配ボックスが設定されているので、不在の時にも荷物を受け取ることができます。また、ペット飼育の相談ができますので、あなたの大切な家族の一員も快適に暮らせるか、ぜひ確認してみてください。
このお部屋は2階以上に位置しているので、通行人や周囲の住人からの視線が気になりにくく、防犯面でも安心。建物のエントランスはオートロックがついており、インターホンにはTVモニタもついているため、相手の顔を確認してから来客対応することができます。
人気の角部屋で周囲の居住者の生活音も気になりにくく、また、フローリングのお部屋なのでお掃除もラクラク。キッチンはシステムキッチン仕様になっていますので、お料理好きの方にもぴったり。また、バス・トイレは別で、のんびりお風呂タイムも楽しめるでしょう。
通信設備面では、インターネット接続が可能です(別途工事、契約料が必要な場合あり)。
建物にはエレベーターがついているので、重い荷物があっても安心。共用部には宅配ボックスが設定されているので、不在の時にも荷物を受け取ることができます。また、ペット飼育の相談ができますので、あなたの大切な家族の一員も快適に暮らせるか、ぜひ確認してみてください。
お金・契約の情報
※「-」と表示されているものは、実際は料金が発生するものもございます。詳細はお問い合わせください。
| 家賃 | 11.9万円 | 管理費・共益費 | 5,000円 |
|---|---|---|---|
| 敷金 | なし | 礼金 | 11.9万円 |
| 入居決定でお祝い金最大100,000円 | |||
| 保証金 | - | 償却・敷引 | - |
| 住宅保険料 | - | 更新料 | - |
| 保証会社利用 | 必須 | 保証会社名 | 全保連 |
| 保証会社費用 | - | 保証会社備考 | 全保連利用必 初回総賃料の50%、年間保証料¥15000、引落手数料¥330/月 |
| 契約形態 | - | 契約期間 | - |
| 入居・引渡期間 | - | 現況 | - |
| 入居可能条件 | ペット相談 | ||
| 契約備考 | 民泊不可/短期解約違約金あり(1年未満1カ月、半年未満解約時2か月分) 合計3.3万円(内訳:鍵交換費) 退去時清掃費¥70000、24時間サポート¥16500、エアコン洗浄¥16500、ペット飼育時保証金+1カ月(償却) 1K 単身者可/ペット相談 普通借家2年 損保【要】 バストイレ別、バルコニー、エアコン、ガスコンロ対応、クロゼット、フローリング、TVインターホン、オートロック、室内洗濯置、シューズボックス、システムキッチン、角住戸、エレベーター、2口コンロ、駐輪場、宅配ボックス、光ファイバー、外壁タイル張り、2面採光、防犯カメラ、ペット相談、分譲賃貸、保証人不要、24時間緊急通報システム、ガスレンジ付、駅まで平坦、耐震構造、3駅以上利用可、3沿線以上利用可、駅徒歩10分以内、敷地内ごみ置き場、都市ガス、保証会社利用可、初期費用カード決済可、通風良好 入居日:'26年4月中旬 | ||
部屋の情報
| 間取り | 1K | 専有面積 | 20.52m2 |
|---|---|---|---|
| 所在階 / 向き | 9階 / 北西 | バルコニー面積 | - |
| 水道 / ガス | - | ||
| 設備 | バス・トイレ別、2階以上、オートロック、テレビドアホン、宅配ボックス、インターネット対応、システムキッチン、エアコン、エレベーター、角部屋、バルコニー、フローリング、2口コンロ、コンロ:ガス、洗濯機:室内 | ||
| 当社物件ID | 160475565 | ||
建物の情報
| 建物名 | エルフラット田町 | ||
|---|---|---|---|
| 所在地 | 東京都港区芝浦 | ||
| 交通 | JR山手線 田町駅(東京) 徒歩7分 都営浅草線 三田駅(東京) 徒歩9分 都営三田線 芝公園駅 徒歩13分 | ||
| 階数 | 12階建 | 総戸数 | - |
| 築年月 | 2006年11月 / 築20年 | エレベーター | あり |
| 駐車場 | 近隣 20m31000円 | バイク置き場 | - |
| 駐輪場 | あり | 管理人/管理会社 | - |
| 周辺環境 | その他 TSUTAYA田町駅前店(レンタルビデオ)まで852m その他 港芝四郵便局(郵便局)まで617m その他 マルエツプチ三田店(スーパー)まで673m その他 大丸ピーコック芝浦アイランド店(スーパー)まで835m その他 金杉濱町緑地(公園)まで616m その他 ドラッグセガミ芝浦店(ドラッグストア)まで576m | ||
| 建物種別 | マンション | 建物構造 | RC(鉄筋コンクリート) |
この部屋の取扱い不動産会社
| 会社名 | (株)クラッシー・ホームズ浜松町本店(SUUMO経由) | ||
|---|---|---|---|
| 所在地 | 東京都港区浜松町1-29-10 6階 | 交通 | - |
| 営業時間 | 10:00~18:30 | 定休日 | 水曜日 |
| 免許番号 | 東京都知事91066 | 取引態様 | 仲介 |
| 不動産会社管理番号 | 100491476176 | 当社管理番号 | 89 |
| 所属団体 | (公社)東京都宅地建物取引業協会会員 | ||
| 公正取引協議会 | (公社)首都圏不動産公正取引協議会加盟 | ||
| 取扱い物件情報 | 物件詳細へ | ||
※各種情報と現状に差異がある場合は、現状優先となります。問い合わせをすることで、より詳しい条件、情報を確認する事ができます。
提供:(株)クラッシー・ホームズ浜松町本店(SUUMO経由)
この物件が気になったら掲載期限まであと11日
エルフラット田町に条件(家賃・エリア)が近い物件一覧
| 写真 | 家賃 管理費等 | 敷金 礼金 | 間取り 専有面積 | 築年数 | 最寄り駅 所在地 | キープ | 詳細 |
|---|---|---|---|---|---|---|---|
マンション ルフォンプログレ門前仲町マークス(1DK/2階) | |||||||
![]() | 14.9万円 1.5万円 | 14.9万円 なし | 1DK 27.25m2 | 築5年 | 東京メトロ東西線 門前仲町駅 徒歩6分 東京メトロ半蔵門線 清澄白河駅 徒歩12分 JR京葉線 越中島駅 徒歩16分 東京都江東区深川 | 詳細を見る | |
マンション メゾン大沢(1DK/5階) | |||||||
![]() | 8.5万円 なし | 8.5万円 8.5万円 | 1DK 28m2 | 築47年 | 東京地下鉄東西線 門前仲町駅 徒歩11分 東京地下鉄東西線 木場駅 徒歩11分 東京地下鉄半蔵門線 清澄白河駅 徒歩14分 東京都江東区冬木 | 詳細を見る | |
マンション RIDGE豊洲(1LDK/3階) | |||||||
![]() | 18.6万円 1.5万円 | なし なし | 1LDK 39.99m2 | 築6年 | 東京メトロ有楽町線 豊洲駅 徒歩11分 りんかい線 東雲駅(東京) 徒歩14分 新交通ゆりかもめ 新豊洲駅 徒歩23分 東京都江東区東雲 | 詳細を見る | |
マンション クレヴィスタ亀戸IV(1K/10階) | |||||||
![]() | 13.5万円 1.1万円 | なし 13.5万円 | 1K 25.56m2 | 築6年 | 総武・中央緩行線 亀戸駅 徒歩4分 東武鉄道亀戸線 亀戸駅 徒歩4分 総武本線 錦糸町駅 徒歩12分 東京都江東区亀戸2丁目 | 詳細を見る | |
マンション ドルチェ月島・弐番館(1K/10階) | |||||||
![]() | 12.8万円 1.1万円 | なし 12.8万円 | 1K 22.7m2 | 築23年 | 都営大江戸線 勝どき駅 徒歩4分 東京メトロ有楽町線 月島駅 徒歩6分 東京メトロ日比谷線 築地駅 徒歩20分 東京都中央区月島 | 詳細を見る | |
マンション プレール日本橋壱番館(1K/3階) | |||||||
![]() | 9.6万円 7,000円 | 9.6万円 9.6万円 | 1K 20.41m2 | 築25年 | 東京地下鉄半蔵門線 水天宮前駅 徒歩3分 東京地下鉄日比谷線 人形町駅 徒歩6分 東京都浅草線 人形町駅 徒歩6分 東京都中央区日本橋蛎殻町2丁目 | 詳細を見る | |
マンション ドエルイン月島(1K/7階) | |||||||
![]() | 12.1万円 7,000円 | 12.1万円 24.2万円 | 1K 21.6m2 | 築24年 | 都営大江戸線 月島駅 徒歩3分 東京メトロ有楽町線 月島駅 徒歩5分 都営大江戸線 勝どき駅 徒歩5分 東京都中央区月島 | 詳細を見る | |
マンション ルネサンスコート亀戸サウス(1K/3階) | |||||||
![]() | 12.1万円 1.3万円 | なし なし | 1K 25.66m2 | 築4年 | 東武亀戸線 亀戸駅 徒歩5分 都営新宿線 西大島駅 徒歩13分 都営新宿線 大島駅(東京) 徒歩13分 東京都江東区亀戸 | 詳細を見る | |









