賃貸アパート
フォレストコート飯能の賃貸物件情報(1K/2階)
| 家賃 | 管理費等 | 敷金 | 礼金 | 間取り | 専有面積 |
|---|---|---|---|---|---|
| 5.6万円 | 8,000円 | なし | なし | 1K | 22.52m2 |
入居決定でお祝い金最大100,000円
- 保証金
- -
- 償却・敷引
- -
- 築年数
- 築1年
- 所在階
- 2階
- 向き
- 東
Point
◎新築◎ネット無料◎安心のオートロック付き!
提供:(株)セントラルエージェンシー セントラルハウス所沢駅前店(SUUMO経由)

詳細情報 フォレストコート飯能
物件紹介
フォレストコート飯能は西武池袋線飯能駅から徒歩10分にあり、駅近で通勤通学に便利なアパートです。
このお部屋は2階以上に位置しているので、通行人や周囲の住人からの視線が気になりにくく、防犯面でも安心。建物のエントランスはオートロックがついており、インターホンにはTVモニタもついているため、相手の顔を確認してから来客対応することができます。
人気の角部屋で周囲の居住者の生活音も気になりにくく、また、フローリングのお部屋なのでお掃除もラクラク。キッチンはシステムキッチン仕様になっていますので、お料理好きの方にもぴったり。バス・トイレは別なので、のんびりお風呂タイムも楽しめるでしょう。また、雨の日でも浴室乾燥機を使えば、お洗濯も問題ありません。
通信設備面では、インターネットが無料で使えるので、月々の出費を抑えられるのも魅力です(別途工事等が必要な場合あり)。
共用部には宅配ボックスが設定されているので、不在の時にも荷物を受け取ることができます。
このお部屋は2階以上に位置しているので、通行人や周囲の住人からの視線が気になりにくく、防犯面でも安心。建物のエントランスはオートロックがついており、インターホンにはTVモニタもついているため、相手の顔を確認してから来客対応することができます。
人気の角部屋で周囲の居住者の生活音も気になりにくく、また、フローリングのお部屋なのでお掃除もラクラク。キッチンはシステムキッチン仕様になっていますので、お料理好きの方にもぴったり。バス・トイレは別なので、のんびりお風呂タイムも楽しめるでしょう。また、雨の日でも浴室乾燥機を使えば、お洗濯も問題ありません。
通信設備面では、インターネットが無料で使えるので、月々の出費を抑えられるのも魅力です(別途工事等が必要な場合あり)。
共用部には宅配ボックスが設定されているので、不在の時にも荷物を受け取ることができます。
お金・契約の情報
※「-」と表示されているものは、実際は料金が発生するものもございます。詳細はお問い合わせください。
| 家賃 | 5.6万円 | 管理費・共益費 | 8,000円 |
|---|---|---|---|
| 敷金 | なし | 礼金 | なし |
| 入居決定でお祝い金最大100,000円 | |||
| 保証金 | - | 償却・敷引 | - |
| 住宅保険料 | - | 更新料 | - |
| 保証会社利用 | 必須 | 保証会社名 | 日本セーフティー |
| 保証会社費用 | - | 保証会社備考 | 日本セーフティー利用必 初回50%~、月額800円 |
| 契約形態 | - | 契約期間 | - |
| 入居・引渡期間 | - | 現況 | - |
| 契約備考 | お部屋探しはタウンハウジングへ!クレジットカード決済が可能なお部屋、お家賃の減額や契約の開始時期などお客様のご希望に合わせた交渉もお気軽にお申し付けください♪親切&丁寧を心がけてご案内!ご見学・ご相談・ご要望なんでもお待ちしております! 合計2.75万円(内訳:24時間サポート:16500円/書類作成費用:11000円) 更新料新賃料(ヶ月):1.00ヶ月 1K 単身者可 普通借家2年 損保【1.8万円2年】 バストイレ別、エアコン、クロゼット、フローリング、シャワー付洗面台、TVインターホン、浴室乾燥機、オートロック、室内洗濯置、シューズボックス、システムキッチン、温水洗浄便座、脱衣所、洗面所独立、2口コンロ、宅配ボックス、礼金不要、閑静な住宅地、敷金不要、IHクッキングヒーター、全居室収納、全居室洋室、保証人不要、単身者相談、全居室フローリング、ディンプルキー、ネット使用料不要、エアコン全室、築2年以内、24時間換気システム、敷地内ごみ置き場、洗面所にドア、敷金・礼金不要、IT重説対応物件 入居日:'26年2月下旬 | ||
部屋の情報
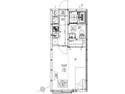
| 間取り | 1K | 専有面積 | 22.52m2 |
|---|---|---|---|
| 所在階 / 向き | 2階 / 東 | バルコニー面積 | - |
| 水道 / ガス | - | ||
| 設備 | バス・トイレ別、2階以上、オートロック、テレビドアホン、宅配ボックス、浴室乾燥機、インターネット対応、システムキッチン、エアコン、温水洗浄便座、フローリング、洗髪洗面化粧台、2口コンロ、コンロ:IH、インターネット使用料無料、洗濯機:室内 | ||
| 当社物件ID | 160364354 | ||
建物の情報
| 建物名 | フォレストコート飯能 | ||
|---|---|---|---|
| 所在地 | 埼玉県飯能市本町 | ||
| 交通 | 西武池袋線 飯能駅 徒歩10分 JR八高線 東飯能駅 徒歩14分 西武池袋線 元加治駅 徒歩45分 | ||
| 階数 | 3階建 | 総戸数 | 15戸 |
| 築年月 | 2026年02月 / 築1年 | エレベーター | - |
| 駐車場 | なし | バイク置き場 | - |
| 駐輪場 | - | 管理人/管理会社 | - |
| 周辺環境 | その他 西武飯能ペペ(ショッピングセンター)まで730m その他 まるひろ飯能店(ショッピングセンター)まで1170m その他 スーパーバリュー飯能店(スーパー)まで890m その他 ファミリーマート飯能駅北口店(コンビニ)まで730m その他 ザ・ダイソー飯能緑町店(その他)まで1610m その他 セブンイレブン飯能駅北口店(コンビニ)まで940m | ||
| 建物種別 | アパート | 建物構造 | 木造 |
この部屋の取扱い不動産会社
| 会社名 | (株)タウンハウジング埼玉 入間市店(SUUMO経由) | ||
|---|---|---|---|
| 所在地 | 埼玉県入間市豊岡1-3-17 ヨシケンビル101 | 交通 | - |
| 営業時間 | AM10:00~PM7:00 | 定休日 | 水曜日 |
| 免許番号 | 国土交通大臣9925 | 取引態様 | 仲介 |
| 不動産会社管理番号 | 100487653744 | 当社管理番号 | 89 |
| 所属団体 | (公社)埼玉県宅地建物取引業協会会員 | ||
| 公正取引協議会 | (公社)首都圏不動産公正取引協議会加盟 | ||
| 取扱い物件情報 | 物件詳細へ | ||
※各種情報と現状に差異がある場合は、現状優先となります。問い合わせをすることで、より詳しい条件、情報を確認する事ができます。
提供:(株)タウンハウジング埼玉 入間市店(SUUMO経由)
この物件が気になったら掲載期限まであと10日
フォレストコート飯能に条件(家賃・エリア)が近い物件一覧
| 写真 | 家賃 管理費等 | 敷金 礼金 | 間取り 専有面積 | 築年数 | 最寄り駅 所在地 | キープ | 詳細 |
|---|---|---|---|---|---|---|---|
マンション EXCEED狭山台(ワンルーム/3階) | |||||||
![]() | 3.5万円 3,000円 | なし 3.5万円 | ワンルーム 17.42m2 | 築37年 | 西武新宿線 新狭山駅 徒歩28分 西武新宿線 狭山市駅 徒歩33分 埼玉県狭山市狭山台 | 詳細を見る | |
アパート メゾン鶴丸(1K/1階) | |||||||
![]() | 6.8万円 5,000円 | なし 6.8万円 | 1K 30.32m2 | 築4年 | 西武新宿線 新狭山駅 徒歩2分 西武新宿線 南大塚駅 徒歩35分 西武新宿線 狭山市駅 徒歩40分 埼玉県狭山市新狭山 | 詳細を見る | |
アパート サニーコリーヌ(2LDK/2階) | |||||||
![]() | 7.7万円 2,200円 | なし 7.7万円 | 2LDK 59.58m2 | 築1年 | 秩父鉄道 影森駅 徒歩7分 西武秩父線 西武秩父駅 徒歩26分 埼玉県秩父市下影森 | 詳細を見る | |
アパート AERIE TAKAKURA(1LDK/2階) | |||||||
![]() | 6.5万円 5,000円 | なし なし | 1LDK 45.38m2 | 築31年 | 西武池袋線 入間市駅 徒歩22分 西武池袋線 仏子駅 徒歩32分 埼玉県入間市 | 詳細を見る | |
マンション FILLE FLATS SHINSAYAMA FER(1K/4階) | |||||||
![]() | 6万円 4,000円 | なし 6万円 | 1K 20.02m2 | 築3年 | 西武新宿線 新狭山駅 徒歩2分 埼玉県狭山市新狭山 | 詳細を見る | |
マンション アレッサーノ(1K/3階) | |||||||
![]() | 6.9万円 3,000円 | 6.9万円 6.9万円 | 1K 29.7m2 | 築10年 | 西武池袋・豊島線 飯能駅 徒歩4分 埼玉県飯能市柳町 | 詳細を見る | |
アパート リブリ・グリーンSTAGE(2LDK/2階) | |||||||
![]() | 6.6万円 4,000円 | なし なし | 2LDK 52.79m2 | 築14年 | JR川越線 武蔵高萩駅 徒歩12分 JR川越線 笠幡駅 徒歩47分 JR川越線 高麗川駅 徒歩47分 埼玉県日高市大字高萩 | 詳細を見る | |
アパート 笹井レジデンスII(3DK/1階) | |||||||
![]() | 6.6万円 なし | 6.6万円 6.6万円 | 3DK 51.03m2 | 築31年 | 西武池袋線 仏子駅 徒歩35分 西武池袋線 入間市駅 徒歩36分 埼玉県狭山市 | 詳細を見る | |






/105x80-f1-q70-wp1)

