賃貸マンション
京阪電気鉄道鴨東線 出町柳駅 徒歩7分 3階建 築9年の賃貸物件情報(3LDK/1階)
| 家賃 | 管理費等 | 敷金 | 礼金 | 間取り | 専有面積 |
|---|---|---|---|---|---|
| 35万円 | なし | 70万円 | 35万円 | 3LDK | 78.82m2 |
入居決定でお祝い金最大100,000円
Point
下鴨神社の敷地内です。 高級分譲マンションの賃貸募集、歴史ある下鴨から登場です
提供:株式会社 京都ライフ 北山店(賃貸スモッカ経由)

詳細情報 京阪電気鉄道鴨東線 出町柳駅 徒歩7分 3階建 築9年
物件紹介
京阪電気鉄道鴨東線出町柳駅から徒歩7分にあり、駅近で通勤通学に便利なマンションです。
建物のエントランスはオートロックがついており、防犯性が高くなっています。
人気の南向きのお部屋。また、フローリングなのでお掃除もラクラク。バス・トイレ別の仕様で、のんびりお風呂タイムも楽しめます。また、浴室乾燥機を使えば、雨の日でもお洗濯は問題ありません。
通信設備面では、インターネット接続が可能です(別途工事、契約料が必要な場合あり)。
建物にはエレベーターがついているので、重い荷物があっても安心。共用部には宅配ボックスが設定されているので、不在の時にも荷物を受け取ることができます。
建物のエントランスはオートロックがついており、防犯性が高くなっています。
人気の南向きのお部屋。また、フローリングなのでお掃除もラクラク。バス・トイレ別の仕様で、のんびりお風呂タイムも楽しめます。また、浴室乾燥機を使えば、雨の日でもお洗濯は問題ありません。
通信設備面では、インターネット接続が可能です(別途工事、契約料が必要な場合あり)。
建物にはエレベーターがついているので、重い荷物があっても安心。共用部には宅配ボックスが設定されているので、不在の時にも荷物を受け取ることができます。
お金・契約の情報
※「-」と表示されているものは、実際は料金が発生するものもございます。詳細はお問い合わせください。
| 家賃 | 35万円 | 管理費・共益費 | なし |
|---|---|---|---|
| 敷金 | 70万円 | 礼金 | 35万円 |
| 入居決定でお祝い金最大100,000円 | |||
| 保証金 | - | 償却・敷引 | - |
| 住宅保険料 | 住宅保険料あり | 更新料 | - |
| 契約形態 | 定期借家 | 契約期間 | 2年 |
| 入居・引渡期間 | 即時 | 現況 | 空室 |
| 契約備考 | 下鴨神社の敷地内に完成した、高級マンションです。 最新設備が施され、京阪鴨東線の出町柳駅へも7分 周辺は、大人気の鴨川と下鴨神社の近くで、静かで綺麗な空気をたっぷり感じれます。 生活には便利な、なんでも揃う枡形商店街へもすぐです。 贅沢な立地の、贅沢なマンションライフは、いかがでしょうか その他設備/条件:分譲賃貸、1階の物件、TVドアホン、即入居可 | ||
部屋の情報
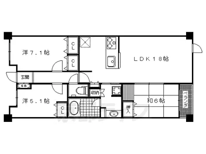
| 間取り | 3LDK | 専有面積 | 78.82m2 |
|---|---|---|---|
| 間取り詳細 | 洋室(7.1帖)、和室(6帖)、洋室(5.1帖)、LDK(18帖) | ||
| 所在階 / 向き | 1階 / 南 | バルコニー面積 | - |
| 水道 / ガス | ガス【都市】 | ||
| 設備 | バス・トイレ別、オートロック、宅配ボックス、浴室乾燥機、追い焚き、インターネット対応、エレベーター、温水洗浄便座、南向き、バルコニー、フローリング、洗濯機:室内 | ||
| 当社物件ID | 159815089 | ||
建物の情報
| 建物名 | 京阪電気鉄道鴨東線 出町柳駅 徒歩7分 3階建 築9年 | ||
|---|---|---|---|
| 所在地 | 京都府京都市左京区下鴨泉川町 | ||
| 交通 | 京阪電気鉄道鴨東線 出町柳駅 徒歩7分 京都市烏丸線 今出川駅 徒歩21分 | ||
| 階数 | 3階建 | 総戸数 | - |
| 築年月 | 2017年06月 / 築9年 | エレベーター | あり |
| 駐車場 | - | バイク置き場 | - |
| 駐輪場 | - | 管理人/管理会社 | - |
| 建物種別 | マンション | 建物構造 | RC(鉄筋コンクリート) |
この部屋の取扱い不動産会社
| 会社名 | 株式会社 京都ライフ 北山店(賃貸スモッカ経由) | ||
|---|---|---|---|
| 所在地 | 京都市北区上賀茂岩ヶ垣内町98-2 | 交通 | - |
| 営業時間 | - | 定休日 | - |
| 免許番号 | 京都府知事(11)第6353号 | 取引態様 | 仲介 |
| 不動産会社管理番号 | kyotolife_62845-137-13 | 当社管理番号 | 463 |
| 所属団体 | 京都府宅地建物取引業協会\n公益社団法人近畿地区不動産公正取引協議会 | ||
| 公正取引協議会 | 全国宅地建物取引業保証協会 | ||
| 取扱い物件情報 | 物件詳細へ | ||
※各種情報と現状に差異がある場合は、現状優先となります。問い合わせをすることで、より詳しい条件、情報を確認する事ができます。
提供:株式会社 京都ライフ 北山店(賃貸スモッカ経由)
この物件が気になったら掲載期限まであと6日
京阪電気鉄道鴨東線 出町柳駅 徒歩7分 3階建 築9年に条件(家賃・エリア)が近い物件一覧
| 写真 | 家賃 管理費等 | 敷金 礼金 | 間取り 専有面積 | 築年数 | 最寄り駅 所在地 | キープ | 詳細 |
|---|---|---|---|---|---|---|---|
マンション AYM下鴨(2LDK/3階) | |||||||
![]() | 22万円 8,000円 | なし 44万円 | 2LDK 65.3m2 | 築2年 | 地下鉄烏丸線 北大路駅 徒歩10分 地下鉄烏丸線 北山駅(京都) 徒歩12分 京都府京都市左京区下鴨東半木町 | 詳細を見る | |
マンション プレミスト京都松ヶ崎(3LDK/4階) | |||||||
![]() | 29.8万円 なし | 59.6万円 59.6万円 | 3LDK 76m2 | 築1年 | 京都市烏丸線 松ケ崎駅(京都) 徒歩5分 京都市烏丸線 北山駅(京都) 徒歩15分 叡山電鉄 修学院駅 徒歩17分 京都府京都市左京区松ケ崎横縄手町 | 詳細を見る | |
マンション 京都市烏丸線 北山駅(京都) 徒歩4分 築4年(2LDK/1階) | |||||||
![]() | 21万円 8,500円 | 3万円 35万円 | 2LDK 66.83m2 | 築4年 | 京都市烏丸線 北山駅(京都) 徒歩4分 京都市烏丸線 松ケ崎駅(京都) 徒歩13分 京都府京都市左京区下鴨北芝町 | 詳細を見る | |
マンション 京都市烏丸線 丸太町駅(京都市営) 徒歩11分 築3年(3LDK/4階) | |||||||
![]() | 26.2万円 1.8万円 | 26.2万円 52.4万円 | 3LDK 74.1m2 | 築3年 | 京都市烏丸線 丸太町駅(京都市営) 徒歩11分 京都市烏丸線 今出川駅 徒歩11分 京都府京都市上京区元頂妙寺町 | 詳細を見る | |
マンション 京都市烏丸線 今出川駅 徒歩12分 築36年(4LDK/3階) | |||||||
![]() | 37万円 2万円 | 20万円 50万円 | 4LDK 162.38m2 | 築36年 | 京都市烏丸線 今出川駅 徒歩12分 京都市烏丸線 北大路駅 徒歩14分 京都府京都市上京区鶴山町 | 詳細を見る | |
一戸建て 京阪電気鉄道鴨東線 神宮丸太町駅 徒歩10分 築28年(3SDK) | |||||||
![]() | 25万円 なし | 25万円 25万円 | 3SDK 110.27m2 | 築28年 | 京阪電気鉄道鴨東線 神宮丸太町駅 徒歩10分 京都市東西線 三条京阪駅 徒歩11分 京都府京都市左京区聖護院蓮華蔵町 | 詳細を見る | |
一戸建て 叡山電鉄 木野駅 徒歩2分 築16年(3LDK) | |||||||
![]() | 30万円 なし | 30万円 30万円 | 3LDK 75.33m2 | 築16年 | 叡山電鉄 木野駅 徒歩2分 叡山電鉄 岩倉駅(京都) 徒歩13分 京都市烏丸線 国際会館駅 徒歩17分 京都府京都市左京区岩倉南木野町 | 詳細を見る | |
マンション FORESTA御所東(1SLDK/2階) | |||||||
![]() | 22.4万円 1.15万円 | なし 25万円 | 1SLDK 66.6m2 | 築1年 | 京阪電気鉄道鴨東線 神宮丸太町駅 徒歩9分 京都市烏丸線 丸太町駅(京都市営) 徒歩13分 京都府京都市上京区新烏丸頭町 | 詳細を見る | |









