賃貸一戸建て
京阪電気鉄道鴨東線 出町柳駅 徒歩18分 2階建 築62年の賃貸物件情報(5K)
| 家賃 | 管理費等 | 敷金 | 礼金 | 間取り | 専有面積 |
|---|---|---|---|---|---|
| 7.8万円 | なし | 10万円 | 15万円 | 5K | 55.85m2 |
入居決定でお祝い金最大100,000円
Point
5年定期借家契約 下鴨エリアから貸家登場
提供:株式会社 京都ライフ 北山店(賃貸スモッカ経由)

詳細情報 京阪電気鉄道鴨東線 出町柳駅 徒歩18分 2階建 築62年
物件紹介
京阪電気鉄道鴨東線出町柳駅から徒歩18分にある一戸建てです。
バス・トイレ別の仕様で、のんびりお風呂タイムも楽しめます。
バス・トイレ別の仕様で、のんびりお風呂タイムも楽しめます。
お金・契約の情報
※「-」と表示されているものは、実際は料金が発生するものもございます。詳細はお問い合わせください。
| 家賃 | 7.8万円 | 管理費・共益費 | なし |
|---|---|---|---|
| 敷金 | 10万円 | 礼金 | 15万円 |
| 入居決定でお祝い金最大100,000円 | |||
| 保証金 | - | 償却・敷引 | - |
| 住宅保険料 | 住宅保険料あり | 更新料 | - |
| 契約形態 | 定期借家 | 契約期間 | 5年 |
| 入居・引渡期間 | 即時 | 現況 | 空室 |
| 契約備考 | 書類代:5,500円 入居者サポート:16,500円 更新料:無し その他設備/条件:即入居可 | ||
部屋の情報
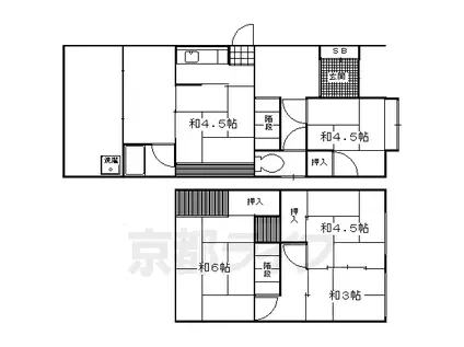
| 間取り | 5K | 専有面積 | 55.85m2 |
|---|---|---|---|
| 間取り詳細 | 和室(4.5帖)、和室(4.5帖)、和室(3帖)、和室(4.5帖)、和室(6帖)、K(3帖) | ||
| 所在階 / 向き | 地下階 / 北 | バルコニー面積 | - |
| 水道 / ガス | ガス【都市】 | ||
| 設備 | バス・トイレ別 | ||
| 当社物件ID | 158941476 | ||
建物の情報
| 建物名 | 京阪電気鉄道鴨東線 出町柳駅 徒歩18分 2階建 築62年 | ||
|---|---|---|---|
| 所在地 | 京都府京都市左京区下鴨蓼倉町 | ||
| 交通 | 京阪電気鉄道鴨東線 出町柳駅 徒歩18分 京都市烏丸線 北大路駅 徒歩23分 | ||
| 階数 | 2階建 | 総戸数 | - |
| 築年月 | 1964年11月 / 築62年 | エレベーター | - |
| 駐車場 | - | バイク置き場 | - |
| 駐輪場 | - | 管理人/管理会社 | - |
| 建物種別 | 一戸建て | 建物構造 | 木造 |
この部屋の取扱い不動産会社
| 会社名 | 株式会社 京都ライフ 出町柳店(賃貸スモッカ経由) | ||
|---|---|---|---|
| 所在地 | 京都市左京区田中関田町22-13 | 交通 | - |
| 営業時間 | - | 定休日 | - |
| 免許番号 | 京都府知事(11)第6353号 | 取引態様 | 仲介 |
| 不動産会社管理番号 | kyotolife_38955-A-12 | 当社管理番号 | 463 |
| 所属団体 | 京都府宅地建物取引業協会\n公益社団法人近畿地区不動産公正取引協議会 | ||
| 公正取引協議会 | 全国宅地建物取引業保証協会 | ||
| 取扱い物件情報 | 物件詳細へ | ||
※各種情報と現状に差異がある場合は、現状優先となります。問い合わせをすることで、より詳しい条件、情報を確認する事ができます。
提供:株式会社 京都ライフ 出町柳店(賃貸スモッカ経由)
この物件が気になったら掲載期限まであと5日
京阪電気鉄道鴨東線 出町柳駅 徒歩18分 2階建 築62年に条件(家賃・エリア)が近い物件一覧
| 写真 | 家賃 管理費等 | 敷金 礼金 | 間取り 専有面積 | 築年数 | 最寄り駅 所在地 | キープ | 詳細 |
|---|---|---|---|---|---|---|---|
マンション 京阪電気鉄道鴨東線 出町柳駅 徒歩25分 築37年(2LDK/1階) | |||||||
![]() | 9万円 8,000円 | 9万円 なし | 2LDK 55m2 | 築37年 | 京阪電気鉄道鴨東線 出町柳駅 徒歩25分 京阪電気鉄道鴨東線 神宮丸太町駅 徒歩32分 京都府京都市左京区浄土寺馬場町 | 詳細を見る | |
アパート 近鉄京都線 大久保駅(京都) 徒歩10分 新築(1LDK/2階) | |||||||
![]() | 9.65万円 5,500円 | なし 13万円 | 1LDK 43.93m2 | 新築 | 近鉄京都線 大久保駅(京都) 徒歩10分 近鉄京都線 久津川駅 徒歩14分 京都府宇治市大久保町 | 詳細を見る | |
マンション 近鉄京都線 小倉駅(京都) 徒歩5分 築13年(1LDK/4階) | |||||||
![]() | 7.4万円 6,000円 | 7.4万円 14.8万円 | 1LDK 45.36m2 | 築13年 | 近鉄京都線 小倉駅(京都) 徒歩5分 奈良線 JR小倉駅 徒歩6分 京都府宇治市小倉町西山 | 詳細を見る | |
アパート 京都市烏丸線 北大路駅 徒歩10分 築1年(1LDK/1階) | |||||||
![]() | 11万円 5,000円 | 5万円 なし | 1LDK 35.68m2 | 築1年 | 京都市烏丸線 北大路駅 徒歩10分 京都市烏丸線 鞍馬口駅 徒歩11分 京都府京都市北区紫野西御所田町 | 詳細を見る | |
アパート 京都市烏丸線 松ケ崎駅(京都) 徒歩8分 築24年(1K/2階) | |||||||
![]() | 4.7万円 4,000円 | なし 4.7万円 | 1K 20m2 | 築24年 | 京都市烏丸線 松ケ崎駅(京都) 徒歩8分 京都市烏丸線 北山駅(京都) 徒歩10分 京都府京都市左京区松ケ崎柳井田町 | 詳細を見る | |
マンション 奈良線 木幡駅(JR) 徒歩6分 築28年(1K/3階) | |||||||
![]() | 4.9万円 3,000円 | なし 10万円 | 1K 22.7m2 | 築28年 | 奈良線 木幡駅(JR) 徒歩6分 京阪電気鉄道宇治線 木幡駅(京阪) 徒歩6分 京都府宇治市木幡正中 | 詳細を見る | |
アパート レオパレス吉川(1K/2階) | |||||||
![]() | 6.3万円 7,000円 | なし 6.3万円 | 1K 19.87m2 | 築16年 | 地下鉄烏丸線 今出川駅 徒歩15分 地下鉄東西線 二条城前駅 徒歩20分 京阪鴨東線 出町柳駅 徒歩33分 京都府京都市上京区突抜町 | 詳細を見る | |
マンション 京都市烏丸線 北山駅(京都) 徒歩29分 築26年(1K/2階) | |||||||
![]() | 4.7万円 3,300円 | なし なし | 1K 22.25m2 | 築26年 | 京都市烏丸線 北山駅(京都) 徒歩29分 京都市烏丸線 北大路駅 徒歩35分 京都府京都市北区西賀茂南大栗町 | 詳細を見る | |









