賃貸マンション
プラティーク鶴見の賃貸物件情報(ワンルーム/4階)
| 家賃 | 管理費等 | 敷金 | 礼金 | 間取り | 専有面積 |
|---|---|---|---|---|---|
| 7.2万円 | 3,000円 | 7.2万円 | なし | ワンルーム | 19.25m2 |
入居決定でお祝い金最大100,000円
- 保証金
- -
- 償却・敷引
- -
- 築年数
- 築12年
- 所在階
- 4階
- 向き
- 北西
Point
女性限定マンション、モニター付きオートロック、防犯カメラ、駅近徒歩1分
提供:(株)アドバンス・シティ・プランニング銀座支店(SUUMO経由)

詳細情報 プラティーク鶴見
物件紹介
プラティーク鶴見は京急本線鶴見市場駅から徒歩1分にあり、駅近で通勤通学に便利なマンションです。
このお部屋は2階以上に位置しているので、通行人や周囲の住人からの視線が気になりにくく、防犯面でも安心。建物のエントランスはオートロックがついており、インターホンにはTVモニタもついているため、相手の顔を確認してから来客対応することができます。
人気の角部屋で周囲の居住者の生活音も気になりにくく、また、フローリングのお部屋なのでお掃除もラクラク。キッチンはシステムキッチン仕様になっていますので、お料理好きの方にもぴったり。バス・トイレは別なので、のんびりお風呂タイムも楽しめるでしょう。また、雨の日でも浴室乾燥機を使えば、お洗濯も問題ありません。
通信設備面では、インターネット接続が可能です(別途工事、契約料が必要な場合あり)。
このお部屋は2階以上に位置しているので、通行人や周囲の住人からの視線が気になりにくく、防犯面でも安心。建物のエントランスはオートロックがついており、インターホンにはTVモニタもついているため、相手の顔を確認してから来客対応することができます。
人気の角部屋で周囲の居住者の生活音も気になりにくく、また、フローリングのお部屋なのでお掃除もラクラク。キッチンはシステムキッチン仕様になっていますので、お料理好きの方にもぴったり。バス・トイレは別なので、のんびりお風呂タイムも楽しめるでしょう。また、雨の日でも浴室乾燥機を使えば、お洗濯も問題ありません。
通信設備面では、インターネット接続が可能です(別途工事、契約料が必要な場合あり)。
お金・契約の情報
※「-」と表示されているものは、実際は料金が発生するものもございます。詳細はお問い合わせください。
| 家賃 | 7.2万円 | 管理費・共益費 | 3,000円 |
|---|---|---|---|
| 敷金 | 7.2万円 | 礼金 | なし |
| 入居決定でお祝い金最大100,000円 | |||
| 保証金 | - | 償却・敷引 | - |
| 住宅保険料 | - | 更新料 | - |
| 保証会社利用 | 必須 | 保証会社名 | - |
| 保証会社費用 | - | 保証会社備考 | 保証会社利用必 エルズサポート 初回保証料:総賃料50% 月額保証料:総賃料1%/月 |
| 契約形態 | - | 契約期間 | - |
| 入居・引渡期間 | - | 現況 | - |
| 契約備考 | 巡回管理 合計5.5万円(内訳:鍵交換費用:38500円(税込)24時間サポート:16500円(税込)) ワンルーム 女性限定/単身者限定/事務所利用不可/ルームシェア不可 普通借家2年 損保【要】 バストイレ別、エアコン、フローリング、TVインターホン、浴室乾燥機、オートロック、室内洗濯置、システムキッチン、角住戸、温水洗浄便座、洗面所独立、駐輪場、光ファイバー、礼金不要、2面採光、防犯カメラ、IHクッキングヒーター、オール電化、全居室フローリング、ディンプルキー、駅まで平坦、ダブルロックキー、24時間換気システム、外壁コンクリート、3方角住戸、駅前、敷地内ごみ置き場、当社管理物件、都市ガス、玄関収納 入居日:'26年4月下旬 | ||
部屋の情報
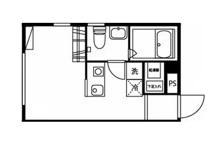
| 間取り | ワンルーム | 専有面積 | 19.25m2 |
|---|---|---|---|
| 所在階 / 向き | 4階 / 北西 | バルコニー面積 | - |
| 水道 / ガス | - | ||
| 設備 | バス・トイレ別、2階以上、オートロック、テレビドアホン、浴室乾燥機、インターネット対応、システムキッチン、エアコン、温水洗浄便座、角部屋、フローリング、洗髪洗面化粧台、オール電化、コンロ:IH、洗濯機:室内 | ||
| 当社物件ID | 160509544 | ||
建物の情報
| 建物名 | プラティーク鶴見 | ||
|---|---|---|---|
| 所在地 | 神奈川県横浜市鶴見区市場大和町 | ||
| 交通 | 京急本線 鶴見市場駅 徒歩1分 京急本線 八丁畷駅 徒歩10分 JR京浜東北線 鶴見駅 徒歩23分 | ||
| 階数 | 5階建 | 総戸数 | 22戸 |
| 築年月 | 2015年03月 / 築12年 | エレベーター | - |
| 駐車場 | なし | バイク置き場 | - |
| 駐輪場 | あり | 管理人/管理会社 | - |
| 周辺環境 | その他 すき家鶴見市場駅前店(飲食店)まで101m その他 まいばすけっと鶴見市場駅南店(スーパー)まで135m その他 キッチンオリジン鶴見市場店(飲食店)まで80m その他 ローソン鶴見市場大和町店(コンビニ)まで84m その他 華屋与兵衛鶴見市場店(飲食店)まで397m その他 鶴見市場郵便局(郵便局)まで224m | ||
| 建物種別 | マンション | 建物構造 | RC(鉄筋コンクリート) |
この部屋の取扱い不動産会社
| 会社名 | (株)アドバンス・シティ・プランニング銀座支店(SUUMO経由) | ||
|---|---|---|---|
| 所在地 | 東京都中央区銀座8-2-12 東京華僑会館3階 | 交通 | - |
| 営業時間 | 午前9:30~午後18:15 | 定休日 | 土日祝日 |
| 免許番号 | 東京都知事44219 | 取引態様 | 仲介 |
| 不動産会社管理番号 | 100491924511 | 当社管理番号 | 89 |
| 所属団体 | (公社)東京都宅地建物取引業協会会員 | ||
| 公正取引協議会 | (公社)首都圏不動産公正取引協議会加盟 | ||
| 取扱い物件情報 | 物件詳細へ | ||
※各種情報と現状に差異がある場合は、現状優先となります。問い合わせをすることで、より詳しい条件、情報を確認する事ができます。
提供:(株)アドバンス・シティ・プランニング銀座支店(SUUMO経由)
この物件が気になったら掲載期限まであと11日
プラティーク鶴見に条件(家賃・エリア)が近い物件一覧
| 写真 | 家賃 管理費等 | 敷金 礼金 | 間取り 専有面積 | 築年数 | 最寄り駅 所在地 | キープ | 詳細 |
|---|---|---|---|---|---|---|---|
アパート アルエット湘南(1K/1階) | |||||||
![]() | 5万円 なし | 10万円 5万円 | 1K 26.49m2 | 築24年 | 小田急電鉄江ノ島線 六会日大前駅 徒歩4分 神奈川県藤沢市亀井野2丁目 | 詳細を見る | |
マンション ヒルズ東寺尾(2DK/3階) | |||||||
![]() | 10万円 なし | 10万円 なし | 2DK 37.26m2 | 築32年 | JR京浜東北線 鶴見駅 徒歩13分 JR鶴見線 鶴見駅 徒歩13分 京急本線 京急鶴見駅 徒歩15分 神奈川県横浜市鶴見区東寺尾中台 | 詳細を見る | |
アパート ハイムミツダ(1K/2階) | |||||||
![]() | 6.5万円 なし | 6.5万円 6.5万円 | 1K 21.48m2 | 築43年 | 東急東横線 元住吉駅 徒歩8分 東急東横線 日吉駅(神奈川) 徒歩15分 JR南武線 武蔵小杉駅 徒歩26分 神奈川県川崎市中原区木月 | 詳細を見る | |
マンション スペーシア川崎Ⅲ(1K/9階) | |||||||
![]() | 8.2万円 1万円 | 8.2万円 8.2万円 | 1K 21.43m2 | 築19年 | 東海道本線 川崎駅 徒歩10分 神奈川県川崎市川崎区南町 | 詳細を見る | |
アパート ロイヤルハイツ4(1K/1階) | |||||||
![]() | 4.8万円 なし | 4.8万円 4.8万円 | 1K 23.18m2 | 築25年 | 小田急電鉄江ノ島線 六会日大前駅 徒歩7分 神奈川県藤沢市亀井野4丁目 | 詳細を見る | |
マンション リヴウェル湘南Ⅰ(3LDK/2階) | |||||||
![]() | 11.5万円 5,000円 | なし なし | 3LDK 68.92m2 | 築34年 | 小田急電鉄江ノ島線 湘南台駅 徒歩9分 横浜市ブルーライン 下飯田駅 徒歩20分 神奈川県藤沢市湘南台6丁目 | 詳細を見る | |







