賃貸マンション
アメイズの賃貸物件情報(ワンルーム/2階)
| 家賃 | 管理費等 | 敷金 | 礼金 | 間取り | 専有面積 |
|---|---|---|---|---|---|
| 6.3万円 | 2,000円 | 6.3万円 | なし | ワンルーム | 27m2 |
入居決定でお祝い金最大100,000円
- 保証金
- -
- 償却・敷引
- -
- 築年数
- 築36年
- 所在階
- 2階
- 向き
- 南東
Point
デザイナーズ賃貸マンション。システムキッチン、エアコン付、室内洗濯機置場(ドア付)、収納たっぷりで日当たり良好なお部屋です。駐輪場・バイク置場もあります。ぜひご覧下さい。
提供:清水商事(株)妙蓮寺店(SUUMO経由)

詳細情報 アメイズ
物件紹介
アメイズは京急大師線東門前駅から徒歩16分にあるマンションです。
このお部屋は2階以上に位置しているので、通行人や周囲の住人からの視線が気になりにくく、防犯面でも安心。インターホンにはTVモニタもついているため、相手の顔を確認してから来客対応することができます。
おしゃれなデザイナーズ物件!人気の南向きのお部屋。キッチンはシステムキッチン仕様になっていますので、お料理好きの方にもぴったり。また、浴室乾燥機付きで、雨の日でもお洗濯は問題ありません。
通信設備面では、インターネット接続が可能です。また、CATVにも対応しているので、おうち時間も充実するでしょう(別途工事、契約料が必要な場合あり)。
このお部屋は2階以上に位置しているので、通行人や周囲の住人からの視線が気になりにくく、防犯面でも安心。インターホンにはTVモニタもついているため、相手の顔を確認してから来客対応することができます。
おしゃれなデザイナーズ物件!人気の南向きのお部屋。キッチンはシステムキッチン仕様になっていますので、お料理好きの方にもぴったり。また、浴室乾燥機付きで、雨の日でもお洗濯は問題ありません。
通信設備面では、インターネット接続が可能です。また、CATVにも対応しているので、おうち時間も充実するでしょう(別途工事、契約料が必要な場合あり)。
お金・契約の情報
※「-」と表示されているものは、実際は料金が発生するものもございます。詳細はお問い合わせください。
| 家賃 | 6.3万円 | 管理費・共益費 | 2,000円 |
|---|---|---|---|
| 敷金 | 6.3万円 | 礼金 | なし |
| 入居決定でお祝い金最大100,000円 | |||
| 保証金 | - | 償却・敷引 | - |
| 住宅保険料 | - | 更新料 | - |
| 保証会社利用 | 必須 | 保証会社名 | - |
| 保証会社費用 | - | 保証会社備考 | 保証会社利用必 初回保証委託料:月額総賃料の50% 保証更新料:月/1,000円 引落手数料/440円 |
| 契約形態 | - | 契約期間 | - |
| 入居・引渡期間 | 即時 | 現況 | - |
| 契約備考 | コストコホールセールジャパン川まで693m/セブンイレブン川崎四谷上町店まで270m 合計7.79万円(内訳:24時間緊急サポート:18700円/賃貸保証料:35000円/鍵交換代:24200円) ワンルーム 法人希望/単身者可/事務所利用不可/ルームシェア不可 損保【要】 エアコン、ガスコンロ対応、クロゼット、TVインターホン、浴室乾燥機、室内洗濯置、シューズボックス、システムキッチン、2口コンロ、駐輪場、CATV、光ファイバー、即入居可、礼金不要、グリル付、保証人不要、敷金1ヶ月、バイク置場、デザイナーズ、ディンプルキー、3駅以上利用可、東南向き、当社管理物件、都市ガス、初期費用カード決済可 | ||
部屋の情報
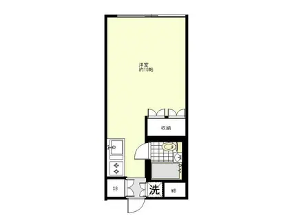
| 間取り | ワンルーム | 専有面積 | 27m2 |
|---|---|---|---|
| 所在階 / 向き | 2階 / 南東 | バルコニー面積 | - |
| 水道 / ガス | - | ||
| 設備 | 2階以上、テレビドアホン、浴室乾燥機、インターネット対応、システムキッチン、エアコン、南向き、2口コンロ、コンロ:ガス、デザイナーズ、CATV、洗濯機:室内 | ||
| 当社物件ID | 46577870 | ||
建物の情報
| 建物名 | アメイズ | ||
|---|---|---|---|
| 所在地 | 神奈川県川崎市川崎区四谷上町 | ||
| 交通 | 京急大師線 東門前駅 徒歩16分 京急大師線 川崎大師駅 徒歩16分 京急大師線 大師橋駅 徒歩17分 | ||
| 階数 | 3階建 | 総戸数 | 20戸 |
| 築年月 | 1990年03月 / 築36年 | エレベーター | - |
| 駐車場 | なし | バイク置き場 | あり |
| 駐輪場 | あり | 管理人/管理会社 | - |
| 周辺環境 | その他 川崎臨港警察署(警察署・交番)まで637m その他 日の出おふろセンター(その他)まで567m その他 セブンイレブン川崎四谷上町店(コンビニ)まで270m その他 川崎四谷上町郵便局(郵便局)まで286m その他 コストコホールセールジャパン川崎倉庫店(その他)まで693m その他 まいばすけっと観音2丁目店(スーパー)まで497m | ||
| 建物種別 | マンション | 建物構造 | RC(鉄筋コンクリート) |
この部屋の取扱い不動産会社
| 会社名 | 清水商事(株)妙蓮寺店(SUUMO経由) | ||
|---|---|---|---|
| 所在地 | 神奈川県横浜市港北区菊名1-9-28 | 交通 | - |
| 営業時間 | 9:00~18:00 日祝 10:00~18:00 | 定休日 | 水 |
| 免許番号 | 神奈川県知事4959 | 取引態様 | 仲介 |
| 不動産会社管理番号 | 100373212820 | 当社管理番号 | 89 |
| 所属団体 | (公社)神奈川県宅地建物取引業協会会員 | ||
| 公正取引協議会 | (公社)首都圏不動産公正取引協議会加盟 | ||
| 取扱い物件情報 | 物件詳細へ | ||
※各種情報と現状に差異がある場合は、現状優先となります。問い合わせをすることで、より詳しい条件、情報を確認する事ができます。
提供:清水商事(株)妙蓮寺店(SUUMO経由)
この物件が気になったら掲載期限まであと10日
アメイズに条件(家賃・エリア)が近い物件一覧
| 写真 | 家賃 管理費等 | 敷金 礼金 | 間取り 専有面積 | 築年数 | 最寄り駅 所在地 | キープ | 詳細 |
|---|---|---|---|---|---|---|---|
マンション サンシティ日吉(1LDK/3階) | |||||||
![]() | 9.4万円 なし | 9.4万円 なし | 1LDK 42m2 | 築35年 | グリーンライン 日吉本町駅 徒歩6分 グリーンライン 高田駅(神奈川) 徒歩17分 東急東横線 日吉駅(神奈川) 徒歩22分 神奈川県横浜市港北区日吉本町 | 詳細を見る | |
マンション バージュアル横濱鶴見II(1K/8階) | |||||||
![]() | 7.2万円 1万円 | なし 7.2万円 | 1K 20.6m2 | 築17年 | 京急本線 京急鶴見駅 徒歩4分 JR鶴見線 鶴見駅 徒歩6分 神奈川県横浜市鶴見区鶴見中央 | 詳細を見る | |
マンション セザール第3鶴見(ワンルーム/4階) | |||||||
![]() | 6.7万円 2,000円 | 6.7万円 6.7万円 | ワンルーム 19.48m2 | 築35年 | 京急本線 京急鶴見駅 徒歩5分 JR京浜東北線 鶴見駅 徒歩6分 JR鶴見線 国道駅 徒歩15分 神奈川県横浜市鶴見区鶴見中央 | 詳細を見る | |
アパート ウエストバード(1LDK/1階) | |||||||
![]() | 10.1万円 7,500円 | なし 10.1万円 | 1LDK 40.18m2 | 築13年 | 京浜東北・根岸線 山手駅 徒歩13分 神奈川県横浜市中区西之谷町 | 詳細を見る | |
マンション ライオンズマンション川崎貝塚第2(ワンルーム/1階) | |||||||
![]() | 5.2万円 6,000円 | なし なし | ワンルーム 17.28m2 | 築34年 | 京急大師線 京急川崎駅 徒歩15分 京急本線 八丁畷駅 徒歩15分 JR京浜東北線 川崎駅 徒歩20分 神奈川県川崎市川崎区貝塚 | 詳細を見る | |
アパート ハーミットクラブハウス追浜IIA棟(ワンルーム/1階) | |||||||
![]() | 5.8万円 2,000円 | なし なし | ワンルーム 17.74m2 | 築5年 | 京急本線 追浜駅 徒歩11分 京急逗子線 六浦駅 徒歩14分 京急本線 金沢八景駅 徒歩21分 神奈川県横浜市金沢区六浦東 | 詳細を見る | |
マンション SELENA(1K/5階) | |||||||
![]() | 8.2万円 5,000円 | 8.2万円 8.2万円 | 1K 27.82m2 | 築19年 | 京急本線 屏風浦駅 徒歩9分 JR京浜東北線 新杉田駅 徒歩11分 京急本線 杉田駅(神奈川) 徒歩14分 神奈川県横浜市磯子区森 | 詳細を見る | |
マンション AZEST阪東橋II(ワンルーム/5階) | |||||||
![]() | 8.65万円 1万円 | なし 8.65万円 | ワンルーム 21.72m2 | 築1年 | ブルーライン 阪東橋駅 徒歩5分 京急本線 黄金町駅 徒歩10分 ブルーライン 伊勢佐木長者町駅 徒歩14分 神奈川県横浜市南区浦舟町 | 詳細を見る | |








