賃貸マンション
グリーンゲート清玄の賃貸物件情報(3LDK/3階)
| 家賃 | 管理費等 | 敷金 | 礼金 | 間取り | 専有面積 |
|---|---|---|---|---|---|
| 6.2万円 | 5,000円 | なし | なし | 3LDK | 60.9m2 |
入居決定でお祝い金最大100,000円
- 保証金
- -
- 償却・敷引
- -
- 築年数
- 築31年
- 所在階
- 3階
- 向き
- -
Point
ピタットハウス垂水店ではインターネット掲載物件は他社掲載分を含めエリア問わずご紹介可能です。何社も不動産会社を回る手間なくお部屋探しができます!
提供:ピタットハウス岡本店(株)ライブデザイン(SUUMO経由)

詳細情報 グリーンゲート清玄
物件紹介
グリーンゲート清玄はJR山陽本線塩屋駅から徒歩25分にあるマンションです。
このお部屋は2階以上に位置しているので、通行人や周囲の住人からの視線が気になりにくく、防犯面でも安心。インターホンにはTVモニタもついているため、相手の顔を確認してから来客対応することができます。
おしゃれなデザイナーズ物件!人気の南向きのお部屋。また、フローリングなのでお掃除もラクラク。キッチンはシステムキッチン仕様になっていますので、お料理好きの方にもぴったり。また、バス・トイレは別で、のんびりお風呂タイムも楽しめるでしょう。
通信設備面では、インターネット接続が可能です。また、BSアンテナ・CSアンテナがありCATVにも対応しているので、おうち時間も充実するでしょう(別途工事、契約料が必要な場合あり)。
ペット飼育の相談ができますので、あなたの大切な家族の一員も快適に暮らせるか、ぜひ確認してみてください。
このお部屋は2階以上に位置しているので、通行人や周囲の住人からの視線が気になりにくく、防犯面でも安心。インターホンにはTVモニタもついているため、相手の顔を確認してから来客対応することができます。
おしゃれなデザイナーズ物件!人気の南向きのお部屋。また、フローリングなのでお掃除もラクラク。キッチンはシステムキッチン仕様になっていますので、お料理好きの方にもぴったり。また、バス・トイレは別で、のんびりお風呂タイムも楽しめるでしょう。
通信設備面では、インターネット接続が可能です。また、BSアンテナ・CSアンテナがありCATVにも対応しているので、おうち時間も充実するでしょう(別途工事、契約料が必要な場合あり)。
ペット飼育の相談ができますので、あなたの大切な家族の一員も快適に暮らせるか、ぜひ確認してみてください。
お金・契約の情報
※「-」と表示されているものは、実際は料金が発生するものもございます。詳細はお問い合わせください。
| 家賃 | 6.2万円 | 管理費・共益費 | 5,000円 |
|---|---|---|---|
| 敷金 | なし | 礼金 | なし |
| 入居決定でお祝い金最大100,000円 | |||
| 保証金 | - | 償却・敷引 | - |
| 住宅保険料 | - | 更新料 | - |
| 保証会社利用 | 利用可 | 保証会社名 | - |
| 保証会社費用 | - | 保証会社備考 | 保証会社利用可 初回加入料月額50% 更新料 11,000円/年 |
| 契約形態 | - | 契約期間 | - |
| 入居・引渡期間 | - | 現況 | - |
| 入居可能条件 | ペット相談 | ||
| 契約備考 | 物件情報ページをご覧いただき誠にありがとうございます!インターネットで募集中の物件は全て弊社でご紹介可能です!もちろんまとめてご案内も可能です!また、他社様でご紹介されている物件も弊社でご紹介の場合、様々な交渉が可能な物件も多数ございます。お問い合わせは【TEL:】までお電話ください!※当日のご内見予約も可能!是非、ピタットハウス垂水店へお越しください! 3LDK 二人入居可/ペット相談 普通借家2年 損保【2万円2年】 バストイレ別、バルコニー、ガスコンロ対応、クロゼット、フローリング、シャワー付洗面台、室内洗濯置、陽当り良好、システムキッチン、脱衣所、洗面所独立、洗面化粧台、駐輪場、閑静な住宅地、最上階、3口以上コンロ、ペット相談、グリル付、バイク置場、2沿線利用可、ネット専用回線、内装リフォーム済、一部フローリング、3駅以上利用可、バス停徒歩3分以内、上階無し、LDK12畳以上、和室、リノベーション、敷金・礼金不要、保証会社利用可、IT重説対応物件、初期費用カード決済可、通風良好 入居日:'26年7月上旬 | ||
部屋の情報
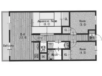
| 間取り | 3LDK | 専有面積 | 60.9m2 |
|---|---|---|---|
| 所在階 / 向き | 3階 / - | バルコニー面積 | - |
| 水道 / ガス | - | ||
| 設備 | バス・トイレ別、2階以上、インターネット対応、システムキッチン、バルコニー、フローリング、洗髪洗面化粧台、2口コンロ、コンロ:ガス、洗濯機:室内 | ||
| 当社物件ID | 22997682 | ||
建物の情報
| 建物名 | グリーンゲート清玄 | ||
|---|---|---|---|
| 所在地 | 兵庫県神戸市垂水区清玄町 | ||
| 交通 | JR山陽本線 塩屋駅(兵庫) 徒歩25分 地下鉄西神・山手線 名谷駅 徒歩35分 JR山陽本線 須磨駅 バス乗車時間:20分 最寄りバス停で下車 徒歩2分 | ||
| 階数 | 3階建 | 総戸数 | 41戸 |
| 築年月 | 1995年12月 / 築31年 | エレベーター | - |
| 駐車場 | 空有 11000円 | バイク置き場 | あり |
| 駐輪場 | あり | 管理人/管理会社 | - |
| 周辺環境 | その他 まつざきクリニック(病院)まで764m その他 コープ桃山台(スーパー)まで1281m その他 セブンイレブン 神戸垂水朝谷町店(コンビニ)まで1383m その他 トーホーストア 塩屋北店(スーパー)まで1446m その他 ファミリーマート 垂水桃山台店(コンビニ)まで918m その他 業務スーパー 塩屋北店(スーパー)まで1107m | ||
| 建物種別 | マンション | 建物構造 | RC(鉄筋コンクリート) |
この部屋の取扱い不動産会社
| 会社名 | ピタットハウス姫路駅南口店(株)ライブデザイン(SUUMO経由) | ||
|---|---|---|---|
| 所在地 | 兵庫県姫路市南駅前町 100 ホテル日航姫路1階 | 交通 | - |
| 営業時間 | 09:00~19:00 | 定休日 | 年中無休 |
| 免許番号 | 国土交通大臣10464 | 取引態様 | 仲介 |
| 不動産会社管理番号 | 100498056058 | 当社管理番号 | 89 |
| 所属団体 | (公社)全日本不動産協会兵庫県本部会員 | ||
| 公正取引協議会 | (公社)近畿地区不動産公正取引協議会加盟 | ||
| 取扱い物件情報 | 物件詳細へ | ||
※各種情報と現状に差異がある場合は、現状優先となります。問い合わせをすることで、より詳しい条件、情報を確認する事ができます。
提供:ピタットハウス姫路駅南口店(株)ライブデザイン(SUUMO経由)
この物件が気になったら掲載期限まであと10日
グリーンゲート清玄に条件(家賃・エリア)が近い物件一覧
| 写真 | 家賃 管理費等 | 敷金 礼金 | 間取り 専有面積 | 築年数 | 最寄り駅 所在地 | キープ | 詳細 |
|---|---|---|---|---|---|---|---|
マンション パールヒル清水ヶ丘(3LDK/2階) | |||||||
![]() | 5.8万円 7,000円 | なし なし | 3LDK 63m2 | 築37年 | 兵庫県神戸市垂水区清水が丘3丁目 | 詳細を見る | |
アパート CREST垂水(1LDK/3階) | |||||||
![]() | 8.8万円 5,500円 | 3万円 8.8万円 | 1LDK 38.91m2 | 築3年 | 兵庫県神戸市垂水区神陵台2丁目 | 詳細を見る | |
アパート フェリオ朝霧(1K/2階) | |||||||
![]() | 4.8万円 2,000円 | なし 9.6万円 | 1K 29.39m2 | 築10年 | 山陽電気鉄道本線 大蔵谷駅 徒歩16分 山陽本線 朝霧駅 徒歩19分 兵庫県明石市朝霧町3丁目 | 詳細を見る | |
アパート ジェルメ・ウエスト2(1LDK/1階) | |||||||
![]() | 5.4万円 3,200円 | なし なし | 1LDK 46.49m2 | 築20年 | 山陽本線 土山駅 徒歩25分 兵庫県加古郡稲美町六分一 | 詳細を見る | |
マンション 兵庫県神戸市垂水区 築56年(3LDK/4階) | |||||||
![]() | 4.5万円 1.5万円 | なし なし | 3LDK 70m2 | 築56年 | 兵庫県神戸市垂水区神陵台4丁目 | 詳細を見る | |
マンション メゾンドアルファ末広(2LDK/1階) | |||||||
![]() | 8万円 6,000円 | 2万円 なし | 2LDK 61.1m2 | 築8年 | 神戸電鉄粟生線 大村駅(兵庫) 徒歩11分 神戸電鉄粟生線 三木駅(神戸電鉄) 徒歩11分 神戸電鉄粟生線 三木上の丸駅 徒歩17分 兵庫県三木市末広 | 詳細を見る | |
アパート フジパレス西宮ノース(1K/2階) | |||||||
![]() | 7.2万円 4,100円 | なし 10万円 | 1K 31.02m2 | 築13年 | 東海道本線 西宮駅(JR) 徒歩9分 阪急電鉄神戸線 西宮北口駅 徒歩13分 兵庫県西宮市荒木町 | 詳細を見る | |
アパート グランアヴァンティB棟(2LDK/1階) | |||||||
![]() | 9.5万円 5,500円 | 3万円 18万円 | 2LDK 52.39m2 | 築15年 | 山陽電鉄本線 中八木駅 徒歩12分 山陽電鉄本線 藤江駅 徒歩17分 JR山陽本線 大久保駅(兵庫) 徒歩20分 兵庫県明石市大久保町谷八木 | 詳細を見る | |








