賃貸マンション
BPRレジデンス大島の賃貸物件情報(1K/6階)
| 家賃 | 管理費等 | 敷金 | 礼金 | 間取り | 専有面積 |
|---|---|---|---|---|---|
| 12.6万円 | 1万円 | 12.6万円 | なし | 1K | 25.15m2 |
入居決定でお祝い金最大100,000円
Point
詳細はアパマンショップ蒲田店へお問い合わせください!
提供:アパマンショップ大森店

詳細情報 BPRレジデンス大島
物件紹介
BPRレジデンス大島は東京都新宿線大島駅から徒歩7分にあり、駅近で通勤通学に便利なマンションです。
このお部屋は2階以上に位置しているので、通行人や周囲の住人からの視線が気になりにくく、防犯面でも安心。建物のエントランスはオートロックがついており、インターホンにはTVモニタもついているため、相手の顔を確認してから来客対応することができます。
人気の南向きのお部屋。また、フローリングなのでお掃除もラクラク。キッチンはシステムキッチン仕様になっていますので、お料理好きの方にもぴったり。バス・トイレは別なので、のんびりお風呂タイムも楽しめるでしょう。また、雨の日でも浴室乾燥機を使えば、お洗濯も問題ありません。
通信設備面では、インターネットが無料で使えるので、月々の出費を抑えられるのも魅力です。また、BSアンテナ・CSアンテナもありますので、おうち時間も充実するでしょう(別途工事、BS・CSの契約料等が必要な場合あり)。
建物にはエレベーターがついているので、重い荷物があっても安心。共用部には宅配ボックスが設定されているので、不在の時にも荷物を受け取ることができます。また、ペット飼育の相談ができますので、あなたの大切な家族の一員も快適に暮らせるか、ぜひ確認してみてください。
このお部屋は2階以上に位置しているので、通行人や周囲の住人からの視線が気になりにくく、防犯面でも安心。建物のエントランスはオートロックがついており、インターホンにはTVモニタもついているため、相手の顔を確認してから来客対応することができます。
人気の南向きのお部屋。また、フローリングなのでお掃除もラクラク。キッチンはシステムキッチン仕様になっていますので、お料理好きの方にもぴったり。バス・トイレは別なので、のんびりお風呂タイムも楽しめるでしょう。また、雨の日でも浴室乾燥機を使えば、お洗濯も問題ありません。
通信設備面では、インターネットが無料で使えるので、月々の出費を抑えられるのも魅力です。また、BSアンテナ・CSアンテナもありますので、おうち時間も充実するでしょう(別途工事、BS・CSの契約料等が必要な場合あり)。
建物にはエレベーターがついているので、重い荷物があっても安心。共用部には宅配ボックスが設定されているので、不在の時にも荷物を受け取ることができます。また、ペット飼育の相談ができますので、あなたの大切な家族の一員も快適に暮らせるか、ぜひ確認してみてください。
お金・契約の情報
※「-」と表示されているものは、実際は料金が発生するものもございます。詳細はお問い合わせください。
| 家賃 | 12.6万円 | 管理費・共益費 | 1万円 |
|---|---|---|---|
| 敷金 | 12.6万円 | 礼金 | なし |
| 入居決定でお祝い金最大100,000円 | |||
| 保証金 | - | 償却・敷引 | - |
| 住宅保険料 | 1.655万円(2年) | 更新料 | - |
| 保証会社利用 | 必須 | 保証会社名 | エポスカード(RP) |
| 保証会社費用 | - | 保証会社備考 | 保証料:賃料等の50%(最低2万)、月額保証料:賃料等の1%(更新料無) |
| 契約形態 | - | 契約期間 | 2年 |
| 入居・引渡期間 | 相談 | 現況 | - |
| 契約備考 | 敷金積み増し:ペット飼育 2.00カ月、小型犬:可、大型犬:不可、猫:可、その他:小型犬1匹もしくは猫2匹まで エアコン清掃費 11000円/清掃費 38500円 | ||
部屋の情報
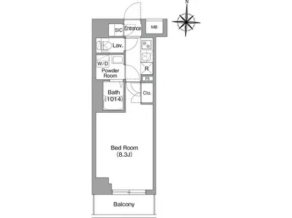
| 間取り | 1K | 専有面積 | 25.15m2 |
|---|---|---|---|
| 間取り詳細 | 洋室(8.3帖) | ||
| 所在階 / 向き | 6階 / 南 | バルコニー面積 | - |
| 水道 / ガス | - | ||
| 設備 | バス・トイレ別、オートロック、宅配ボックス、浴室乾燥機、インターネット対応、システムキッチン、エレベーター、温水洗浄便座、フローリング、CSアンテナ、BSアンテナ、洗濯機:室内 | ||
| 当社物件ID | 159627889 | ||
建物の情報
| 建物名 | BPRレジデンス大島 | ||
|---|---|---|---|
| 所在地 | 東京都江東区大島8丁目 | ||
| 交通 | 東京都新宿線 大島駅(東京) 徒歩7分 | ||
| 階数 | 6階建 | 総戸数 | 71戸 |
| 築年月 | 2025年12月 / 築1年 | エレベーター | あり |
| 駐車場 | - | バイク置き場 | あり |
| 駐輪場 | あり | 管理人/管理会社 | - |
| 周辺環境 | その他 (株)ダイエー/東大島店 徒歩5分(367m) その他 サンドラッグ 東大島店 徒歩5分(329m) その他 ウエルシアダイエー東大島店 徒歩5分(377m) その他 セブン-イレブン 江東大島8丁目店 徒歩5分(381m) その他 スーパーマーケット リコス 大島5丁目店 徒歩4分(313m) その他 ローソンストア100 東大島店 徒歩6分(416m) その他 くすりの福太郎大島5丁目店 徒歩5分(325m) その他 ローソン東大島駅前店 徒歩6分(438m) | ||
| 建物種別 | マンション | 建物構造 | RC(鉄筋コンクリート) |
この部屋の取扱い不動産会社
| 会社名 | アパマンショップ蒲田店 | ||
|---|---|---|---|
| 所在地 | 東京都大田区西蒲田7丁目 47-1第七東動ビル2階 | 交通 | 京浜東北・根岸線蒲田から徒歩1分 |
| 営業時間 | 10:00〜18:30 | 定休日 | - |
| 免許番号 | 東京都知事(5)83411 | 取引態様 | 仲介 |
| 不動産会社管理番号 | 111147862 | 当社管理番号 | 4 |
| 所属団体 | (公社)全日本不動産協会東京都本部 | ||
| 公正取引協議会 | (公社) 首都圏不動産公正取引協議会加盟 | ||
| 取扱い物件情報 | 物件詳細へ | ||
※各種情報と現状に差異がある場合は、現状優先となります。問い合わせをすることで、より詳しい条件、情報を確認する事ができます。
提供:アパマンショップ蒲田店
この物件が気になったら掲載期限まであと4日
BPRレジデンス大島の空き部屋一覧
全部で26の空き部屋があります。
BPRレジデンス大島に条件(家賃・エリア)が近い物件一覧
| 写真 | 家賃 管理費等 | 敷金 礼金 | 間取り 専有面積 | 築年数 | 最寄り駅 所在地 | キープ | 詳細 |
|---|---|---|---|---|---|---|---|
マンション MODULOR久が原(ワンルーム/1階) | |||||||
![]() | 10.6万円 1万円 | なし なし | ワンルーム 22.41m2 | 築22年 | 東急池上線 千鳥町駅 徒歩6分 東急池上線 池上駅 徒歩10分 東京都大田区千鳥1丁目 | 詳細を見る | |
マンション SEED JUST B-BASE Ⅱ(1LDK/3階) | |||||||
![]() | 10.1万円 1.5万円 | 10.1万円 10.1万円 | 1LDK 27.92m2 | 新築 | 東京モノレール羽田 昭和島駅 徒歩11分 京浜急行電鉄本線 梅屋敷駅(東京) 徒歩19分 東京都大田区大森南4丁目 | 詳細を見る | |
マンション ラ・メゾン足柄(2LDK/3階) | |||||||
![]() | 15.7万円 3,000円 | 15.7万円 15.7万円 | 2LDK 54.74m2 | 築34年 | JR京浜東北線 蒲田駅 徒歩6分 京急本線 京急蒲田駅 徒歩14分 京急本線 梅屋敷駅(東京) 徒歩18分 東京都大田区蒲田 | 詳細を見る | |
アパート M SONIA KUGAHARA(2LDK/1階) | |||||||
![]() | 16.5万円 3,000円 | 16.5万円 33万円 | 2LDK 49.27m2 | 築1年 | 東急池上線 久が原駅 徒歩8分 東急池上線 御嶽山駅 徒歩9分 東京都大田区西嶺町 | 詳細を見る | |
マンション 上池台コータスⅡ(2DK/1階) | |||||||
![]() | 12万円 1万円 | なし なし | 2DK 40.95m2 | 築30年 | 東京都浅草線 西馬込駅 徒歩12分 東急池上線 洗足池駅 徒歩17分 東急池上線 長原駅(東京) 徒歩18分 東京都大田区上池台5丁目 | 詳細を見る | |
マンション ジェノヴィア蒲田3スカイガーデン(1K/4階) | |||||||
![]() | 12万円 1.5万円 | なし なし | 1K 25.41m2 | 築5年 | 京浜急行電鉄本線 京急蒲田駅 徒歩6分 京浜急行電鉄空港線 糀谷駅 徒歩10分 京浜東北・根岸線 蒲田駅 徒歩15分 東京都大田区南蒲田2丁目 | 詳細を見る | |
マンション シャルマンドミール(2LDK/2階) | |||||||
![]() | 18.2万円 3,000円 | 18.2万円 18.2万円 | 2LDK 57.22m2 | 築11年 | 京浜急行電鉄本線 大森町駅 徒歩14分 京浜急行電鉄本線 梅屋敷駅(東京) 徒歩15分 東京都大田区大森南1丁目 | 詳細を見る | |







