賃貸マンション
ガリシアヒルズ西麻布の賃貸物件情報(ワンルーム/8階)
| 家賃 | 管理費等 | 敷金 | 礼金 | 間取り | 専有面積 |
|---|---|---|---|---|---|
| 10.8万円 | 1.2万円 | 10.8万円 | 10.8万円 | ワンルーム | 24.69m2 |
入居決定でお祝い金最大100,000円
- 保証金
- -
- 償却・敷引
- -
- 築年数
- 築20年
- 所在階
- 8階
- 向き
- 南
Point
まずはお問い合わせ!
不動産会社は街のプロ、あなたに合った物件がきっと見つかります。
提供:(株)BRISS(SUUMO経由)

詳細情報 ガリシアヒルズ西麻布
物件紹介
ガリシアヒルズ西麻布は都営大江戸線六本木駅から徒歩10分にあり、駅近で通勤通学に便利なマンションです。
このお部屋は2階以上に位置しているので、通行人や周囲の住人からの視線が気になりにくく、防犯面でも安心。建物のエントランスはオートロックがついており、インターホンにはTVモニタもついているため、相手の顔を確認してから来客対応することができます。
人気の南向き・フローリングのお部屋。角部屋でもあるため、周囲の居住者の生活音も気になりにくい場所です。キッチンはシステムキッチン仕様になっていますので、お料理好きの方にもぴったり。バス・トイレは別なので、のんびりお風呂タイムも楽しめるでしょう。また、雨の日でも浴室乾燥機を使えば、お洗濯も問題ありません。
通信設備面では、インターネット接続が可能です。また、BSアンテナ・CSアンテナもありますので、おうち時間も充実するでしょう(別途工事、契約料が必要な場合あり)。
建物にはエレベーターがついているので、重い荷物があっても安心。共用部には宅配ボックスが設定されているので、不在の時にも荷物を受け取ることができます。
このお部屋は2階以上に位置しているので、通行人や周囲の住人からの視線が気になりにくく、防犯面でも安心。建物のエントランスはオートロックがついており、インターホンにはTVモニタもついているため、相手の顔を確認してから来客対応することができます。
人気の南向き・フローリングのお部屋。角部屋でもあるため、周囲の居住者の生活音も気になりにくい場所です。キッチンはシステムキッチン仕様になっていますので、お料理好きの方にもぴったり。バス・トイレは別なので、のんびりお風呂タイムも楽しめるでしょう。また、雨の日でも浴室乾燥機を使えば、お洗濯も問題ありません。
通信設備面では、インターネット接続が可能です。また、BSアンテナ・CSアンテナもありますので、おうち時間も充実するでしょう(別途工事、契約料が必要な場合あり)。
建物にはエレベーターがついているので、重い荷物があっても安心。共用部には宅配ボックスが設定されているので、不在の時にも荷物を受け取ることができます。
お金・契約の情報
※「-」と表示されているものは、実際は料金が発生するものもございます。詳細はお問い合わせください。
| 家賃 | 10.8万円 | 管理費・共益費 | 1.2万円 |
|---|---|---|---|
| 敷金 | 10.8万円 | 礼金 | 10.8万円 |
| 入居決定でお祝い金最大100,000円 | |||
| 保証金 | - | 償却・敷引 | - |
| 住宅保険料 | - | 更新料 | - |
| 保証会社利用 | 必須 | 保証会社名 | - |
| 保証会社費用 | - | 保証会社備考 | 保証会社利用必 お客様の職業、収入などにより使用する保証会社は異なります。 保証料は総賃料の60%(法人・事業用の場 |
| 契約形態 | - | 契約期間 | - |
| 入居・引渡期間 | 相談 | 現況 | - |
| 契約備考 | 業界歴10年以上のスタッフが揃っておりますので港区の賃貸を探すならBRISSにお任せ下さい。港区の物件は1件残さずご紹介可能。もちろん他区も対応可能。審査、初期費用、家賃など全てのご要望に全力でお答え致します。疑問、不安がございましたら遠慮なくお申し付け下さい。必ずご解決致します。是非、法人様もお問合せ下さい。各社宅代行様ご対応可能です。大手法人様、社宅代行様との社宅提携も行っております。 合計3.85万円(内訳:鍵交換代 38500円税込) BRIプライムサービス 2000円/月額 更新料 1ヶ月 ワンルーム 普通借家2年 損保【2万円2年】 バストイレ別、バルコニー、エアコン、ガスコンロ対応、クロゼット、フローリング、TVインターホン、浴室乾燥機、オートロック、室内洗濯置、シューズボックス、システムキッチン、南向き、角住戸、温水洗浄便座、エレベーター、洗面所独立、2口コンロ、駐輪場、宅配ボックス、光ファイバー、外壁タイル張り、2面採光、BS・CS、防犯カメラ、照明付、全居室収納、分譲賃貸、全居室洋室、保証人不要、敷金1ヶ月、24時間緊急通報システム、ディンプルキー、CS、ネット専用回線、ダブルロックキー、24時間換気システム、人感照明センサー、ISDN対応、3駅以上利用可、3沿線以上利用可、駅徒歩10分以内、24時間ゴミ出し可、敷地内ごみ置き場、都市ガス、天井高シューズクロゼット、BS、高速ネット対応、LAN、礼金1ヶ月、初期費用カード決済可 | ||
部屋の情報
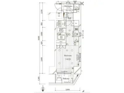
| 間取り | ワンルーム | 専有面積 | 24.69m2 |
|---|---|---|---|
| 所在階 / 向き | 8階 / 南 | バルコニー面積 | - |
| 水道 / ガス | - | ||
| 設備 | バス・トイレ別、2階以上、オートロック、テレビドアホン、宅配ボックス、浴室乾燥機、インターネット対応、システムキッチン、エアコン、エレベーター、温水洗浄便座、南向き、角部屋、バルコニー、フローリング、洗髪洗面化粧台、2口コンロ、コンロ:ガス、CSアンテナ、BSアンテナ、洗濯機:室内 | ||
| 当社物件ID | 160236959 | ||
建物の情報
| 建物名 | ガリシアヒルズ西麻布 | ||
|---|---|---|---|
| 所在地 | 東京都港区西麻布 | ||
| 交通 | 都営大江戸線 六本木駅 徒歩10分 東京メトロ千代田線 乃木坂駅 徒歩10分 東京メトロ銀座線 表参道駅 徒歩12分 | ||
| 階数 | 地下1地上14階建 | 総戸数 | - |
| 築年月 | 2007年01月 / 築20年 | エレベーター | あり |
| 駐車場 | なし | バイク置き場 | - |
| 駐輪場 | あり | 管理人/管理会社 | - |
| 周辺環境 | その他 まいばすけっと西麻布3丁目店(スーパー)まで480m その他 ザ・ガーデン自由が丘広尾店(スーパー)まで557m その他 MEIDI-YA STORE六本木ストアー(スーパー)まで751m その他 ナチュラルローソン西麻布店(コンビニ)まで107m その他 セブンイレブン西麻布4丁目店(コンビニ)まで112m その他 成城石井西麻布店(スーパー)まで112m | ||
| 建物種別 | マンション | 建物構造 | RC(鉄筋コンクリート) |
この部屋の取扱い不動産会社
| 会社名 | (株)BRISS(SUUMO経由) | ||
|---|---|---|---|
| 所在地 | 東京都中央区築地2-10-10 GY築地ビル4階 | 交通 | - |
| 営業時間 | 10:00~18:00 | 定休日 | なし |
| 免許番号 | 東京都知事103074 | 取引態様 | 仲介 |
| 不動産会社管理番号 | 100483587158 | 当社管理番号 | 89 |
| 所属団体 | (公社)全日本不動産協会東京都本部会員 | ||
| 公正取引協議会 | (公社)首都圏不動産公正取引協議会加盟 | ||
| 取扱い物件情報 | 物件詳細へ | ||
※各種情報と現状に差異がある場合は、現状優先となります。問い合わせをすることで、より詳しい条件、情報を確認する事ができます。
提供:(株)BRISS(SUUMO経由)
この物件が気になったら掲載期限まであと10日
ガリシアヒルズ西麻布に条件(家賃・エリア)が近い物件一覧
| 写真 | 家賃 管理費等 | 敷金 礼金 | 間取り 専有面積 | 築年数 | 最寄り駅 所在地 | キープ | 詳細 |
|---|---|---|---|---|---|---|---|
マンション ビバリーホームズ中延Ⅱ(1K/4階) | |||||||
![]() | 9.5万円 1万円 | 9.5万円 なし | 1K 18.65m2 | 築17年 | 東京都浅草線 馬込駅 徒歩7分 埼京線 西大井駅 徒歩9分 東京都浅草線 中延駅 徒歩9分 東京都品川区西大井6丁目 | 詳細を見る | |
マンション ヴェラハイツ日本橋蛎殻町(ワンルーム/2階) | |||||||
![]() | 10.5万円 1.5万円 | 10.5万円 10.5万円 | ワンルーム 26.9m2 | 築43年 | 東京地下鉄日比谷線 茅場町駅 徒歩5分 東京地下鉄東西線 茅場町駅 徒歩5分 東京都浅草線 人形町駅 徒歩7分 東京都中央区日本橋蛎殻町1丁目 | 詳細を見る | |
マンション ONE ROOF FLAT TSUKISHIMA(1K/2階) | |||||||
![]() | 12.9万円 1.5万円 | 12.9万円 12.9万円 | 1K 25.02m2 | 築11年 | 東京地下鉄有楽町線 月島駅 徒歩4分 東京都大江戸線 月島駅 徒歩4分 東京都大江戸線 勝どき駅 徒歩6分 東京都中央区月島4丁目 | 詳細を見る | |
マンション クロスレジデンス神田神保町(1DK/11階) | |||||||
![]() | 16万円 1.2万円 | 16万円 16万円 | 1DK 25.16m2 | 築2年 | 東京地下鉄半蔵門線 神保町駅 徒歩1分 東京地下鉄丸ノ内線 淡路町駅 徒歩8分 東京地下鉄東西線 九段下駅 徒歩9分 東京都千代田区神田神保町1丁目 | 詳細を見る | |
マンション アーバネックス森下ウエスト(1DK/10階) | |||||||
![]() | 14.2万円 1万円 | 14.2万円 なし | 1DK 25.77m2 | 築3年 | 東京都新宿線 森下駅(東京) 徒歩6分 東京都江東区新大橋2丁目 | 詳細を見る | |
マンション パークアクシス小伝馬町(ワンルーム/3階) | |||||||
![]() | 17.4万円 1.1万円 | 17.4万円 なし | ワンルーム 31.28m2 | 築10年 | 東京地下鉄日比谷線 小伝馬町駅 徒歩3分 総武本線 馬喰町駅 徒歩5分 山手線 秋葉原駅 徒歩11分 東京都千代田区岩本町1丁目 | 詳細を見る | |
マンション プレール・ドゥーク銀座イースト 6階(1K/6階) | |||||||
![]() | 10万円 1万円 | なし 10万円 | 1K 23.35m2 | 築22年 | 東京メトロ有楽町線 新富町駅(東京) 徒歩6分 JR京葉線 八丁堀駅(東京) 徒歩11分 東京メトロ日比谷線 八丁堀駅(東京) 徒歩11分 東京都中央区湊 | 詳細を見る | |
マンション KDXレジデンス神田(ワンルーム/6階) | |||||||
![]() | 17万円 1万円 | 17万円 17万円 | ワンルーム 31.56m2 | 築11年 | 山手線 神田駅(東京) 徒歩3分 京浜東北・根岸線 神田駅(東京) 徒歩3分 東京地下鉄銀座線 神田駅(東京) 徒歩6分 東京都千代田区内神田2丁目 | 詳細を見る | |









