賃貸アパート
CASA D` ORO清水丘の賃貸物件情報(1LDK/1階)
| 家賃 | 管理費等 | 敷金 | 礼金 | 間取り | 専有面積 |
|---|---|---|---|---|---|
| 7.15万円 | 5,100円 | なし | 7万円 | 1LDK | 40.12m2 |
入居決定でお祝い金最大100,000円
- 保証金
- -
- 償却・敷引
- -
- 築年数
- 築4年
- 所在階
- 1階
- 向き
- 北
Point
西成区周辺のお部屋探しはセンチュリー21未来ホームズへ。現地案内・お迎え承ります。お車でお越しのお客様にはお客様専用駐車場もございます。
提供:センチュリー21(株)未来ホームズ天下茶屋店(SUUMO経由)

詳細情報 CASA D` ORO清水丘
物件紹介
CASA D` ORO清水丘は阪堺電気軌道阪堺線安立町駅から徒歩2分にあり、駅近で通勤通学に便利なアパートです。
建物のエントランスはオートロックがついており、インターホンにはTVモニタもついているため、相手の顔を確認してから来客対応することができます。
人気の角部屋で周囲の居住者の生活音も気になりにくく、また、フローリングのお部屋なのでお掃除もラクラク。キッチンはシステムキッチン仕様になっていますので、お料理好きの方にもぴったり。バス・トイレは別なので、のんびりお風呂タイムも楽しめるでしょう。また、雨の日でも浴室乾燥機を使えば、お洗濯も問題ありません。
通信設備面では、インターネットが無料で使えるので、月々の出費を抑えられるのも魅力です。また、BSアンテナがありCATVにも対応しているので、おうち時間も充実するでしょう(別途工事、BS・CATVの契約料等が必要な場合あり)。
共用部には宅配ボックスが設定されているので、不在の時にも荷物を受け取ることができます。
建物のエントランスはオートロックがついており、インターホンにはTVモニタもついているため、相手の顔を確認してから来客対応することができます。
人気の角部屋で周囲の居住者の生活音も気になりにくく、また、フローリングのお部屋なのでお掃除もラクラク。キッチンはシステムキッチン仕様になっていますので、お料理好きの方にもぴったり。バス・トイレは別なので、のんびりお風呂タイムも楽しめるでしょう。また、雨の日でも浴室乾燥機を使えば、お洗濯も問題ありません。
通信設備面では、インターネットが無料で使えるので、月々の出費を抑えられるのも魅力です。また、BSアンテナがありCATVにも対応しているので、おうち時間も充実するでしょう(別途工事、BS・CATVの契約料等が必要な場合あり)。
共用部には宅配ボックスが設定されているので、不在の時にも荷物を受け取ることができます。
お金・契約の情報
※「-」と表示されているものは、実際は料金が発生するものもございます。詳細はお問い合わせください。
| 家賃 | 7.15万円 | 管理費・共益費 | 5,100円 |
|---|---|---|---|
| 敷金 | なし | 礼金 | 7万円 |
| 入居決定でお祝い金最大100,000円 | |||
| 保証金 | - | 償却・敷引 | - |
| 住宅保険料 | - | 更新料 | - |
| 保証会社利用 | 必須 | 保証会社名 | リクルートフォレントインシュア |
| 保証会社費用 | - | 保証会社備考 | オリコフォレントインシュア利用必 保証料:賃料の50% オリコフォレントインシュア |
| 契約形態 | - | 契約期間 | - |
| 入居・引渡期間 | - | 現況 | - |
| 契約備考 | 阪堺電気軌道阪堺線/我孫子道駅徒歩8分/住之江区周辺のお部屋探しはセンチュリー21未来ホームズへ。現地案内・お迎え承ります。お車でお越しのお客様にはお客様専用駐車場もございます。 鍵交換代1.1万円 1LDK 二人入居可 普通借家1年 損保【1.5万円2年】 バストイレ別、バルコニー、エアコン、クロゼット、フローリング、シャワー付洗面台、TVインターホン、浴室乾燥機、オートロック、室内洗濯置、陽当り良好、システムキッチン、角住戸、温水洗浄便座、脱衣所、洗面所独立、洗面化粧台、2口コンロ、駐輪場、宅配ボックス、CATV、閑静な住宅地、敷金不要、防犯カメラ、IHクッキングヒーター、照明付、全居室洋室、二人入居相談、ディンプルキー、駅まで平坦、ネット使用料不要、保証金不要、バリアフリー、3駅以上利用可、3沿線以上利用可、路面電車沿線、駅徒歩10分以内、敷地内ごみ置き場、築5年以内、洗面所にドア、BS、IT重説対応物件、LGBTフレンドリー、初期費用カード決済可、通風良好 入居日:'26年2月下旬 | ||
部屋の情報
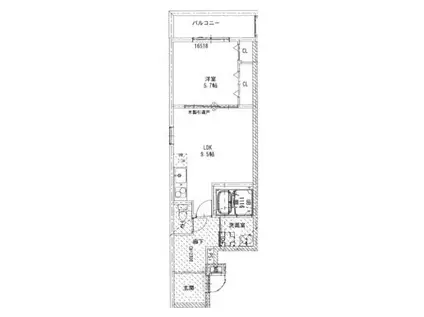
| 間取り | 1LDK | 専有面積 | 40.12m2 |
|---|---|---|---|
| 所在階 / 向き | 1階 / 北 | バルコニー面積 | - |
| 水道 / ガス | - | ||
| 設備 | バス・トイレ別、オートロック、テレビドアホン、宅配ボックス、浴室乾燥機、インターネット対応、システムキッチン、エアコン、温水洗浄便座、角部屋、バルコニー、フローリング、洗髪洗面化粧台、2口コンロ、コンロ:IH、CATV、BSアンテナ、インターネット使用料無料、洗濯機:室内 | ||
| 当社物件ID | 121728592 | ||
建物の情報
| 建物名 | CASA D` ORO清水丘 | ||
|---|---|---|---|
| 所在地 | 大阪府大阪市住吉区清水丘 | ||
| 交通 | 阪堺電気軌道阪堺線 安立町駅 徒歩2分 南海本線 住ノ江駅 徒歩6分 南海高野線 沢ノ町駅 徒歩11分 | ||
| 階数 | 3階建 | 総戸数 | 12戸 |
| 築年月 | 2022年09月 / 築4年 | エレベーター | - |
| 駐車場 | 近隣 100m18000円 | バイク置き場 | - |
| 駐輪場 | あり | 管理人/管理会社 | - |
| 周辺環境 | その他 関西スーパー(スーパー)まで500m その他 ダイエー(スーパー)まで455m その他 セブンイレブン(コンビニ)まで399m その他 ほっかほっか亭(その他)まで455m その他 Honya Club With 水嶋書房 住之江駅店(その他)まで467m その他 なかにしクリニック(病院)まで276m | ||
| 建物種別 | アパート | 建物構造 | 木造 |
この部屋の取扱い不動産会社
| 会社名 | センチュリー21(株)未来ホームズ天下茶屋店(SUUMO経由) | ||
|---|---|---|---|
| 所在地 | 大阪府大阪市西成区天下茶屋3-25-12 | 交通 | - |
| 営業時間 | 10:00~19:00 | 定休日 | 水曜日 |
| 免許番号 | 大阪府知事62016 | 取引態様 | 仲介 |
| 不動産会社管理番号 | 100482049643 | 当社管理番号 | 89 |
| 所属団体 | (一社)大阪府宅地建物取引業協会会員 | ||
| 公正取引協議会 | (公社)近畿地区不動産公正取引協議会加盟 | ||
| 取扱い物件情報 | 物件詳細へ | ||
※各種情報と現状に差異がある場合は、現状優先となります。問い合わせをすることで、より詳しい条件、情報を確認する事ができます。
提供:センチュリー21(株)未来ホームズ天下茶屋店(SUUMO経由)
この物件が気になったら掲載期限まであと10日
CASA D` ORO清水丘に条件(家賃・エリア)が近い物件一覧
| 写真 | 家賃 管理費等 | 敷金 礼金 | 間取り 専有面積 | 築年数 | 最寄り駅 所在地 | キープ | 詳細 |
|---|---|---|---|---|---|---|---|
アパート クレアール八戸ノ里(1K/3階) | |||||||
![]() | 6.25万円 5,500円 | なし 12.5万円 | 1K 23.81m2 | 築1年 | 近鉄奈良線 八戸ノ里駅 徒歩8分 近鉄奈良線 河内小阪駅 徒歩16分 地下鉄中央線 長田駅(大阪) 徒歩18分 大阪府東大阪市御厨南 | 詳細を見る | |
マンション アリビオ千里豊津(1K/8階) | |||||||
| 8.55万円 1.1万円 | なし 8.55万円 | 1K 23.78m2 | 築11年 | 阪急電鉄千里線 豊津駅(大阪) 徒歩2分 阪急電鉄千里線 関大前駅 徒歩10分 阪急電鉄千里線 吹田駅(阪急) 徒歩15分 大阪府吹田市垂水町1丁目7-4 | 詳細を見る | ||
アパート アルマグラータ(1K/2階) | |||||||
![]() | 7.1万円 4,400円 | なし 10.7万円 | 1K 26.21m2 | 新築 | 大阪モノレール本線 門真市駅 徒歩7分 京阪本線 門真市駅 徒歩8分 大阪府門真市栄町 | 詳細を見る | |
一戸建て 京阪電気鉄道京阪線 古川橋駅 徒歩4分 築50年(3DK) | |||||||
![]() | 5.4万円 5,000円 | なし なし | 3DK 50.76m2 | 築50年 | 京阪電気鉄道京阪線 古川橋駅 徒歩4分 京阪電気鉄道京阪線 大和田駅(大阪) 徒歩15分 京阪電気鉄道京阪線 門真市駅 徒歩16分 大阪府門真市末広町 | 詳細を見る | |
マンション ルーセントパークショア(1K/5階) | |||||||
| 6.7万円 8,000円 | なし 13.4万円 | 1K 28.87m2 | 築23年 | 東海道本線 岸辺駅 徒歩1分 阪急電鉄京都線 正雀駅 徒歩3分 阪急電鉄京都線 摂津市駅 徒歩21分 大阪府吹田市岸部南1丁目9-26 | 詳細を見る | ||
アパート フジパレス大和田Ⅲ番館(1LDK/3階) | |||||||
![]() | 6.95万円 5,800円 | なし 11万円 | 1LDK 36.05m2 | 築1年 | 京阪電気鉄道京阪線 大和田駅(大阪) 徒歩5分 京阪電気鉄道京阪線 古川橋駅 徒歩11分 京阪電気鉄道京阪線 萱島駅 徒歩18分 大阪府門真市常盤町 | 詳細を見る | |
マンション グランシス江坂(1K/6階) | |||||||
| 7.9万円 1万円 | なし 7.9万円 | 1K 25.83m2 | 築18年 | 大阪市御堂筋線 江坂駅 徒歩5分 北大阪急行南北線 江坂駅 徒歩5分 阪急電鉄千里線 豊津駅(大阪) 徒歩20分 大阪府吹田市広芝町18-31 | 詳細を見る | ||
アパート 阪和線 鳳駅 徒歩8分 築18年(1K/2階) | |||||||
![]() | 5.2万円 4,400円 | なし なし | 1K 24m2 | 築18年 | 阪和線 鳳駅 徒歩8分 阪和線 富木駅 徒歩12分 南海電鉄南海本線 羽衣駅 徒歩18分 大阪府堺市西区鳳西町1丁 | 詳細を見る | |






