賃貸アパート
レオネクストみなとまちの賃貸物件情報(1K/2階)
| 家賃 | 管理費等 | 敷金 | 礼金 | 間取り | 専有面積 |
|---|---|---|---|---|---|
| 4.9万円 | 4,500円 | なし | 4.9万円 | 1K | 26m2 |
入居決定でお祝い金最大100,000円
Point
まずはお問い合わせ!
不動産会社は街のプロ、あなたに合った物件がきっと見つかります。
提供:エイブルネットワーク高松駅前店(株)アークス(SUUMO経由)

詳細情報 レオネクストみなとまち
物件紹介
レオネクストみなとまちはJR予讃線坂出駅から徒歩14分にあるアパートです。
このお部屋は2階以上に位置しているので、通行人や周囲の住人からの視線が気になりにくく、防犯面でも安心。インターホンにはTVモニタもついているため、相手の顔を確認してから来客対応することができます。
人気の南向きのお部屋。角部屋でもあるため、周囲の居住者の生活音も気になりにくい場所です。バス・トイレ別の仕様で、のんびりお風呂タイムも楽しめます。また、浴室乾燥機を使えば、雨の日でもお洗濯は問題ありません。
通信設備面では、インターネット接続が可能です(別途工事、契約料が必要な場合あり)。
このお部屋は2階以上に位置しているので、通行人や周囲の住人からの視線が気になりにくく、防犯面でも安心。インターホンにはTVモニタもついているため、相手の顔を確認してから来客対応することができます。
人気の南向きのお部屋。角部屋でもあるため、周囲の居住者の生活音も気になりにくい場所です。バス・トイレ別の仕様で、のんびりお風呂タイムも楽しめます。また、浴室乾燥機を使えば、雨の日でもお洗濯は問題ありません。
通信設備面では、インターネット接続が可能です(別途工事、契約料が必要な場合あり)。
お金・契約の情報
※「-」と表示されているものは、実際は料金が発生するものもございます。詳細はお問い合わせください。
| 家賃 | 4.9万円 | 管理費・共益費 | 4,500円 |
|---|---|---|---|
| 敷金 | なし | 礼金 | 4.9万円 |
| 入居決定でお祝い金最大100,000円 | |||
| 保証金 | - | 償却・敷引 | - |
| 住宅保険料 | 2.668万円(2年) | 更新料 | - |
| 保証会社利用 | 必須 | 保証会社名 | プラザ賃貸保証 |
| 保証会社費用 | - | 保証会社備考 | 家賃等の100%または120% |
| 契約形態 | - | 契約期間 | 2年 |
| 入居・引渡期間 | 2026年05月下旬 | 現況 | - |
| 契約備考 | 環境維持費:1ヶ月550円(税込)、鍵交換費:ご契約時16500円(税込)、退去時清掃費:38500円(税込)、インターネット利用料:有料、更新手数料:16500円(税込)、保証委託料:必要 | ||
部屋の情報
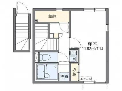
| 間取り | 1K | 専有面積 | 26m2 |
|---|---|---|---|
| 所在階 / 向き | 2階 / 南 | バルコニー面積 | - |
| 水道 / ガス | ガス【都市】 | ||
| 設備 | バス・トイレ別、テレビドアホン、浴室乾燥機、インターネット対応、温水洗浄便座、角部屋 | ||
| 当社物件ID | 2771101 | ||
建物の情報
| 建物名 | レオネクストみなとまち | ||
|---|---|---|---|
| 所在地 | 香川県坂出市中央町 | ||
| 交通 | 予讃線 坂出駅 徒歩14分 | ||
| 階数 | 2階建 | 総戸数 | 6戸 |
| 築年月 | 2010年04月 / 築17年 | エレベーター | - |
| 駐車場 | - | バイク置き場 | - |
| 駐輪場 | あり | 管理人/管理会社 | - |
| 周辺環境 | その他 ガスト 徒歩8分(600m) | ||
| 建物種別 | アパート | 建物構造 | 木造 |
この部屋の取扱い不動産会社
| 会社名 | アパマンショップ坂出北インター店 | ||
|---|---|---|---|
| 所在地 | 香川県坂出市西大浜北2丁目 1−12 | 交通 | 予讃線坂出から徒歩26分 |
| 営業時間 | 10:00〜18:00 | 定休日 | 水曜日 |
| 免許番号 | 香川県知事(2)4253 | 取引態様 | 仲介 |
| 不動産会社管理番号 | 85129659 | 当社管理番号 | 4 |
| 所属団体 | (公社) 全日本不動産協会香川県本部 | ||
| 公正取引協議会 | 四国地区不動産公正取引協議会加盟 | ||
| 取扱い物件情報 | 物件詳細へ | ||
※各種情報と現状に差異がある場合は、現状優先となります。問い合わせをすることで、より詳しい条件、情報を確認する事ができます。
提供:アパマンショップ坂出北インター店
この物件が気になったら掲載期限まであと13日
レオネクストみなとまちに条件(家賃・エリア)が近い物件一覧
| 写真 | 家賃 管理費等 | 敷金 礼金 | 間取り 専有面積 | 築年数 | 最寄り駅 所在地 | キープ | 詳細 |
|---|---|---|---|---|---|---|---|
アパート サングレースⅠ(1LDK/1階) | |||||||
![]() | 4.7万円 4,000円 | なし 4.7万円 | 1LDK 45.89m2 | 築16年 | 予讃線 端岡駅 徒歩15分 予讃線 国分駅(香川) 徒歩29分 予讃線 讃岐府中駅 徒歩49分 香川県高松市国分寺町新居 | 詳細を見る | |
マンション フリシュ・グランツ・K(1LDK/3階) | |||||||
![]() | 5.15万円 5,800円 | なし 5.15万円 | 1LDK 43.94m2 | 築16年 | 高松琴平電鉄琴平線 伏石駅 徒歩10分 高松琴平電鉄琴平線 太田駅(高松) 徒歩24分 高松琴平電鉄琴平線 三条駅(高松) 徒歩25分 香川県高松市伏石町 | 詳細を見る | |
アパート ヴィオラ・パラッツオ(1LDK/1階) | |||||||
![]() | 4.5万円 3,500円 | なし なし | 1LDK 45.49m2 | 築21年 | JR予讃線 丸亀駅 徒歩36分 JR予讃線 讃岐塩屋駅 徒歩52分 JR土讃線 金蔵寺駅 徒歩53分 香川県丸亀市柞原町 | 詳細を見る | |
アパート テール リッシュⅢ(2LDK/2階) | |||||||
![]() | 6.1万円 4,600円 | なし 6.1万円 | 2LDK 58.63m2 | 築10年 | 香川県高松市木太町 | 詳細を見る | |
アパート ベイカーストリート(2LDK/2階) | |||||||
![]() | 5.2万円 4,600円 | なし 5.2万円 | 2LDK 58.65m2 | 築6年 | 予讃線 八十場駅 徒歩53分 予讃線 坂出駅 徒歩53分 予讃線 鴨川駅 徒歩57分 香川県坂出市林田町 | 詳細を見る | |
アパート サニーハイツ楠 C(2DK/1階) | |||||||
![]() | 3.5万円 3,000円 | なし なし | 2DK 46.13m2 | 築30年 | JR予讃線 坂出駅 徒歩27分 香川県坂出市西大浜北 | 詳細を見る | |
マンション アルファエステート昭和町(1K/3階) | |||||||
![]() | 3.2万円 5,500円 | なし なし | 1K 20.4m2 | 築38年 | 高徳線 昭和町駅(香川) 徒歩2分 香川県高松市昭和町1丁目 | 詳細を見る | |
アパート ブルーメ(1LDK/2階) | |||||||
![]() | 4.1万円 4,000円 | なし なし | 1LDK 41.98m2 | 築24年 | 高松琴平電鉄琴平線 一宮駅 徒歩16分 香川県高松市香川町大野 | 詳細を見る | |




/105x80-f1-q70-wp1)


/105x80-f1-q70-wp1)
/105x80-f1-q70-wp1)