賃貸マンション
御陵 レジデンスの賃貸物件情報(2LDK/3階)
| 家賃 | 管理費等 | 敷金 | 礼金 | 間取り | 専有面積 |
|---|---|---|---|---|---|
| 6.1万円 | 7,000円 | なし | 3.85万円 | 2LDK | 43m2 |
入居決定でお祝い金最大100,000円
- 保証金
- -
- 償却・敷引
- -
- 築年数
- 築43年
- 所在階
- 3階
- 向き
- 南
Point
京都市山科区の賃貸物件です。敷金なしで初期費用を抑えたい方にオススメ。ぜひ一度ご覧下さい。業務スーパー・ローソンまで約70M。地下鉄東西線御陵駅まで徒歩2分の好立地。
提供:株式会社 京都ライフ 山科店(賃貸スモッカ経由)

詳細情報 御陵 レジデンス
物件紹介
御陵 レジデンスは京都市東西線御陵駅から徒歩2分にあり、駅近で通勤通学に便利なマンションです。
このお部屋は2階以上に位置しているので、通行人や周囲の住人からの視線が気になりにくく、防犯面でも安心。インターホンにはTVモニタもついているため、相手の顔を確認してから来客対応することができます。
人気の南向きのお部屋。また、フローリングなのでお掃除もラクラク。バス・トイレ別の仕様で、のんびりお風呂タイムも楽しめます。
通信設備面では、インターネット接続が可能です。また、CATVにも対応しているので、おうち時間も充実するでしょう(別途工事、契約料が必要な場合あり)。
このお部屋は2階以上に位置しているので、通行人や周囲の住人からの視線が気になりにくく、防犯面でも安心。インターホンにはTVモニタもついているため、相手の顔を確認してから来客対応することができます。
人気の南向きのお部屋。また、フローリングなのでお掃除もラクラク。バス・トイレ別の仕様で、のんびりお風呂タイムも楽しめます。
通信設備面では、インターネット接続が可能です。また、CATVにも対応しているので、おうち時間も充実するでしょう(別途工事、契約料が必要な場合あり)。
お金・契約の情報
※「-」と表示されているものは、実際は料金が発生するものもございます。詳細はお問い合わせください。
| 家賃 | 6.1万円 | 管理費・共益費 | 7,000円 |
|---|---|---|---|
| 敷金 | なし | 礼金 | 3.85万円 |
| 入居決定でお祝い金最大100,000円 | |||
| 保証金 | - | 償却・敷引 | - |
| 住宅保険料 | 住宅保険料あり | 更新料 | - |
| 契約形態 | - | 契約期間 | 2年 |
| 入居・引渡期間 | 2026年04月下旬 | 現況 | 居住中 |
| 契約備考 | お風呂追炊き機能付き。 更新料:56,000円 その他設備/条件:最上階の物件、コンロ2口以上、TVドアホン | ||
部屋の情報
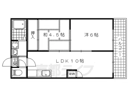
| 間取り | 2LDK | 専有面積 | 43m2 |
|---|---|---|---|
| 間取り詳細 | 和室(4帖)、和室(6帖)、DK(6帖) | ||
| 所在階 / 向き | 3階 / 南 | バルコニー面積 | - |
| 水道 / ガス | ガス【都市】 | ||
| 設備 | バス・トイレ別、2階以上、追い焚き、インターネット対応、エアコン、南向き、バルコニー、コンロ:ガス、洗濯機:室内 | ||
| 当社物件ID | 5033061 | ||
建物の情報
| 建物名 | 御陵 レジデンス | ||
|---|---|---|---|
| 所在地 | 京都府京都市山科区御陵下御廟野町 | ||
| 交通 | 京都市東西線 御陵駅 徒歩2分 京都市東西線 山科駅 徒歩18分 東海道本線 山科駅 徒歩20分 | ||
| 階数 | 3階建 | 総戸数 | - |
| 築年月 | 1984年01月 / 築43年 | エレベーター | - |
| 駐車場 | - | バイク置き場 | - |
| 駐輪場 | あり | 管理人/管理会社 | - |
| 建物種別 | マンション | 建物構造 | RC(鉄筋コンクリート) |
この部屋の取扱い不動産会社
| 会社名 | 株式会社エリッツ 賃貸のエリッツ 山科店(賃貸スモッカ経由) | ||
|---|---|---|---|
| 所在地 | 京都市山科区竹鼻竹ノ街道町42-2 オフィス山科1F | 交通 | - |
| 営業時間 | - | 定休日 | - |
| 免許番号 | 国土交通大臣免許(7)第5206号 | 取引態様 | 仲介 |
| 不動産会社管理番号 | elitz_6218-0303 | 当社管理番号 | 463 |
| 所属団体 | (公社)京都府宅地建物取引業協会\n公益社団法人近畿地区不動産公正取引協議会 | ||
| 公正取引協議会 | (公社)全国宅地建物取引業保証協会 | ||
| 取扱い物件情報 | 物件詳細へ | ||
※各種情報と現状に差異がある場合は、現状優先となります。問い合わせをすることで、より詳しい条件、情報を確認する事ができます。
提供:株式会社エリッツ 賃貸のエリッツ 山科店(賃貸スモッカ経由)
この物件が気になったら掲載期限まであと6日
御陵 レジデンスに条件(家賃・エリア)が近い物件一覧
| 写真 | 家賃 管理費等 | 敷金 礼金 | 間取り 専有面積 | 築年数 | 最寄り駅 所在地 | キープ | 詳細 |
|---|---|---|---|---|---|---|---|
マンション 阪急電鉄京都線 西向日駅 徒歩5分 築33年(1K/1階) | |||||||
![]() | 4.2万円 2,000円 | 3万円 3万円 | 1K 22m2 | 築33年 | 阪急電鉄京都線 西向日駅 徒歩5分 東海道本線 長岡京駅 徒歩30分 京都府向日市向日町南山 | 詳細を見る | |
マンション 阪急電鉄京都線 長岡天神駅 徒歩7分 築29年(1K/3階) | |||||||
![]() | 5.2万円 5,000円 | なし 5.2万円 | 1K 24.42m2 | 築29年 | 阪急電鉄京都線 長岡天神駅 徒歩7分 東海道本線 長岡京駅 徒歩17分 京都府長岡京市長岡2丁目 | 詳細を見る | |
マンション 近鉄京都線 小倉駅(京都) 徒歩3分 築36年(2LDK/3階) | |||||||
![]() | 7万円 1万円 | なし 3.5万円 | 2LDK 42.76m2 | 築36年 | 近鉄京都線 小倉駅(京都) 徒歩3分 近鉄京都線 伊勢田駅 徒歩13分 京都府宇治市小倉町老ノ木 | 詳細を見る | |
マンション 長岡京ハイツ(1K/1階) | |||||||
![]() | 3.7万円 3,000円 | なし なし | 1K 15.06m2 | 築40年 | 阪急電鉄京都線 長岡天神駅 徒歩8分 京都府長岡京市長岡3丁目 | 詳細を見る | |
マンション サンライズ勧修寺(2DK/4階) | |||||||
![]() | 4.9万円 4,000円 | なし 4.9万円 | 2DK 40m2 | 築40年 | 京都市東西線 小野駅(京都) 徒歩15分 京都市東西線 椥辻駅 徒歩18分 京都府京都市山科区勧修寺東堂田町 | 詳細を見る | |
一戸建て 京都市東西線 小野駅(京都) 徒歩5分 築50年(2LDK) | |||||||
![]() | 6.9万円 なし | 6.9万円 6.9万円 | 2LDK 63m2 | 築50年 | 京都市東西線 小野駅(京都) 徒歩5分 京都市東西線 醍醐駅(京都) 徒歩9分 奈良線 六地蔵駅(JR) 徒歩47分 京都府京都市山科区勧修寺閑林寺 | 詳細を見る | |
マンション 近鉄京都線 小倉駅(京都) 徒歩5分 築12年(1LDK/5階) | |||||||
![]() | 7.4万円 6,000円 | 7.4万円 14.8万円 | 1LDK 45.36m2 | 築12年 | 近鉄京都線 小倉駅(京都) 徒歩5分 奈良線 JR小倉駅 徒歩6分 京都府宇治市小倉町 | 詳細を見る | |








