賃貸マンション
ガーラ・レジデンス平井の賃貸物件情報(3LDK/7階)
| 家賃 | 管理費等 | 敷金 | 礼金 | 間取り | 専有面積 |
|---|---|---|---|---|---|
| 19万円 | 1万円 | 19万円 | 38万円 | 3LDK | 55.18m2 |
入居決定でお祝い金最大100,000円
- 保証金
- -
- 償却・敷引
- -
- 築年数
- 築8年
- 所在階
- 7階
- 向き
- 南東
Point
都内最寄り駅より徒歩4分と好立地!セキュリティ対策もバッチリ、広々1LDKのお部屋です(^^♪
提供:(株)SCI(SUUMO経由)

詳細情報 ガーラ・レジデンス平井
物件紹介
ガーラ・レジデンス平井はJR総武線平井駅から徒歩4分にあり、駅近で通勤通学に便利なマンションです。
このお部屋は2階以上に位置しているので通行人や周囲の住人からの視線が気になりにくく、建物のエントランスはオートロックがついているので防犯性が高くなっています。
人気の南向き・フローリングのお部屋。角部屋でもあるため、周囲の居住者の生活音も気になりにくい場所です。キッチンはシステムキッチン仕様になっていますので、お料理好きの方にもぴったり。バス・トイレは別なので、のんびりお風呂タイムも楽しめるでしょう。また、雨の日でも浴室乾燥機を使えば、お洗濯も問題ありません。
通信設備面では、インターネットが無料で使えるので、月々の出費を抑えられるのも魅力です。また、BSアンテナ・CSアンテナもありますので、おうち時間も充実するでしょう(別途工事、BS・CSの契約料等が必要な場合あり)。
建物にはエレベーターがついているので、重い荷物があっても安心。共用部には宅配ボックスが設定されているので、不在の時にも荷物を受け取ることができます。
このお部屋は2階以上に位置しているので通行人や周囲の住人からの視線が気になりにくく、建物のエントランスはオートロックがついているので防犯性が高くなっています。
人気の南向き・フローリングのお部屋。角部屋でもあるため、周囲の居住者の生活音も気になりにくい場所です。キッチンはシステムキッチン仕様になっていますので、お料理好きの方にもぴったり。バス・トイレは別なので、のんびりお風呂タイムも楽しめるでしょう。また、雨の日でも浴室乾燥機を使えば、お洗濯も問題ありません。
通信設備面では、インターネットが無料で使えるので、月々の出費を抑えられるのも魅力です。また、BSアンテナ・CSアンテナもありますので、おうち時間も充実するでしょう(別途工事、BS・CSの契約料等が必要な場合あり)。
建物にはエレベーターがついているので、重い荷物があっても安心。共用部には宅配ボックスが設定されているので、不在の時にも荷物を受け取ることができます。
お金・契約の情報
※「-」と表示されているものは、実際は料金が発生するものもございます。詳細はお問い合わせください。
| 家賃 | 19万円 | 管理費・共益費 | 1万円 |
|---|---|---|---|
| 敷金 | 19万円 | 礼金 | 38万円 |
| 入居決定でお祝い金最大100,000円 | |||
| 保証金 | - | 償却・敷引 | - |
| 住宅保険料 | - | 更新料 | - |
| 保証会社利用 | 必須 | 保証会社名 | - |
| 保証会社費用 | - | 保証会社備考 | 保証会社利用必 ご相談ください。 |
| 契約形態 | - | 契約期間 | - |
| 入居・引渡期間 | 相談 | 現況 | - |
| 契約備考 | 3LDK 二人入居可/ルームシェア相談 普通借家2年 損保【要】 バストイレ別、バルコニー、エアコン、クロゼット、フローリング、浴室乾燥機、オートロック、室内洗濯置、陽当り良好、シューズボックス、システムキッチン、追焚機能浴室、角住戸、温水洗浄便座、エレベーター、洗面所独立、駐輪場、宅配ボックス、光ファイバー、外壁タイル張り、BS・CS、3口以上コンロ、対面式キッチン、グリル付、全居室洋室、保証人不要、敷金1ヶ月、バイク置場、全居室フローリング、3面採光、2沿線利用可、エアコン2台、ネット専用回線、ネット使用料不要、ルームシェア相談、3駅以上利用可、駅徒歩5分以内、24時間ゴミ出し可、敷地内ごみ置き場、都市ガス、礼金2ヶ月、保証会社利用可、IT重説対応物件、通風良好 | ||
部屋の情報
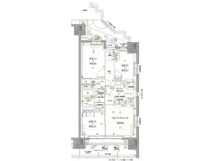
| 間取り | 3LDK | 専有面積 | 55.18m2 |
|---|---|---|---|
| 所在階 / 向き | 7階 / 南東 | バルコニー面積 | - |
| 水道 / ガス | - | ||
| 設備 | バス・トイレ別、2階以上、オートロック、宅配ボックス、浴室乾燥機、追い焚き、インターネット対応、システムキッチン、エアコン、エレベーター、温水洗浄便座、南向き、角部屋、バルコニー、フローリング、洗髪洗面化粧台、2口コンロ、CSアンテナ、BSアンテナ、インターネット使用料無料、洗濯機:室内 | ||
| 当社物件ID | 160302585 | ||
建物の情報
| 建物名 | ガーラ・レジデンス平井 | ||
|---|---|---|---|
| 所在地 | 東京都江戸川区平井 | ||
| 交通 | JR総武線 平井駅(東京) 徒歩4分 東武亀戸線 東あずま駅 徒歩18分 東武亀戸線 亀戸水神駅 徒歩19分 | ||
| 階数 | 15階建 | 総戸数 | - |
| 築年月 | 2018年09月 / 築8年 | エレベーター | あり |
| 駐車場 | なし | バイク置き場 | あり |
| 駐輪場 | あり | 管理人/管理会社 | - |
| 周辺環境 | その他 ローソン平井6丁目店(コンビニ)まで245m その他 キリン堂平井駅前店(ドラッグストア)まで276m その他 キッチンオリジン平井店(飲食店)まで250m その他 まいばすけっと平井駅南店(スーパー)まで294m その他 セブンイレブン江戸川平井4丁目店(コンビニ)まで220m その他 どらっぐぱぱす平井駅前店(ドラッグストア)まで261m | ||
| 建物種別 | マンション | 建物構造 | RC(鉄筋コンクリート) |
この部屋の取扱い不動産会社
| 会社名 | (株)SCI(SUUMO経由) | ||
|---|---|---|---|
| 所在地 | 東京都千代田区神田三崎町2-6-8 大室ビル202 | 交通 | - |
| 営業時間 | 10:00~19:00(時間外対応可) | 定休日 | 水曜日 |
| 免許番号 | 東京都知事111500 | 取引態様 | 仲介 |
| 不動産会社管理番号 | 100485530895 | 当社管理番号 | 89 |
| 所属団体 | (公社)全日本不動産協会東京都本部会員 | ||
| 公正取引協議会 | (公社)首都圏不動産公正取引協議会加盟 | ||
| 取扱い物件情報 | 物件詳細へ | ||
※各種情報と現状に差異がある場合は、現状優先となります。問い合わせをすることで、より詳しい条件、情報を確認する事ができます。
提供:(株)SCI(SUUMO経由)
この物件が気になったら掲載期限まであと9日
ガーラ・レジデンス平井に条件(家賃・エリア)が近い物件一覧
| 写真 | 家賃 管理費等 | 敷金 礼金 | 間取り 専有面積 | 築年数 | 最寄り駅 所在地 | キープ | 詳細 |
|---|---|---|---|---|---|---|---|
マンション ミレドゥーエ両国(1K/6階) | |||||||
![]() | 11.6万円 1万円 | 11.6万円 11.6万円 | 1K 26.46m2 | 築6年 | 東京都新宿線 森下駅(東京) 徒歩7分 東京都墨田区千歳3丁目 | 詳細を見る | |
マンション ベルファース錦糸町サウス(1DK/6階) | |||||||
![]() | 14.2万円 1万円 | 14.2万円 なし | 1DK 25.12m2 | 築3年 | 総武本線 錦糸町駅 徒歩8分 東京地下鉄半蔵門線 錦糸町駅 徒歩8分 東京都墨田区江東橋1丁目 | 詳細を見る | |
マンション LOG本所吾妻橋(1K/6階) | |||||||
![]() | 11.5万円 1万円 | なし なし | 1K 25.73m2 | 築7年 | 東京都浅草線 本所吾妻橋駅 徒歩2分 東京都浅草線 押上駅 徒歩10分 東京都墨田区東駒形4丁目 | 詳細を見る | |
マンション パークアクシス森下(ワンルーム/2階) | |||||||
![]() | 12.7万円 1万円 | 12.7万円 なし | ワンルーム 25.02m2 | 築5年 | 都営新宿線 森下駅(東京) 徒歩4分 JR総武線 両国駅 徒歩12分 東京メトロ半蔵門線 清澄白河駅 徒歩13分 東京都江東区新大橋 | 詳細を見る | |
マンション ルーエ押上(1K/7階) | |||||||
![]() | 12.7万円 1万円 | 12.7万円 12.7万円 | 1K 25.01m2 | 築7年 | 東京地下鉄半蔵門線 押上駅 徒歩8分 総武本線 錦糸町駅 徒歩11分 総武・中央緩行線 錦糸町駅 徒歩11分 東京都墨田区横川2丁目 | 詳細を見る | |
マンション GENOVIA本所吾妻橋SKYGARDEN(1LDK/4階) | |||||||
![]() | 17.3万円 2万円 | なし なし | 1LDK 41.27m2 | 築5年 | 東京都浅草線 本所吾妻橋駅 徒歩10分 東京都大江戸線 両国駅 徒歩12分 東京地下鉄銀座線 浅草駅(東武・都営・メトロ) 徒歩15分 東京都墨田区石原3丁目 | 詳細を見る | |
マンション クレストコート本所吾妻橋ノース(1LDK/5階) | |||||||
![]() | 17万円 1.5万円 | 17万円 なし | 1LDK 30.83m2 | 築1年 | 東京都浅草線 本所吾妻橋駅 徒歩3分 東京地下鉄銀座線 浅草駅(東武・都営・メトロ) 徒歩7分 東京都浅草線 浅草駅(東武・都営・メトロ) 徒歩9分 東京都墨田区吾妻橋2丁目 | 詳細を見る | |
マンション クレストコート門前仲町(1DK/10階) | |||||||
![]() | 15.5万円 1.2万円 | 15.5万円 なし | 1DK 26.14m2 | 築1年 | 都営大江戸線 門前仲町駅 徒歩7分 JR京葉線 越中島駅 徒歩11分 東京メトロ日比谷線 八丁堀駅(東京) 徒歩15分 東京都江東区永代 | 詳細を見る | |









