賃貸アパート
SPANZ 姪浜南の賃貸物件情報(1LDK/1階)
| 家賃 | 管理費等 | 敷金 | 礼金 | 間取り | 専有面積 |
|---|---|---|---|---|---|
| 6.8万円 | 2,000円 | なし | 13.6万円 | 1LDK | 36.15m2 |
入居決定でお祝い金最大100,000円
- 保証金
- -
- 償却・敷引
- -
- 築年数
- 築19年
- 所在階
- 1階
- 向き
- 南
Point
まずはお問い合わせ!
不動産会社は街のプロ、あなたに合った物件がきっと見つかります。
提供:(株)筑紫不動産リードハウス(SUUMO経由)

詳細情報 SPANZ 姪浜南
物件紹介
SPANZ 姪浜南は地下鉄空港線姪浜駅から徒歩17分にあるアパートです。
建物のエントランスはオートロックがついており、インターホンにはTVモニタもついているため、相手の顔を確認してから来客対応することができます。
人気の南向きのお部屋。また、フローリングなのでお掃除もラクラク。キッチンはシステムキッチン仕様になっていますので、お料理好きの方にもぴったり。また、バス・トイレは別で、のんびりお風呂タイムも楽しめるでしょう。
通信設備面ではCATVに対応しているので、おうち時間も充実するでしょう(別途工事、契約料が必要な場合あり)。
建物のエントランスはオートロックがついており、インターホンにはTVモニタもついているため、相手の顔を確認してから来客対応することができます。
人気の南向きのお部屋。また、フローリングなのでお掃除もラクラク。キッチンはシステムキッチン仕様になっていますので、お料理好きの方にもぴったり。また、バス・トイレは別で、のんびりお風呂タイムも楽しめるでしょう。
通信設備面ではCATVに対応しているので、おうち時間も充実するでしょう(別途工事、契約料が必要な場合あり)。
お金・契約の情報
※「-」と表示されているものは、実際は料金が発生するものもございます。詳細はお問い合わせください。
| 家賃 | 6.8万円 | 管理費・共益費 | 2,000円 |
|---|---|---|---|
| 敷金 | なし | 礼金 | 13.6万円 |
| 入居決定でお祝い金最大100,000円 | |||
| 保証金 | - | 償却・敷引 | - |
| 住宅保険料 | - | 更新料 | - |
| 保証会社利用 | 必須 | 保証会社名 | - |
| 保証会社費用 | - | 保証会社備考 | 保証会社利用必 全保連(株)・(株)Casa ※条件要確認 |
| 契約形態 | - | 契約期間 | - |
| 入居・引渡期間 | 相談 | 現況 | - |
| 契約備考 | サニー姪浜店まで775m/福岡西郵便局まで512m/多数の物件の中、ご覧いただきありがとうございます。その他、詳細はリードハウス( )までお気軽にご確認ください初期費用等ご相談下さい。お客様のニーズに全力でお応えします!。※写真と現況が異なる場合は、現況を優先いたします。 安心サポート440円、鍵交換代25300円、室内消毒代14300円 1LDK 普通借家1年 バストイレ別、バルコニー、エアコン、クロゼット、フローリング、シャワー付洗面台、TVインターホン、オートロック、シューズボックス、システムキッチン、南向き、脱衣所、洗面化粧台、2口コンロ、駐輪場、CATV、敷金不要、対面式キッチン、駐車2台可、3面採光、エアコン2台、ダブルロックキー、1フロア2住戸、浴室に窓、中庭、平面駐車場、プロパンガス、洗面所にドア、縦型照明付洗面化粧台、インナーバルコニー、シャッター、礼金2ヶ月 | ||
部屋の情報
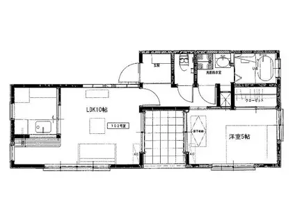
| 間取り | 1LDK | 専有面積 | 36.15m2 |
|---|---|---|---|
| 所在階 / 向き | 1階 / 南 | バルコニー面積 | - |
| 水道 / ガス | - | ||
| 設備 | バス・トイレ別、オートロック、テレビドアホン、システムキッチン、エアコン、南向き、バルコニー、フローリング、2口コンロ、CATV | ||
| 当社物件ID | 1248781 | ||
建物の情報
| 建物名 | SPANZ 姪浜南 | ||
|---|---|---|---|
| 所在地 | 福岡県福岡市西区石丸 | ||
| 交通 | 地下鉄空港線 姪浜駅 徒歩17分 JR筑肥線 下山門駅 徒歩17分 地下鉄空港線 室見駅 徒歩30分 | ||
| 階数 | 2階建 | 総戸数 | 4戸 |
| 築年月 | 2007年03月 / 築19年 | エレベーター | - |
| 駐車場 | 空有 5500円 | バイク置き場 | - |
| 駐輪場 | あり | 管理人/管理会社 | - |
| 周辺環境 | その他 サニー 姪浜店(スーパー)まで775m その他 福岡西郵便局(郵便局)まで512m その他 西区役所(役所)まで1191m その他 白十字病院(病院)まで462m その他 JA福岡市下山門支店(銀行)まで855m その他 西日本シティ銀行 西区役所 (ATM)(銀行)まで1191m | ||
| 建物種別 | アパート | 建物構造 | 木造 |
この部屋の取扱い不動産会社
| 会社名 | (株)筑紫不動産リードハウス(SUUMO経由) | ||
|---|---|---|---|
| 所在地 | 福岡県福岡市博多区銀天町1-2-5 | 交通 | - |
| 営業時間 | 9:30~18:00 | 定休日 | 祝日のみ |
| 免許番号 | 福岡県知事7437 | 取引態様 | 代理 |
| 不動産会社管理番号 | 100108694823 | 当社管理番号 | 89 |
| 所属団体 | (公社)福岡県宅地建物取引業協会会員 | ||
| 公正取引協議会 | (一社)九州不動産公正取引協議会加盟 | ||
| 取扱い物件情報 | 物件詳細へ | ||
※各種情報と現状に差異がある場合は、現状優先となります。問い合わせをすることで、より詳しい条件、情報を確認する事ができます。
提供:(株)筑紫不動産リードハウス(SUUMO経由)
この物件が気になったら掲載期限まであと11日
SPANZ 姪浜南に条件(家賃・エリア)が近い物件一覧
| 写真 | 家賃 管理費等 | 敷金 礼金 | 間取り 専有面積 | 築年数 | 最寄り駅 所在地 | キープ | 詳細 |
|---|---|---|---|---|---|---|---|
マンション ミツルマンション(1LDK/3階) | |||||||
![]() | 5.7万円 3,000円 | なし なし | 1LDK 44.82m2 | 築43年 | 博多南線 博多南駅 徒歩9分 鹿児島本線 春日駅(福岡) 徒歩49分 鹿児島本線 南福岡駅 徒歩50分 福岡県春日市 | 詳細を見る | |
アパート 林コーポ(2DK/2階) | |||||||
![]() | 4.6万円 なし | 4.6万円 なし | 2DK 40.5m2 | 築40年 | JR鹿児島本線 南福岡駅 徒歩13分 西鉄天神大牟田線 雑餉隈駅 徒歩21分 福岡県春日市岡本 | 詳細を見る | |
アパート カルテットコーポ(2DK/2階) | |||||||
![]() | 4.5万円 なし | なし 4.5万円 | 2DK 34m2 | 築39年 | 博多南線 博多南駅 徒歩17分 西鉄天神大牟田線 井尻駅 徒歩41分 鹿児島本線 南福岡駅 徒歩44分 福岡県春日市泉4丁目 | 詳細を見る | |
マンション グランドゥール・オニクラ(2LDK/4階) | |||||||
![]() | 7.4万円 4,000円 | なし 14.8万円 | 2LDK 65.07m2 | 築27年 | 西鉄天神大牟田線 井尻駅 徒歩25分 鹿児島本線 南福岡駅 徒歩27分 西鉄天神大牟田線 雑餉隈駅 徒歩32分 福岡県春日市須玖南5丁目 | 詳細を見る | |
マンション アドバンストラスト16(3DK/1階) | |||||||
![]() | 5.2万円 3,000円 | なし 5.2万円 | 3DK 57.33m2 | 築32年 | JR鹿児島本線 大野城駅 徒歩25分 西鉄天神大牟田線 白木原駅 徒歩29分 JR鹿児島本線 春日駅(福岡) 徒歩34分 福岡県春日市 | 詳細を見る | |
アパート セジュールリカーC棟(3LDK/2階) | |||||||
![]() | 6.5万円 なし | なし 6.5万円 | 3LDK 62.85m2 | 築37年 | JR鹿児島本線 大野城駅 徒歩15分 西鉄天神大牟田線 白木原駅 徒歩20分 福岡県春日市 | 詳細を見る | |
アパート D-ROOM平田台4丁目(2LDK/2階) | |||||||
![]() | 10.3万円 5,000円 | なし 20.6万円 | 2LDK 55.68m2 | 新築 | 鹿児島本線 大野城駅 徒歩25分 鹿児島本線 水城駅 徒歩27分 西鉄天神大牟田線 白木原駅 徒歩33分 福岡県春日市平田台4丁目 | 詳細を見る | |








