賃貸マンション
京都市烏丸線 烏丸御池駅 徒歩4分 3階建 築7年の賃貸物件情報(3LDK/1階)
| 家賃 | 管理費等 | 敷金 | 礼金 | 間取り | 専有面積 |
|---|---|---|---|---|---|
| 32万円 | 1万円 | なし | 50万円 | 3LDK | 105.26m2 |
入居決定でお祝い金最大100,000円
- 保証金
- -
- 償却・敷引
- -
- 築年数
- 築7年
- 所在階
- 1階
- 向き
- 東
- 交通
- 京都市烏丸線 烏丸御池駅 徒歩4分
京都市烏丸線 丸太町駅(京都市営) 徒歩6分
- 所在地
- 京都府京都市中京区蛸薬師町
[地図を表示]
Point
烏丸御池すぐ立地 分譲並みの充実した設備の高級賃貸マンション募集開始
提供:株式会社 京都ライフ 河原町四条店(賃貸スモッカ経由)

詳細情報 京都市烏丸線 烏丸御池駅 徒歩4分 3階建 築7年
物件紹介
京都市烏丸線烏丸御池駅から徒歩4分にあり、駅近で通勤通学に便利なマンションです。
建物のエントランスはオートロックがついており、防犯性が高くなっています。
人気の角部屋で周囲の居住者の生活音も気になりにくく、また、フローリングのお部屋なのでお掃除もラクラク。キッチンはシステムキッチン仕様になっていますので、お料理好きの方にもぴったり。バス・トイレは別なので、のんびりお風呂タイムも楽しめるでしょう。また、雨の日でも浴室乾燥機を使えば、お洗濯も問題ありません。
通信設備面では、インターネット接続が可能です。また、BSアンテナ・CSアンテナもありますので、おうち時間も充実するでしょう(別途工事、契約料が必要な場合あり)。
建物にはエレベーターがついているので、重い荷物があっても安心。共用部には宅配ボックスが設定されているので、不在の時にも荷物を受け取ることができます。
建物のエントランスはオートロックがついており、防犯性が高くなっています。
人気の角部屋で周囲の居住者の生活音も気になりにくく、また、フローリングのお部屋なのでお掃除もラクラク。キッチンはシステムキッチン仕様になっていますので、お料理好きの方にもぴったり。バス・トイレは別なので、のんびりお風呂タイムも楽しめるでしょう。また、雨の日でも浴室乾燥機を使えば、お洗濯も問題ありません。
通信設備面では、インターネット接続が可能です。また、BSアンテナ・CSアンテナもありますので、おうち時間も充実するでしょう(別途工事、契約料が必要な場合あり)。
建物にはエレベーターがついているので、重い荷物があっても安心。共用部には宅配ボックスが設定されているので、不在の時にも荷物を受け取ることができます。
お金・契約の情報
※「-」と表示されているものは、実際は料金が発生するものもございます。詳細はお問い合わせください。
| 家賃 | 32万円 | 管理費・共益費 | 1万円 |
|---|---|---|---|
| 敷金 | なし | 礼金 | 50万円 |
| 入居決定でお祝い金最大100,000円 | |||
| 保証金 | - | 償却・敷引 | - |
| 住宅保険料 | 住宅保険料あり | 更新料 | - |
| 契約形態 | - | 契約期間 | 1年 |
| 入居・引渡期間 | 即時 | 現況 | 空室 |
| 契約備考 | 御所南エリアに分譲並みの充実した設備の高級賃貸マンション募集開始致しました。阪急・烏丸駅へも徒歩圏内。大手ハウスメーカー施工の耐震性も優れた建物で間取りは100平米越え、かなり広いです。 総戸数5戸なのでお早めにお問合せ下さいませ。 お問合せは京都ライフ四条烏丸店まで… 入居者サポート:1,000円 更新料:15,000円 保証会社:利用必須 初回:月額賃料等の60%、月額:支払い手数料として月額賃料等の1% その他設備/条件:1階の物件、コンロ2口以上、独立洗面台、TVドアホン、即入居可 | ||
部屋の情報
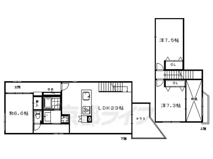
| 間取り | 3LDK | 専有面積 | 105.26m2 |
|---|---|---|---|
| 間取り詳細 | 和室(6帖)、洋室(7.5帖)、洋室(7.3帖)、LDK(23帖) | ||
| 所在階 / 向き | 1階 / 東 | バルコニー面積 | - |
| 水道 / ガス | ガス【都市】 | ||
| 設備 | バス・トイレ別、オートロック、宅配ボックス、浴室乾燥機、インターネット対応、システムキッチン、カウンターキッチン、エアコン、エレベーター、温水洗浄便座、角部屋、フローリング、バリアフリー、コンロ:ガス、CSアンテナ、BSアンテナ、専用庭、洗濯機:室内 | ||
| 当社物件ID | 159561333 | ||
建物の情報
| 建物名 | 京都市烏丸線 烏丸御池駅 徒歩4分 3階建 築7年 | ||
|---|---|---|---|
| 所在地 | 京都府京都市中京区蛸薬師町 | ||
| 交通 | 京都市烏丸線 烏丸御池駅 徒歩4分 京都市烏丸線 丸太町駅(京都市営) 徒歩6分 | ||
| 階数 | 3階建 | 総戸数 | - |
| 築年月 | 2019年09月 / 築7年 | エレベーター | あり |
| 駐車場 | - | バイク置き場 | - |
| 駐輪場 | あり | 管理人/管理会社 | - |
| 建物種別 | マンション | 建物構造 | RC(鉄筋コンクリート) |
この部屋の取扱い不動産会社
| 会社名 | 株式会社 京都ライフ 河原町四条店(賃貸スモッカ経由) | ||
|---|---|---|---|
| 所在地 | 京都市中京区河原町通三条下る三丁目奈良屋町291-2 Wise core BLD.1階 | 交通 | - |
| 営業時間 | - | 定休日 | - |
| 免許番号 | 京都府知事(11)第6353号 | 取引態様 | 仲介 |
| 不動産会社管理番号 | kyotolife_69436-101-26 | 当社管理番号 | 463 |
| 所属団体 | 京都府宅地建物取引業協会\n公益社団法人近畿地区不動産公正取引協議会 | ||
| 公正取引協議会 | 全国宅地建物取引業保証協会 | ||
| 取扱い物件情報 | 物件詳細へ | ||
※各種情報と現状に差異がある場合は、現状優先となります。問い合わせをすることで、より詳しい条件、情報を確認する事ができます。
提供:株式会社 京都ライフ 河原町四条店(賃貸スモッカ経由)
この物件が気になったら掲載期限まであと6日
京都市烏丸線 烏丸御池駅 徒歩4分 3階建 築7年に条件(家賃・エリア)が近い物件一覧
| 写真 | 家賃 管理費等 | 敷金 礼金 | 間取り 専有面積 | 築年数 | 最寄り駅 所在地 | キープ | 詳細 |
|---|---|---|---|---|---|---|---|
マンション 京都市烏丸線 烏丸御池駅 徒歩4分 築12年(3LDK/11階) | |||||||
![]() | 24万円 なし | 24万円 48万円 | 3LDK 65.59m2 | 築12年 | 京都市烏丸線 烏丸御池駅 徒歩4分 京都市烏丸線 四条駅(京都市営) 徒歩13分 京都府京都市中京区中之町 | 詳細を見る | |
マンション 阪急電鉄京都線 京都河原町駅 徒歩4分 築11年(3LDK/7階) | |||||||
![]() | 24万円 なし | 24万円 36万円 | 3LDK 66.62m2 | 築11年 | 阪急電鉄京都線 京都河原町駅 徒歩4分 京阪電気鉄道京阪線 祇園四条駅 徒歩7分 京都府京都市中京区裏寺町 | 詳細を見る | |
マンション LINDEN夷町(2LDK/2階) | |||||||
![]() | 20.2万円 1万円 | 20.2万円 40.4万円 | 2LDK 70.45m2 | 築1年 | 地下鉄烏丸線 丸太町駅(京都市営) 徒歩4分 地下鉄烏丸線 烏丸御池駅 徒歩7分 京阪鴨東線 神宮丸太町駅 徒歩18分 京都府京都市中京区夷町 | 詳細を見る | |
マンション 京都市東西線 京都市役所前駅 徒歩5分 築10年(1SLDK/9階) | |||||||
![]() | 25万円 1.806万円 | 25万円 なし | 1SLDK 68.41m2 | 築10年 | 京都市東西線 京都市役所前駅 徒歩5分 京都市東西線 烏丸御池駅 徒歩7分 京都府京都市中京区上白山町 | 詳細を見る | |
マンション 京都市烏丸線 丸太町駅(京都市営) 徒歩7分 築6年(3LDK/3階) | |||||||
![]() | 27万円 2万円 | 27万円 54万円 | 3LDK 64.37m2 | 築6年 | 京都市烏丸線 丸太町駅(京都市営) 徒歩7分 京都市烏丸線 烏丸御池駅 徒歩8分 京都府京都市中京区六丁目 | 詳細を見る | |
マンション 京都市東西線 京都市役所前駅 徒歩5分 築23年(2LDK/8階) | |||||||
![]() | 27万円 なし | 27万円 27万円 | 2LDK 90.32m2 | 築23年 | 京都市東西線 京都市役所前駅 徒歩5分 京阪電気鉄道鴨東線 神宮丸太町駅 徒歩8分 京都府京都市中京区清水町 | 詳細を見る | |
マンション 京都市烏丸線 丸太町駅(京都市営) 徒歩4分 築11年(3LDK/2階) | |||||||
![]() | 23.8万円 1万円 | 5万円 30万円 | 3LDK 77.4m2 | 築11年 | 京都市烏丸線 丸太町駅(京都市営) 徒歩4分 京都市烏丸線 烏丸御池駅 徒歩8分 京都府京都市中京区鏡屋町 | 詳細を見る | |
マンション 京都市烏丸線 烏丸御池駅 徒歩4分 築19年(2LDK/5階) | |||||||
![]() | 23万円 なし | なし 44万円 | 2LDK 61.7m2 | 築19年 | 京都市烏丸線 烏丸御池駅 徒歩4分 京都市烏丸線 丸太町駅(京都市営) 徒歩6分 京都府京都市中京区金吹町 | 詳細を見る | |









