賃貸マンション
パークウェル麻布十番の賃貸物件情報(1K/9階)
| 家賃 | 管理費等 | 敷金 | 礼金 | 間取り | 専有面積 |
|---|---|---|---|---|---|
| 10.5万円 | 1万円 | 10.5万円 | 10.5万円 | 1K | 20.44m2 |
入居決定でお祝い金最大100,000円
- 保証金
- -
- 償却・敷引
- -
- 築年数
- 築24年
- 所在階
- 9階
- 向き
- -
Point
土日祝日営業中/オンライン内見対応可能/初期費用カード決済可能
提供:いつでも賃貸 (株)ルーム管理(SUUMO経由)

詳細情報 パークウェル麻布十番
物件紹介
パークウェル麻布十番は東京メトロ南北線麻布十番駅から徒歩6分にあり、駅近で通勤通学に便利なマンションです。
このお部屋は2階以上に位置しているので、通行人や周囲の住人からの視線が気になりにくく、防犯面でも安心。建物のエントランスはオートロックがついており、インターホンにはTVモニタもついているため、相手の顔を確認してから来客対応することができます。
人気の角部屋で周囲の居住者の生活音も気になりにくく、また、フローリングのお部屋なのでお掃除もラクラク。キッチンはシステムキッチン仕様になっていますので、お料理好きの方にもぴったり。また、バス・トイレは別で、のんびりお風呂タイムも楽しめるでしょう。
通信設備面では、インターネット接続が可能です。また、BSアンテナもありますので、おうち時間も充実するでしょう(別途工事、契約料が必要な場合あり)。
建物にはエレベーターがついているので、重い荷物があっても安心。共用部には宅配ボックスが設定されているので、不在の時にも荷物を受け取ることができます。
このお部屋は2階以上に位置しているので、通行人や周囲の住人からの視線が気になりにくく、防犯面でも安心。建物のエントランスはオートロックがついており、インターホンにはTVモニタもついているため、相手の顔を確認してから来客対応することができます。
人気の角部屋で周囲の居住者の生活音も気になりにくく、また、フローリングのお部屋なのでお掃除もラクラク。キッチンはシステムキッチン仕様になっていますので、お料理好きの方にもぴったり。また、バス・トイレは別で、のんびりお風呂タイムも楽しめるでしょう。
通信設備面では、インターネット接続が可能です。また、BSアンテナもありますので、おうち時間も充実するでしょう(別途工事、契約料が必要な場合あり)。
建物にはエレベーターがついているので、重い荷物があっても安心。共用部には宅配ボックスが設定されているので、不在の時にも荷物を受け取ることができます。
お金・契約の情報
※「-」と表示されているものは、実際は料金が発生するものもございます。詳細はお問い合わせください。
| 家賃 | 10.5万円 | 管理費・共益費 | 1万円 |
|---|---|---|---|
| 敷金 | 10.5万円 | 礼金 | 10.5万円 |
| 入居決定でお祝い金最大100,000円 | |||
| 保証金 | - | 償却・敷引 | - |
| 住宅保険料 | - | 更新料 | - |
| 保証会社利用 | 必須 | 保証会社名 | - |
| 保証会社費用 | - | 保証会社備考 | 保証会社利用必 初回総賃料40% |
| 契約形態 | - | 契約期間 | - |
| 入居・引渡期間 | 即時 | 現況 | - |
| 契約備考 | 巡回管理/土日祝日営業中/オンライン内見対応可能/初期費用カード決済可能 合計2.75万円(内訳:鍵交換代2.75万円) 24H駆けつけサービス 月額1430円 1K 事務所利用不可 普通借家2年 損保【要】 バストイレ別、バルコニー、エアコン、ガスコンロ対応、クロゼット、フローリング、TVインターホン、オートロック、室内洗濯置、シューズボックス、システムキッチン、角住戸、エレベーター、2口コンロ、駐輪場、宅配ボックス、即入居可、保証人不要、敷金1ヶ月、2沿線利用可、ネット専用回線、2駅利用可、3駅以上利用可、3沿線以上利用可、駅徒歩10分以内、都市ガス、BS、礼金1ヶ月 | ||
部屋の情報
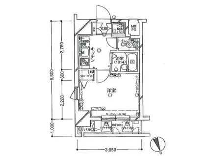
| 間取り | 1K | 専有面積 | 20.44m2 |
|---|---|---|---|
| 所在階 / 向き | 9階 / - | バルコニー面積 | - |
| 水道 / ガス | - | ||
| 設備 | バス・トイレ別、2階以上、オートロック、テレビドアホン、宅配ボックス、インターネット対応、システムキッチン、エアコン、エレベーター、角部屋、バルコニー、フローリング、2口コンロ、コンロ:ガス、BSアンテナ、洗濯機:室内 | ||
| 当社物件ID | 7468668 | ||
建物の情報
| 建物名 | パークウェル麻布十番 | ||
|---|---|---|---|
| 所在地 | 東京都港区三田 | ||
| 交通 | 東京メトロ南北線 麻布十番駅 徒歩6分 都営大江戸線 赤羽橋駅 徒歩6分 都営三田線 芝公園駅 徒歩11分 | ||
| 階数 | 10階建 | 総戸数 | - |
| 築年月 | 2002年06月 / 築24年 | エレベーター | あり |
| 駐車場 | なし | バイク置き場 | - |
| 駐輪場 | あり | 管理人/管理会社 | - |
| 周辺環境 | その他 ファミリーマート 三田一丁目店(コンビニ)まで117m その他 くすりの福太郎東麻布店(ドラッグストア)まで252m その他 麻布警察署一之橋交番(警察署・交番)まで402m その他 ローソン 麻布十番店(コンビニ)まで558m その他 ファミリーマート 一の橋店(コンビニ)まで557m その他 フレッシュネスバーガー 麻布十番店(飲食店)まで558m | ||
| 建物種別 | マンション | 建物構造 | RC(鉄筋コンクリート) |
この部屋の取扱い不動産会社
| 会社名 | いつでも賃貸 (株)ルーム管理(SUUMO経由) | ||
|---|---|---|---|
| 所在地 | 東京都中央区銀座6-13-16 ヒューリック銀座ウォールビル7階 | 交通 | - |
| 営業時間 | 24時間受付可能です♪ | 定休日 | 年中無休 |
| 免許番号 | 東京都知事107995 | 取引態様 | 仲介 |
| 不動産会社管理番号 | 100485894427 | 当社管理番号 | 89 |
| 取扱い物件情報 | 物件詳細へ | ||
※各種情報と現状に差異がある場合は、現状優先となります。問い合わせをすることで、より詳しい条件、情報を確認する事ができます。
提供:いつでも賃貸 (株)ルーム管理(SUUMO経由)
この物件が気になったら掲載期限まであと10日
パークウェル麻布十番に条件(家賃・エリア)が近い物件一覧
| 写真 | 家賃 管理費等 | 敷金 礼金 | 間取り 専有面積 | 築年数 | 最寄り駅 所在地 | キープ | 詳細 |
|---|---|---|---|---|---|---|---|
マンション コンフォリア木場公園(1K/5階) | |||||||
![]() | 11.4万円 5,000円 | 11.4万円 なし | 1K 21.35m2 | 築19年 | 東京メトロ東西線 木場駅 徒歩4分 都営大江戸線 門前仲町駅 徒歩13分 JR京葉線 越中島駅 徒歩21分 東京都江東区木場 | 詳細を見る | |
マンション クレストコート門前仲町(1DK/10階) | |||||||
![]() | 15.5万円 1.2万円 | 15.5万円 なし | 1DK 26.14m2 | 築1年 | 都営大江戸線 門前仲町駅 徒歩7分 JR京葉線 越中島駅 徒歩11分 東京メトロ日比谷線 八丁堀駅(東京) 徒歩15分 東京都江東区永代 | 詳細を見る | |
マンション エステムコート亀戸東京イースト(1K/9階) | |||||||
![]() | 10.5万円 9,000円 | なし なし | 1K 26.1m2 | 築6年 | 総武・中央緩行線 亀戸駅 徒歩8分 東武鉄道亀戸線 亀戸駅 徒歩8分 東武鉄道亀戸線 亀戸水神駅 徒歩9分 東京都江東区亀戸4丁目 | 詳細を見る | |
マンション コンフォリア錦糸町DEUX(1K/2階) | |||||||
![]() | 12万円 1万円 | 12万円 12万円 | 1K 25.6m2 | 築10年 | 都営新宿線 住吉駅(東京) 徒歩6分 JR総武線快速 錦糸町駅 徒歩7分 東京メトロ半蔵門線 錦糸町駅 徒歩7分 東京都江東区毛利 | 詳細を見る | |
マンション スカイコートリュクス品川大崎(1K/2階) | |||||||
![]() | 12.6万円 7,000円 | 12.6万円 12.6万円 | 1K 24.21m2 | 築1年 | 東急大井町線 下神明駅 徒歩9分 JR山手線 大崎駅 徒歩9分 東急大井町線 大井町駅 徒歩19分 東京都品川区西品川 | 詳細を見る | |
マンション ブランシエスタ品川大井町パークエッジ(1DK/2階) | |||||||
![]() | 14.7万円 1.2万円 | なし なし | 1DK 26.7m2 | 築1年 | 京急本線 青物横丁駅 徒歩5分 JR京浜東北線 大井町駅 徒歩9分 京急本線 新馬場駅 徒歩11分 東京都品川区南品川 | 詳細を見る | |







