賃貸マンション
ルネスロワール博多駅南の賃貸物件情報(ワンルーム/10階)
| 家賃 | 管理費等 | 敷金 | 礼金 | 間取り | 専有面積 |
|---|---|---|---|---|---|
| 4.3万円 | 3,000円 | なし | なし | ワンルーム | 21.12m2 |
入居決定でお祝い金最大100,000円
- 保証金
- -
- 償却・敷引
- -
- 築年数
- 築35年
- 所在階
- 10階
- 向き
- -
Point
肥後銀行南博多支店まで261mです。室内設備はBS・全居室フローリングなど大変充実しております。リーズナブルな価格で敷金不要という魅力的な物件です。こちらのお部屋で新しい生活を始めてみませんか。丁寧か
提供:(株)エスアイパートナー(SUUMO経由)

詳細情報 ルネスロワール博多駅南
物件紹介
ルネスロワール博多駅南は地下鉄空港線博多駅から徒歩12分にあるマンションです。
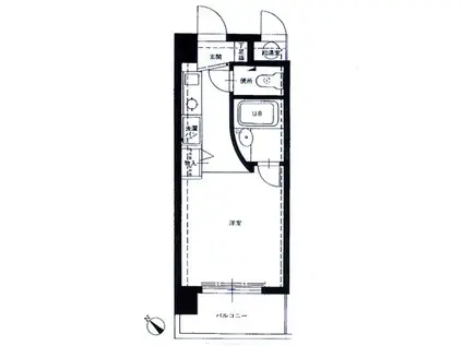
このお部屋は2階以上に位置しているので通行人や周囲の住人からの視線が気になりにくく、建物のエントランスはオートロックがついているので防犯性が高くなっています。
フローリングのお部屋なのでお掃除もラクラク。キッチンはシステムキッチン仕様になっていますので、お料理好きの方にもぴったり。また、バス・トイレは別で、のんびりお風呂タイムも楽しめるでしょう。
通信設備面では、インターネット接続が可能です。また、BSアンテナがありCATVにも対応しているので、おうち時間も充実するでしょう(別途工事、契約料が必要な場合あり)。
建物にはエレベーターがついているので、重い荷物があっても安心。
このお部屋は2階以上に位置しているので通行人や周囲の住人からの視線が気になりにくく、建物のエントランスはオートロックがついているので防犯性が高くなっています。
フローリングのお部屋なのでお掃除もラクラク。キッチンはシステムキッチン仕様になっていますので、お料理好きの方にもぴったり。また、バス・トイレは別で、のんびりお風呂タイムも楽しめるでしょう。
通信設備面では、インターネット接続が可能です。また、BSアンテナがありCATVにも対応しているので、おうち時間も充実するでしょう(別途工事、契約料が必要な場合あり)。
建物にはエレベーターがついているので、重い荷物があっても安心。
お金・契約の情報
※「-」と表示されているものは、実際は料金が発生するものもございます。詳細はお問い合わせください。
| 家賃 | 4.3万円 | 管理費・共益費 | 3,000円 |
|---|---|---|---|
| 敷金 | なし | 礼金 | なし |
| 入居決定でお祝い金最大100,000円 | |||
| 保証金 | - | 償却・敷引 | - |
| 住宅保険料 | - | 更新料 | - |
| 契約形態 | - | 契約期間 | - |
| 入居・引渡期間 | 相談 | 現況 | - |
| 契約備考 | 巡回管理 ワンルーム 普通借家2年 損保【要】 バストイレ別、バルコニー、エアコン、クロゼット、フローリング、オートロック、室内洗濯置、シューズボックス、システムキッチン、エレベーター、駐輪場、CATV、光ファイバー、礼金不要、敷金不要、IHクッキングヒーター、分譲賃貸、バイク置場、オール電化、全居室フローリング、2駅利用可、敷地内ごみ置き場、BS、敷金・礼金不要、IT重説対応物件、初期費用カード決済可 | ||
部屋の情報
| 間取り | ワンルーム | 専有面積 | 21.12m2 |
|---|---|---|---|
| 所在階 / 向き | 10階 / - | バルコニー面積 | - |
| 水道 / ガス | - | ||
| 設備 | バス・トイレ別、2階以上、オートロック、インターネット対応、システムキッチン、エアコン、エレベーター、バルコニー、フローリング、オール電化、コンロ:IH、CATV、BSアンテナ、洗濯機:室内 | ||
| 当社物件ID | 27719842 | ||
建物の情報
| 建物名 | ルネスロワール博多駅南 | ||
|---|---|---|---|
| 所在地 | 福岡県福岡市博多区博多駅南 | ||
| 交通 | 地下鉄空港線 博多駅 徒歩12分 地下鉄空港線 東比恵駅 徒歩12分 地下鉄空港線 祇園駅(福岡) 徒歩22分 | ||
| 階数 | 11階建 | 総戸数 | 68戸 |
| 築年月 | 1991年06月 / 築35年 | エレベーター | あり |
| 駐車場 | なし | バイク置き場 | あり |
| 駐輪場 | あり | 管理人/管理会社 | - |
| 周辺環境 | その他 マルショク 駅南店(スーパー)まで196m その他 MrMax(ミスターマックス) Select美野島店(その他)まで763m その他 ファミリーマート 博多東住吉店(コンビニ)まで98m その他 駅南ピーチ薬局(ドラッグストア)まで385m その他 平井クリニック(病院)まで1243m その他 肥後銀行南博多支店(銀行)まで261m | ||
| 建物種別 | マンション | 建物構造 | RC(鉄筋コンクリート) |
この部屋の取扱い不動産会社
| 会社名 | (株)エスアイパートナー(SUUMO経由) | ||
|---|---|---|---|
| 所在地 | 福岡県福岡市中央区白金1-4-25 セントラルイマージュ405 | 交通 | - |
| 営業時間 | 10:00~18:00 | 定休日 | 水曜日 |
| 免許番号 | 福岡県知事20747 | 取引態様 | 仲介 |
| 不動産会社管理番号 | 100473851779 | 当社管理番号 | 89 |
| 所属団体 | (公社)福岡県宅地建物取引業協会会員 | ||
| 公正取引協議会 | (一社)九州不動産公正取引協議会加盟 | ||
| 取扱い物件情報 | 物件詳細へ | ||
※各種情報と現状に差異がある場合は、現状優先となります。問い合わせをすることで、より詳しい条件、情報を確認する事ができます。
提供:(株)エスアイパートナー(SUUMO経由)
この物件が気になったら掲載期限まであと10日
ルネスロワール博多駅南に条件(家賃・エリア)が近い物件一覧
| 写真 | 家賃 管理費等 | 敷金 礼金 | 間取り 専有面積 | 築年数 | 最寄り駅 所在地 | キープ | 詳細 |
|---|---|---|---|---|---|---|---|
マンション パーム南福岡(ワンルーム/3階) | |||||||
![]() | 2.9万円 2,000円 | なし なし | ワンルーム 16.5m2 | 築38年 | 鹿児島本線 南福岡駅 徒歩4分 福岡県福岡市博多区元町2丁目 | 詳細を見る | |
マンション パラッツオ春日(ワンルーム/2階) | |||||||
![]() | 4.1万円 4,000円 | なし なし | ワンルーム 25m2 | 築34年 | 鹿児島本線 春日駅(福岡) 徒歩4分 西鉄天神大牟田線 春日原駅 徒歩6分 鹿児島本線 南福岡駅 徒歩21分 福岡県春日市春日原北町4丁目 | 詳細を見る | |
マンション ロイヤルプラザ88(ワンルーム/2階) | |||||||
![]() | 3.3万円 なし | なし なし | ワンルーム 23m2 | 築38年 | 西鉄天神大牟田線 春日原駅 徒歩7分 鹿児島本線 春日駅(福岡) 徒歩11分 西鉄天神大牟田線 白木原駅 徒歩13分 福岡県春日市春日原東町4丁目 | 詳細を見る | |
アパート 西鉄天神大牟田線 井尻駅 徒歩15分 築32年(2LDK/2階) | |||||||
![]() | 5.5万円 3,000円 | なし なし | 2LDK 56.29m2 | 築32年 | 西鉄天神大牟田線 井尻駅 徒歩15分 鹿児島本線 笹原駅 徒歩19分 鹿児島本線 南福岡駅 徒歩27分 福岡県春日市須玖北7丁目 | 詳細を見る | |
アパート LE LIEN和(1LDK/2階) | |||||||
![]() | 6.5万円 2,000円 | 6.5万円 6.5万円 | 1LDK 41.33m2 | 築11年 | 鹿児島本線 南福岡駅 徒歩27分 鹿児島本線 笹原駅 徒歩28分 福岡県春日市須玖南4丁目 | 詳細を見る | |
アパート リブリ・岡本Ⅱ(1K/1階) | |||||||
![]() | 5.5万円 4,000円 | なし 5.5万円 | 1K 26.91m2 | 築5年 | 鹿児島本線 南福岡駅 徒歩20分 西鉄天神大牟田線 雑餉隈駅 徒歩25分 西鉄天神大牟田線 井尻駅 徒歩28分 福岡県春日市岡本2丁目 | 詳細を見る | |
アパート フラテッリ G(1K/2階) | |||||||
![]() | 6.5万円 2,800円 | なし 6.5万円 | 1K 36.31m2 | 築1年 | 西鉄天神大牟田線 雑餉隈駅 徒歩25分 鹿児島本線 笹原駅 徒歩25分 西鉄天神大牟田線 井尻駅 徒歩31分 福岡県大野城市仲畑1丁目 | 詳細を見る | |
アパート クレストひかりまち(1K/2階) | |||||||
![]() | 4.5万円 3,000円 | なし なし | 1K 25.16m2 | 築17年 | 鹿児島本線 春日駅(福岡) 徒歩9分 西鉄天神大牟田線 春日原駅 徒歩16分 鹿児島本線 南福岡駅 徒歩20分 福岡県春日市光町3丁目 | 詳細を見る | |









