賃貸マンション
ファインコートビッグワン今里の賃貸物件情報(4LDK/5階)
| 家賃 | 管理費等 | 敷金 | 礼金 | 間取り | 専有面積 |
|---|---|---|---|---|---|
| 9万円 | なし | 18万円 | 9万円 | 4LDK | 93m2 |
入居決定でお祝い金最大100,000円
- 保証金
- -
- 償却・敷引
- -
- 築年数
- 築36年
- 所在階
- 5階
- 向き
- 南
Point
当店ではご自宅にいながら、スマホ等を使っての「オンライン内見」、「オンライン重説」でのご契約手続きまで、非対面での対応が可能です!現地(物件)にいるスタッフとWebを使ってリアルタイムで内見できます。
提供:いい部屋ネット大東建託リーシング(株)高松店(SUUMO経由)

詳細情報 ファインコートビッグワン今里
物件紹介
ファインコートビッグワン今里は高松琴平電鉄琴平線栗林公園駅から徒歩10分にあり、駅近で通勤通学に便利なマンションです。
このお部屋は2階以上に位置しているので通行人や周囲の住人からの視線が気になりにくく、建物のエントランスはオートロックがついているので防犯性が高くなっています。
人気の南向きのお部屋。また、フローリングなのでお掃除もラクラク。キッチンはシステムキッチン仕様になっていますので、お料理好きの方にもぴったり。また、バス・トイレは別で、のんびりお風呂タイムも楽しめるでしょう。
このお部屋は2階以上に位置しているので通行人や周囲の住人からの視線が気になりにくく、建物のエントランスはオートロックがついているので防犯性が高くなっています。
人気の南向きのお部屋。また、フローリングなのでお掃除もラクラク。キッチンはシステムキッチン仕様になっていますので、お料理好きの方にもぴったり。また、バス・トイレは別で、のんびりお風呂タイムも楽しめるでしょう。
お金・契約の情報
※「-」と表示されているものは、実際は料金が発生するものもございます。詳細はお問い合わせください。
| 家賃 | 9万円 | 管理費・共益費 | なし |
|---|---|---|---|
| 敷金 | 18万円 | 礼金 | 9万円 |
| 入居決定でお祝い金最大100,000円 | |||
| 保証金 | - | 償却・敷引 | - |
| 住宅保険料 | - | 更新料 | - |
| 保証会社利用 | 必須 | 保証会社名 | 全保連 |
| 保証会社費用 | - | 保証会社備考 | 全保連利用必 初回総賃料50%、毎年1.3万円 |
| 契約形態 | - | 契約期間 | - |
| 入居・引渡期間 | 即時 | 現況 | - |
| 契約備考 | 4LDK 損保【要】 バストイレ別、バルコニー、クロゼット、フローリング、シャワー付洗面台、オートロック、シューズボックス、システムキッチン、南向き、温水洗浄便座、洗面所独立、駐輪場、最上階、分譲賃貸、グリル付、2面バルコニー、エアコン2台、敷金2ヶ月、保証金不要、専有面積25坪以上、礼金1ヶ月、IT重説対応物件、初期費用カード決済可 | ||
部屋の情報
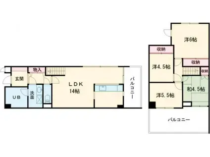
| 間取り | 4LDK | 専有面積 | 93m2 |
|---|---|---|---|
| 所在階 / 向き | 5階 / 南 | バルコニー面積 | - |
| 水道 / ガス | - | ||
| 設備 | バス・トイレ別、2階以上、オートロック、システムキッチン、エアコン、温水洗浄便座、南向き、バルコニー、フローリング、洗髪洗面化粧台 | ||
| 当社物件ID | 22144106 | ||
建物の情報
| 建物名 | ファインコートビッグワン今里 | ||
|---|---|---|---|
| 所在地 | 香川県高松市今里町 | ||
| 交通 | 高松琴平電鉄琴平線 栗林公園駅 徒歩10分 高松琴平電鉄長尾線 花園駅(高松) 徒歩12分 JR高徳線 栗林駅 徒歩13分 | ||
| 階数 | 5階建 | 総戸数 | - |
| 築年月 | 1990年02月 / 築36年 | エレベーター | - |
| 駐車場 | 空有 付無料 | バイク置き場 | - |
| 駐輪場 | あり | 管理人/管理会社 | - |
| 周辺環境 | その他 コープ 栗林店(スーパー)まで1161m その他 うどんバカ一代(飲食店)まで1163m その他 四季食彩館ムーミー 花園店(スーパー)まで1122m その他 マルヨシセンター 松縄店(スーパー)まで1285m その他 ローソン 高松今里町二丁目店(コンビニ)まで614m その他 カレーハウスココ壱番屋高松松縄店(飲食店)まで1348m | ||
| 建物種別 | マンション | 建物構造 | RC(鉄筋コンクリート) |
この部屋の取扱い不動産会社
| 会社名 | いい部屋ネット大東建託リーシング(株)高松店(SUUMO経由) | ||
|---|---|---|---|
| 所在地 | 香川県高松市松縄町 1136-14 | 交通 | - |
| 営業時間 | 10:00~12:30・13:30~18:00 | 定休日 | 火・水 |
| 免許番号 | 国土交通大臣9120 | 取引態様 | 仲介 |
| 不動産会社管理番号 | 100482326328 | 当社管理番号 | 89 |
| 所属団体 | (公財)日本賃貸住宅管理協会会員 | ||
| 公正取引協議会 | (公社)首都圏不動産公正取引協議会加盟 | ||
| 取扱い物件情報 | 物件詳細へ | ||
※各種情報と現状に差異がある場合は、現状優先となります。問い合わせをすることで、より詳しい条件、情報を確認する事ができます。
提供:いい部屋ネット大東建託リーシング(株)高松店(SUUMO経由)
この物件が気になったら掲載期限まであと11日
ファインコートビッグワン今里に条件(家賃・エリア)が近い物件一覧
| 写真 | 家賃 管理費等 | 敷金 礼金 | 間取り 専有面積 | 築年数 | 最寄り駅 所在地 | キープ | 詳細 |
|---|---|---|---|---|---|---|---|
マンション ソレアード古新町(1K/9階) | |||||||
![]() | 6.2万円 7,000円 | なし 6.2万円 | 1K 30.45m2 | 築26年 | JR高徳線 高松駅(香川) 徒歩7分 高松琴平電鉄琴平線 高松築港駅 徒歩9分 香川県高松市古新町 | 詳細を見る | |
アパート ルーチェ A棟(2LDK/1階) | |||||||
![]() | 6.5万円 5,500円 | なし 6.5万円 | 2LDK 59.58m2 | 築17年 | 高徳線 木太町駅 徒歩8分 香川県高松市木太町 | 詳細を見る | |
アパート J.リヴェール高松西宝町 C棟(1LDK/1階) | |||||||
![]() | 7.3万円 6,000円 | なし 14.6万円 | 1LDK 41.29m2 | 築1年 | 高徳線 昭和町駅(香川) 徒歩8分 香川県高松市西宝町2丁目 | 詳細を見る | |
アパート I・セレブ香川町A・B(2LDK/1階) | |||||||
![]() | 5.7万円 2,000円 | なし 5.7万円 | 2LDK 62.89m2 | 築17年 | 高松琴平電鉄琴平線 空港通り駅 徒歩37分 高松琴平電鉄琴平線 一宮駅 徒歩38分 高松琴平電鉄琴平線 仏生山駅 徒歩51分 香川県高松市香川町大野 | 詳細を見る | |
マンション S-RESIDENCE中央町ALECTRA(1K/9階) | |||||||
![]() | 6.85万円 8,000円 | なし 6.85万円 | 1K 26.01m2 | 築1年 | 高徳線 栗林公園北口駅 徒歩7分 香川県高松市中央町 | 詳細を見る | |
アパート NAGOMI(1LDK/1階) | |||||||
![]() | 6.6万円 5,000円 | なし 6.6万円 | 1LDK 41.01m2 | 築4年 | 高松琴平電鉄琴平線 太田駅(高松) 徒歩7分 高松琴平電鉄琴平線 三条駅(高松) 徒歩28分 香川県高松市太田上町 | 詳細を見る | |
アパート エスペランス太田(1LDK/1階) | |||||||
![]() | 6.45万円 4,600円 | なし 8.45万円 | 1LDK 50.01m2 | 新築 | 高松琴平電鉄琴平線 伏石駅 徒歩10分 香川県高松市太田下町 | 詳細を見る | |
アパート 808MY(1LDK/2階) | |||||||
![]() | 7.5万円 5,000円 | なし 15万円 | 1LDK 37.95m2 | 築2年 | 高徳線 高松駅(香川) 徒歩12分 香川県高松市浜ノ町 | 詳細を見る | |




/105x80-f1-q70-wp1)

/105x80-f1-q70-wp1)

/105x80-f1-q70-wp1)
/105x80-f1-q70-wp1)