賃貸アパート
LUNA PARK HORIKIRIの賃貸物件情報(ワンルーム/3階)
| 家賃 | 管理費等 | 敷金 | 礼金 | 間取り | 専有面積 |
|---|---|---|---|---|---|
| 6.7万円 | 9,000円 | なし | なし | ワンルーム | 21.94m2 |
入居決定でお祝い金最大100,000円
- 保証金
- -
- 償却・敷引
- -
- 築年数
- 築10年
- 所在階
- 3階
- 向き
- 北
Point
知らない人が来た時でも玄関を開けずに顔を確認できるTVインターホンが付いております。
提供:アパマンショップ新小岩店

詳細情報 LUNA PARK HORIKIRI
物件紹介
LUNA PARK HORIKIRIは京成電鉄本線堀切菖蒲園駅から徒歩7分にあり、駅近で通勤通学に便利なアパートです。
このお部屋は2階以上に位置しているので、通行人や周囲の住人からの視線が気になりにくく、防犯面でも安心。インターホンにはTVモニタもついているため、相手の顔を確認してから来客対応することができます。
人気の角部屋で周囲の居住者の生活音も気になりにくく、また、フローリングのお部屋なのでお掃除もラクラク。室内にはウォークインクローゼットがありますので、たくさんの荷物も効率的に収納ができます。キッチンはシステムキッチン仕様になっていますので、お料理好きの方にもぴったり。また、バス・トイレは別で、のんびりお風呂タイムも楽しめるでしょう。
通信設備面では、インターネットが無料で使えるので、月々の出費を抑えられるのも魅力です。また、CATVにも対応しているので、おうち時間も充実するでしょう(別途工事、CATVの契約料等が必要な場合あり)。
ペット飼育の相談ができますので、あなたの大切な家族の一員も快適に暮らせるか、ぜひ確認してみてください。
コンビニまで徒歩7分の場所にあり、日用品や食料品のお買い物にも便利です。
このお部屋は2階以上に位置しているので、通行人や周囲の住人からの視線が気になりにくく、防犯面でも安心。インターホンにはTVモニタもついているため、相手の顔を確認してから来客対応することができます。
人気の角部屋で周囲の居住者の生活音も気になりにくく、また、フローリングのお部屋なのでお掃除もラクラク。室内にはウォークインクローゼットがありますので、たくさんの荷物も効率的に収納ができます。キッチンはシステムキッチン仕様になっていますので、お料理好きの方にもぴったり。また、バス・トイレは別で、のんびりお風呂タイムも楽しめるでしょう。
通信設備面では、インターネットが無料で使えるので、月々の出費を抑えられるのも魅力です。また、CATVにも対応しているので、おうち時間も充実するでしょう(別途工事、CATVの契約料等が必要な場合あり)。
ペット飼育の相談ができますので、あなたの大切な家族の一員も快適に暮らせるか、ぜひ確認してみてください。
コンビニまで徒歩7分の場所にあり、日用品や食料品のお買い物にも便利です。
お金・契約の情報
※「-」と表示されているものは、実際は料金が発生するものもございます。詳細はお問い合わせください。
| 家賃 | 6.7万円 | 管理費・共益費 | 9,000円 |
|---|---|---|---|
| 敷金 | なし | 礼金 | なし |
| 入居決定でお祝い金最大100,000円 | |||
| 保証金 | - | 償却・敷引 | - |
| 住宅保険料 | 1円 | 更新料 | - |
| その他費用 | 24時間安心サポート:2.2万円、17600円: | ||
| 保証会社利用 | 必須 | 保証会社名 | - |
| 保証会社費用 | - | 保証会社備考 | 初回保証料:家賃総額55%〜 |
| 契約形態 | - | 契約期間 | 2年 |
| 入居・引渡期間 | 2026年01月中旬 | 現況 | - |
| 入居可能条件 | 2人入居可、ペット相談 | ||
| 契約備考 | 鍵交換費用:22000 その他設備/条件:室内洗濯機置き場、独立洗面台、クローゼット、シューズボックス | ||
部屋の情報
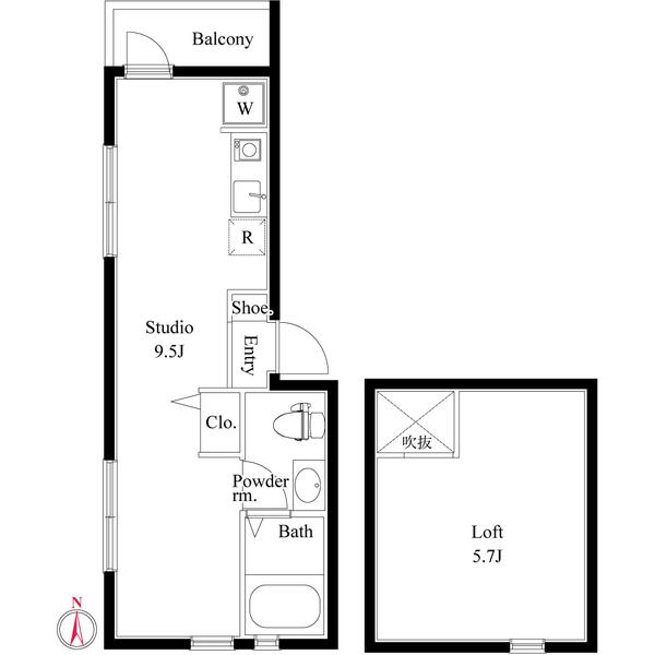
| 間取り | ワンルーム | 専有面積 | 21.94m2 |
|---|---|---|---|
| 間取り詳細 | 洋室(9.5帖)、その他(5.7帖) | ||
| 所在階 / 向き | 3階 / 北 | バルコニー面積 | - |
| 水道 / ガス | 水道【公営】、ガス【都市】 | ||
| 設備 | バス・トイレ別、テレビドアホン、追い焚き、インターネット対応、システムキッチン、エアコン、温水洗浄便座、角部屋、バルコニー、フローリング、ロフトあり、洗髪洗面化粧台、コンロ:IH、CATV、シャワー、給湯、1口コンロ | ||
| 当社物件ID | 21565812 | ||
建物の情報
| 建物名 | LUNA PARK HORIKIRI | ||
|---|---|---|---|
| 所在地 | 東京都葛飾区堀切5丁目 | ||
| 交通 | 京成電鉄本線 堀切菖蒲園駅 徒歩9分 京成電鉄本線 お花茶屋駅 徒歩12分 | ||
| 階数 | 3階建 | 総戸数 | 6戸 |
| 築年月 | 2016年08月 / 築10年 | エレベーター | - |
| 駐車場 | なし | バイク置き場 | - |
| 駐輪場 | - | 管理人/管理会社 | - |
| 周辺環境 | コンビニ 徒歩7分(504m) 販売店 徒歩6分(463m) その他 ドラッグストア その他 公園 その他 銀行 その他 堀切菖蒲園 徒歩9分(720m) | ||
| 建物種別 | アパート | 建物構造 | 木造 |
この部屋の取扱い不動産会社
| 会社名 | ハウスコム東東京株式会社 青砥店 | ||
|---|---|---|---|
| 所在地 | 東京都葛飾区2-20 メゾン・ノア1階 | 交通 | - |
| 営業時間 | 10:00~18:00 | 定休日 | - |
| 免許番号 | 東京都知事(1)第108283号 | 取引態様 | 仲介 |
| 不動産会社管理番号 | HC2-809665-301-0102 | 当社管理番号 | 468 |
| 所属団体 | 、 | ||
| 取扱い物件情報 | 物件詳細へ | ||
※各種情報と現状に差異がある場合は、現状優先となります。問い合わせをすることで、より詳しい条件、情報を確認する事ができます。
提供:ハウスコム東東京株式会社 青砥店
この物件が気になったら掲載期限まであと4日
LUNA PARK HORIKIRIに条件(家賃・エリア)が近い物件一覧
| 写真 | 家賃 管理費等 | 敷金 礼金 | 間取り 専有面積 | 築年数 | 最寄り駅 所在地 | キープ | 詳細 |
|---|---|---|---|---|---|---|---|
アパート ハイム73(1K/2階) | |||||||
![]() | 6.5万円 3,000円 | 6.5万円 なし | 1K 19.87m2 | 築35年 | 京成電鉄本線 京成小岩駅 徒歩6分 総武・中央緩行線 小岩駅 徒歩9分 京成電鉄本線 江戸川駅 徒歩13分 東京都江戸川区北小岩2丁目 | 詳細を見る | |
マンション CITY CREATION SKY(1K/3階) | |||||||
![]() | 10.5万円 7,000円 | なし 10.5万円 | 1K 25.27m2 | 築6年 | 東京都浅草線 本所吾妻橋駅 徒歩6分 京成電鉄押上線 押上駅 徒歩7分 東京地下鉄半蔵門線 押上駅 徒歩7分 東京都墨田区向島1丁目 | 詳細を見る | |
マンション ストーク両国緑(ワンルーム/2階) | |||||||
![]() | 6.9万円 9,000円 | 6.9万円 6.9万円 | ワンルーム 22.05m2 | 築37年 | 東京都大江戸線 両国駅 徒歩4分 東京都墨田区緑1丁目 | 詳細を見る | |
マンション スカイコート両国壱番館(ワンルーム/5階) | |||||||
![]() | 9.11万円 5,900円 | 9.11万円 9.11万円 | ワンルーム 23.4m2 | 築24年 | 総武・中央緩行線 両国駅 徒歩3分 東京都浅草線 東日本橋駅 徒歩11分 東京都新宿線 浜町駅 徒歩16分 東京都墨田区両国2丁目 | 詳細を見る | |
マンション プレールドゥーク両国(1K/5階) | |||||||
![]() | 8.8万円 8,000円 | なし 8.8万円 | 1K 20.5m2 | 築17年 | 東京都大江戸線 両国駅 徒歩8分 総武・中央緩行線 両国駅 徒歩12分 東京都大江戸線 蔵前駅 徒歩12分 東京都墨田区石原1丁目 | 詳細を見る | |
マンション クレイシア両国ルクール(1K/1階) | |||||||
![]() | 9.6万円 1.2万円 | 9.6万円 9.6万円 | 1K 25.84m2 | 築8年 | 東京都大江戸線 両国駅 徒歩7分 総武・中央緩行線 両国駅 徒歩13分 総武・中央緩行線 錦糸町駅 徒歩18分 東京都墨田区石原2丁目 | 詳細を見る | |
マンション サンライズコーポ(ワンルーム/3階) | |||||||
![]() | 8.7万円 5,000円 | 8.7万円 なし | ワンルーム 21.26m2 | 築40年 | 東京都浅草線 本所吾妻橋駅 徒歩4分 東京地下鉄銀座線 浅草駅(東武・都営・メトロ) 徒歩8分 東京都墨田区東駒形3丁目 | 詳細を見る | |
マンション OG錦糸町(1K/5階) | |||||||
![]() | 10.2万円 8,000円 | なし 10.2万円 | 1K 25.37m2 | 築9年 | 総武本線 錦糸町駅 徒歩8分 東京地下鉄半蔵門線 錦糸町駅 徒歩8分 東京都大江戸線 両国駅 徒歩14分 東京都墨田区亀沢4丁目 | 詳細を見る | |



/105x80-f1-q70-wp1)




