賃貸アパート
レオパレスサウスWINDの賃貸物件情報(1K/1階)
| 家賃 | 管理費等 | 敷金 | 礼金 | 間取り | 専有面積 |
|---|---|---|---|---|---|
| 5.7万円 | 5,000円 | なし | 5.7万円 | 1K | 22.35m2 |
入居決定でお祝い金最大100,000円
- 保証金
- -
- 償却・敷引
- -
- 築年数
- 築21年
- 所在階
- 1階
- 向き
- -
Point
まずはお問い合わせ!
不動産会社は街のプロ、あなたに合った物件がきっと見つかります。
提供:ハウスコム東海株式会社 四日市店

詳細情報 レオパレスサウスWIND
物件紹介
このお部屋のインターホンにはTVモニタがついているため、相手の顔を確認してから来客対応することができます。
バス・トイレ別の仕様で、のんびりお風呂タイムも楽しめます。
通信設備面では、インターネット接続が可能です(別途工事、契約料が必要な場合あり)。
共用部には宅配ボックスが設定されているので、不在の時にも荷物を受け取ることができます。
バス・トイレ別の仕様で、のんびりお風呂タイムも楽しめます。
通信設備面では、インターネット接続が可能です(別途工事、契約料が必要な場合あり)。
共用部には宅配ボックスが設定されているので、不在の時にも荷物を受け取ることができます。
お金・契約の情報
※「-」と表示されているものは、実際は料金が発生するものもございます。詳細はお問い合わせください。
| 家賃 | 5.7万円 | 管理費・共益費 | 5,000円 |
|---|---|---|---|
| 敷金 | なし | 礼金 | 5.7万円 |
| 入居決定でお祝い金最大100,000円 | |||
| 保証金 | - | 償却・敷引 | - |
| 住宅保険料 | 1円 | 更新料 | - |
| その他費用 | 抗菌施工(任意):2.376万円 | ||
| 保証会社利用 | 必須 | 保証会社名 | - |
| 保証会社費用 | - | 保証会社備考 | 保証料:70190円(契約内容により100〜120%で変動有)※記載金額は120%の場合 |
| 契約形態 | - | 契約期間 | - |
| 入居・引渡期間 | 即時 | 現況 | - |
| 契約備考 | 月額(環境維持費 550円) 鍵交換費用:16500 室内清掃費用:41800 その他設備/条件:室内洗濯機置き場 | ||
部屋の情報
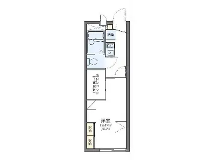
| 間取り | 1K | 専有面積 | 22.35m2 |
|---|---|---|---|
| 所在階 / 向き | 1階 / - | バルコニー面積 | - |
| 水道 / ガス | - | ||
| 設備 | バス・トイレ別、テレビドアホン、宅配ボックス、光ファイバー対応、エアコン、温水洗浄便座、コンロ:電気 | ||
| 当社物件ID | 7300678 | ||
建物の情報
| 建物名 | レオパレスサウスWIND | ||
|---|---|---|---|
| 所在地 | 三重県鈴鹿市庄野羽山4丁目 | ||
| 交通 | 近鉄鈴鹿線 平田町駅 バス乗車時間:13分 ベルシティ正面前バス停で下車 徒歩10分 | ||
| 階数 | 2階建 | 総戸数 | 20戸 |
| 築年月 | 2005年09月 / 築21年 | エレベーター | - |
| 駐車場 | 空有 4,950円/月 | バイク置き場 | - |
| 駐輪場 | - | 管理人/管理会社 | - |
| 周辺環境 | 販売店 徒歩25分(1986m) その他 ドラッグストア その他 公園 その他 銀行 その他 * | ||
| 建物種別 | アパート | 建物構造 | 軽量鉄骨造 |
この部屋の取扱い不動産会社
| 会社名 | ハウスコム東海株式会社 四日市店 | ||
|---|---|---|---|
| 所在地 | 三重県四日市市7-25 2階 | 交通 | - |
| 営業時間 | 10:00~18:00 | 定休日 | - |
| 免許番号 | 国土交通大臣(1)第10227号 | 取引態様 | 仲介 |
| 不動産会社管理番号 | HC5-1680927-108-0014 | 当社管理番号 | 468 |
| 所属団体 | 、 | ||
| 取扱い物件情報 | 物件詳細へ | ||
※各種情報と現状に差異がある場合は、現状優先となります。問い合わせをすることで、より詳しい条件、情報を確認する事ができます。
提供:ハウスコム東海株式会社 四日市店
この物件が気になったら掲載期限まであと4日
レオパレスサウスWINDに条件(家賃・エリア)が近い物件一覧
| 写真 | 家賃 管理費等 | 敷金 礼金 | 間取り 専有面積 | 築年数 | 最寄り駅 所在地 | キープ | 詳細 |
|---|---|---|---|---|---|---|---|
マンション 大谷ヒルズC(3LDK/3階) | |||||||
![]() | 7.4万円 4,000円 | なし なし | 3LDK 66.74m2 | 築37年 | 近鉄名古屋線 津駅 徒歩10分 JR紀勢本線 津駅 徒歩11分 近鉄名古屋線 江戸橋駅 徒歩28分 三重県津市大谷町 | 詳細を見る | |
マンション リーウ ドムール(1DK/1階) | |||||||
![]() | 4.3万円 4,500円 | なし なし | 1DK 32.64m2 | 築24年 | 近鉄名古屋線 川原町駅 徒歩12分 近鉄名古屋線 阿倉川駅 徒歩20分 近鉄名古屋線 近鉄四日市駅 徒歩30分 三重県四日市市清水町 | 詳細を見る | |
アパート レオパレスクレール藤田(1K/2階) | |||||||
![]() | 4.9万円 5,000円 | なし なし | 1K 26.08m2 | 築22年 | 四日市あすなろう 小古曽駅 徒歩7分 三重県四日市市小古曽東2丁目 | 詳細を見る | |
一戸建て 近鉄名古屋線 塩浜駅 徒歩2分 築46年(2SK) | |||||||
![]() | 4.3万円 なし | 8.6万円 なし | 2SK 40m2 | 築46年 | 近鉄名古屋線 塩浜駅 徒歩2分 三重県四日市市馳出町2丁目 | 詳細を見る | |
アパート プレミールボヌールC(2LDK/2階) | |||||||
![]() | 4.8万円 6,000円 | なし なし | 2LDK 48.02m2 | 築23年 | 近鉄名古屋線 豊津上野駅 徒歩16分 近鉄名古屋線 千里駅(三重) 徒歩17分 伊勢鉄道 伊勢上野駅 徒歩19分 三重県津市河芸町上野 | 詳細を見る | |
マンション プレミールボヌール G棟(2LDK/1階) | |||||||
![]() | 5.1万円 6,000円 | なし なし | 2LDK 52.54m2 | 築18年 | 近鉄名古屋線 千里駅(三重) 徒歩13分 伊勢鉄道 伊勢上野駅 徒歩16分 近鉄名古屋線 豊津上野駅 徒歩18分 三重県津市河芸町上野 | 詳細を見る | |
マンション S-RESIDENCE四日市駅前COULEUR フリーレン(1K/3階) | |||||||
![]() | 7.05万円 8,500円 | なし なし | 1K 24.39m2 | 築1年 | 近鉄名古屋線 近鉄四日市駅 徒歩5分 JR関西本線 四日市駅 徒歩13分 近鉄名古屋線 新正駅 徒歩18分 三重県四日市市浜田町 | 詳細を見る | |
アパート ラ・ヴォーテ A(2DK/2階) | |||||||
![]() | 3.7万円 4,000円 | なし 3.7万円 | 2DK 40.3m2 | 築27年 | JR名松線 一志駅 徒歩13分 近鉄大阪線 川合高岡駅 徒歩13分 JR名松線 伊勢八太駅 徒歩30分 三重県津市一志町田尻 | 詳細を見る | |









