賃貸アパート
アーベインテラス久が原の賃貸物件情報(1LDK/1階)
| 家賃 | 管理費等 | 敷金 | 礼金 | 間取り | 専有面積 |
|---|---|---|---|---|---|
| 15.1万円 | 3,000円 | 15.1万円 | なし | 1LDK | 41.08m2 |
入居決定でお祝い金最大100,000円
Point
セキュリティ面は、オートロック・TVインターホンなどを備え付けているので安心して暮らせます。共用部には宅配ボックスが備え付けられているため、対面で荷物を受け取る必要がなくなります。室内設備は洗面化粧台
提供:(株)LOHOUSE三田店(SUUMO経由)

詳細情報 アーベインテラス久が原
物件紹介
アーベインテラス久が原は東急池上線久が原駅から徒歩5分にあり、駅近で通勤通学に便利なアパートです。
建物のエントランスはオートロックがついており、インターホンにはTVモニタもついているため、相手の顔を確認してから来客対応することができます。
キッチンはシステムキッチン仕様になっていますので、お料理好きの方にもぴったり。バス・トイレは別なので、のんびりお風呂タイムも楽しめるでしょう。また、雨の日でも浴室乾燥機を使えば、お洗濯も問題ありません。
通信設備面では、インターネット接続が可能です(別途工事、契約料が必要な場合あり)。
共用部には宅配ボックスが設定されているので、不在の時にも荷物を受け取ることができます。
建物のエントランスはオートロックがついており、インターホンにはTVモニタもついているため、相手の顔を確認してから来客対応することができます。
キッチンはシステムキッチン仕様になっていますので、お料理好きの方にもぴったり。バス・トイレは別なので、のんびりお風呂タイムも楽しめるでしょう。また、雨の日でも浴室乾燥機を使えば、お洗濯も問題ありません。
通信設備面では、インターネット接続が可能です(別途工事、契約料が必要な場合あり)。
共用部には宅配ボックスが設定されているので、不在の時にも荷物を受け取ることができます。
お金・契約の情報
※「-」と表示されているものは、実際は料金が発生するものもございます。詳細はお問い合わせください。
| 家賃 | 15.1万円 | 管理費・共益費 | 3,000円 |
|---|---|---|---|
| 敷金 | 15.1万円 | 礼金 | なし |
| 入居決定でお祝い金最大100,000円 | |||
| 保証金 | - | 償却・敷引 | - |
| 住宅保険料 | - | 更新料 | - |
| 保証会社利用 | 必須 | 保証会社名 | - |
| 保証会社費用 | - | 保証会社備考 | 保証会社利用必 賃料等50% 年更新料一万円 貸主指定保証会社加入要 |
| 契約形態 | - | 契約期間 | - |
| 入居・引渡期間 | - | 現況 | - |
| 契約備考 | 更新料 新賃料1.00ヶ月分 1LDK 二人入居可 普通借家2年 損保【2.2万円2年】 バストイレ別、エアコン、クロゼット、フローリング、TVインターホン、浴室乾燥機、オートロック、室内洗濯置、システムキッチン、追焚機能浴室、角住戸、温水洗浄便座、脱衣所、洗面所独立、洗面化粧台、宅配ボックス、礼金不要、2面採光、最上階、IHクッキングヒーター、ロフト、敷金1ヶ月、二人入居相談、2沿線利用可、メゾネット、ネット専用回線、保証金不要、築2年以内、24時間換気システム、複層ガラス、浴室未使用、トイレ未使用、2駅利用可、駅徒歩5分以内、駅徒歩10分以内、東南向き、2階LDK、都市ガス、洗面所にドア、年度内入居可 入居日:'26年1月下旬 | ||
部屋の情報
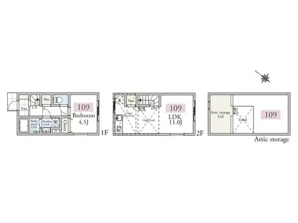
| 間取り | 1LDK | 専有面積 | 41.08m2 |
|---|---|---|---|
| 所在階 / 向き | 1階 / 南東 | バルコニー面積 | - |
| 水道 / ガス | - | ||
| 設備 | バス・トイレ別、オートロック、テレビドアホン、宅配ボックス、浴室乾燥機、追い焚き、インターネット対応、システムキッチン、エアコン、温水洗浄便座、南向き、角部屋、フローリング、ロフトあり、洗髪洗面化粧台、コンロ:IH、洗濯機:室内 | ||
| 当社物件ID | 160264446 | ||
建物の情報
| 建物名 | アーベインテラス久が原 | ||
|---|---|---|---|
| 所在地 | 東京都大田区南久が原 | ||
| 交通 | 東急池上線 久が原駅 徒歩5分 東急多摩川線 鵜の木駅 徒歩11分 | ||
| 階数 | 2階建 | 総戸数 | 9戸 |
| 築年月 | 2025年11月 / 築1年 | エレベーター | - |
| 駐車場 | なし | バイク置き場 | - |
| 駐輪場 | - | 管理人/管理会社 | - |
| 周辺環境 | その他 アイン薬局 下丸子店(ドラッグストア)まで1007m その他 森田内科クリニック(病院)まで1020m その他 ピザーラ久が原店(飲食店)まで297m その他 伴野内科クリニック(病院)まで249m その他 みずほ銀行上池上支店(銀行)まで317m その他 サミットストア久が原店食品館(スーパー)まで349m | ||
| 建物種別 | アパート | 建物構造 | 木造 |
この部屋の取扱い不動産会社
| 会社名 | (株)LOHOUSE三田店(SUUMO経由) | ||
|---|---|---|---|
| 所在地 | 東京都港区三田3-1-19 第12シグマビルディング三田5階 | 交通 | - |
| 営業時間 | 10:00~18:30 | 定休日 | 水曜日 |
| 免許番号 | 東京都知事99461 | 取引態様 | 仲介 |
| 不動産会社管理番号 | 100476769400 | 当社管理番号 | 89 |
| 所属団体 | (公社)全日本不動産協会東京都本部会員 | ||
| 公正取引協議会 | (公社)首都圏不動産公正取引協議会加盟 | ||
| 取扱い物件情報 | 物件詳細へ | ||
※各種情報と現状に差異がある場合は、現状優先となります。問い合わせをすることで、より詳しい条件、情報を確認する事ができます。
提供:(株)LOHOUSE三田店(SUUMO経由)
この物件が気になったら掲載期限まであと11日
アーベインテラス久が原に条件(家賃・エリア)が近い物件一覧
| 写真 | 家賃 管理費等 | 敷金 礼金 | 間取り 専有面積 | 築年数 | 最寄り駅 所在地 | キープ | 詳細 |
|---|---|---|---|---|---|---|---|
マンション クレマチス大井(2LDK/3階) | |||||||
![]() | 21.9万円 8,000円 | 21.9万円 43.8万円 | 2LDK 54.86m2 | 築5年 | JR横須賀線 西大井駅 徒歩10分 JR京浜東北線 大森駅(東京) 徒歩13分 京急本線 立会川駅 徒歩17分 東京都品川区大井 | 詳細を見る | |
アパート M SONIA KUGAHARA(ワンルーム/1階) | |||||||
![]() | 9.1万円 3,000円 | 9.1万円 13.65万円 | ワンルーム 24.64m2 | 築1年 | 東急池上線 久が原駅 徒歩8分 東急池上線 御嶽山駅 徒歩9分 東急多摩川線 鵜の木駅 徒歩13分 東京都大田区西嶺町 | 詳細を見る | |
マンション フロレシオ(1LDK/1階) | |||||||
![]() | 13.3万円 3,000円 | 13.3万円 13.3万円 | 1LDK 47.85m2 | 築13年 | 京急本線 大森町駅 徒歩12分 京急本線 梅屋敷駅(東京) 徒歩16分 京急本線 平和島駅 徒歩16分 東京都大田区大森東 | 詳細を見る | |
マンション WINGⅢ(1LDK/2階) | |||||||
![]() | 15.5万円 7,000円 | 15.5万円 31万円 | 1LDK 56.09m2 | 築6年 | 京浜急行電鉄本線 梅屋敷駅(東京) 徒歩10分 京浜急行電鉄本線 大森町駅 徒歩13分 京浜急行電鉄本線 京急蒲田駅 徒歩17分 東京都大田区北糀谷1丁目 | 詳細を見る | |
アパート SEED SAVE PETIRASU Ⅲ(1LDK/3階) | |||||||
![]() | 11.5万円 1万円 | 23万円 11.5万円 | 1LDK 35.83m2 | 新築 | 東京モノレール羽田 昭和島駅 徒歩12分 京浜急行電鉄本線 大森町駅 徒歩18分 東京都大田区大森東5丁目 | 詳細を見る | |
一戸建て 東京都新宿線 大島駅(東京) 徒歩7分 築77年(1DK) | |||||||
![]() | 15.8万円 1万円 | 15.8万円 15.8万円 | 1DK 27.91m2 | 築77年 | 東京都新宿線 大島駅(東京) 徒歩7分 東京都新宿線 西大島駅 徒歩7分 総武・中央緩行線 亀戸駅 徒歩11分 東京都江東区大島3丁目 | 詳細を見る | |







