賃貸マンション
ガーラ・ステーション横濱阪東橋の賃貸物件情報(1K/5階)
| 家賃 | 管理費等 | 敷金 | 礼金 | 間取り | 専有面積 |
|---|---|---|---|---|---|
| 6.8万円 | 9,000円 | 6.8万円 | 13.6万円 | 1K | 20.02m2 |
入居決定でお祝い金最大100,000円
- 保証金
- -
- 償却・敷引
- -
- 築年数
- 築12年
- 所在階
- 5階
- 向き
- 南東
Point
◇◆web申込利用可・賃料交渉・入居日交渉・仲介手数料割引等なんでもご相談ください◆◇ご契約金のお見積り等もお気軽にお問い合わせください◆◇
提供:(株)ネクストライフ新横浜店(SUUMO経由)

詳細情報 ガーラ・ステーション横濱阪東橋
物件紹介
ガーラ・ステーション横濱阪東橋はブルーライン阪東橋駅から徒歩2分にあり、駅近で通勤通学に便利なマンションです。
このお部屋は2階以上に位置しているので、通行人や周囲の住人からの視線が気になりにくく、防犯面でも安心。建物のエントランスはオートロックがついており、インターホンにはTVモニタもついているため、相手の顔を確認してから来客対応することができます。
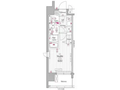
おしゃれなデザイナーズ物件!人気の南向き・フローリングのお部屋。角部屋でもあるため、周囲の居住者の生活音も気になりにくい場所です。キッチンはシステムキッチン仕様になっていますので、お料理好きの方にもぴったり。バス・トイレは別なので、のんびりお風呂タイムも楽しめるでしょう。また、雨の日でも浴室乾燥機を使えば、お洗濯も問題ありません。
通信設備面では、インターネット接続が可能です(別途工事、契約料が必要な場合あり)。
建物にはエレベーターがついているので、重い荷物があっても安心。共用部には宅配ボックスが設定されているので、不在の時にも荷物を受け取ることができます。
このお部屋は2階以上に位置しているので、通行人や周囲の住人からの視線が気になりにくく、防犯面でも安心。建物のエントランスはオートロックがついており、インターホンにはTVモニタもついているため、相手の顔を確認してから来客対応することができます。
おしゃれなデザイナーズ物件!人気の南向き・フローリングのお部屋。角部屋でもあるため、周囲の居住者の生活音も気になりにくい場所です。キッチンはシステムキッチン仕様になっていますので、お料理好きの方にもぴったり。バス・トイレは別なので、のんびりお風呂タイムも楽しめるでしょう。また、雨の日でも浴室乾燥機を使えば、お洗濯も問題ありません。
通信設備面では、インターネット接続が可能です(別途工事、契約料が必要な場合あり)。
建物にはエレベーターがついているので、重い荷物があっても安心。共用部には宅配ボックスが設定されているので、不在の時にも荷物を受け取ることができます。
お金・契約の情報
※「-」と表示されているものは、実際は料金が発生するものもございます。詳細はお問い合わせください。
| 家賃 | 6.8万円 | 管理費・共益費 | 9,000円 |
|---|---|---|---|
| 敷金 | 6.8万円 | 礼金 | 13.6万円 |
| 入居決定でお祝い金最大100,000円 | |||
| 保証金 | - | 償却・敷引 | - |
| 住宅保険料 | - | 更新料 | - |
| 保証会社利用 | 必須 | 保証会社名 | - |
| 保証会社費用 | - | 保証会社備考 | 保証会社利用必 初回保証料:月額総賃料の50%、月額保証料:月額総賃料の1.2% |
| 契約形態 | - | 契約期間 | - |
| 入居・引渡期間 | 相談 | 現況 | - |
| 契約備考 | 更新事務手数料:13200円 鍵交換代:23100円 退去時ルームクリーニング代:38500円 退去時エアコンクリーニング代:13200円 ◆お持ちのクレジットカードで初期費用の決済が可能です◆初期費用のお見積り等、お気軽にお問い合わせくださいませ◆◆ 更新料 新賃料1.00ヶ月分 1K 普通借家2年 損保【2万円2年】 バストイレ別、バルコニー、エアコン、ガスコンロ対応、クロゼット、フローリング、TVインターホン、浴室乾燥機、オートロック、室内洗濯置、シューズボックス、システムキッチン、角住戸、温水洗浄便座、脱衣所、エレベーター、洗面所独立、洗面化粧台、2口コンロ、駐輪場、宅配ボックス、光ファイバー、2面採光、防犯カメラ、分譲賃貸、保証人不要、カードキー、デザイナーズ、2沿線利用可、24時間換気システム、2駅利用可、3駅以上利用可、駅徒歩5分以内、駅徒歩10分以内、24時間ゴミ出し可、敷地内ごみ置き場、東南向き、都市ガス、初期費用カード決済可 | ||
部屋の情報
| 間取り | 1K | 専有面積 | 20.02m2 |
|---|---|---|---|
| 所在階 / 向き | 5階 / 南東 | バルコニー面積 | - |
| 水道 / ガス | - | ||
| 設備 | バス・トイレ別、2階以上、オートロック、テレビドアホン、宅配ボックス、浴室乾燥機、インターネット対応、システムキッチン、エアコン、エレベーター、温水洗浄便座、南向き、角部屋、バルコニー、フローリング、洗髪洗面化粧台、2口コンロ、コンロ:ガス、デザイナーズ、洗濯機:室内 | ||
| 当社物件ID | 12682767 | ||
建物の情報
| 建物名 | ガーラ・ステーション横濱阪東橋 | ||
|---|---|---|---|
| 所在地 | 神奈川県横浜市中区曙町 | ||
| 交通 | ブルーライン 阪東橋駅 徒歩2分 京急本線 黄金町駅 徒歩4分 ブルーライン 吉野町駅 徒歩7分 | ||
| 階数 | 10階建 | 総戸数 | - |
| 築年月 | 2014年03月 / 築12年 | エレベーター | あり |
| 駐車場 | なし | バイク置き場 | - |
| 駐輪場 | あり | 管理人/管理会社 | - |
| 周辺環境 | その他 セブンイレブン 横浜伊勢佐木町7丁目店(コンビニ)まで68m その他 ファミリーマート 伊勢佐木町六丁目店(コンビニ)まで187m その他 ドラッグストアスマイル横浜吉野町店(ドラッグストア)まで366m その他 ドラッグストア マツモトキヨシ 横浜前里町店(ドラッグストア)まで794m その他 まいばすけっと 吉野町5丁目店(スーパー)まで799m | ||
| 建物種別 | マンション | 建物構造 | RC(鉄筋コンクリート) |
この部屋の取扱い不動産会社
| 会社名 | (株)ネクストライフ横浜店(SUUMO経由) | ||
|---|---|---|---|
| 所在地 | 神奈川県横浜市神奈川区鶴屋町2-21-9 三善ビル5階 | 交通 | - |
| 営業時間 | 10:00~18:30(電話8:30~21:00) | 定休日 | 年末年始 |
| 免許番号 | 国土交通大臣8175 | 取引態様 | 仲介 |
| 不動産会社管理番号 | 100485788265 | 当社管理番号 | 89 |
| 所属団体 | (公社)神奈川県宅地建物取引業協会会員 | ||
| 公正取引協議会 | (公社)首都圏不動産公正取引協議会加盟 | ||
| 取扱い物件情報 | 物件詳細へ | ||
※各種情報と現状に差異がある場合は、現状優先となります。問い合わせをすることで、より詳しい条件、情報を確認する事ができます。
提供:(株)ネクストライフ横浜店(SUUMO経由)
この物件が気になったら掲載期限まであと11日
ガーラ・ステーション横濱阪東橋に条件(家賃・エリア)が近い物件一覧
| 写真 | 家賃 管理費等 | 敷金 礼金 | 間取り 専有面積 | 築年数 | 最寄り駅 所在地 | キープ | 詳細 |
|---|---|---|---|---|---|---|---|
アパート ヴェルナ・コート(1LDK/3階) | |||||||
![]() | 10.9万円 6,000円 | なし 21.8万円 | 1LDK 36.76m2 | 築1年 | JR南武線 矢向駅 徒歩17分 JR横須賀線 新川崎駅 徒歩22分 JR南武線 尻手駅 徒歩22分 神奈川県川崎市幸区小倉 | 詳細を見る | |
アパート ファミールラプラス(1K/1階) | |||||||
![]() | 6万円 なし | 6万円 なし | 1K 18.35m2 | 築36年 | 東急東横線 元住吉駅 徒歩15分 JR南武線 武蔵中原駅 徒歩18分 東急東横線 武蔵小杉駅 徒歩20分 神奈川県川崎市中原区井田三舞町 | 詳細を見る | |
アパート レオパレスSHIROYAMAIV(1K/2階) | |||||||
![]() | 6.7万円 5,000円 | なし 6.7万円 | 1K 19.87m2 | 築24年 | 東急田園都市線 つきみ野駅 徒歩10分 東急田園都市線 南町田グランベリーパーク駅 徒歩11分 小田急江ノ島線 中央林間駅 徒歩28分 神奈川県大和市下鶴間 | 詳細を見る | |
アパート シャンヴォールIZUMI(ワンルーム/1階) | |||||||
![]() | 5.5万円 3,000円 | 5.5万円 5.5万円 | ワンルーム 17.2m2 | 築34年 | 東急田園都市線 鷺沼駅 徒歩10分 東急田園都市線 たまプラーザ駅 徒歩16分 神奈川県川崎市宮前区鷺沼4丁目 | 詳細を見る | |
マンション エクセルシオⅡ(1K/1階) | |||||||
![]() | 6.8万円 3,000円 | なし 3.4万円 | 1K 25.58m2 | 築18年 | 小田急線 向ケ丘遊園駅 徒歩12分 小田急線 生田駅(神奈川) 徒歩19分 小田急線 登戸駅 徒歩21分 神奈川県川崎市多摩区枡形 | 詳細を見る | |
アパート サン ライズ(1LDK/2階) | |||||||
![]() | 8.8万円 4,000円 | 8.8万円 8.8万円 | 1LDK 47.64m2 | 築14年 | JR南武線 武蔵新城駅 徒歩26分 神奈川県川崎市宮前区野川本町 | 詳細を見る | |
マンション エリーテ元住吉(1K/3階) | |||||||
![]() | 6.95万円 8,000円 | 6.95万円 6.95万円 | 1K 22.31m2 | 築14年 | JR南武線 平間駅 徒歩14分 東急東横線 元住吉駅 徒歩15分 JR横須賀線 新川崎駅 徒歩18分 神奈川県川崎市幸区北加瀬 | 詳細を見る | |







