賃貸アパート
ブルースカイマンション諏訪栄の賃貸物件情報(1LDK/1階)
| 家賃 | 管理費等 | 敷金 | 礼金 | 間取り | 専有面積 |
|---|---|---|---|---|---|
| 7.8万円 | なし | なし | なし | 1LDK | 31.5m2 |
入居決定でお祝い金最大100,000円
- 保証金
- -
- 償却・敷引
- -
- 築年数
- 築54年
- 所在階
- 1階
- 向き
- -
Point
まずはお問い合わせ!
不動産会社は街のプロ、あなたに合った物件がきっと見つかります。
提供:(株)飯田商事(SUUMO経由)

詳細情報 ブルースカイマンション諏訪栄
物件紹介
ブルースカイマンション諏訪栄は近鉄名古屋線近鉄四日市駅から徒歩8分にあり、駅近で通勤通学に便利なアパートです。
このお部屋のインターホンにはTVモニタがついているため、相手の顔を確認してから来客対応することができます。
フローリングのお部屋なのでお掃除もラクラク。キッチンはシステムキッチン仕様になっていますので、お料理好きの方にもぴったり。また、バス・トイレは別で、のんびりお風呂タイムも楽しめるでしょう。
このお部屋のインターホンにはTVモニタがついているため、相手の顔を確認してから来客対応することができます。
フローリングのお部屋なのでお掃除もラクラク。キッチンはシステムキッチン仕様になっていますので、お料理好きの方にもぴったり。また、バス・トイレは別で、のんびりお風呂タイムも楽しめるでしょう。
お金・契約の情報
※「-」と表示されているものは、実際は料金が発生するものもございます。詳細はお問い合わせください。
| 家賃 | 7.8万円 | 管理費・共益費 | なし |
|---|---|---|---|
| 敷金 | なし | 礼金 | なし |
| 入居決定でお祝い金最大100,000円 | |||
| 保証金 | - | 償却・敷引 | - |
| 住宅保険料 | - | 更新料 | - |
| 保証会社利用 | 必須 | 保証会社名 | - |
| 保証会社費用 | - | 保証会社備考 | 保証会社利用必 株式会社オリコフォレントインシュア オリコ 初回保証料:月額総賃料50%(最低25,000円) 支払手数料家賃総額の2.3%/月 |
| 契約形態 | - | 契約期間 | - |
| 入居・引渡期間 | - | 現況 | - |
| 契約備考 | 合計1.98万円(内訳:カギ交換代(10%対象)1.98万円) 飯田住まいのサポート&安心保険1980円 1LDK 損保【1.8万円2年】 バストイレ別、エアコン、クロゼット、フローリング、シャワー付洗面台、TVインターホン、シューズボックス、システムキッチン、追焚機能浴室、温水洗浄便座、脱衣所、洗面所独立、洗面化粧台、礼金不要、敷金不要、照明付、オートバス、内外装リフォーム済、保証人不要、全居室フローリング、ガスレンジ付、仲手0.55ヶ月、ディンプルキー、内装リフォーム済、乾燥機、1フロア2住戸、複層ガラス、浴室未使用、トイレ未使用、3沿線以上利用可、駅徒歩10分以内、キッチン未使用、都市ガス、プロパンガス、洗面所にドア、敷金・礼金不要、IT重説対応物件、初期費用カード決済可 入居日:'26年2月下旬 | ||
部屋の情報
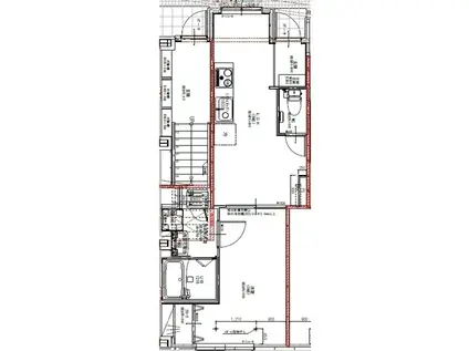
| 間取り | 1LDK | 専有面積 | 31.5m2 |
|---|---|---|---|
| 所在階 / 向き | 1階 / - | バルコニー面積 | - |
| 水道 / ガス | - | ||
| 設備 | バス・トイレ別、テレビドアホン、追い焚き、システムキッチン、エアコン、温水洗浄便座、フローリング、洗髪洗面化粧台、コンロ:ガス | ||
| 当社物件ID | 160299075 | ||
建物の情報
| 建物名 | ブルースカイマンション諏訪栄 | ||
|---|---|---|---|
| 所在地 | 三重県四日市市諏訪栄町 | ||
| 交通 | 近鉄名古屋線 近鉄四日市駅 徒歩8分 四日市あすなろう鉄道 あすなろう四日市駅 徒歩8分 JR関西本線 四日市駅 徒歩15分 | ||
| 階数 | 4階建 | 総戸数 | 2戸 |
| 築年月 | 1972年12月 / 築54年 | エレベーター | - |
| 駐車場 | なし | バイク置き場 | - |
| 駐輪場 | - | 管理人/管理会社 | - |
| 建物種別 | アパート | 建物構造 | 鉄骨造 |
この部屋の取扱い不動産会社
| 会社名 | (株)飯田商事(SUUMO経由) | ||
|---|---|---|---|
| 所在地 | 三重県鈴鹿市飯野寺家町 296-1 | 交通 | - |
| 営業時間 | 10:00~17:30 | 定休日 | 毎週水曜日 |
| 免許番号 | 三重県知事559 | 取引態様 | 仲介 |
| 不動産会社管理番号 | 100478305772 | 当社管理番号 | 89 |
| 所属団体 | (公社)三重県宅地建物取引業協会会員 | ||
| 公正取引協議会 | 東海不動産公正取引協議会加盟 | ||
| 取扱い物件情報 | 物件詳細へ | ||
※各種情報と現状に差異がある場合は、現状優先となります。問い合わせをすることで、より詳しい条件、情報を確認する事ができます。
提供:(株)飯田商事(SUUMO経由)
この物件が気になったら掲載期限まであと11日
ブルースカイマンション諏訪栄に条件(家賃・エリア)が近い物件一覧
| 写真 | 家賃 管理費等 | 敷金 礼金 | 間取り 専有面積 | 築年数 | 最寄り駅 所在地 | キープ | 詳細 |
|---|---|---|---|---|---|---|---|
アパート クラシックハウス(2DK/1階) | |||||||
![]() | 4.8万円 なし | なし なし | 2DK 39.6m2 | 築39年 | 三岐鉄道北勢線 星川駅(三重) 徒歩25分 三重県桑名市野田 | 詳細を見る | |
アパート ヴェル ドミール B(1LDK/1階) | |||||||
![]() | 7.25万円 5,000円 | なし 7.25万円 | 1LDK 50.14m2 | 新築 | 三岐鉄道北勢線 東員駅 徒歩15分 三重県員弁郡東員町大字鳥取 | 詳細を見る | |
マンション ラ・トゥール(3DK/3階) | |||||||
![]() | 4.7万円 3,500円 | なし なし | 3DK 59.22m2 | 築29年 | 近鉄名古屋線 白子駅 徒歩24分 伊勢鉄道 玉垣駅 徒歩30分 近鉄名古屋線 鼓ケ浦駅 徒歩38分 三重県鈴鹿市東旭が丘 | 詳細を見る | |
アパート フォルシュ(ワンルーム/1階) | |||||||
![]() | 4.8万円 4,600円 | なし 4.8万円 | ワンルーム 32.94m2 | 築10年 | 近鉄名古屋線 阿倉川駅 徒歩18分 近鉄名古屋線 霞ケ浦駅 徒歩23分 近鉄名古屋線 川原町駅 徒歩24分 三重県四日市市富士町 | 詳細を見る | |
マンション S-RESIDENCE四日市駅前COULEUR(1K/5階) | |||||||
![]() | 7.15万円 8,500円 | なし なし | 1K 24.39m2 | 築1年 | 四日市あすなろう鉄道 あすなろう四日市駅 徒歩3分 近鉄名古屋線 近鉄四日市駅 徒歩3分 JR関西本線 四日市駅 徒歩13分 三重県四日市市浜田町 | 詳細を見る | |
マンション レジデンス大野(1LDK/2階) | |||||||
![]() | 5.6万円 5,000円 | なし 5.6万円 | 1LDK 48m2 | 築36年 | 近鉄鈴鹿線 平田町駅 徒歩5分 三重県鈴鹿市算所 | 詳細を見る | |
マンション ツヴェルフII(1LDK/2階) | |||||||
![]() | 9万円 7,000円 | なし 18万円 | 1LDK 41.52m2 | 新築 | 近鉄名古屋線 阿倉川駅 徒歩3分 近鉄名古屋線 霞ケ浦駅 徒歩18分 近鉄名古屋線 川原町駅 徒歩20分 三重県四日市市阿倉川町 | 詳細を見る | |
マンション ステイツ四日市(3LDK/3階) | |||||||
![]() | 11万円 なし | 22万円 22万円 | 3LDK 71.37m2 | 築31年 | JR関西本線 四日市駅 徒歩10分 近鉄名古屋線 近鉄四日市駅 徒歩11分 近鉄湯の山線 近鉄四日市駅 徒歩11分 三重県四日市市諏訪町 | 詳細を見る | |









