賃貸マンション
ザハウス中野坂上IIの賃貸物件情報(1LDK/4階)
| 家賃 | 管理費等 | 敷金 | 礼金 | 間取り | 専有面積 |
|---|---|---|---|---|---|
| 19.8万円 | 2万円 | 19.8万円 | なし | 1LDK | 37.2m2 |
入居決定でお祝い金最大100,000円
- 保証金
- -
- 償却・敷引
- -
- 築年数
- 築2年
- 所在階
- 4階
- 向き
- 北東
Point
室内見学承ります・お客様のご都合に合わせてオンラインまたはお近くの店舗でご提案可・初期費用分割払い可・クレジットカード利用可・引越業者割引・初期費用のお見積や入居日のご相談もお気軽にお問合せください
提供:(株)クレアスレント横浜店(SUUMO経由)

詳細情報 ザハウス中野坂上II
物件紹介
ザハウス中野坂上IIは東京メトロ丸ノ内線中野新橋駅から徒歩4分にあり、駅近で通勤通学に便利なマンションです。
このお部屋は2階以上に位置しているので、通行人や周囲の住人からの視線が気になりにくく、防犯面でも安心。建物のエントランスはオートロックがついており、インターホンにはTVモニタもついているため、相手の顔を確認してから来客対応することができます。
おしゃれなデザイナーズ物件!人気の角部屋で周囲の居住者の生活音も気になりにくく、また、フローリングのお部屋なのでお掃除もラクラク。室内にはウォークインクローゼットがありますので、たくさんの荷物も効率的に収納ができます。キッチンはシステムキッチン仕様になっていますので、お料理好きの方にもぴったり。バス・トイレは別なので、のんびりお風呂タイムも楽しめるでしょう。また、雨の日でも浴室乾燥機を使えば、お洗濯も問題ありません。
通信設備面では、インターネットが無料で使えるので、月々の出費を抑えられるのも魅力です(別途工事等が必要な場合あり)。
共用部には宅配ボックスが設定されているので、不在の時にも荷物を受け取ることができます。また、ペット飼育の相談ができますので、あなたの大切な家族の一員も快適に暮らせるか、ぜひ確認してみてください。
このお部屋は2階以上に位置しているので、通行人や周囲の住人からの視線が気になりにくく、防犯面でも安心。建物のエントランスはオートロックがついており、インターホンにはTVモニタもついているため、相手の顔を確認してから来客対応することができます。
おしゃれなデザイナーズ物件!人気の角部屋で周囲の居住者の生活音も気になりにくく、また、フローリングのお部屋なのでお掃除もラクラク。室内にはウォークインクローゼットがありますので、たくさんの荷物も効率的に収納ができます。キッチンはシステムキッチン仕様になっていますので、お料理好きの方にもぴったり。バス・トイレは別なので、のんびりお風呂タイムも楽しめるでしょう。また、雨の日でも浴室乾燥機を使えば、お洗濯も問題ありません。
通信設備面では、インターネットが無料で使えるので、月々の出費を抑えられるのも魅力です(別途工事等が必要な場合あり)。
共用部には宅配ボックスが設定されているので、不在の時にも荷物を受け取ることができます。また、ペット飼育の相談ができますので、あなたの大切な家族の一員も快適に暮らせるか、ぜひ確認してみてください。
お金・契約の情報
※「-」と表示されているものは、実際は料金が発生するものもございます。詳細はお問い合わせください。
| 家賃 | 19.8万円 | 管理費・共益費 | 2万円 |
|---|---|---|---|
| 敷金 | 19.8万円 | 礼金 | なし |
| 入居決定でお祝い金最大100,000円 | |||
| 保証金 | - | 償却・敷引 | - |
| 住宅保険料 | - | 更新料 | - |
| 保証会社利用 | 必須 | 保証会社名 | - |
| 保証会社費用 | - | 保証会社備考 | 保証会社利用必 初回:月額総家賃の50%~ |
| 契約形態 | - | 契約期間 | - |
| 入居・引渡期間 | 相談 | 現況 | - |
| 入居可能条件 | ペット相談 | ||
| 契約備考 | 当物件はオンラインまたはお近くの店舗でご相談お申込を承ります。リライフは首都圏23店舗のネットワークで豊富な物件情報をご提供いたします。当物件に類似した未公開物件のご提案も可能です。お気軽にお問い合わせください。違約金有:短期解約時 合計6.05万円(内訳:鍵交換代金3.85万円プレミアデスク2年(初回のみ)2.2万円) 1LDK 二人入居可/ペット相談 損保【2万円2年】 バストイレ別、エアコン、ガスコンロ対応、クロゼット、フローリング、TVインターホン、浴室乾燥機、オートロック、室内洗濯置、シューズボックス、システムキッチン、角住戸、温水洗浄便座、脱衣所、洗面所独立、2口コンロ、宅配ボックス、最上階、ペット相談、ウォークインクロゼット、保証人不要、二人入居相談、全居室フローリング、3面採光、2沿線利用可、ネット使用料不要、24時間換気システム、始発駅、3駅以上利用可、上階無し、都市ガス、玄関収納、LAN、保証会社利用可、初期費用カード決済可、通風良好 敷金積み増し【ペット飼育の場合敷金1ヶ月(総額)】 | ||
部屋の情報
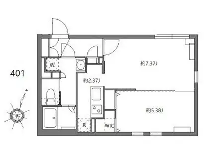
| 間取り | 1LDK | 専有面積 | 37.2m2 |
|---|---|---|---|
| 所在階 / 向き | 4階 / 北東 | バルコニー面積 | - |
| 水道 / ガス | - | ||
| 設備 | バス・トイレ別、2階以上、オートロック、テレビドアホン、宅配ボックス、浴室乾燥機、ウォークインクローゼット、インターネット対応、システムキッチン、エアコン、温水洗浄便座、角部屋、フローリング、洗髪洗面化粧台、2口コンロ、コンロ:ガス、インターネット使用料無料、洗濯機:室内 | ||
| 当社物件ID | 160509066 | ||
建物の情報
| 建物名 | ザハウス中野坂上II | ||
|---|---|---|---|
| 所在地 | 東京都中野区本町 | ||
| 交通 | 東京メトロ丸ノ内線 中野新橋駅 徒歩4分 東京メトロ丸ノ内線 中野坂上駅 徒歩9分 東京メトロ丸ノ内線 新中野駅 徒歩11分 | ||
| 階数 | 4階建 | 総戸数 | - |
| 築年月 | 2024年03月 / 築2年 | エレベーター | - |
| 駐車場 | なし | バイク置き場 | - |
| 駐輪場 | - | 管理人/管理会社 | - |
| 周辺環境 | その他 薬のヒグチ 中野新橋店(ドラッグストア)まで373m その他 マルエツ 中野新橋店(スーパー)まで314m その他 まいばすけっと 中野本町3丁目店(スーパー)まで415m その他 セブンイレブン 中野新橋店(コンビニ)まで177m その他 ローソン 中野本町新橋通り店(コンビニ)まで312m その他 ポニークリーニング 中野本町3丁目店(その他)まで139m | ||
| 建物種別 | マンション | 建物構造 | RC(鉄筋コンクリート) |
この部屋の取扱い不動産会社
| 会社名 | (株)リライフ早稲田店(SUUMO経由) | ||
|---|---|---|---|
| 所在地 | 東京都新宿区馬場下町 62 川合ビル2階 | 交通 | - |
| 営業時間 | 10:00~20:00 | 定休日 | なし |
| 免許番号 | 国土交通大臣10792 | 取引態様 | 仲介 |
| 不動産会社管理番号 | 100492105362 | 当社管理番号 | 89 |
| 所属団体 | (公社)東京都宅地建物取引業協会会員 | ||
| 公正取引協議会 | (公社)首都圏不動産公正取引協議会加盟 | ||
| 取扱い物件情報 | 物件詳細へ | ||
※各種情報と現状に差異がある場合は、現状優先となります。問い合わせをすることで、より詳しい条件、情報を確認する事ができます。
提供:(株)リライフ早稲田店(SUUMO経由)
この物件が気になったら掲載期限まであと12日
ザハウス中野坂上IIに条件(家賃・エリア)が近い物件一覧
| 写真 | 家賃 管理費等 | 敷金 礼金 | 間取り 専有面積 | 築年数 | 最寄り駅 所在地 | キープ | 詳細 |
|---|---|---|---|---|---|---|---|
マンション ALTERNA東池袋(2K/7階) | |||||||
![]() | 15.3万円 1万円 | なし なし | 2K 25.74m2 | 築4年 | 都電荒川線 都電雑司ケ谷駅 徒歩4分 東京メトロ有楽町線 東池袋駅 徒歩5分 都電荒川線 東池袋四丁目駅 徒歩7分 東京都豊島区南池袋 | 詳細を見る | |
マンション フルール アベニール(1LDK/1階) | |||||||
![]() | 19.9万円 1万円 | なし 39.8万円 | 1LDK 46.05m2 | 新築 | JR山手線 高田馬場駅 徒歩6分 東京メトロ副都心線 西早稲田駅 徒歩14分 JR山手線 新大久保駅 徒歩17分 東京都新宿区高田馬場 | 詳細を見る | |
マンション RENARD(1DK/1階) | |||||||
![]() | 17万円 8,000円 | 17万円 28.9万円 | 1DK 40.62m2 | 築4年 | 京王線 笹塚駅 徒歩6分 京王新線 幡ケ谷駅 徒歩11分 小田急線 東北沢駅 徒歩11分 東京都渋谷区笹塚 | 詳細を見る | |
アパート BHテラス江古田(1LDK/2階) | |||||||
![]() | 12万円 5,000円 | なし なし | 1LDK 40.13m2 | 築11年 | 都営大江戸線 新江古田駅 徒歩13分 都営大江戸線 落合南長崎駅 徒歩14分 西武池袋線 東長崎駅 徒歩15分 東京都中野区江古田 | 詳細を見る | |
アパート J-ARC上石神井(1K/4階) | |||||||
![]() | 12.9万円 1.1万円 | なし 12.9万円 | 1K 26.15m2 | 築1年 | 西武新宿線 上石神井駅 徒歩4分 西武新宿線 上井草駅 徒歩16分 西武新宿線 武蔵関駅 徒歩25分 東京都練馬区上石神井 | 詳細を見る | |
マンション メゾンさくら(3LDK/2階) | |||||||
![]() | 27万円 1万円 | 27万円 なし | 3LDK 84.43m2 | 築17年 | 小田急線 代々木八幡駅 徒歩8分 東京メトロ千代田線 代々木公園駅 徒歩8分 京王新線 初台駅 徒歩11分 東京都渋谷区初台 | 詳細を見る | |
アパート ダイアーズスクエア(1LDK/2階) | |||||||
![]() | 13.9万円 6,000円 | なし 27.8万円 | 1LDK 48.75m2 | 築10年 | 東京メトロ副都心線 地下鉄赤塚駅 徒歩2分 東京メトロ有楽町線 地下鉄赤塚駅 徒歩2分 東武東上線 下赤塚駅 徒歩5分 東京都練馬区田柄 | 詳細を見る | |
マンション BLANCOURT阿佐ヶ谷(2LDK/1階) | |||||||
![]() | 26.5万円 1.5万円 | 26.5万円 26.5万円 | 2LDK 55.54m2 | 築1年 | 中央本線 阿佐ケ谷駅 徒歩4分 東京都杉並区阿佐谷南3丁目 | 詳細を見る | |








