賃貸マンション
コンフォートTFの賃貸物件情報(1K/8階)
| 家賃 | 管理費等 | 敷金 | 礼金 | 間取り | 専有面積 |
|---|---|---|---|---|---|
| 8.5万円 | 8,000円 | なし | 8.5万円 | 1K | 24.22m2 |
入居決定でお祝い金最大100,000円
- 保証金
- -
- 償却・敷引
- -
- 築年数
- 築10年
- 所在階
- 8階
- 向き
- -
Point
3月29日退去予定、先行契約受付中!横浜駅から平坦です♪追い焚き♪システムキッチン♪独立洗面台♪浴室乾燥機♪フローリング♪TVモニタフォン♪宅配BOX♪オートロック♪
提供:(株)All Round(SUUMO経由)

詳細情報 コンフォートTF
物件紹介
コンフォートTFはJR京浜東北線横浜駅から徒歩8分にあり、駅近で通勤通学に便利なマンションです。
このお部屋は2階以上に位置しているので、通行人や周囲の住人からの視線が気になりにくく、防犯面でも安心。建物のエントランスはオートロックがついており、インターホンにはTVモニタもついているため、相手の顔を確認してから来客対応することができます。
フローリングのお部屋なのでお掃除もラクラク。キッチンはシステムキッチン仕様になっていますので、お料理好きの方にもぴったり。バス・トイレは別なので、のんびりお風呂タイムも楽しめるでしょう。また、雨の日でも浴室乾燥機を使えば、お洗濯も問題ありません。
通信設備面では、インターネット接続が可能です(別途工事、契約料が必要な場合あり)。
建物にはエレベーターがついているので、重い荷物があっても安心。共用部には宅配ボックスが設定されているので、不在の時にも荷物を受け取ることができます。
このお部屋は2階以上に位置しているので、通行人や周囲の住人からの視線が気になりにくく、防犯面でも安心。建物のエントランスはオートロックがついており、インターホンにはTVモニタもついているため、相手の顔を確認してから来客対応することができます。
フローリングのお部屋なのでお掃除もラクラク。キッチンはシステムキッチン仕様になっていますので、お料理好きの方にもぴったり。バス・トイレは別なので、のんびりお風呂タイムも楽しめるでしょう。また、雨の日でも浴室乾燥機を使えば、お洗濯も問題ありません。
通信設備面では、インターネット接続が可能です(別途工事、契約料が必要な場合あり)。
建物にはエレベーターがついているので、重い荷物があっても安心。共用部には宅配ボックスが設定されているので、不在の時にも荷物を受け取ることができます。
お金・契約の情報
※「-」と表示されているものは、実際は料金が発生するものもございます。詳細はお問い合わせください。
| 家賃 | 8.5万円 | 管理費・共益費 | 8,000円 |
|---|---|---|---|
| 敷金 | なし | 礼金 | 8.5万円 |
| 入居決定でお祝い金最大100,000円 | |||
| 保証金 | - | 償却・敷引 | - |
| 住宅保険料 | - | 更新料 | - |
| 保証会社利用 | 必須 | 保証会社名 | 日本セーフティー |
| 保証会社費用 | - | 保証会社備考 | 日本セーフティー利用必 初回保証料:保証人ありの場合50% 保証人なしの場合60% 月額保証料:800円/月 |
| 契約形態 | - | 契約期間 | - |
| 入居・引渡期間 | - | 現況 | - |
| 契約備考 | 法人契約の場合、諸条件要確認。※動画は11階のものになります。 町内会費300円/月額 修繕費55,000円、くらしーど24:16,500円 1K 損保【1.8万円2年】 バストイレ別、バルコニー、エアコン、ガスコンロ対応、クロゼット、シャワー付洗面台、TVインターホン、浴室乾燥機、オートロック、室内洗濯置、シューズボックス、システムキッチン、追焚機能浴室、脱衣所、エレベーター、洗面所独立、洗面化粧台、2口コンロ、駐輪場、宅配ボックス、光ファイバー、外壁タイル張り、敷金不要、防犯カメラ、全居室収納、オートバス、全居室洋室、保証人不要、全居室フローリング、ガスレンジ付、ネット専用回線、駅まで平坦、眺望良好、平坦地、始発駅、3駅以上利用可、3沿線以上利用可、駅徒歩10分以内、敷地内ごみ置き場、全居室6畳以上、都市ガス、室内物干機、高速ネット対応 入居日:'26年4月中旬 | ||
部屋の情報
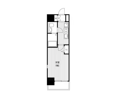
| 間取り | 1K | 専有面積 | 24.22m2 |
|---|---|---|---|
| 所在階 / 向き | 8階 / - | バルコニー面積 | - |
| 水道 / ガス | - | ||
| 設備 | バス・トイレ別、2階以上、オートロック、テレビドアホン、宅配ボックス、浴室乾燥機、追い焚き、インターネット対応、システムキッチン、エアコン、エレベーター、バルコニー、フローリング、洗髪洗面化粧台、2口コンロ、コンロ:ガス、洗濯機:室内 | ||
| 当社物件ID | 101355093 | ||
建物の情報
| 建物名 | コンフォートTF | ||
|---|---|---|---|
| 所在地 | 神奈川県横浜市西区浅間町 | ||
| 交通 | JR京浜東北線 横浜駅 徒歩8分 相鉄本線 平沼橋駅 徒歩10分 ブルーライン 高島町駅 徒歩14分 | ||
| 階数 | 11階建 | 総戸数 | - |
| 築年月 | 2017年01月 / 築10年 | エレベーター | あり |
| 駐車場 | なし | バイク置き場 | - |
| 駐輪場 | あり | 管理人/管理会社 | - |
| 周辺環境 | その他 CeeU Yokohama(ショッピングセンター)まで503m その他 まいばすけっと平沼高校前店(スーパー)まで679m その他 セブンイレブン横浜浅間町1丁目店(コンビニ)まで107m その他 イオンフードスタイル横浜西口店(スーパー)まで501m その他 ハックドラッグCeeU Yokohama店(ドラッグストア)まで502m その他 ヨドバシカメラマルチメディア横浜(ショッピングセンター)まで1100m | ||
| 建物種別 | マンション | 建物構造 | RC(鉄筋コンクリート) |
この部屋の取扱い不動産会社
| 会社名 | (株)All Round(SUUMO経由) | ||
|---|---|---|---|
| 所在地 | 神奈川県横浜市神奈川区西神奈川1-7-8 ことぶきビル6階 | 交通 | - |
| 営業時間 | 10時~18時 | 定休日 | 水曜日 |
| 免許番号 | 神奈川県知事29680 | 取引態様 | 仲介 |
| 不動産会社管理番号 | 100492427744 | 当社管理番号 | 89 |
| 所属団体 | (公社)全日本不動産協会神奈川県本部会員 | ||
| 公正取引協議会 | (公社)首都圏不動産公正取引協議会加盟 | ||
| 取扱い物件情報 | 物件詳細へ | ||
※各種情報と現状に差異がある場合は、現状優先となります。問い合わせをすることで、より詳しい条件、情報を確認する事ができます。
提供:(株)All Round(SUUMO経由)
この物件が気になったら掲載期限まであと12日
コンフォートTFに条件(家賃・エリア)が近い物件一覧
| 写真 | 家賃 管理費等 | 敷金 礼金 | 間取り 専有面積 | 築年数 | 最寄り駅 所在地 | キープ | 詳細 |
|---|---|---|---|---|---|---|---|
アパート プリマ六番館(ワンルーム/2階) | |||||||
![]() | 5.7万円 3,000円 | なし なし | ワンルーム 16.48m2 | 築17年 | 京急本線 県立大学駅 徒歩8分 京急本線 横須賀中央駅 徒歩15分 神奈川県横須賀市安浦町 | 詳細を見る | |
アパート レオパレスパステルランド(1K/2階) | |||||||
![]() | 6.3万円 5,500円 | なし 6.3万円 | 1K 19.87m2 | 築21年 | 小田急電鉄小田原線 読売ランド前駅 徒歩10分 神奈川県川崎市多摩区西生田3丁目 | 詳細を見る | |
アパート MELLAS桜ヶ丘(1K/2階) | |||||||
![]() | 5.3万円 3,000円 | なし なし | 1K 18.01m2 | 新築 | 小田急電鉄江ノ島線 桜ケ丘駅 徒歩13分 神奈川県大和市柳橋5丁目 | 詳細を見る | |
アパート 小田急電鉄江ノ島線 湘南台駅 徒歩8分 築3年(1LDK/2階) | |||||||
![]() | 11.5万円 6,000円 | なし 11.5万円 | 1LDK 39.73m2 | 築3年 | 小田急電鉄江ノ島線 湘南台駅 徒歩8分 神奈川県藤沢市湘南台6丁目 | 詳細を見る | |
アパート メゾンフカイシ浜町(ワンルーム/2階) | |||||||
![]() | 5.55万円 3,500円 | なし なし | ワンルーム 11.1m2 | 築6年 | JR南武線 浜川崎駅 徒歩17分 神奈川県川崎市川崎区浜町 | 詳細を見る | |
アパート D PAINA EGAWAⅠ(1LDK/2階) | |||||||
![]() | 13.6万円 6,500円 | なし 20.4万円 | 1LDK 51.16m2 | 築1年 | 京浜急行電鉄大師線 小島新田駅 徒歩1分 神奈川県川崎市川崎区江川2丁目 | 詳細を見る | |
アパート プレミアムコート(ワンルーム/2階) | |||||||
![]() | 5.8万円 5,000円 | なし なし | ワンルーム 14.04m2 | 築10年 | 湘南新宿ライン宇須 新川崎駅 徒歩23分 東急目黒線 日吉駅(神奈川) 徒歩28分 神奈川県川崎市幸区南加瀬 | 詳細を見る | |








