賃貸マンション
プルメリアガーデンの賃貸物件情報(2LDK/3階)
| 家賃 | 管理費等 | 敷金 | 礼金 | 間取り | 専有面積 |
|---|---|---|---|---|---|
| 9.1万円 | 3,000円 | 9.1万円 | 9.1万円 | 2LDK | 48m2 |
入居決定でお祝い金最大100,000円
- 保証金
- -
- 償却・敷引
- -
- 築年数
- 築32年
- 所在階
- 3階
- 向き
- 西
Point
安心のオートロック付き物件★人気のバストイレ別物件★便利な宅配BOX付き★日当たり良好★各室収納が多くお荷物の多い方にオススメです★インターネットnuroが無料
提供:(株)賃貸ステーション稲田堤店(SUUMO経由)

詳細情報 プルメリアガーデン
物件紹介
プルメリアガーデンは小田急線生田駅から徒歩29分にあるマンションです。
このお部屋は2階以上に位置しているので、通行人や周囲の住人からの視線が気になりにくく、防犯面でも安心。建物のエントランスはオートロックがついており、インターホンにはTVモニタもついているため、相手の顔を確認してから来客対応することができます。
フローリングのお部屋なのでお掃除もラクラク。室内には人気のウォークインクローゼットがありますので、たくさんの荷物も効率的に収納ができます。バス・トイレ別の仕様で、のんびりお風呂タイムも楽しめます。また、浴室乾燥機を使えば、雨の日でもお洗濯は問題ありません。
通信設備面では、インターネットが無料で使えるので、月々の出費を抑えられるのも魅力です(別途工事等が必要な場合あり)。
建物にはエレベーターがついているので、重い荷物があっても安心。共用部には宅配ボックスが設定されているので、不在の時にも荷物を受け取ることができます。
このお部屋は2階以上に位置しているので、通行人や周囲の住人からの視線が気になりにくく、防犯面でも安心。建物のエントランスはオートロックがついており、インターホンにはTVモニタもついているため、相手の顔を確認してから来客対応することができます。
フローリングのお部屋なのでお掃除もラクラク。室内には人気のウォークインクローゼットがありますので、たくさんの荷物も効率的に収納ができます。バス・トイレ別の仕様で、のんびりお風呂タイムも楽しめます。また、浴室乾燥機を使えば、雨の日でもお洗濯は問題ありません。
通信設備面では、インターネットが無料で使えるので、月々の出費を抑えられるのも魅力です(別途工事等が必要な場合あり)。
建物にはエレベーターがついているので、重い荷物があっても安心。共用部には宅配ボックスが設定されているので、不在の時にも荷物を受け取ることができます。
お金・契約の情報
※「-」と表示されているものは、実際は料金が発生するものもございます。詳細はお問い合わせください。
| 家賃 | 9.1万円 | 管理費・共益費 | 3,000円 |
|---|---|---|---|
| 敷金 | 9.1万円 | 礼金 | 9.1万円 |
| 入居決定でお祝い金最大100,000円 | |||
| 保証金 | - | 償却・敷引 | - |
| 住宅保険料 | - | 更新料 | - |
| 保証会社利用 | 必須 | 保証会社名 | - |
| 保証会社費用 | - | 保証会社備考 | 保証会社利用必 契約時、月額支払金額の50%・2年目以降1年毎に1万円 |
| 契約形態 | - | 契約期間 | - |
| 入居・引渡期間 | - | 現況 | - |
| 契約備考 | 巡回管理/近隣不動産会社様との情報共有・連携により、インターネットに出ているほぼ全てのお部屋がご紹介可能です。当店が掲載している物件はもちろん、それ以外の物件に関しても、最新の情報をお調べしてご案内させていただきます。学生マンションや、UR賃貸住宅も取り扱っております。お部屋探しは~素敵なお部屋の最寄り駅~賃貸ステーションまでぜひお問い合わせください。 合計2.7万円(内訳:カギ交換費用27000円) 2LDK 単身者可/二人入居可/子供可 普通借家2年 損保【2万円2年】 バストイレ別、バルコニー、エアコン、ガスコンロ対応、フローリング、シャワー付洗面台、TVインターホン、浴室乾燥機、オートロック、室内洗濯置、陽当り良好、シューズボックス、追焚機能浴室、脱衣所、エレベーター、洗面所独立、洗面化粧台、駐輪場、宅配ボックス、光ファイバー、外壁タイル張り、閑静な住宅地、出窓、全居室収納、全居室洋室、振分、ウォークインクロゼット、保証人不要、単身者相談、敷金1ヶ月、二人入居相談、バイク置場、全居室フローリング、玄関ホール、ネット専用回線、ネット使用料不要、眺望良好、ダブルロックキー、保証金不要、クロゼット2ヶ所、平坦地、前面棟無、3駅以上利用可、バス停徒歩3分以内、敷地内ごみ置き場、オープンキッチン、都市ガス、ワイドバルコニー、玄関収納、高速ネット対応、LAN、年度内入居可、礼金1ヶ月、IT重説対応物件、通風良好 入居日:'26年4月中旬 | ||
部屋の情報
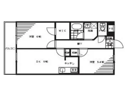
| 間取り | 2LDK | 専有面積 | 48m2 |
|---|---|---|---|
| 所在階 / 向き | 3階 / 西 | バルコニー面積 | - |
| 水道 / ガス | - | ||
| 設備 | バス・トイレ別、2階以上、オートロック、テレビドアホン、宅配ボックス、浴室乾燥機、ウォークインクローゼット、追い焚き、インターネット対応、エアコン、エレベーター、バルコニー、フローリング、洗髪洗面化粧台、コンロ:ガス、インターネット使用料無料、洗濯機:室内 | ||
| 当社物件ID | 27556061 | ||
建物の情報
| 建物名 | プルメリアガーデン | ||
|---|---|---|---|
| 所在地 | 神奈川県川崎市宮前区菅生 | ||
| 交通 | 小田急線 生田駅(神奈川) 徒歩29分 小田急線 登戸駅 徒歩43分 小田急線 向ケ丘遊園駅 バス乗車時間:14分 最寄りバス停で下車 徒歩1分 | ||
| 階数 | 6階建 | 総戸数 | - |
| 築年月 | 1995年03月 / 築32年 | エレベーター | あり |
| 駐車場 | 空有 13200円 | バイク置き場 | あり |
| 駐輪場 | あり | 管理人/管理会社 | - |
| 周辺環境 | その他 いなげや川崎生田店(スーパー)まで1473m その他 ローソン川崎菅生二丁目店(コンビニ)まで310m その他 クリエイトエス・ディー川崎三田店(ドラッグストア)まで1263m その他 ほっともっと川崎長沢店(飲食店)まで1328m その他 川崎市立菅生中学校(中学校)まで589m その他 川崎市立菅生小学校(小学校)まで671m | ||
| 建物種別 | マンション | 建物構造 | RC(鉄筋コンクリート) |
この部屋の取扱い不動産会社
| 会社名 | (株)賃貸ステーション稲田堤店(SUUMO経由) | ||
|---|---|---|---|
| 所在地 | 神奈川県川崎市多摩区菅2-9-9 | 交通 | - |
| 営業時間 | 10:00~19:00 | 定休日 | 水曜日(1~3月は無休) |
| 免許番号 | 国土交通大臣8686 | 取引態様 | 仲介 |
| 不動産会社管理番号 | 100485056567 | 当社管理番号 | 89 |
| 所属団体 | (公社)全日本不動産協会神奈川県本部会員 | ||
| 公正取引協議会 | (公社)首都圏不動産公正取引協議会加盟 | ||
| 取扱い物件情報 | 物件詳細へ | ||
※各種情報と現状に差異がある場合は、現状優先となります。問い合わせをすることで、より詳しい条件、情報を確認する事ができます。
提供:(株)賃貸ステーション稲田堤店(SUUMO経由)
この物件が気になったら掲載期限まであと12日
プルメリアガーデンに条件(家賃・エリア)が近い物件一覧
| 写真 | 家賃 管理費等 | 敷金 礼金 | 間取り 専有面積 | 築年数 | 最寄り駅 所在地 | キープ | 詳細 |
|---|---|---|---|---|---|---|---|
マンション サザンフォレスト山手(2DK/2階) | |||||||
![]() | 9.2万円 なし | 9.2万円 なし | 2DK 45.23m2 | 築36年 | JR京浜東北線 石川町駅 徒歩7分 JR根岸線 山手駅 徒歩17分 みなとみらい線 元町・中華街駅 徒歩19分 神奈川県横浜市中区柏葉 | 詳細を見る | |
マンション LEA MARKS横濱弐番館(1K/5階) | |||||||
![]() | 7.9万円 9,000円 | なし 7.9万円 | 1K 20.48m2 | 築7年 | 京急本線 戸部駅 徒歩3分 ブルーライン 高島町駅 徒歩8分 JR京浜東北線 横浜駅 徒歩14分 神奈川県横浜市西区戸部本町 | 詳細を見る | |
マンション LEXE 横濱関内(ワンルーム/5階) | |||||||
![]() | 8.2万円 1.4万円 | なし 8.2万円 | ワンルーム 21.71m2 | 築1年 | 京浜急行電鉄本線 日ノ出町駅 徒歩6分 京浜東北・根岸線 桜木町駅 徒歩9分 神奈川県横浜市中区福富町西通 | 詳細を見る | |
マンション リビオ新横浜(1LDK/3階) | |||||||
![]() | 14.5万円 1万円 | 14.5万円 なし | 1LDK 35.28m2 | 築1年 | ブルーライン 新横浜駅 徒歩6分 東急新横浜線 新横浜駅 徒歩6分 JR横浜線 新横浜駅 徒歩7分 神奈川県横浜市港北区新横浜 | 詳細を見る | |
マンション ビューフラット・ナカイ(2DK/2階) | |||||||
![]() | 7万円 3,000円 | 7万円 なし | 2DK 40.83m2 | 築38年 | ブルーライン 踊場駅 徒歩24分 神奈川県横浜市戸塚区汲沢 | 詳細を見る | |
アパート プラムローズF.日野(1LDK/2階) | |||||||
![]() | 7.5万円 5,000円 | 7.5万円 7.5万円 | 1LDK 33.12m2 | 築9年 | JR京浜東北線 港南台駅 徒歩20分 ブルーライン 港南中央駅 徒歩27分 JR京浜東北線 洋光台駅 徒歩30分 神奈川県横浜市港南区日野 | 詳細を見る | |
マンション コジマハイツ(2DK/1階) | |||||||
![]() | 7.3万円 2,000円 | 7.3万円 7.3万円 | 2DK 35m2 | 築42年 | 東急東横線 日吉駅(神奈川) 徒歩10分 グリーンライン 日吉本町駅 徒歩20分 東急東横線 綱島駅 徒歩22分 神奈川県横浜市港北区箕輪町 | 詳細を見る | |
アパート ハーミットクラブハウスPAGURUS(ワンルーム/2階) | |||||||
![]() | 9.3万円 2,000円 | なし なし | ワンルーム 16.56m2 | 築5年 | 東急東横線 日吉駅(神奈川) 徒歩3分 グリーンライン 日吉本町駅 徒歩19分 東急東横線 元住吉駅 徒歩20分 神奈川県横浜市港北区日吉 | 詳細を見る | |









