賃貸アパート
グランピエール平井の賃貸物件情報(ワンルーム/2階)
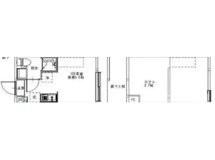
| 家賃 | 管理費等 | 敷金 | 礼金 | 間取り | 専有面積 |
|---|---|---|---|---|---|
| 6.9万円 | 4,000円 | なし | 6.9万円 | ワンルーム | 12.46m2 |
入居決定でお祝い金最大100,000円
- 保証金
- -
- 償却・敷引
- -
- 築年数
- 築1年
- 所在階
- 2階
- 向き
- -
Point
初期費用を全額カードで分割払いできます(初回金利手数料無料)/土日祝日営業中/送迎サービス有り /オンライン内見対応可能
提供:(株)TEAニコニコ賃貸高田馬場店(SUUMO経由)

詳細情報 グランピエール平井
物件紹介
グランピエール平井はJR総武線平井駅から徒歩10分にあり、駅近で通勤通学に便利なアパートです。
このお部屋は2階以上に位置しているので、通行人や周囲の住人からの視線が気になりにくく、防犯面でも安心。インターホンにはTVモニタもついているため、相手の顔を確認してから来客対応することができます。
おしゃれなデザイナーズ物件!フローリングのお部屋なのでお掃除もラクラク。室内には多目的に利用できる人気のロフトもあり、お部屋のアレンジも自在です。
通信設備面では、インターネットが無料で使えるので、月々の出費を抑えられるのも魅力です。また、BSアンテナもありますので、おうち時間も充実するでしょう(別途工事、BSの契約料等が必要な場合あり)。
共用部には宅配ボックスが設定されているので、不在の時にも荷物を受け取ることができます。
このお部屋は2階以上に位置しているので、通行人や周囲の住人からの視線が気になりにくく、防犯面でも安心。インターホンにはTVモニタもついているため、相手の顔を確認してから来客対応することができます。
おしゃれなデザイナーズ物件!フローリングのお部屋なのでお掃除もラクラク。室内には多目的に利用できる人気のロフトもあり、お部屋のアレンジも自在です。
通信設備面では、インターネットが無料で使えるので、月々の出費を抑えられるのも魅力です。また、BSアンテナもありますので、おうち時間も充実するでしょう(別途工事、BSの契約料等が必要な場合あり)。
共用部には宅配ボックスが設定されているので、不在の時にも荷物を受け取ることができます。
お金・契約の情報
※「-」と表示されているものは、実際は料金が発生するものもございます。詳細はお問い合わせください。
| 家賃 | 6.9万円 | 管理費・共益費 | 4,000円 |
|---|---|---|---|
| 敷金 | なし | 礼金 | 6.9万円 |
| 入居決定でお祝い金最大100,000円 | |||
| 保証金 | - | 償却・敷引 | - |
| 住宅保険料 | - | 更新料 | - |
| 保証会社利用 | 必須 | 保証会社名 | - |
| 保証会社費用 | - | 保証会社備考 | 保証会社利用必 保証人有:30 000円 保証人無:50 000円 1年毎に更新料12 000円 |
| 契約形態 | - | 契約期間 | - |
| 入居・引渡期間 | 相談 | 現況 | - |
| 契約備考 | 巡回管理/初期費用を全額カードで分割払いできます(初回金利手数料無料)/土日祝日営業中/送迎サービス有り /オンライン内見対応可能/短期解約違約金1年未満家賃2か月、1年以上2年未満家賃1ヵ月 合計7.26万円(内訳:ネット開通料1.65万円IoT登録利用料1.65万円24時間サポート1.98万円除菌・消臭代1.98万円) 更新料 新賃料1.50ヶ月分 室内清掃費用 38500円 町費 月額300円 ワンルーム 普通借家2年 損保【2万円2年】 エアコン、ガスコンロ対応、フローリング、シャワー付洗面台、TVインターホン、室内洗濯置、シューズボックス、温水洗浄便座、脱衣所、洗面所独立、洗面化粧台、駐輪場、宅配ボックス、光ファイバー、敷金不要、防犯カメラ、照明付、ロフト、保証人不要、防犯シャッター、デザイナーズ、2沿線利用可、ネット使用料不要、保証金不要、築2年以内、24時間換気システム、電子キー、電子ロック、階段下収納、2駅利用可、駅徒歩10分以内、敷地内ごみ置き場、シャワールーム、洗面所にドア、室内物干機、BS、礼金1ヶ月、保証会社利用可、IT重説対応物件、初期費用カード決済可 | ||
部屋の情報
| 間取り | ワンルーム | 専有面積 | 12.46m2 |
|---|---|---|---|
| 所在階 / 向き | 2階 / - | バルコニー面積 | - |
| 水道 / ガス | - | ||
| 設備 | 2階以上、テレビドアホン、宅配ボックス、インターネット対応、エアコン、温水洗浄便座、フローリング、ロフトあり、洗髪洗面化粧台、コンロ:ガス、デザイナーズ、BSアンテナ、インターネット使用料無料、洗濯機:室内 | ||
| 当社物件ID | 160048195 | ||
建物の情報
| 建物名 | グランピエール平井 | ||
|---|---|---|---|
| 所在地 | 東京都江戸川区平井 | ||
| 交通 | JR総武線 平井駅(東京) 徒歩10分 東武亀戸線 亀戸水神駅 徒歩25分 JR総武線 新小岩駅 徒歩31分 | ||
| 階数 | 2階建 | 総戸数 | - |
| 築年月 | 2026年01月 / 築1年 | エレベーター | - |
| 駐車場 | なし | バイク置き場 | - |
| 駐輪場 | あり | 管理人/管理会社 | - |
| 周辺環境 | その他 ローソン 江戸川平井四丁目店(コンビニ)まで309m その他 セブンイレブン 平井2丁目店(コンビニ)まで407m その他 ドラッグセイムス 平井4丁目店(ドラッグストア)まで603m その他 サンドラッグ 平井調剤薬局(ドラッグストア)まで628m その他 小松川警察署 小松川四丁目交番(警察署・交番)まで652m その他 みずほ銀行平井支店(銀行)まで758m | ||
| 建物種別 | アパート | 建物構造 | 木造 |
この部屋の取扱い不動産会社
| 会社名 | (株)TEAニコニコ賃貸高田馬場店(SUUMO経由) | ||
|---|---|---|---|
| 所在地 | 東京都新宿区高田馬場3-2-1 | 交通 | - |
| 営業時間 | 10時~18時 | 定休日 | - |
| 免許番号 | 国土交通大臣10538 | 取引態様 | 仲介 |
| 不動産会社管理番号 | 100478848471 | 当社管理番号 | 89 |
| 所属団体 | (公社)全日本不動産協会東京都本部会員 | ||
| 公正取引協議会 | (公社)首都圏不動産公正取引協議会加盟 | ||
| 取扱い物件情報 | 物件詳細へ | ||
※各種情報と現状に差異がある場合は、現状優先となります。問い合わせをすることで、より詳しい条件、情報を確認する事ができます。
提供:(株)TEAニコニコ賃貸高田馬場店(SUUMO経由)
この物件が気になったら掲載期限まであと10日
グランピエール平井に条件(家賃・エリア)が近い物件一覧
| 写真 | 家賃 管理費等 | 敷金 礼金 | 間取り 専有面積 | 築年数 | 最寄り駅 所在地 | キープ | 詳細 |
|---|---|---|---|---|---|---|---|
マンション モンシェール錦糸町(1K/10階) | |||||||
![]() | 9.7万円 7,000円 | 9.7万円 9.7万円 | 1K 20.6m2 | 築24年 | 東京地下鉄半蔵門線 錦糸町駅 徒歩6分 総武本線 錦糸町駅 徒歩8分 東武伊勢崎・大師線 押上駅 徒歩15分 東京都墨田区太平4丁目 | 詳細を見る | |
アパート ジュンヴェール山本(1DK/2階) | |||||||
![]() | 9.5万円 5,000円 | 9.5万円 9.5万円 | 1DK 31.45m2 | 築30年 | 東武伊勢崎線 とうきょうスカイツリー駅 徒歩6分 東京メトロ半蔵門線 押上駅 徒歩14分 東京都墨田区向島 | 詳細を見る | |
マンション MAXIV西大島DUE(1K/5階) | |||||||
![]() | 9.2万円 1万円 | なし 9.2万円 | 1K 25.28m2 | 築5年 | 都営新宿線 西大島駅 徒歩8分 東京メトロ半蔵門線 住吉駅(東京) 徒歩11分 JR総武線 亀戸駅 徒歩13分 東京都江東区大島 | 詳細を見る | |
マンション スカイコートパレス両国(1K/8階) | |||||||
![]() | 10.61万円 7,900円 | 10.61万円 10.61万円 | 1K 25.49m2 | 築14年 | 総武・中央緩行線 両国駅 徒歩4分 東京都大江戸線 森下駅(東京) 徒歩9分 東京都新宿線 浜町駅 徒歩19分 東京都墨田区両国3丁目 | 詳細を見る | |
マンション プライムアーバン住吉(1K/7階) | |||||||
![]() | 9.5万円 5,000円 | 9.5万円 9.5万円 | 1K 20.17m2 | 築24年 | 東京メトロ半蔵門線 住吉駅(東京) 徒歩7分 都営新宿線 菊川駅(東京) 徒歩20分 東京メトロ東西線 東陽町駅 徒歩20分 東京都江東区扇橋 | 詳細を見る | |
アパート AGRANDE OJIMA(1LDK/2階) | |||||||
![]() | 10.3万円 6,000円 | なし なし | 1LDK 28.82m2 | 新築 | 東京都新宿線 大島駅(東京) 徒歩13分 東京都新宿線 東大島駅 徒歩23分 東京都新宿線 西大島駅 徒歩25分 東京都江東区北砂6丁目 | 詳細を見る | |
マンション プレール・ドゥーク木場親水公園(1K/2階) | |||||||
![]() | 10.9万円 1.1万円 | なし 10.9万円 | 1K 21.87m2 | 築20年 | 東京地下鉄東西線 木場駅 徒歩8分 東京都大江戸線 門前仲町駅 徒歩12分 東京地下鉄東西線 門前仲町駅 徒歩12分 東京都江東区木場3丁目 | 詳細を見る | |
マンション PREMIUM CUBE 菊川(ワンルーム/3階) | |||||||
![]() | 9万円 1万円 | なし 9万円 | ワンルーム 26.58m2 | 築18年 | 東京都新宿線 菊川駅(東京) 徒歩4分 東京都新宿線 住吉駅(東京) 徒歩10分 東京都墨田区菊川3丁目 | 詳細を見る | |









