賃貸マンション
プランドールMK小倉の賃貸物件情報(1K/4階)
| 家賃 | 管理費等 | 敷金 | 礼金 | 間取り | 専有面積 |
|---|---|---|---|---|---|
| 4万円 | 1,000円 | なし | なし | 1K | 27.58m2 |
入居決定でお祝い金最大100,000円
- 保証金
- -
- 償却・敷引
- -
- 築年数
- 築38年
- 所在階
- 4階
- 向き
- 南
Point
オール電化・脱衣所も完備。リノベーションされて綺麗な内装には驚きのクオリティ♪見学も可能です。
提供:レントセーフティー(株)本店(SUUMO経由)

詳細情報 プランドールMK小倉
物件紹介
プランドールMK小倉は北九州モノレール旦過駅から徒歩7分にあり、駅近で通勤通学に便利なマンションです。
このお部屋は2階以上に位置しているので、通行人や周囲の住人からの視線が気になりにくく、防犯面でも安心。インターホンにはTVモニタもついているため、相手の顔を確認してから来客対応することができます。
人気の南向きのお部屋。また、フローリングなのでお掃除もラクラク。バス・トイレ別の仕様で、のんびりお風呂タイムも楽しめます。
通信設備面では、インターネット接続が可能です。また、BSアンテナもありますので、おうち時間も充実するでしょう(別途工事、契約料が必要な場合あり)。
建物にはエレベーターがついているので、重い荷物があっても安心。
このお部屋は2階以上に位置しているので、通行人や周囲の住人からの視線が気になりにくく、防犯面でも安心。インターホンにはTVモニタもついているため、相手の顔を確認してから来客対応することができます。
人気の南向きのお部屋。また、フローリングなのでお掃除もラクラク。バス・トイレ別の仕様で、のんびりお風呂タイムも楽しめます。
通信設備面では、インターネット接続が可能です。また、BSアンテナもありますので、おうち時間も充実するでしょう(別途工事、契約料が必要な場合あり)。
建物にはエレベーターがついているので、重い荷物があっても安心。
お金・契約の情報
※「-」と表示されているものは、実際は料金が発生するものもございます。詳細はお問い合わせください。
| 家賃 | 4万円 | 管理費・共益費 | 1,000円 |
|---|---|---|---|
| 敷金 | なし | 礼金 | なし |
| 入居決定でお祝い金最大100,000円 | |||
| 保証金 | - | 償却・敷引 | - |
| 住宅保険料 | - | 更新料 | - |
| 契約形態 | - | 契約期間 | - |
| 入居・引渡期間 | 即時 | 現況 | - |
| 入居可能条件 | 事務所可 | ||
| 契約備考 | 【レント小倉本店→入居時費用のクレジット払いOK】北九州市賃貸、県外からの転勤、同棲・結婚、就職・進学に関る新居探し、法人契約もお気軽に相談ください。賃貸、お部屋探し、不動産、北九州、スーモ、ネット、クレジット決済可能 24時間サポート770円/月 1K 単身者可/事務所利用相談 普通借家2年 バストイレ別、バルコニー、エアコン、フローリング、TVインターホン、室内洗濯置、陽当り良好、南向き、温水洗浄便座、脱衣所、エレベーター、洗面所独立、洗面化粧台、光ファイバー、外壁タイル張り、即入居可、最上階、IHクッキングヒーター、保証人不要、二人入居相談、オール電化、全居室フローリング、玄関ホール、2沿線利用可、仲手0.55ヶ月、ネット専用回線、内装リフォーム済、保証金不要、事務所相談、外壁コンクリート、平坦地、3駅以上利用可、駅前、駅徒歩10分以内、高層階、上階無し、寝室10畳以上、洗面所にドア、BS、リノベーション、敷金・礼金不要、IT重説対応物件、初期費用カード決済可 | ||
部屋の情報
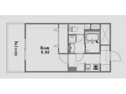
| 間取り | 1K | 専有面積 | 27.58m2 |
|---|---|---|---|
| 所在階 / 向き | 4階 / 南 | バルコニー面積 | - |
| 水道 / ガス | - | ||
| 設備 | バス・トイレ別、2階以上、テレビドアホン、インターネット対応、エアコン、エレベーター、温水洗浄便座、南向き、バルコニー、フローリング、洗髪洗面化粧台、オール電化、コンロ:IH、BSアンテナ、洗濯機:室内 | ||
| 当社物件ID | 160455921 | ||
建物の情報
| 建物名 | プランドールMK小倉 | ||
|---|---|---|---|
| 所在地 | 福岡県北九州市小倉北区古船場町 | ||
| 交通 | 北九州モノレール 旦過駅 徒歩7分 北九州モノレール 平和通駅 徒歩10分 JR鹿児島本線 小倉駅(福岡) 徒歩14分 | ||
| 階数 | 9階建 | 総戸数 | - |
| 築年月 | 1989年02月 / 築38年 | エレベーター | あり |
| 駐車場 | 近隣 150m15000円 | バイク置き場 | - |
| 駐輪場 | - | 管理人/管理会社 | - |
| 周辺環境 | その他 【ザ・ビッグエクスプレス小倉足立店】(スーパー)まで565m その他 【ローソン 江南町西店】(コンビニ)まで543m その他 【ファミリーマート馬借三丁目店】(コンビニ)まで275m その他 【セブンイレブン小倉馬借3丁目店】(コンビニ)まで400m その他 【チャチャタウン小倉】(ショッピングセンター)まで948m その他 【ドン・キホーテ 小倉店】(ショッピングセンター)まで512m | ||
| 建物種別 | マンション | 建物構造 | SRC(鉄骨鉄筋コンクリート) |
この部屋の取扱い不動産会社
| 会社名 | レントセーフティー(株)本店(SUUMO経由) | ||
|---|---|---|---|
| 所在地 | 福岡県北九州市小倉北区香春口1-1-3 | 交通 | - |
| 営業時間 | 9時30分~17時30分 | 定休日 | 毎日営業中 |
| 免許番号 | 福岡県知事18913 | 取引態様 | 仲介 |
| 不動産会社管理番号 | 100489916703 | 当社管理番号 | 89 |
| 所属団体 | (公社)全日本不動産協会福岡県本部会員 | ||
| 公正取引協議会 | (一社)九州不動産公正取引協議会加盟 | ||
| 取扱い物件情報 | 物件詳細へ | ||
※各種情報と現状に差異がある場合は、現状優先となります。問い合わせをすることで、より詳しい条件、情報を確認する事ができます。
提供:レントセーフティー(株)本店(SUUMO経由)
この物件が気になったら掲載期限まであと10日
プランドールMK小倉に条件(家賃・エリア)が近い物件一覧
| 写真 | 家賃 管理費等 | 敷金 礼金 | 間取り 専有面積 | 築年数 | 最寄り駅 所在地 | キープ | 詳細 |
|---|---|---|---|---|---|---|---|
アパート アーボリアルⅡ(1LDK/1階) | |||||||
![]() | 5万円 なし | なし なし | 1LDK 40.16m2 | 築21年 | 北九州高速鉄道 城野駅(北九州モノレール) 徒歩13分 日豊本線 城野駅(JR) 徒歩23分 福岡県北九州市小倉北区今町2丁目 | 詳細を見る | |
マンション ホワイトパレス黄金(ワンルーム/11階) | |||||||
![]() | 2.5万円 4,000円 | なし なし | ワンルーム 19.8m2 | 築37年 | 北九州高速鉄道 香春口三萩野駅 徒歩5分 北九州高速鉄道 片野駅 徒歩10分 北九州高速鉄道 旦過駅 徒歩17分 福岡県北九州市小倉北区黄金1丁目 | 詳細を見る | |
アパート サンリーナ(1K/2階) | |||||||
![]() | 4.7万円 なし | なし なし | 1K 30.69m2 | 築20年 | 筑豊電気鉄道 東中間駅 徒歩8分 筑豊電気鉄道 筑豊中間駅 徒歩14分 筑豊電気鉄道 通谷駅 徒歩14分 福岡県中間市中央5丁目 | 詳細を見る | |
マンション LEON篠崎 Ⅰ棟(2LDK/3階) | |||||||
![]() | 6.4万円 4,000円 | なし 12.8万円 | 2LDK 55.56m2 | 築12年 | 日豊本線 南小倉駅 徒歩15分 北九州高速鉄道 片野駅 徒歩16分 北九州高速鉄道 城野駅(北九州モノレール) 徒歩18分 福岡県北九州市小倉北区篠崎2丁目 | 詳細を見る | |
マンション ヴィラナリー中間Ⅱ 1号棟(2LDK/2階) | |||||||
![]() | 3.5万円 3,000円 | なし なし | 2LDK 51.34m2 | 築48年 | 筑豊本線 筑前垣生駅 徒歩12分 筑豊電気鉄道 希望が丘高校前駅 徒歩33分 筑豊本線 中間駅 徒歩38分 福岡県中間市大字上底井野 | 詳細を見る | |
マンション 第8岡部ビル(3DK/5階) | |||||||
![]() | 4.6万円 3,000円 | なし なし | 3DK 50.1m2 | 築43年 | 日豊本線 城野駅(JR) 徒歩1分 北九州高速鉄道 城野駅(北九州モノレール) 徒歩10分 北九州高速鉄道 片野駅 徒歩13分 福岡県北九州市小倉北区若富士町 | 詳細を見る | |
マンション 到津エイトフラッグ(1LDK/8階) | |||||||
![]() | 6.4万円 5,000円 | なし なし | 1LDK 39.9m2 | 築10年 | 福岡県北九州市小倉北区上到津4丁目 | 詳細を見る | |
マンション サンルーヴル(1DK/7階) | |||||||
![]() | 5.1万円 5,000円 | 2.55万円 5.1万円 | 1DK 30m2 | 築12年 | 北九州高速鉄道 香春口三萩野駅 徒歩5分 福岡県北九州市小倉北区黄金1丁目 | 詳細を見る | |









