賃貸マンション
ライオンズマンション博多駅南第3の賃貸物件情報(1K/5階)
| 家賃 | 管理費等 | 敷金 | 礼金 | 間取り | 専有面積 |
|---|---|---|---|---|---|
| 4.5万円 | 3,000円 | なし | なし | 1K | 20.8m2 |
入居決定でお祝い金最大100,000円
- 保証金
- -
- 償却・敷引
- -
- 築年数
- 築34年
- 所在階
- 5階
- 向き
- -
Point
生活に便利な設備も充実していて快適です☆お部屋にこだわりのある方や綺麗なお部屋に住んでみたい方にオススメです☆
提供:(株)エスアイパートナー(SUUMO経由)

詳細情報 ライオンズマンション博多駅南第3
物件紹介
ライオンズマンション博多駅南第3は地下鉄空港線東比恵駅から徒歩5分にあり、駅近で通勤通学に便利なマンションです。
このお部屋は2階以上に位置しているので、通行人や周囲の住人からの視線が気になりにくく、防犯面でも安心。建物のエントランスはオートロックがついており、インターホンにはTVモニタもついているため、相手の顔を確認してから来客対応することができます。
フローリングのお部屋なのでお掃除もラクラク。キッチンはシステムキッチン仕様になっていますので、お料理好きの方にもぴったり。また、バス・トイレは別で、のんびりお風呂タイムも楽しめるでしょう。
通信設備面では、インターネット接続が可能です。また、BSアンテナ・CSアンテナがありCATVにも対応しているので、おうち時間も充実するでしょう(別途工事、契約料が必要な場合あり)。
建物にはエレベーターがついているので、重い荷物があっても安心。共用部には宅配ボックスが設定されているので、不在の時にも荷物を受け取ることができます。
このお部屋は2階以上に位置しているので、通行人や周囲の住人からの視線が気になりにくく、防犯面でも安心。建物のエントランスはオートロックがついており、インターホンにはTVモニタもついているため、相手の顔を確認してから来客対応することができます。
フローリングのお部屋なのでお掃除もラクラク。キッチンはシステムキッチン仕様になっていますので、お料理好きの方にもぴったり。また、バス・トイレは別で、のんびりお風呂タイムも楽しめるでしょう。
通信設備面では、インターネット接続が可能です。また、BSアンテナ・CSアンテナがありCATVにも対応しているので、おうち時間も充実するでしょう(別途工事、契約料が必要な場合あり)。
建物にはエレベーターがついているので、重い荷物があっても安心。共用部には宅配ボックスが設定されているので、不在の時にも荷物を受け取ることができます。
お金・契約の情報
※「-」と表示されているものは、実際は料金が発生するものもございます。詳細はお問い合わせください。
| 家賃 | 4.5万円 | 管理費・共益費 | 3,000円 |
|---|---|---|---|
| 敷金 | なし | 礼金 | なし |
| 入居決定でお祝い金最大100,000円 | |||
| 保証金 | - | 償却・敷引 | - |
| 住宅保険料 | - | 更新料 | - |
| 契約形態 | - | 契約期間 | - |
| 入居・引渡期間 | 相談 | 現況 | - |
| 契約備考 | 巡回管理 1K 単身者可 損保【要】 バストイレ別、バルコニー、エアコン、クロゼット、フローリング、TVインターホン、オートロック、室内洗濯置、陽当り良好、シューズボックス、システムキッチン、エレベーター、洗面化粧台、宅配ボックス、外壁タイル張り、礼金不要、閑静な住宅地、BS・CS、防犯カメラ、IHクッキングヒーター、分譲賃貸、全居室洋室、仲介手数料不要、全居室フローリング、ネット専用回線、駅まで平坦、眺望良好、保証金不要、24時間換気システム、外壁コンクリート、平坦地、学生敷金不要、駅徒歩5分以内、駅徒歩10分以内、高層階、敷地内ごみ置き場、全居室6畳以上、都市ガス、シャワールーム、BS、高速ネット対応、年内入居可、年度内入居可、敷金・礼金不要、保証会社利用可、初期費用カード決済可、通風良好 | ||
部屋の情報
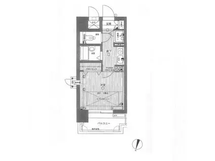
| 間取り | 1K | 専有面積 | 20.8m2 |
|---|---|---|---|
| 所在階 / 向き | 5階 / - | バルコニー面積 | - |
| 水道 / ガス | - | ||
| 設備 | バス・トイレ別、2階以上、オートロック、テレビドアホン、宅配ボックス、インターネット対応、システムキッチン、エアコン、エレベーター、バルコニー、フローリング、コンロ:IH、CSアンテナ、BSアンテナ、洗濯機:室内 | ||
| 当社物件ID | 129867313 | ||
建物の情報
| 建物名 | ライオンズマンション博多駅南第3 | ||
|---|---|---|---|
| 所在地 | 福岡県福岡市博多区比恵町 | ||
| 交通 | 地下鉄空港線 東比恵駅 徒歩7分 JR鹿児島本線 博多駅 徒歩14分 地下鉄空港線 祇園駅(福岡) 徒歩23分 | ||
| 階数 | 14階建 | 総戸数 | - |
| 築年月 | 1992年09月 / 築34年 | エレベーター | あり |
| 駐車場 | 近隣 100m20000円 | バイク置き場 | - |
| 駐輪場 | - | 管理人/管理会社 | - |
| 周辺環境 | その他 マルショク比恵店(スーパー)まで393m その他 サニー東比恵店(スーパー)まで632m その他 セブンイレブン博多比恵町店(コンビニ)まで88m その他 ローソン比恵町店(コンビニ)まで194m その他 ほっともっと瑞穂店(飲食店)まで391m その他 福岡合同庁舎内郵便局(郵便局)まで564m | ||
| 建物種別 | マンション | 建物構造 | SRC(鉄骨鉄筋コンクリート) |
この部屋の取扱い不動産会社
| 会社名 | (有)アイテック(SUUMO経由) | ||
|---|---|---|---|
| 所在地 | 福岡県福岡市中央区薬院2-1-17-2階 | 交通 | - |
| 営業時間 | AM10:00~PM7:00 | 定休日 | 毎週水曜日 |
| 免許番号 | 福岡県知事9967 | 取引態様 | 仲介 |
| 不動産会社管理番号 | 100487519420 | 当社管理番号 | 89 |
| 所属団体 | (公社)福岡県宅地建物取引業協会会員 | ||
| 公正取引協議会 | (一社)九州不動産公正取引協議会加盟 | ||
| 取扱い物件情報 | 物件詳細へ | ||
※各種情報と現状に差異がある場合は、現状優先となります。問い合わせをすることで、より詳しい条件、情報を確認する事ができます。
提供:(有)アイテック(SUUMO経由)
この物件が気になったら掲載期限まであと9日
ライオンズマンション博多駅南第3に条件(家賃・エリア)が近い物件一覧
| 写真 | 家賃 管理費等 | 敷金 礼金 | 間取り 専有面積 | 築年数 | 最寄り駅 所在地 | キープ | 詳細 |
|---|---|---|---|---|---|---|---|
マンション 松尾ビル(2LDK/2階) | |||||||
![]() | 4.5万円 なし | なし 4.5万円 | 2LDK 42.9m2 | 築65年 | JR博多南線 博多南駅 徒歩14分 JR鹿児島本線 南福岡駅 徒歩42分 JR鹿児島本線 春日駅(福岡) 徒歩43分 福岡県春日市下白水南 | 詳細を見る | |
アパート メゾンソレイユ南福岡(1LDK/2階) | |||||||
![]() | 6.8万円 3,000円 | なし 6.8万円 | 1LDK 41.01m2 | 築5年 | 西鉄天神大牟田線 雑餉隈駅 徒歩5分 JR鹿児島本線 南福岡駅 徒歩12分 JR鹿児島本線 笹原駅 徒歩17分 福岡県福岡市博多区三筑 | 詳細を見る | |
マンション 西鉄天神大牟田線 井尻駅 徒歩18分 築51年(3LDK/2階) | |||||||
![]() | 6.5万円 5,000円 | なし なし | 3LDK 63.8m2 | 築51年 | 西鉄天神大牟田線 井尻駅 徒歩18分 鹿児島本線 南福岡駅 徒歩18分 福岡県春日市須玖北4丁目 | 詳細を見る | |
アパート 福岡県春日市 築1年(1K/2階) | |||||||
![]() | 6.6万円 5,000円 | 6.6万円 6.6万円 | 1K 30.68m2 | 築1年 | 福岡県春日市春日原東町1丁目 | 詳細を見る | |
アパート 日の出コーポ(2SLDK/2階) | |||||||
![]() | 4.3万円 なし | なし 4.3万円 | 2SLDK 55m2 | 築49年 | JR鹿児島本線 南福岡駅 徒歩12分 西鉄天神大牟田線 雑餉隈駅 徒歩16分 福岡県春日市日の出町 | 詳細を見る | |
マンション フェルト627(ワンルーム/6階) | |||||||
| 6.6万円 8,000円 | なし なし | ワンルーム 24.51m2 | 築15年 | 福岡市空港線 祇園駅(福岡) 徒歩2分 福岡市空港線 博多駅 徒歩10分 福岡市箱崎線 呉服町駅(福岡) 徒歩10分 福岡県福岡市博多区祇園町2-21 | 詳細を見る | ||
アパート オレンジハウス若葉台(ワンルーム/2階) | |||||||
![]() | 3万円 なし | 12万円 なし | ワンルーム 19.87m2 | 築34年 | 鹿児島本線 春日駅(福岡) 徒歩22分 西鉄天神大牟田線 春日原駅 徒歩29分 鹿児島本線 南福岡駅 徒歩30分 福岡県春日市若葉台西7丁目 | 詳細を見る | |






