賃貸マンション
木場ステーションレジデンスの賃貸物件情報(1K/2階)
| 家賃 | 管理費等 | 敷金 | 礼金 | 間取り | 専有面積 |
|---|---|---|---|---|---|
| 13.1万円 | 9,000円 | なし | なし | 1K | 25.41m2 |
入居決定でお祝い金最大100,000円
- 保証金
- -
- 償却・敷引
- -
- 築年数
- 築5年
- 所在階
- 2階
- 向き
- 北
Point
☆契約金クレジット決済/現金分割払い可能☆エージェンシー高田馬場店では感染症予防の為、ご来店無しでお部屋のご紹介も可能です☆素敵なお住まいをご提案致します☆お気軽にお問い合わせ下さい☆
提供:(株)LIVEFLIX(SUUMO経由)

詳細情報 木場ステーションレジデンス
物件紹介
木場ステーションレジデンスは東京メトロ東西線木場駅から徒歩4分にあり、駅近で通勤通学に便利なマンションです。
このお部屋は2階以上に位置しているので、通行人や周囲の住人からの視線が気になりにくく、防犯面でも安心。建物のエントランスはオートロックがついており、インターホンにはTVモニタもついているため、相手の顔を確認してから来客対応することができます。
おしゃれなデザイナーズ物件!人気の角部屋で周囲の居住者の生活音も気になりにくく、また、フローリングのお部屋なのでお掃除もラクラク。室内にはウォークインクローゼットがありますので、たくさんの荷物も効率的に収納ができます。キッチンはシステムキッチン仕様になっていますので、お料理好きの方にもぴったり。バス・トイレは別なので、のんびりお風呂タイムも楽しめるでしょう。また、雨の日でも浴室乾燥機を使えば、お洗濯も問題ありません。
通信設備面では、インターネットが無料で使えるので、月々の出費を抑えられるのも魅力です。また、BSアンテナ・CSアンテナがありCATVにも対応しているので、おうち時間も充実するでしょう(別途工事、BS・CS・CATVの契約料等が必要な場合あり)。
建物にはエレベーターがついているので、重い荷物があっても安心。共用部には宅配ボックスが設定されているので、不在の時にも荷物を受け取ることができます。また、ペット飼育の相談ができますので、あなたの大切な家族の一員も快適に暮らせるか、ぜひ確認してみてください。
このお部屋は2階以上に位置しているので、通行人や周囲の住人からの視線が気になりにくく、防犯面でも安心。建物のエントランスはオートロックがついており、インターホンにはTVモニタもついているため、相手の顔を確認してから来客対応することができます。
おしゃれなデザイナーズ物件!人気の角部屋で周囲の居住者の生活音も気になりにくく、また、フローリングのお部屋なのでお掃除もラクラク。室内にはウォークインクローゼットがありますので、たくさんの荷物も効率的に収納ができます。キッチンはシステムキッチン仕様になっていますので、お料理好きの方にもぴったり。バス・トイレは別なので、のんびりお風呂タイムも楽しめるでしょう。また、雨の日でも浴室乾燥機を使えば、お洗濯も問題ありません。
通信設備面では、インターネットが無料で使えるので、月々の出費を抑えられるのも魅力です。また、BSアンテナ・CSアンテナがありCATVにも対応しているので、おうち時間も充実するでしょう(別途工事、BS・CS・CATVの契約料等が必要な場合あり)。
建物にはエレベーターがついているので、重い荷物があっても安心。共用部には宅配ボックスが設定されているので、不在の時にも荷物を受け取ることができます。また、ペット飼育の相談ができますので、あなたの大切な家族の一員も快適に暮らせるか、ぜひ確認してみてください。
お金・契約の情報
※「-」と表示されているものは、実際は料金が発生するものもございます。詳細はお問い合わせください。
| 家賃 | 13.1万円 | 管理費・共益費 | 9,000円 |
|---|---|---|---|
| 敷金 | なし | 礼金 | なし |
| 入居決定でお祝い金最大100,000円 | |||
| 保証金 | - | 償却・敷引 | - |
| 住宅保険料 | - | 更新料 | - |
| 保証会社利用 | 必須 | 保証会社名 | - |
| 保証会社費用 | - | 保証会社備考 | 保証会社利用必 Jリース 初回保証料:総賃料の30% 年間保証料:10000円 |
| 契約形態 | - | 契約期間 | - |
| 入居・引渡期間 | - | 現況 | - |
| 入居可能条件 | ペット相談 | ||
| 契約備考 | JR京葉線越中島駅徒歩22分/巡回管理/当店は都内を中心に20000戸以上の管理物件を保有する株式会社アンビショングループです。人気のデザイナーズ・分譲マンション・ペット飼育可能物件情報や、嬉しいインターネット使用料無料物件・敷金礼金0ヶ月物件のお問い合わせは、アンビション・エージェンシー早稲田駅前店へ。契約金カード支払、初期費用分割や海外審査等の相談や女性スタッフ対応可能。お電話のお問合わせがスムーズです。リモートでの対応も可能です。 合計3.85万円(内訳:鍵交換代:22000円/入居中サポート:16500円) 更新料新賃料(ヶ月):1.00ヶ月、口座引落手数料:440円/月 1K 二人入居可/ペット相談 普通借家2年 損保【2.3万円2年】 バストイレ別、バルコニー、エアコン、ガスコンロ対応、クロゼット、フローリング、シャワー付洗面台、TVインターホン、浴室乾燥機、オートロック、室内洗濯置、シューズボックス、システムキッチン、角住戸、温水洗浄便座、脱衣所、エレベーター、洗面所独立、洗面化粧台、2口コンロ、宅配ボックス、CATV、光ファイバー、外壁タイル張り、礼金不要、BS・CS、敷金不要、防犯カメラ、ペット相談、全居室収納、全居室洋室、ウォークインクロゼット、保証人不要、二人入居相談、24時間緊急通報システム、全居室フローリング、デザイナーズ、2沿線利用可、ディンプルキー、ネット専用回線、ネット使用料不要、エアコン全室、ダブルロックキー、保証金不要、築2年以内、24時間換気システム、耐震構造、2駅利用可、3駅以上利用可、3沿線以上利用可、駅徒歩10分以内、24時間ゴミ出し可、敷地内ごみ置き場、全居室6畳以上、都市ガス、高速ネット対応、マルチメディアコンセント、敷金・礼金不要、IT重説対応物件、初期費用カード決済可 敷金積み増し【ペット飼育の場合敷金1ヶ月(総額)】 入居日:'26年4月下旬 | ||
部屋の情報
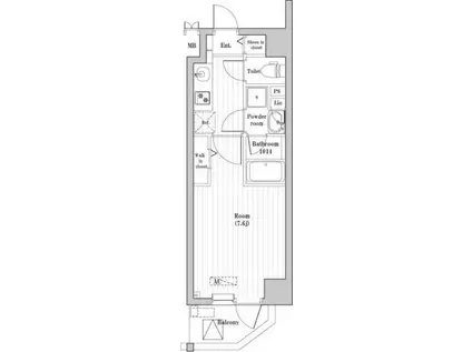
| 間取り | 1K | 専有面積 | 25.41m2 |
|---|---|---|---|
| 所在階 / 向き | 2階 / 北 | バルコニー面積 | - |
| 水道 / ガス | - | ||
| 設備 | バス・トイレ別、2階以上、オートロック、テレビドアホン、宅配ボックス、浴室乾燥機、ウォークインクローゼット、インターネット対応、システムキッチン、エアコン、エレベーター、温水洗浄便座、角部屋、バルコニー、フローリング、洗髪洗面化粧台、2口コンロ、コンロ:ガス、デザイナーズ、CATV、CSアンテナ、BSアンテナ、インターネット使用料無料、洗濯機:室内 | ||
| 当社物件ID | 102126100 | ||
建物の情報
| 建物名 | 木場ステーションレジデンス | ||
|---|---|---|---|
| 所在地 | 東京都江東区木場 | ||
| 交通 | 東京メトロ東西線 木場駅 徒歩4分 東京メトロ東西線 東陽町駅 徒歩16分 都営大江戸線 門前仲町駅 徒歩16分 | ||
| 階数 | 9階建 | 総戸数 | 35戸 |
| 築年月 | 2021年11月 / 築5年 | エレベーター | あり |
| 駐車場 | なし | バイク置き場 | - |
| 駐輪場 | - | 管理人/管理会社 | - |
| 周辺環境 | その他 木場駅(東京メトロ 東西線)(その他)まで250m | ||
| 建物種別 | マンション | 建物構造 | RC(鉄筋コンクリート) |
この部屋の取扱い不動産会社
| 会社名 | ROOMPIA(株)アンビション・エージェンシー早稲田駅前店(SUUMO経由) | ||
|---|---|---|---|
| 所在地 | 東京都新宿区馬場下町 61-9 山口ビル2階 | 交通 | - |
| 営業時間 | 10:00~18:30 | 定休日 | 年末年始 |
| 免許番号 | 国土交通大臣9692 | 取引態様 | 仲介 |
| 不動産会社管理番号 | 100491946546 | 当社管理番号 | 89 |
| 所属団体 | (公社)東京都宅地建物取引業協会会員 | ||
| 公正取引協議会 | (公社)首都圏不動産公正取引協議会加盟 | ||
| 取扱い物件情報 | 物件詳細へ | ||
※各種情報と現状に差異がある場合は、現状優先となります。問い合わせをすることで、より詳しい条件、情報を確認する事ができます。
提供:ROOMPIA(株)アンビション・エージェンシー早稲田駅前店(SUUMO経由)
この物件が気になったら掲載期限まであと11日
木場ステーションレジデンスに条件(家賃・エリア)が近い物件一覧
| 写真 | 家賃 管理費等 | 敷金 礼金 | 間取り 専有面積 | 築年数 | 最寄り駅 所在地 | キープ | 詳細 |
|---|---|---|---|---|---|---|---|
マンション シェモア加瀬(2K/3階) | |||||||
![]() | 9.9万円 4,000円 | 9.9万円 9.9万円 | 2K 34m2 | 築22年 | 京浜急行電鉄本線 梅屋敷駅(東京) 徒歩5分 京浜急行電鉄本線 大森町駅 徒歩10分 東京都大田区大森中2丁目 | 詳細を見る | |
マンション ルフォンプログレ門前仲町マークス(1DK/2階) | |||||||
![]() | 14.9万円 1.5万円 | 14.9万円 なし | 1DK 27.25m2 | 築5年 | 東京メトロ東西線 門前仲町駅 徒歩6分 東京メトロ半蔵門線 清澄白河駅 徒歩12分 JR京葉線 越中島駅 徒歩16分 東京都江東区深川 | 詳細を見る | |
マンション ロサルバ大森(2DK/4階) | |||||||
![]() | 16.1万円 7,000円 | 16.1万円 16.1万円 | 2DK 50.48m2 | 築23年 | 京急本線 大森町駅 徒歩8分 京急本線 梅屋敷駅(東京) 徒歩8分 京急本線 平和島駅 徒歩14分 東京都大田区大森西 | 詳細を見る | |
マンション SAKURA(2LDK/2階) | |||||||
![]() | 19.5万円 5,000円 | 19.5万円 19.5万円 | 2LDK 54.84m2 | 築5年 | 京急本線 梅屋敷駅(東京) 徒歩7分 京急本線 大森町駅 徒歩9分 東京都大田区大森中 | 詳細を見る | |
マンション SEED JUST B-BASE COAST(1LDK/4階) | |||||||
![]() | 8.8万円 1.5万円 | 8.8万円 8.8万円 | 1LDK 23.07m2 | 築1年 | 東京モノレール羽田 昭和島駅 徒歩11分 京浜急行電鉄本線 梅屋敷駅(東京) 徒歩19分 東京都大田区大森南4丁目 | 詳細を見る | |
マンション メゾンドボナール(1DK/4階) | |||||||
![]() | 11.6万円 3,000円 | 11.6万円 11.6万円 | 1DK 32.48m2 | 築29年 | 京浜東北・根岸線 蒲田駅 徒歩10分 京浜急行電鉄本線 京急蒲田駅 徒歩10分 東京都大田区蒲田3丁目 | 詳細を見る | |
マンション あやめガーデン(2K/10階) | |||||||
![]() | 17.5万円 1万円 | 17.5万円 17.5万円 | 2K 42.26m2 | 築12年 | 東京メトロ日比谷線 築地駅 徒歩1分 東京メトロ有楽町線 新富町駅(東京) 徒歩6分 東京メトロ日比谷線 東銀座駅 徒歩6分 東京都中央区築地 | 詳細を見る | |
マンション ハイネス大森(2DK/3階) | |||||||
![]() | 13.6万円 6,000円 | 13.6万円 なし | 2DK 41.16m2 | 築42年 | 京急本線 大森町駅 徒歩10分 京急本線 梅屋敷駅(東京) 徒歩16分 JR京浜東北線 大森駅(東京) 徒歩23分 東京都大田区大森西 | 詳細を見る | |








