賃貸マンション
JR伯備線 備中高梁駅 徒歩23分 4階建 築31年の賃貸物件情報(1K/3階)
| 家賃 | 管理費等 | 敷金 | 礼金 | 間取り | 専有面積 |
|---|---|---|---|---|---|
| 3.4万円 | なし | 3.4万円 | なし | 1K | 29m2 |
入居決定でお祝い金最大100,000円
Point
吉備国際大学高梁キャンパス、順正高等看護福祉専門学校近くの1Kタイプ。冷蔵庫、洗濯機付きです。駐車場も確保できます。
提供:SUMIKA不動産 (株)SUMIKA(SUUMO経由)

詳細情報 JR伯備線 備中高梁駅 徒歩23分 4階建 築31年
物件紹介
JR伯備線備中高梁駅から徒歩23分にあるマンションです。
このお部屋は2階以上に位置しているので、通行人や周囲の住人からの視線が気になりにくく、防犯面でも安心。インターホンにはTVモニタもついているため、相手の顔を確認してから来客対応することができます。
人気の南向き・フローリングのお部屋。角部屋でもあるため、周囲の居住者の生活音も気になりにくい場所です。キッチンはシステムキッチン仕様になっていますので、お料理好きの方にもぴったり。また、バス・トイレは別で、のんびりお風呂タイムも楽しめるでしょう。
通信設備面では、インターネット接続が可能です。また、CATVにも対応しているので、おうち時間も充実するでしょう(別途工事、契約料が必要な場合あり)。
建物にはエレベーターがついているので、重い荷物があっても安心。
このお部屋は2階以上に位置しているので、通行人や周囲の住人からの視線が気になりにくく、防犯面でも安心。インターホンにはTVモニタもついているため、相手の顔を確認してから来客対応することができます。
人気の南向き・フローリングのお部屋。角部屋でもあるため、周囲の居住者の生活音も気になりにくい場所です。キッチンはシステムキッチン仕様になっていますので、お料理好きの方にもぴったり。また、バス・トイレは別で、のんびりお風呂タイムも楽しめるでしょう。
通信設備面では、インターネット接続が可能です。また、CATVにも対応しているので、おうち時間も充実するでしょう(別途工事、契約料が必要な場合あり)。
建物にはエレベーターがついているので、重い荷物があっても安心。
お金・契約の情報
※「-」と表示されているものは、実際は料金が発生するものもございます。詳細はお問い合わせください。
| 家賃 | 3.4万円 | 管理費・共益費 | なし |
|---|---|---|---|
| 敷金 | 3.4万円 | 礼金 | なし |
| 入居決定でお祝い金最大100,000円 | |||
| 保証金 | - | 償却・敷引 | - |
| 住宅保険料 | - | 更新料 | - |
| 契約形態 | - | 契約期間 | - |
| 入居・引渡期間 | 即時 | 現況 | - |
| 契約備考 | 巡回管理/吉備国際大学高梁キャンパス、順正高等看護福祉専門学校近くの1Kタイプ。冷蔵庫、洗濯機付きです。駐車場も確保できます。 1K 学生希望/二人入居可 普通借家2年 損保【要】 バストイレ別、バルコニー、エアコン、クロゼット、フローリング、TVインターホン、室内洗濯置、陽当り良好、システムキッチン、南向き、角住戸、温水洗浄便座、エレベーター、CATV、光ファイバー、外壁タイル張り、即入居可、礼金不要、閑静な住宅地、3口以上コンロ、照明付、グリル付、全居室洋室、冷蔵庫、敷金1ヶ月、二人入居相談、全居室フローリング、洗濯機、緑豊かな住宅地、眺望良好、全室南向き、エアコン全室、南面リビング、学生相談、前面棟無、始発駅、3駅以上利用可、キッチン5畳以上、プロパンガス、南面バルコニー、高速ネット対応、IT重説対応物件、通風良好 | ||
部屋の情報
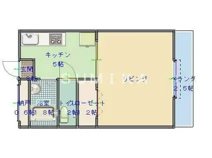
| 間取り | 1K | 専有面積 | 29m2 |
|---|---|---|---|
| 所在階 / 向き | 3階 / 南 | バルコニー面積 | - |
| 水道 / ガス | - | ||
| 設備 | バス・トイレ別、2階以上、テレビドアホン、インターネット対応、システムキッチン、エアコン、エレベーター、温水洗浄便座、南向き、角部屋、バルコニー、フローリング、2口コンロ、CATV、洗濯機:室内 | ||
| 当社物件ID | 158466529 | ||
建物の情報
| 建物名 | JR伯備線 備中高梁駅 徒歩23分 4階建 築31年 | ||
|---|---|---|---|
| 所在地 | 岡山県高梁市内山下 | ||
| 交通 | JR伯備線 備中高梁駅 徒歩23分 JR伯備線 木野山駅 徒歩40分 JR伯備線 備中川面駅 徒歩75分 | ||
| 階数 | 4階建 | 総戸数 | 20戸 |
| 築年月 | 1995年01月 / 築31年 | エレベーター | あり |
| 駐車場 | 近隣 200m5500円 | バイク置き場 | - |
| 駐輪場 | - | 管理人/管理会社 | - |
| 周辺環境 | その他 吉備国際大学高梁キャンパス(大学・短大)まで1478m その他 順正高等看護福祉専門学校(その他)まで1246m その他 ポルカ天満屋ハピータウン(ショッピングセンター)まで2236m その他 セブンイレブン高梁市役所前店(コンビニ)まで1476m その他 ザグザグ高梁店(ドラッグストア)まで2202m その他 高橋中央病院(病院)まで1737m | ||
| 建物種別 | マンション | 建物構造 | RC(鉄筋コンクリート) |
この部屋の取扱い不動産会社
| 会社名 | SUMIKA不動産 (株)SUMIKA(SUUMO経由) | ||
|---|---|---|---|
| 所在地 | 岡山県岡山市北区下石井2-1-10 KEビル1階 | 交通 | - |
| 営業時間 | 10:00~18:00 | 定休日 | 水曜日、12月~3月は無休 |
| 免許番号 | 岡山県知事5696 | 取引態様 | 仲介 |
| 不動産会社管理番号 | 100424346911 | 当社管理番号 | 89 |
| 所属団体 | (公社)岡山県宅地建物取引業協会会員 | ||
| 公正取引協議会 | 中国地区不動産公正取引協議会加盟 | ||
| 取扱い物件情報 | 物件詳細へ | ||
※各種情報と現状に差異がある場合は、現状優先となります。問い合わせをすることで、より詳しい条件、情報を確認する事ができます。
提供:SUMIKA不動産 (株)SUMIKA(SUUMO経由)
この物件が気になったら掲載期限まであと10日
JR伯備線 備中高梁駅 徒歩23分 4階建 築31年に条件(家賃・エリア)が近い物件一覧
| 写真 | 家賃 管理費等 | 敷金 礼金 | 間取り 専有面積 | 築年数 | 最寄り駅 所在地 | キープ | 詳細 |
|---|---|---|---|---|---|---|---|
アパート イプシロンA(2LDK/1階) | |||||||
![]() | 4.5万円 3,300円 | なし なし | 2LDK 54.92m2 | 築23年 | 井原鉄道 子守唄の里高屋駅 徒歩12分 岡山県井原市高屋町 | 詳細を見る | |
マンション グランパス吉備(1K/2階) | |||||||
![]() | 4.1万円 3,700円 | なし 4.1万円 | 1K 30.75m2 | 築18年 | JR吉備線 東総社駅 徒歩14分 JR吉備線 総社駅 徒歩21分 JR伯備線 総社駅 徒歩21分 岡山県総社市中央 | 詳細を見る | |
アパート エステートピア(1K/2階) | |||||||
![]() | 3.3万円 なし | なし 3.3万円 | 1K 19.87m2 | 築32年 | JR吉備線 東総社駅 徒歩17分 岡山県総社市井手 | 詳細を見る | |
マンション ジョビアル コート(1K/1階) | |||||||
![]() | 4.1万円 3,500円 | なし 4.1万円 | 1K 26.87m2 | 築10年 | JR吉備線 総社駅 徒歩10分 JR伯備線 総社駅 徒歩10分 井原鉄道 総社駅 徒歩10分 岡山県総社市真壁 | 詳細を見る | |
アパート エステートピア C(ワンルーム/2階) | |||||||
![]() | 3.3万円 なし | なし 3.3万円 | ワンルーム 19.87m2 | 築32年 | JR吉備線 東総社駅 徒歩20分 JR伯備線 総社駅 徒歩37分 JR伯備線 清音駅 徒歩71分 岡山県総社市井手 | 詳細を見る | |
マンション パークサイドM(2LDK/2階) | |||||||
![]() | 5.5万円 2,000円 | 11万円 5.5万円 | 2LDK 52.44m2 | 築11年 | JR伯備線 清音駅 徒歩15分 井原鉄道 清音駅 徒歩15分 JR吉備線 総社駅 徒歩33分 岡山県総社市清音柿木 | 詳細を見る | |
マンション グランコート(2LDK/2階) | |||||||
![]() | 5.5万円 2,000円 | 11万円 なし | 2LDK 56.85m2 | 築11年 | JR吉備線 服部駅 徒歩24分 JR吉備線 東総社駅 徒歩25分 岡山県総社市井手 | 詳細を見る | |
アパート アルファスリー(1LDK/1階) | |||||||
![]() | 4.15万円 3,500円 | なし 5.15万円 | 1LDK 43.66m2 | 築13年 | 岡山県井原市高屋町1丁目 | 詳細を見る | |









