賃貸マンション
サーパス富山三番町レジデンスの賃貸物件情報(3LDK/11階)
| 家賃 | 管理費等 | 敷金 | 礼金 | 間取り | 専有面積 |
|---|---|---|---|---|---|
| 15.5万円 | 1.7万円 | 31万円 | 15.5万円 | 3LDK | 80.13m2 |
入居決定でお祝い金最大100,000円
- 保証金
- -
- 償却・敷引
- -
- 築年数
- 築3年
- 所在階
- 11階
- 向き
- 南
Point
荷物が受け取れないときに一時的に保管できる宅配ボックスは、一人暮らしの方や在宅勤務の方向きの設備です。収納はクロゼット・シューズボックスなどが備え付けられているので、衣類や日用品の収納に重宝します。
提供:まちなかR不動産 (株)RELAITO(SUUMO経由)

詳細情報 サーパス富山三番町レジデンス
物件紹介
サーパス富山三番町レジデンスは富山地鉄富山市内線西町駅から徒歩4分にあり、駅近で通勤通学に便利なマンションです。
このお部屋は2階以上に位置しているので、通行人や周囲の住人からの視線が気になりにくく、防犯面でも安心。建物のエントランスはオートロックがついており、インターホンにはTVモニタもついているため、相手の顔を確認してから来客対応することができます。
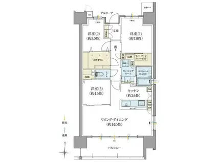
人気の南向き・フローリングのお部屋。角部屋でもあるため、周囲の居住者の生活音も気になりにくい場所です。室内にはウォークインクローゼットがありますので、たくさんの荷物も効率的に収納ができます。キッチンはシステムキッチン仕様になっていますので、お料理好きの方にもぴったり。バス・トイレは別なので、のんびりお風呂タイムも楽しめるでしょう。また、雨の日でも浴室乾燥機を使えば、お洗濯も問題ありません。
通信設備面では、インターネットが無料で使えるので、月々の出費を抑えられるのも魅力です(別途工事等が必要な場合あり)。
建物にはエレベーターがついているので、重い荷物があっても安心。共用部には宅配ボックスが設定されているので、不在の時にも荷物を受け取ることができます。
このお部屋は2階以上に位置しているので、通行人や周囲の住人からの視線が気になりにくく、防犯面でも安心。建物のエントランスはオートロックがついており、インターホンにはTVモニタもついているため、相手の顔を確認してから来客対応することができます。
人気の南向き・フローリングのお部屋。角部屋でもあるため、周囲の居住者の生活音も気になりにくい場所です。室内にはウォークインクローゼットがありますので、たくさんの荷物も効率的に収納ができます。キッチンはシステムキッチン仕様になっていますので、お料理好きの方にもぴったり。バス・トイレは別なので、のんびりお風呂タイムも楽しめるでしょう。また、雨の日でも浴室乾燥機を使えば、お洗濯も問題ありません。
通信設備面では、インターネットが無料で使えるので、月々の出費を抑えられるのも魅力です(別途工事等が必要な場合あり)。
建物にはエレベーターがついているので、重い荷物があっても安心。共用部には宅配ボックスが設定されているので、不在の時にも荷物を受け取ることができます。
お金・契約の情報
※「-」と表示されているものは、実際は料金が発生するものもございます。詳細はお問い合わせください。
| 家賃 | 15.5万円 | 管理費・共益費 | 1.7万円 |
|---|---|---|---|
| 敷金 | 31万円 | 礼金 | 15.5万円 |
| 入居決定でお祝い金最大100,000円 | |||
| 保証金 | - | 償却・敷引 | - |
| 住宅保険料 | - | 更新料 | - |
| 保証会社利用 | 必須 | 保証会社名 | - |
| 保証会社費用 | - | 保証会社備考 | 保証会社利用必 契約時月額賃料(共益費・町費・駐車料含む)の40%、毎月1.2%の負担有り |
| 契約形態 | - | 契約期間 | - |
| 入居・引渡期間 | 即時 | 現況 | - |
| 契約備考 | 巡回管理 更新料 新賃料0.55ヶ月分 24時間サポート 月額1000円 3LDK 二人入居可/子供可 普通借家2年 損保【2.2万円2年】 バストイレ別、バルコニー、エアコン、クロゼット、フローリング、シャワー付洗面台、TVインターホン、浴室乾燥機、オートロック、室内洗濯置、シューズボックス、システムキッチン、南向き、追焚機能浴室、角住戸、温水洗浄便座、エレベーター、洗面所独立、洗面化粧台、駐輪場、宅配ボックス、3口以上コンロ、対面式キッチン、防犯カメラ、IHクッキングヒーター、照明付、グリル付、全居室洋室、保証人不要、オール電化、全居室フローリング、2沿線利用可、ネット使用料不要、浄水器、敷金2ヶ月、食器洗乾燥機、ダブルロックキー、築2年以内、24時間換気システム、複層ガラス、南面リビング、浴室1坪以上、2駅利用可、3駅以上利用可、駅徒歩5分以内、駅徒歩10分以内、敷地内ごみ置き場、LDK12畳以上、三面鏡付洗面化粧台、エコキュート、ウォークスルークロゼット、年内入居可、年度内入居可、礼金1ヶ月、IT重説対応物件、全室照明付 | ||
部屋の情報
| 間取り | 3LDK | 専有面積 | 80.13m2 |
|---|---|---|---|
| 所在階 / 向き | 11階 / 南 | バルコニー面積 | - |
| 水道 / ガス | - | ||
| 設備 | バス・トイレ別、2階以上、オートロック、テレビドアホン、宅配ボックス、浴室乾燥機、ウォークインクローゼット、追い焚き、インターネット対応、システムキッチン、エアコン、エレベーター、温水洗浄便座、南向き、角部屋、バルコニー、フローリング、洗髪洗面化粧台、オール電化、2口コンロ、コンロ:IH、インターネット使用料無料、洗濯機:室内 | ||
| 当社物件ID | 144246050 | ||
建物の情報
| 建物名 | サーパス富山三番町レジデンス | ||
|---|---|---|---|
| 所在地 | 富山県富山市三番町 | ||
| 交通 | 富山地鉄富山市内線 西町駅 徒歩4分 富山地鉄富山都心線 中町駅 徒歩5分 富山地鉄富山市内線 上本町駅(富山) 徒歩6分 | ||
| 階数 | 15階建 | 総戸数 | - |
| 築年月 | 2024年01月 / 築3年 | エレベーター | あり |
| 駐車場 | 空有 7000円/機械式駐 | バイク置き場 | - |
| 駐輪場 | あり | 管理人/管理会社 | - |
| 周辺環境 | その他 広島自転車商会(飲食店)まで81m その他 富山市五番町幼稚園(幼稚園・保育園)まで202m その他 石谷もちや(飲食店)まで215m その他 富山市立中央小学校(小学校)まで208m その他 ピアゴ 富山西町店(スーパー)まで233m その他 セブンイレブン 富山上本町店(コンビニ)まで245m | ||
| 建物種別 | マンション | 建物構造 | RC(鉄筋コンクリート) |
この部屋の取扱い不動産会社
| 会社名 | まちなかR不動産 (株)RELAITO(SUUMO経由) | ||
|---|---|---|---|
| 所在地 | 富山県富山市三番町 1-23 プレミスト西町1階 | 交通 | - |
| 営業時間 | 10:00~18:30 | 定休日 | なし |
| 免許番号 | 富山県知事3159 | 取引態様 | 仲介 |
| 不動産会社管理番号 | 100488940243 | 当社管理番号 | 89 |
| 所属団体 | (公社)全日本不動産協会富山県本部会員 | ||
| 公正取引協議会 | 北陸不動産公正取引協議会加盟 | ||
| 取扱い物件情報 | 物件詳細へ | ||
※各種情報と現状に差異がある場合は、現状優先となります。問い合わせをすることで、より詳しい条件、情報を確認する事ができます。
提供:まちなかR不動産 (株)RELAITO(SUUMO経由)
この物件が気になったら掲載期限まであと10日
サーパス富山三番町レジデンスに条件(家賃・エリア)が近い物件一覧
| 写真 | 家賃 管理費等 | 敷金 礼金 | 間取り 専有面積 | 築年数 | 最寄り駅 所在地 | キープ | 詳細 |
|---|---|---|---|---|---|---|---|
マンション 富山地鉄富山都心線 大手モール駅 徒歩3分 築9年(1LDK/4階) | |||||||
![]() | 11.5万円 1.35万円 | なし 11.5万円 | 1LDK 55.22m2 | 築9年 | 富山地鉄富山都心線 大手モール駅 徒歩3分 富山地鉄富山都心線 グランドプラザ前駅 徒歩5分 富山県富山市大手町 | 詳細を見る | |
マンション 富山地鉄不二越上滝 南富山駅 徒歩14分 築1年(2LDK/3階) | |||||||
![]() | 11.6万円 8,700円 | なし 23.2万円 | 2LDK 61.52m2 | 築1年 | 富山地鉄不二越上滝 南富山駅 徒歩14分 富山地鉄不二越上滝 朝菜町駅 徒歩16分 富山地鉄富山市内線 大町駅(富山) 徒歩17分 富山県富山市掛尾町 | 詳細を見る | |
アパート 富山地鉄富山港線 奥田中学校前駅 徒歩10分 新築(2LDK/3階) | |||||||
![]() | 10.2万円 5,000円 | なし 20.4万円 | 2LDK 55.03m2 | 新築 | 富山地鉄富山港線 奥田中学校前駅 徒歩10分 富山地鉄本線 稲荷町駅(富山) 徒歩12分 富山地鉄富山港線 龍谷富山高校前駅 徒歩15分 富山県富山市窪本町 | 詳細を見る | |
アパート 富山地鉄富山港線 奥田中学校前駅 徒歩7分 新築(2LDK/1階) | |||||||
![]() | 10万円 5,000円 | なし 20万円 | 2LDK 53.76m2 | 新築 | 富山地鉄富山港線 奥田中学校前駅 徒歩7分 富山地鉄富山港線 龍谷富山高校前駅 徒歩12分 富山地鉄本線 稲荷町駅(富山) 徒歩13分 富山県富山市窪本町 | 詳細を見る | |
アパート 富山地鉄富山港線 下奥井駅 徒歩4分 築1年(2LDK/1階) | |||||||
![]() | 10.6万円 8,500円 | なし 21.2万円 | 2LDK 50.68m2 | 築1年 | 富山地鉄富山港線 下奥井駅 徒歩4分 富山地鉄富山港線 奥田中学校前駅 徒歩12分 富山地鉄富山港線 龍谷富山高校前駅 徒歩13分 富山県富山市久方町 | 詳細を見る | |
アパート 富山地鉄富山港線 下奥井駅 徒歩9分 築1年(2LDK/3階) | |||||||
![]() | 11.5万円 7,600円 | なし 5万円 | 2LDK 62.96m2 | 築1年 | 富山地鉄富山港線 下奥井駅 徒歩9分 富山地鉄富山港線 越中中島駅 徒歩12分 富山地鉄富山港線 粟島駅 徒歩12分 富山県富山市奥田本町 | 詳細を見る | |
一戸建て 富山地鉄不二越上滝 大泉駅(富山) 徒歩7分 築15年(5LDK) | |||||||
![]() | 15.5万円 なし | 15.5万円 15.5万円 | 5LDK 119.44m2 | 築15年 | 富山地鉄不二越上滝 大泉駅(富山) 徒歩7分 富山地鉄富山市内線 小泉町駅(富山) 徒歩12分 富山地鉄富山市内線 堀川小泉駅 徒歩13分 富山県富山市大泉中町 | 詳細を見る | |
アパート 富山地鉄富山港線 龍谷富山高校前駅 徒歩10分 新築(2LDK/2階) | |||||||
![]() | 10.2万円 8,500円 | なし 20.4万円 | 2LDK 59.98m2 | 新築 | 富山地鉄富山港線 龍谷富山高校前駅 徒歩10分 富山地鉄富山港線 下奥井駅 徒歩14分 富山県富山市奥井町 | 詳細を見る | |








