賃貸マンション
ヴィータローザ横濱吉野町の賃貸物件情報(1LDK/4階)
| 家賃 | 管理費等 | 敷金 | 礼金 | 間取り | 専有面積 |
|---|---|---|---|---|---|
| 10万円 | 1万円 | なし | 10万円 | 1LDK | 35.39m2 |
入居決定でお祝い金最大100,000円
- 保証金
- -
- 償却・敷引
- -
- 築年数
- 築19年
- 所在階
- 4階
- 向き
- 南西
Point
宅配ボックス完備。オール電化。駐輪場無料。コンビニ、スーパー徒歩圏内。お問い合わせはお早めに。弊社ではご契約金のカード決済可能です。
提供:賃貸のベイスクアッド(株)福商(SUUMO経由)

詳細情報 ヴィータローザ横濱吉野町
物件紹介
ヴィータローザ横濱吉野町はブルーライン吉野町駅から徒歩3分にあり、駅近で通勤通学に便利なマンションです。
このお部屋は2階以上に位置しているので、通行人や周囲の住人からの視線が気になりにくく、防犯面でも安心。建物のエントランスはオートロックがついており、インターホンにはTVモニタもついているため、相手の顔を確認してから来客対応することができます。
人気の南向きのお部屋。角部屋でもあるため、周囲の居住者の生活音も気になりにくい場所です。キッチンはシステムキッチン仕様になっていますので、お料理好きの方にもぴったり。バス・トイレは別なので、のんびりお風呂タイムも楽しめるでしょう。また、雨の日でも浴室乾燥機を使えば、お洗濯も問題ありません。
通信設備面では、インターネット接続が可能です。また、BSアンテナ・CSアンテナもありますので、おうち時間も充実するでしょう(別途工事、契約料が必要な場合あり)。
建物にはエレベーターがついているので、重い荷物があっても安心。共用部には宅配ボックスが設定されているので、不在の時にも荷物を受け取ることができます。
このお部屋は2階以上に位置しているので、通行人や周囲の住人からの視線が気になりにくく、防犯面でも安心。建物のエントランスはオートロックがついており、インターホンにはTVモニタもついているため、相手の顔を確認してから来客対応することができます。
人気の南向きのお部屋。角部屋でもあるため、周囲の居住者の生活音も気になりにくい場所です。キッチンはシステムキッチン仕様になっていますので、お料理好きの方にもぴったり。バス・トイレは別なので、のんびりお風呂タイムも楽しめるでしょう。また、雨の日でも浴室乾燥機を使えば、お洗濯も問題ありません。
通信設備面では、インターネット接続が可能です。また、BSアンテナ・CSアンテナもありますので、おうち時間も充実するでしょう(別途工事、契約料が必要な場合あり)。
建物にはエレベーターがついているので、重い荷物があっても安心。共用部には宅配ボックスが設定されているので、不在の時にも荷物を受け取ることができます。
お金・契約の情報
※「-」と表示されているものは、実際は料金が発生するものもございます。詳細はお問い合わせください。
| 家賃 | 10万円 | 管理費・共益費 | 1万円 |
|---|---|---|---|
| 敷金 | なし | 礼金 | 10万円 |
| 入居決定でお祝い金最大100,000円 | |||
| 保証金 | - | 償却・敷引 | - |
| 住宅保険料 | - | 更新料 | - |
| 保証会社利用 | 必須 | 保証会社名 | - |
| 保証会社費用 | - | 保証会社備考 | 保証会社利用必 初回総賃料の50% 毎月1.2% |
| 契約形態 | - | 契約期間 | - |
| 入居・引渡期間 | - | 現況 | - |
| 契約備考 | BS・CS・インターネット利用は別途契約(有償)。退去時ルームクリーニング費用、ACクリーニング費用要。短期解約違約金は1年未満の解約の場合総賃料の1か月分要。 合計7.15万円(内訳:24時間安心サポート費(2年)16500円/契約事務手数料11000円/鍵交換費用33000円/室内除菌消臭費11000円) 1LDK 単身者可/二人入居可/子供可 普通借家2年 損保【要】 バストイレ別、バルコニー、エアコン、クロゼット、TVインターホン、浴室乾燥機、オートロック、室内洗濯置、陽当り良好、シューズボックス、システムキッチン、角住戸、温水洗浄便座、脱衣所、エレベーター、洗面所独立、洗面化粧台、2口コンロ、駐輪場、宅配ボックス、光ファイバー、外壁タイル張り、BS・CS、敷金不要、防犯カメラ、IHクッキングヒーター、分譲賃貸、保証人不要、オール電化、駅まで平坦、眺望良好、ダブルロックキー、平坦地、3駅以上利用可、3沿線以上利用可、駅徒歩5分以内、24時間ゴミ出し可、敷地内ごみ置き場、南西向き、高速ネット対応、礼金1ヶ月、IT重説対応物件、初期費用カード決済可 入居日:'26年3月中旬 | ||
部屋の情報
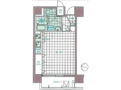
| 間取り | 1LDK | 専有面積 | 35.39m2 |
|---|---|---|---|
| 所在階 / 向き | 4階 / 南西 | バルコニー面積 | - |
| 水道 / ガス | - | ||
| 設備 | バス・トイレ別、2階以上、オートロック、テレビドアホン、宅配ボックス、浴室乾燥機、インターネット対応、システムキッチン、エアコン、エレベーター、温水洗浄便座、南向き、角部屋、バルコニー、洗髪洗面化粧台、オール電化、2口コンロ、コンロ:IH、CSアンテナ、BSアンテナ、洗濯機:室内 | ||
| 当社物件ID | 160143451 | ||
建物の情報
| 建物名 | ヴィータローザ横濱吉野町 | ||
|---|---|---|---|
| 所在地 | 神奈川県横浜市南区山王町 | ||
| 交通 | ブルーライン 吉野町駅 徒歩3分 京急本線 南太田駅 徒歩7分 JR京浜東北線 関内駅 徒歩25分 | ||
| 階数 | 10階建 | 総戸数 | - |
| 築年月 | 2007年03月 / 築19年 | エレベーター | あり |
| 駐車場 | 空有 22000円 | バイク置き場 | - |
| 駐輪場 | あり | 管理人/管理会社 | - |
| 周辺環境 | その他 CIAL(シァル)桜木町(ショッピングセンター)まで2436m その他 コレットマーレ(ショッピングセンター)まで2536m その他 ランドマークプラザ(ショッピングセンター)まで3040m その他 クイーンズスクエア横浜(ショッピングセンター)まで3188m その他 MARK IS(マークイズ) みなとみらい(ショッピングセンター)まで3332m その他 横浜ワールドポーターズ(ショッピングセンター)まで3368m | ||
| 建物種別 | マンション | 建物構造 | RC(鉄筋コンクリート) |
この部屋の取扱い不動産会社
| 会社名 | 賃貸のベイスクアッド(株)福商(SUUMO経由) | ||
|---|---|---|---|
| 所在地 | 神奈川県横浜市西区平沼1-40-1 | 交通 | - |
| 営業時間 | 10:00~19:00 事前のご連絡で時間外対応可 | 定休日 | 水曜日 |
| 免許番号 | 神奈川県知事28345 | 取引態様 | 仲介 |
| 不動産会社管理番号 | 100480671769 | 当社管理番号 | 89 |
| 所属団体 | (公社)全日本不動産協会神奈川県本部会員 | ||
| 公正取引協議会 | (公社)首都圏不動産公正取引協議会加盟 | ||
| 取扱い物件情報 | 物件詳細へ | ||
※各種情報と現状に差異がある場合は、現状優先となります。問い合わせをすることで、より詳しい条件、情報を確認する事ができます。
提供:賃貸のベイスクアッド(株)福商(SUUMO経由)
この物件が気になったら掲載期限まであと10日
ヴィータローザ横濱吉野町に条件(家賃・エリア)が近い物件一覧
| 写真 | 家賃 管理費等 | 敷金 礼金 | 間取り 専有面積 | 築年数 | 最寄り駅 所在地 | キープ | 詳細 |
|---|---|---|---|---|---|---|---|
アパート セレ・クォーレ新百合(1LDK/2階) | |||||||
![]() | 10.5万円 5,000円 | なし 10.5万円 | 1LDK 46.37m2 | 築19年 | 小田急線 新百合ケ丘駅 徒歩7分 小田急線 百合ケ丘駅 徒歩11分 小田急多摩線 五月台駅 徒歩24分 神奈川県川崎市麻生区万福寺 | 詳細を見る | |
アパート フラワーハイツⅡ(2DK/2階) | |||||||
![]() | 6万円 2,000円 | なし なし | 2DK 39.8m2 | 築41年 | 小田急電鉄江ノ島線 鶴間駅 徒歩4分 神奈川県大和市鶴間2丁目 | 詳細を見る | |
アパート シャルマンハイム(ワンルーム/1階) | |||||||
![]() | 6.5万円 3,000円 | なし なし | ワンルーム 24.84m2 | 築24年 | JR南武線 平間駅 徒歩8分 東急多摩川線 下丸子駅 徒歩18分 JR南武線 向河原駅 徒歩20分 神奈川県川崎市中原区上平間 | 詳細を見る | |
マンション レオパレスヴィレッジ(1K/3階) | |||||||
![]() | 6万円 5,500円 | なし なし | 1K 19.87m2 | 築20年 | JR南武線 中野島駅 徒歩13分 小田急線 向ケ丘遊園駅 徒歩19分 小田急線 登戸駅 徒歩21分 神奈川県川崎市多摩区登戸 | 詳細を見る | |
マンション キャンパスヴィレッジ生田(ワンルーム/5階) | |||||||
![]() | 6.8万円 2.3万円 | 7万円 12万円 | ワンルーム 15.87m2 | 築2年 | 小田急線 生田駅(神奈川) 徒歩9分 小田急線 読売ランド前駅 徒歩26分 小田急線 向ケ丘遊園駅 徒歩34分 神奈川県川崎市多摩区三田 | 詳細を見る | |
マンション グルワール中原(1K/4階) | |||||||
![]() | 6.7万円 3,000円 | 6.7万円 6.7万円 | 1K 19.58m2 | 築21年 | JR南武線 武蔵中原駅 徒歩3分 JR南武線 武蔵新城駅 徒歩20分 東急東横線 武蔵小杉駅 徒歩23分 神奈川県川崎市中原区上小田中 | 詳細を見る | |
マンション ピースコート登戸(1K/2階) | |||||||
![]() | 8.3万円 3,000円 | 8.3万円 8.3万円 | 1K 19.45m2 | 築9年 | JR南武線 登戸駅 徒歩5分 小田急線 向ケ丘遊園駅 徒歩7分 JR南武線 宿河原駅 徒歩15分 神奈川県川崎市多摩区登戸 | 詳細を見る | |
マンション リブレスト川崎(3LDK/3階) | |||||||
![]() | 15.9万円 1万円 | 15.9万円 15.9万円 | 3LDK 79.38m2 | 築34年 | 京急大師線 小島新田駅 徒歩3分 京急大師線 大師橋駅 徒歩8分 京急大師線 東門前駅 徒歩16分 神奈川県川崎市川崎区江川 | 詳細を見る | |









