賃貸マンション
フロール横浜三ツ沢 2番館の賃貸物件情報(2LDK/3階)
| 家賃 | 管理費等 | 敷金 | 礼金 | 間取り | 専有面積 |
|---|---|---|---|---|---|
| 15.35万円 | 8,900円 | 15.35万円 | なし | 2LDK | 55.38m2 |
入居決定でお祝い金最大100,000円
- 保証金
- -
- 償却・敷引
- -
- 築年数
- 築3年
- 所在階
- 3階
- 向き
- 南
Point
まずはお問い合わせ!
不動産会社は街のプロ、あなたに合った物件がきっと見つかります。
提供:横浜ルームギャラリー (株)さくらスタイル(SUUMO経由)

詳細情報 フロール横浜三ツ沢 2番館
物件紹介
フロール横浜三ツ沢 2番館はブルーライン三ツ沢下町駅から徒歩12分にあるマンションです。
このお部屋は2階以上に位置しているので、通行人や周囲の住人からの視線が気になりにくく、防犯面でも安心。建物のエントランスはオートロックがついており、インターホンにはTVモニタもついているため、相手の顔を確認してから来客対応することができます。
おしゃれなデザイナーズ物件!また、楽器相談が可能な物件となっているので、楽器演奏をお考えの方はぜひ相談してみてください。人気の南向き・フローリングのお部屋。室内にはウォークインクローゼットがありますので、たくさんの荷物も効率的に収納ができます。キッチンはシステムキッチン仕様になっていますので、お料理好きの方にもぴったり。バス・トイレは別なので、のんびりお風呂タイムも楽しめるでしょう。また、雨の日でも浴室乾燥機を使えば、お洗濯も問題ありません。
通信設備面では、インターネット接続が可能です。また、BSアンテナ・CSアンテナがありCATVにも対応しているので、おうち時間も充実するでしょう(別途工事、契約料が必要な場合あり)。
床暖房があり、冬も足元から暖かく快適に過ごすことができます。建物にはエレベーターがついているので、重い荷物があっても安心。共用部には宅配ボックスが設定されているので、不在の時にも荷物を受け取ることができます。
このお部屋は2階以上に位置しているので、通行人や周囲の住人からの視線が気になりにくく、防犯面でも安心。建物のエントランスはオートロックがついており、インターホンにはTVモニタもついているため、相手の顔を確認してから来客対応することができます。
おしゃれなデザイナーズ物件!また、楽器相談が可能な物件となっているので、楽器演奏をお考えの方はぜひ相談してみてください。人気の南向き・フローリングのお部屋。室内にはウォークインクローゼットがありますので、たくさんの荷物も効率的に収納ができます。キッチンはシステムキッチン仕様になっていますので、お料理好きの方にもぴったり。バス・トイレは別なので、のんびりお風呂タイムも楽しめるでしょう。また、雨の日でも浴室乾燥機を使えば、お洗濯も問題ありません。
通信設備面では、インターネット接続が可能です。また、BSアンテナ・CSアンテナがありCATVにも対応しているので、おうち時間も充実するでしょう(別途工事、契約料が必要な場合あり)。
床暖房があり、冬も足元から暖かく快適に過ごすことができます。建物にはエレベーターがついているので、重い荷物があっても安心。共用部には宅配ボックスが設定されているので、不在の時にも荷物を受け取ることができます。
お金・契約の情報
※「-」と表示されているものは、実際は料金が発生するものもございます。詳細はお問い合わせください。
| 家賃 | 15.35万円 | 管理費・共益費 | 8,900円 |
|---|---|---|---|
| 敷金 | 15.35万円 | 礼金 | なし |
| 入居決定でお祝い金最大100,000円 | |||
| 保証金 | - | 償却・敷引 | - |
| 住宅保険料 | - | 更新料 | - |
| 保証会社利用 | 必須 | 保証会社名 | - |
| 保証会社費用 | - | 保証会社備考 | 保証会社利用必 [月]賃料等の1% |
| 契約形態 | - | 契約期間 | - |
| 入居・引渡期間 | - | 現況 | - |
| 契約備考 | 通勤管理/[駐車場利用時]:敷金2ヶ月 駐輪場 月額220円 /バイク置場 月額2200円 2LDK 二人入居可/子供可 普通借家1年 損保【要】 バストイレ別、バルコニー、エアコン、ガスコンロ対応、クロゼット、フローリング、TVインターホン、浴室乾燥機、オートロック、室内洗濯置、陽当り良好、シューズボックス、システムキッチン、南向き、追焚機能浴室、温水洗浄便座、脱衣所、エレベーター、洗面所独立、洗面化粧台、駐輪場、宅配ボックス、CATV、光ファイバー、礼金不要、3口以上コンロ、対面式キッチン、防犯カメラ、グリル付、ウォークインクロゼット、保証人不要、仲介手数料不要、バイク置場、2沿線利用可、CS、ネット専用回線、床暖房、2駅利用可、3駅以上利用可、24時間ゴミ出し可、敷地内ごみ置き場、築5年以内、都市ガス、シューズWIC、BS、IT重説対応物件、初期費用カード決済可 入居日:'26年3月上旬 | ||
部屋の情報
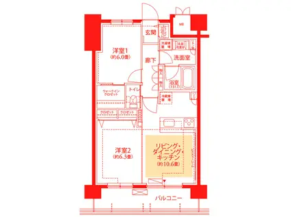
| 間取り | 2LDK | 専有面積 | 55.38m2 |
|---|---|---|---|
| 所在階 / 向き | 3階 / 南 | バルコニー面積 | - |
| 水道 / ガス | - | ||
| 設備 | バス・トイレ別、2階以上、オートロック、テレビドアホン、宅配ボックス、浴室乾燥機、ウォークインクローゼット、追い焚き、インターネット対応、システムキッチン、エアコン、エレベーター、温水洗浄便座、南向き、バルコニー、フローリング、洗髪洗面化粧台、床暖房、2口コンロ、コンロ:ガス、CATV、CSアンテナ、BSアンテナ、洗濯機:室内 | ||
| 当社物件ID | 148368523 | ||
建物の情報
| 建物名 | フロール横浜三ツ沢 2番館 | ||
|---|---|---|---|
| 所在地 | 神奈川県横浜市神奈川区六角橋 | ||
| 交通 | ブルーライン 三ツ沢下町駅 徒歩12分 東急東横線 反町駅 徒歩17分 東急東横線 白楽駅 徒歩20分 | ||
| 階数 | 5階建 | 総戸数 | 97戸 |
| 築年月 | 2023年10月 / 築3年 | エレベーター | あり |
| 駐車場 | 空有 12650円 | バイク置き場 | あり |
| 駐輪場 | あり | 管理人/管理会社 | - |
| 周辺環境 | その他 ユーコープ神大寺店(スーパー)まで849m その他 ローソン(コンビニ)まで684m その他 ローソンストア100 六角橋店(コンビニ)まで724m その他 クリエイトS・D 横浜神大寺店(ドラッグストア)まで1187m その他 横浜神大寺郵便局(郵便局)まで794m その他 業務スーパー六角橋店(スーパー)まで1048m | ||
| 建物種別 | マンション | 建物構造 | RC(鉄筋コンクリート) |
この部屋の取扱い不動産会社
| 会社名 | さくらde賃貸-new life- (株)さくらスタイル(SUUMO経由) | ||
|---|---|---|---|
| 所在地 | 神奈川県横浜市神奈川区鶴屋町2-21-9三善ビル4階401 | 交通 | - |
| 営業時間 | 午前10時~ | 定休日 | なし |
| 免許番号 | 神奈川県知事28256 | 取引態様 | 仲介 |
| 不動産会社管理番号 | 100485375458 | 当社管理番号 | 89 |
| 所属団体 | (公社)全日本不動産協会神奈川県本部会員 | ||
| 公正取引協議会 | (公社)首都圏不動産公正取引協議会加盟 | ||
| 取扱い物件情報 | 物件詳細へ | ||
※各種情報と現状に差異がある場合は、現状優先となります。問い合わせをすることで、より詳しい条件、情報を確認する事ができます。
提供:さくらde賃貸-new life- (株)さくらスタイル(SUUMO経由)
この物件が気になったら掲載期限まであと11日
フロール横浜三ツ沢 2番館に条件(家賃・エリア)が近い物件一覧
| 写真 | 家賃 管理費等 | 敷金 礼金 | 間取り 専有面積 | 築年数 | 最寄り駅 所在地 | キープ | 詳細 |
|---|---|---|---|---|---|---|---|
アパート ラルーチェ(2DK/2階) | |||||||
![]() | 14.7万円 3,500円 | 14.7万円 14.7万円 | 2DK 63.93m2 | 築12年 | 江ノ島電鉄線 和田塚駅 徒歩3分 江ノ島電鉄線 由比ケ浜駅 徒歩10分 JR横須賀線 鎌倉駅 徒歩11分 神奈川県鎌倉市由比ガ浜 | 詳細を見る | |
マンション グレーシアフィット横浜(1K/5階) | |||||||
![]() | 15.3万円 1万円 | 15.3万円 15.3万円 | 1K 27.03m2 | 築1年 | JR東海道本線 横浜駅 徒歩3分 みなとみらい線 横浜駅 徒歩3分 京急本線 横浜駅 徒歩3分 神奈川県横浜市神奈川区鶴屋町 | 詳細を見る | |
マンション 大和市西鶴間3丁目マンション(1SLDK/1階) | |||||||
![]() | 11.8万円 8,000円 | 11.8万円 23.6万円 | 1SLDK 55.47m2 | 新築 | 小田急電鉄江ノ島線 鶴間駅 徒歩8分 神奈川県大和市西鶴間3丁目 | 詳細を見る | |
アパート D PAINA EGAWAⅠ(1LDK/3階) | |||||||
![]() | 13.8万円 6,500円 | なし 20.7万円 | 1LDK 51.16m2 | 新築 | 京浜急行電鉄大師線 小島新田駅 徒歩1分 神奈川県川崎市川崎区江川2丁目 | 詳細を見る | |
マンション LUXENAPAWS藤沢(2SLDK/1階) | |||||||
![]() | 20.2万円 2万円 | なし なし | 2SLDK 62.97m2 | 築1年 | JR東海道本線 藤沢駅 徒歩12分 江ノ島電鉄線 藤沢駅 徒歩18分 江ノ島電鉄線 石上駅 徒歩18分 神奈川県藤沢市弥勒寺 | 詳細を見る | |
マンション 鵠沼海岸7丁目メゾン(1LDK/2階) | |||||||
![]() | 14万円 8,000円 | 14万円 14万円 | 1LDK 45.29m2 | 新築 | 小田急江ノ島線 鵠沼海岸駅 徒歩8分 小田急江ノ島線 本鵠沼駅 徒歩17分 JR東海道本線 藤沢駅 徒歩30分 神奈川県藤沢市鵠沼海岸 | 詳細を見る | |
マンション グリーン・コア(2DK/1階) | |||||||
![]() | 12万円 なし | なし 12万円 | 2DK 44.5m2 | 築41年 | 小田急線 生田駅(神奈川) 徒歩7分 JR南武線 中野島駅 徒歩21分 小田急線 読売ランド前駅 徒歩21分 神奈川県川崎市多摩区生田 | 詳細を見る | |
マンション ヨコハマフィズ(1LDK/2階) | |||||||
![]() | 9.5万円 5,000円 | 9.5万円 9.5万円 | 1LDK 33.87m2 | 築30年 | 東急東横線 東白楽駅 徒歩7分 JR京浜東北線 東神奈川駅 徒歩8分 東急東横線 反町駅 徒歩8分 神奈川県横浜市神奈川区平川町 | 詳細を見る | |








