賃貸アパート
リブリ・モーリーの賃貸物件情報(1K/2階)
| 家賃 | 管理費等 | 敷金 | 礼金 | 間取り | 専有面積 |
|---|---|---|---|---|---|
| 8.6万円 | 4,000円 | なし | 12.9万円 | 1K | 27.32m2 |
入居決定でお祝い金最大100,000円
- 保証金
- -
- 償却・敷引
- -
- 築年数
- 築10年
- 所在階
- 2階
- 向き
- 南
Point
まずはお問い合わせ!
不動産会社は街のプロ、あなたに合った物件がきっと見つかります。
提供:(株)湘南ライヴ関内店(SUUMO経由)

詳細情報 リブリ・モーリー
物件紹介
リブリ・モーリーは京急本線京急鶴見駅から徒歩8分にあり、駅近で通勤通学に便利なアパートです。
このお部屋は2階以上に位置しているので、通行人や周囲の住人からの視線が気になりにくく、防犯面でも安心。インターホンにはTVモニタもついているため、相手の顔を確認してから来客対応することができます。
人気の南向き・フローリングのお部屋。角部屋でもあるため、周囲の居住者の生活音も気になりにくい場所です。室内にはウォークインクローゼットがありますので、たくさんの荷物も効率的に収納ができます。キッチンはシステムキッチン仕様になっていますので、お料理好きの方にもぴったり。バス・トイレは別なので、のんびりお風呂タイムも楽しめるでしょう。また、雨の日でも浴室乾燥機を使えば、お洗濯も問題ありません。
通信設備面では、インターネットが無料で使えるので、月々の出費を抑えられるのも魅力です。また、BSアンテナ・CSアンテナがありCATVにも対応しているので、おうち時間も充実するでしょう(別途工事、BS・CS・CATVの契約料等が必要な場合あり)。
このお部屋は2階以上に位置しているので、通行人や周囲の住人からの視線が気になりにくく、防犯面でも安心。インターホンにはTVモニタもついているため、相手の顔を確認してから来客対応することができます。
人気の南向き・フローリングのお部屋。角部屋でもあるため、周囲の居住者の生活音も気になりにくい場所です。室内にはウォークインクローゼットがありますので、たくさんの荷物も効率的に収納ができます。キッチンはシステムキッチン仕様になっていますので、お料理好きの方にもぴったり。バス・トイレは別なので、のんびりお風呂タイムも楽しめるでしょう。また、雨の日でも浴室乾燥機を使えば、お洗濯も問題ありません。
通信設備面では、インターネットが無料で使えるので、月々の出費を抑えられるのも魅力です。また、BSアンテナ・CSアンテナがありCATVにも対応しているので、おうち時間も充実するでしょう(別途工事、BS・CS・CATVの契約料等が必要な場合あり)。
お金・契約の情報
※「-」と表示されているものは、実際は料金が発生するものもございます。詳細はお問い合わせください。
| 家賃 | 8.6万円 | 管理費・共益費 | 4,000円 |
|---|---|---|---|
| 敷金 | なし | 礼金 | 12.9万円 |
| 入居決定でお祝い金最大100,000円 | |||
| 保証金 | - | 償却・敷引 | - |
| 住宅保険料 | - | 更新料 | - |
| 保証会社利用 | 必須 | 保証会社名 | - |
| 保証会社費用 | - | 保証会社備考 | 保証会社利用必 初回総賃料100%、総賃料1.1%/月額 |
| 契約形態 | 定期借家 | 契約期間 | 2年 |
| 入居・引渡期間 | 相談 | 現況 | - |
| 契約備考 | 鍵交換費:24200円/消毒代:16500円/会費初回:7700円/会費:月2200円/清掃費:41800円 口座振替 月額330円 1K 定期借家2年 損保【要】 バストイレ別、バルコニー、エアコン、ガスコンロ対応、クロゼット、フローリング、TVインターホン、浴室乾燥機、室内洗濯置、陽当り良好、シューズボックス、システムキッチン、南向き、温水洗浄便座、脱衣所、洗面所独立、洗面化粧台、2口コンロ、駐輪場、CATV、敷金不要、照明付、オートバス、ウォークインクロゼット、保証人不要、バイク置場、防犯シャッター、全居室フローリング、ディンプルキー、CS、ネット使用料不要、眺望良好、エアコン全室、ダブルロックキー、南面リビング、3駅以上利用可、3沿線以上利用可、セキュリティ会社加入済、全居室6畳以上、都市ガス、南面バルコニー、シャッター、BS、高速ネット対応、初期費用カード決済可、通風良好 | ||
部屋の情報
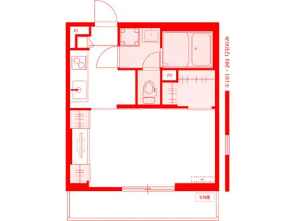
| 間取り | 1K | 専有面積 | 27.32m2 |
|---|---|---|---|
| 所在階 / 向き | 2階 / 南 | バルコニー面積 | - |
| 水道 / ガス | - | ||
| 設備 | バス・トイレ別、2階以上、テレビドアホン、浴室乾燥機、ウォークインクローゼット、追い焚き、インターネット対応、システムキッチン、エアコン、温水洗浄便座、南向き、バルコニー、フローリング、洗髪洗面化粧台、2口コンロ、コンロ:ガス、CATV、CSアンテナ、BSアンテナ、インターネット使用料無料、洗濯機:室内 | ||
| 当社物件ID | 21325583 | ||
建物の情報
| 建物名 | リブリ・モーリー | ||
|---|---|---|---|
| 所在地 | 神奈川県横浜市鶴見区潮田町 | ||
| 交通 | 京急本線 京急鶴見駅 徒歩10分 JR京浜東北線 鶴見駅 徒歩12分 JR鶴見線 鶴見小野駅 徒歩12分 | ||
| 階数 | 2階建 | 総戸数 | - |
| 築年月 | 2016年05月 / 築10年 | エレベーター | - |
| 駐車場 | なし | バイク置き場 | あり |
| 駐輪場 | あり | 管理人/管理会社 | - |
| 周辺環境 | その他 潮田公園(公園)まで431m その他 オリンピック 鶴見中央店(その他)まで671m その他 ライフ鶴見下野谷町店(スーパー)まで748m その他 キッチンオリジン 京急鶴見店(飲食店)まで874m その他 薬 マツモトキヨシ 京急鶴見店(ドラッグストア)まで970m その他 シァル鶴見(ショッピングセンター)まで1035m | ||
| 建物種別 | アパート | 建物構造 | 木造 |
この部屋の取扱い不動産会社
| 会社名 | good residence(株)SKコンサルティング(SUUMO経由) | ||
|---|---|---|---|
| 所在地 | 神奈川県横浜市西区北幸2-10-48 むつみビル5階B | 交通 | - |
| 営業時間 | 10:00~19:00 | 定休日 | 無 |
| 免許番号 | 神奈川県知事31917 | 取引態様 | 仲介 |
| 不動産会社管理番号 | 100478186342 | 当社管理番号 | 89 |
| 所属団体 | (公社)全日本不動産協会神奈川県本部会員 | ||
| 公正取引協議会 | (公社)首都圏不動産公正取引協議会加盟 | ||
| 取扱い物件情報 | 物件詳細へ | ||
※各種情報と現状に差異がある場合は、現状優先となります。問い合わせをすることで、より詳しい条件、情報を確認する事ができます。
提供:good residence(株)SKコンサルティング(SUUMO経由)
この物件が気になったら掲載期限まであと10日
リブリ・モーリーに条件(家賃・エリア)が近い物件一覧
| 写真 | 家賃 管理費等 | 敷金 礼金 | 間取り 専有面積 | 築年数 | 最寄り駅 所在地 | キープ | 詳細 |
|---|---|---|---|---|---|---|---|
マンション ガーラ・ステーション川崎平間(2K/6階) | |||||||
![]() | 9.31万円 9,000円 | 9.31万円 13.97万円 | 2K 25.38m2 | 新築 | JR南武線 平間駅 徒歩3分 JR横須賀線 新川崎駅 徒歩15分 JR横須賀線 武蔵小杉駅 徒歩26分 神奈川県川崎市中原区田尻町 | 詳細を見る | |
マンション ロイビル武蔵小杉(1K/5階) | |||||||
![]() | 7.8万円 3,000円 | 7.8万円 7.8万円 | 1K 24m2 | 築34年 | 東急東横線 武蔵小杉駅 徒歩7分 東急東横線 元住吉駅 徒歩12分 JR南武線 向河原駅 徒歩13分 神奈川県川崎市中原区小杉町 | 詳細を見る | |
アパート ラカサデ上町(1K/1階) | |||||||
![]() | 5.9万円 1,000円 | 5.9万円 なし | 1K 24.84m2 | 築16年 | 京浜急行電鉄本線 横須賀中央駅 徒歩7分 神奈川県横須賀市上町1丁目 | 詳細を見る | |
マンション ラフィスタ川崎大師2(1K/4階) | |||||||
![]() | 7.5万円 1.5万円 | 7.5万円 7.5万円 | 1K 21.2m2 | 築8年 | 京浜急行電鉄大師線 東門前駅 徒歩10分 神奈川県川崎市川崎区台町 | 詳細を見る | |
アパート ポートウエスト生田(1K/2階) | |||||||
![]() | 6.1万円 4,000円 | 6.1万円 6.1万円 | 1K 19.87m2 | 築5年 | 小田急線 生田駅(神奈川) 徒歩8分 小田急線 向ケ丘遊園駅 徒歩24分 小田急線 読売ランド前駅 徒歩24分 神奈川県川崎市多摩区三田 | 詳細を見る | |
アパート T&Fレジデンス南林間A(1K/2階) | |||||||
![]() | 6.3万円 4,000円 | なし なし | 1K 22.61m2 | 築1年 | 小田急江ノ島線 南林間駅 徒歩10分 東急田園都市線 中央林間駅 徒歩18分 小田急江ノ島線 鶴間駅 徒歩18分 神奈川県大和市南林間 | 詳細を見る | |
アパート レオパレスMILK(1K/2階) | |||||||
![]() | 6.8万円 5,500円 | なし 6.8万円 | 1K 19.87m2 | 築19年 | JR南武線 中野島駅 徒歩16分 小田急線 向ケ丘遊園駅 徒歩16分 小田急線 登戸駅 徒歩17分 神奈川県川崎市多摩区登戸 | 詳細を見る | |
マンション エミネンス湘南(2LDK/1階) | |||||||
![]() | 7.4万円 4,000円 | なし なし | 2LDK 53m2 | 築39年 | 神奈川県藤沢市大鋸 | 詳細を見る | |








