賃貸アパート
ナバルティBの賃貸物件情報(1K/1階)
| 家賃 | 管理費等 | 敷金 | 礼金 | 間取り | 専有面積 |
|---|---|---|---|---|---|
| 3.5万円 | なし | なし | なし | 1K | 30m2 |
入居決定でお祝い金最大100,000円
- 保証金
- -
- 償却・敷引
- -
- 築年数
- 築26年
- 所在階
- 1階
- 向き
- 南
Point
礼金不要 ロフト・エアコン・照明器具・洗面化粧台・室内洗濯機置場付き 駐車場1台無料
提供:代栄商事(株)(SUUMO経由)

詳細情報 ナバルティB
物件紹介
ナバルティBはJR上越線新前橋駅から徒歩49分にあるアパートです。
このお部屋のインターホンにはTVモニタがついているため、相手の顔を確認してから来客対応することができます。
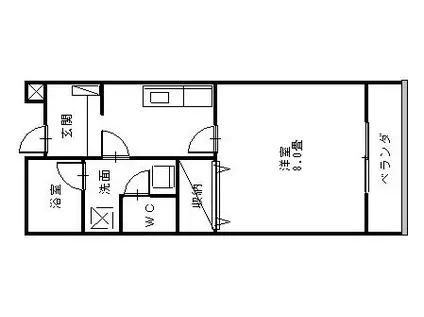
人気の南向き・フローリングのお部屋。室内には多目的に利用できるロフトもあり、お部屋のアレンジも自在です。バス・トイレ別の仕様で、のんびりお風呂タイムも楽しめます。
通信設備面では、インターネット接続が可能です。また、BSアンテナもありますので、おうち時間も充実するでしょう(別途工事、契約料が必要な場合あり)。
このお部屋のインターホンにはTVモニタがついているため、相手の顔を確認してから来客対応することができます。
人気の南向き・フローリングのお部屋。室内には多目的に利用できるロフトもあり、お部屋のアレンジも自在です。バス・トイレ別の仕様で、のんびりお風呂タイムも楽しめます。
通信設備面では、インターネット接続が可能です。また、BSアンテナもありますので、おうち時間も充実するでしょう(別途工事、契約料が必要な場合あり)。
お金・契約の情報
※「-」と表示されているものは、実際は料金が発生するものもございます。詳細はお問い合わせください。
| 家賃 | 3.5万円 | 管理費・共益費 | なし |
|---|---|---|---|
| 敷金 | なし | 礼金 | なし |
| 入居決定でお祝い金最大100,000円 | |||
| 保証金 | - | 償却・敷引 | - |
| 住宅保険料 | - | 更新料 | - |
| 保証会社利用 | 利用可 | 保証会社名 | リクルートフォレントインシュア |
| 保証会社費用 | - | 保証会社備考 | オリコフォレントインシュア利用可 保証料:賃料等の0.5ヶ月分(最低保証料2万円)継続保証料1.3%/月(引落手数料含む) |
| 契約形態 | - | 契約期間 | - |
| 入居・引渡期間 | 即時 | 現況 | - |
| 契約備考 | フレッセイ大利根店まで437m/ミニストップ前橋下新田店まで556m 合計9.35万円(内訳:前家賃3.5万円、保険2万円、手数料3.85万円) ルームクリーニング代2.75万円、町内費300円 1K 損保【2万円2年】 バストイレ別、バルコニー、エアコン、クロゼット、フローリング、TVインターホン、室内洗濯置、陽当り良好、シューズボックス、南向き、洗面所独立、洗面化粧台、押入、光ファイバー、外壁タイル張り、即入居可、礼金不要、閑静な住宅地、照明付、駐車場1台無料、ロフト、テラス、内装リフォーム済、緑豊かな住宅地、眺望良好、2×4工法、平坦地、外壁サイディング、天井高2.7m以上、敷地内ごみ置き場、平面駐車場、縦型照明付洗面化粧台、シーリングファン、ダウンライト、BS、保証会社利用可、全室照明付、通風良好 | ||
部屋の情報
| 間取り | 1K | 専有面積 | 30m2 |
|---|---|---|---|
| 所在階 / 向き | 1階 / 南 | バルコニー面積 | - |
| 水道 / ガス | - | ||
| 設備 | バス・トイレ別、テレビドアホン、インターネット対応、エアコン、南向き、バルコニー、フローリング、ロフトあり、洗髪洗面化粧台、BSアンテナ、洗濯機:室内 | ||
| 当社物件ID | 158268400 | ||
建物の情報
| 建物名 | ナバルティB | ||
|---|---|---|---|
| 所在地 | 群馬県前橋市下新田町 | ||
| 交通 | JR上越線 新前橋駅 徒歩49分 JR両毛線 前橋駅 徒歩54分 JR上越線 井野駅(群馬) 徒歩59分 | ||
| 階数 | 2階建 | 総戸数 | - |
| 築年月 | 2000年08月 / 築26年 | エレベーター | - |
| 駐車場 | 空有 付無料 | バイク置き場 | - |
| 駐輪場 | - | 管理人/管理会社 | - |
| 周辺環境 | その他 フレッセイ大利根店(スーパー)まで435m その他 ミニストップ前橋下新田店(コンビニ)まで556m その他 セブンイレブン高崎大沢町店(コンビニ)まで730m その他 マツモトキヨシ高崎大沢店(ドラッグストア)まで869m その他 ジョイフル前橋大利根店(飲食店)まで613m その他 高崎大沢郵便局(郵便局)まで747m | ||
| 建物種別 | アパート | 建物構造 | 木造 |
この部屋の取扱い不動産会社
| 会社名 | 代栄商事(株)(SUUMO経由) | ||
|---|---|---|---|
| 所在地 | 群馬県前橋市青柳町 200-5 | 交通 | - |
| 営業時間 | AM9:00~PM6:00 | 定休日 | 木曜日 |
| 免許番号 | 群馬県知事3210 | 取引態様 | 仲介 |
| 不動産会社管理番号 | 100278876465 | 当社管理番号 | 89 |
| 所属団体 | (一社)群馬県宅地建物取引業協会会員 | ||
| 公正取引協議会 | (公社)首都圏不動産公正取引協議会加盟 | ||
| 取扱い物件情報 | 物件詳細へ | ||
※各種情報と現状に差異がある場合は、現状優先となります。問い合わせをすることで、より詳しい条件、情報を確認する事ができます。
提供:代栄商事(株)(SUUMO経由)
この物件が気になったら掲載期限まであと6日
ナバルティBに条件(家賃・エリア)が近い物件一覧
| 写真 | 家賃 管理費等 | 敷金 礼金 | 間取り 専有面積 | 築年数 | 最寄り駅 所在地 | キープ | 詳細 |
|---|---|---|---|---|---|---|---|
アパート SKコーポ(1LDK/2階) | |||||||
![]() | 4.5万円 なし | なし なし | 1LDK 37.47m2 | 築35年 | 東武伊勢崎線 伊勢崎駅 徒歩41分 東武伊勢崎線 新伊勢崎駅 徒歩45分 JR両毛線 駒形駅 徒歩55分 群馬県伊勢崎市田中島町 | 詳細を見る | |
アパート トレファルコB棟(3DK/2階) | |||||||
![]() | 4.8万円 2,000円 | なし なし | 3DK 55.06m2 | 築32年 | 上信電鉄上信線 南高崎駅 徒歩28分 群馬県高崎市石原町 | 詳細を見る | |
マンション 笛木ハイツC棟(1K/1階) | |||||||
![]() | 4.9万円 なし | なし なし | 1K 32m2 | 築29年 | JR高崎線 新町駅(群馬) 徒歩7分 群馬県高崎市新町 | 詳細を見る | |
マンション エポック(3DK/3階) | |||||||
![]() | 5.3万円 なし | 5.3万円 なし | 3DK 56.31m2 | 築25年 | JR上越線 八木原駅 徒歩36分 JR上越線 群馬総社駅 徒歩45分 JR上越線 新前橋駅 徒歩99分 群馬県北群馬郡吉岡町大字大久保 | 詳細を見る | |
アパート レオパレスコンフォートフカヤ(1K/2階) | |||||||
![]() | 4万円 4,000円 | なし なし | 1K 23.18m2 | 築25年 | 両毛線 前橋大島駅 徒歩13分 群馬県前橋市天川大島町3丁目 | 詳細を見る | |
アパート ベルジュールA(3DK/1階) | |||||||
![]() | 4.8万円 2,000円 | なし なし | 3DK 46.75m2 | 築33年 | JR両毛線 駒形駅 徒歩33分 JR両毛線 伊勢崎駅 徒歩56分 群馬県伊勢崎市宮子町 | 詳細を見る | |
アパート KDハイツ(1LDK/2階) | |||||||
![]() | 4.8万円 2,000円 | 4.8万円 なし | 1LDK 37.95m2 | 築31年 | 信越本線 北高崎駅 徒歩24分 上越線 高崎問屋町駅 徒歩30分 群馬県高崎市下小鳥町 | 詳細を見る | |
アパート レオパレス三丁田(1K/2階) | |||||||
![]() | 4.7万円 4,000円 | なし なし | 1K 26.08m2 | 築22年 | 両毛線 前橋大島駅 徒歩12分 群馬県前橋市上大島町 | 詳細を見る | |









