賃貸マンション
一文字マンションの賃貸物件情報(1LDK/3階)
| 家賃 | 管理費等 | 敷金 | 礼金 | 間取り | 専有面積 |
|---|---|---|---|---|---|
| 5.7万円 | 3,000円 | なし | 10万円 | 1LDK | 32.06m2 |
入居決定でお祝い金最大100,000円
- 保証金
- -
- 償却・敷引
- -
- 築年数
- 築54年
- 所在階
- 3階
- 向き
- 西
Point
お部屋探しはツインホーム本店にお任せください!
提供:ツインホーム(株)本店(SUUMO経由)

詳細情報 一文字マンション
物件紹介
一文字マンションはJR大阪環状線寺田町駅から徒歩2分にあり、駅近で通勤通学に便利なマンションです。
このお部屋は2階以上に位置しているので通行人や周囲の住人からの視線が気になりにくく、建物のエントランスはオートロックがついているので防犯性が高くなっています。
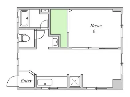
フローリングのお部屋なのでお掃除もラクラク。バス・トイレ別の仕様で、のんびりお風呂タイムも楽しめます。
このお部屋は2階以上に位置しているので通行人や周囲の住人からの視線が気になりにくく、建物のエントランスはオートロックがついているので防犯性が高くなっています。
フローリングのお部屋なのでお掃除もラクラク。バス・トイレ別の仕様で、のんびりお風呂タイムも楽しめます。
お金・契約の情報
※「-」と表示されているものは、実際は料金が発生するものもございます。詳細はお問い合わせください。
| 家賃 | 5.7万円 | 管理費・共益費 | 3,000円 |
|---|---|---|---|
| 敷金 | なし | 礼金 | 10万円 |
| 入居決定でお祝い金最大100,000円 | |||
| 保証金 | - | 償却・敷引 | - |
| 住宅保険料 | - | 更新料 | - |
| 契約形態 | 定期借家 | 契約期間 | 3年 |
| 入居・引渡期間 | 即時 | 現況 | - |
| 契約備考 | 1LDK 定期借家3年 損保【要】 バストイレ別、エアコン、フローリング、オートロック、室内洗濯置、駐輪場、即入居可、バイク置場 | ||
部屋の情報
| 間取り | 1LDK | 専有面積 | 32.06m2 |
|---|---|---|---|
| 所在階 / 向き | 3階 / 西 | バルコニー面積 | - |
| 水道 / ガス | - | ||
| 設備 | バス・トイレ別、2階以上、オートロック、エアコン、フローリング、洗濯機:室内 | ||
| 当社物件ID | 1000906 | ||
建物の情報
| 建物名 | 一文字マンション | ||
|---|---|---|---|
| 所在地 | 大阪府大阪市阿倍野区天王寺町北 | ||
| 交通 | JR大阪環状線 寺田町駅 徒歩2分 近鉄南大阪線 河堀口駅 徒歩9分 JR大阪環状線 天王寺駅 徒歩13分 | ||
| 階数 | 4階建 | 総戸数 | - |
| 築年月 | 1972年03月 / 築54年 | エレベーター | - |
| 駐車場 | なし | バイク置き場 | あり |
| 駐輪場 | あり | 管理人/管理会社 | - |
| 周辺環境 | その他 大阪市立天王寺小学校(小学校)まで1092m その他 大阪市立常盤小学校(小学校)まで1354m その他 マクドナルド 文の里店(飲食店)まで1449m その他 ライフ寺田町駅前店(スーパー)まで459m | ||
| 建物種別 | マンション | 建物構造 | RC(鉄筋コンクリート) |
この部屋の取扱い不動産会社
| 会社名 | ツインホーム(株)本店(SUUMO経由) | ||
|---|---|---|---|
| 所在地 | 大阪府大阪市阿倍野区松崎町4-1-13 | 交通 | - |
| 営業時間 | 10:00~20:00 | 定休日 | なし |
| 免許番号 | 大阪府知事46704 | 取引態様 | 仲介 |
| 不動産会社管理番号 | 100445581285 | 当社管理番号 | 89 |
| 所属団体 | (公社)全日本不動産協会大阪府本部会員 | ||
| 公正取引協議会 | (公社)近畿地区不動産公正取引協議会加盟 | ||
| 取扱い物件情報 | 物件詳細へ | ||
※各種情報と現状に差異がある場合は、現状優先となります。問い合わせをすることで、より詳しい条件、情報を確認する事ができます。
提供:ツインホーム(株)本店(SUUMO経由)
この物件が気になったら掲載期限まであと10日
一文字マンションに条件(家賃・エリア)が近い物件一覧
| 写真 | 家賃 管理費等 | 敷金 礼金 | 間取り 専有面積 | 築年数 | 最寄り駅 所在地 | キープ | 詳細 |
|---|---|---|---|---|---|---|---|
マンション ARCA鳳(1DK/6階) | |||||||
![]() | 7.3万円 6,000円 | なし なし | 1DK 25.11m2 | 築2年 | 阪和線 鳳駅 徒歩6分 阪和線 富木駅 徒歩16分 阪和線 津久野駅 徒歩25分 大阪府堺市西区鳳南町2丁 | 詳細を見る | |
アパート 南海電鉄泉北線 深井駅 徒歩12分 築24年(1K/1階) | |||||||
![]() | 4.6万円 5,000円 | なし なし | 1K 27.2m2 | 築24年 | 南海電鉄泉北線 深井駅 徒歩12分 南海電鉄高野線 初芝駅 徒歩33分 南海電鉄高野線 白鷺駅 徒歩35分 大阪府堺市中区深井水池町 | 詳細を見る | |
アパート メゾンドリックⅢ(1LDK/2階) | |||||||
![]() | 7.4万円 3,500円 | なし 7.4万円 | 1LDK 43.4m2 | 築8年 | 南海電鉄南海本線 石津川駅 徒歩12分 南海電鉄南海本線 諏訪ノ森駅 徒歩20分 南海電鉄南海本線 湊駅 徒歩27分 大阪府堺市西区浜寺石津町東3丁 | 詳細を見る | |
アパート 阪和線 上野芝駅 徒歩7分 築19年(1LDK/1階) | |||||||
![]() | 7万円 5,000円 | なし 7万円 | 1LDK 42m2 | 築19年 | 阪和線 上野芝駅 徒歩7分 阪和線 津久野駅 徒歩14分 阪和線 百舌鳥駅 徒歩23分 大阪府堺市西区上野芝町5丁 | 詳細を見る | |
マンション ハイムタケダT-4(ワンルーム/3階) | |||||||
| 4.2万円 3,000円 | 4.2万円 4.2万円 | ワンルーム 17m2 | 築38年 | 阪急電鉄千里線 豊津駅(大阪) 徒歩4分 阪急電鉄千里線 吹田駅(阪急) 徒歩11分 阪急電鉄千里線 関大前駅 徒歩14分 大阪府吹田市山手町1丁目7-11 | 詳細を見る | ||
マンション テンプルワン(1DK/4階) | |||||||
![]() | 3.9万円 4,000円 | なし 5万円 | 1DK 25m2 | 築37年 | 大阪市長堀鶴見緑地 門真南駅 徒歩16分 京阪電気鉄道京阪線 古川橋駅 徒歩16分 京阪電気鉄道京阪線 門真市駅 徒歩27分 大阪府門真市一番町 | 詳細を見る | |
マンション GRAN PINO 桃山台(1LDK/5階) | |||||||
| 7.5万円 1.1万円 | なし なし | 1LDK 39m2 | 築35年 | 北大阪急行南北線 桃山台駅 徒歩14分 北大阪急行南北線 緑地公園駅 徒歩14分 阪急電鉄千里線 千里山駅 徒歩19分 大阪府吹田市春日1丁目16-1 | 詳細を見る | ||
マンション レオパレス吉川(1K/1階) | |||||||
| 6.5万円 5,000円 | なし 6.5万円 | 1K 19.87m2 | 築19年 | 阪急電鉄京都線 正雀駅 徒歩18分 大阪市今里筋線 井高野駅 徒歩20分 大阪モノレール本線 南摂津駅 徒歩22分 大阪府摂津市東別府5丁目4-21 | 詳細を見る | ||





