賃貸アパート
山手町ヴィラの賃貸物件情報(1DK/2階)
| 家賃 | 管理費等 | 敷金 | 礼金 | 間取り | 専有面積 |
|---|---|---|---|---|---|
| 6.3万円 | 2,000円 | 6.3万円 | なし | 1DK | 24.01m2 |
入居決定でお祝い金最大100,000円
Point
新社会人、学生限定で入居日3月からの初期費用10万円以下の物件取り揃えております。家電付きの物件ございます。気軽にお問わせお待ちしております。
提供:(株)桜関本店(SUUMO経由)

詳細情報 山手町ヴィラ
物件紹介
山手町ヴィラはJR京浜東北線石川町駅から徒歩10分にあり、駅近で通勤通学に便利なアパートです。
このお部屋は2階以上に位置しているので、通行人や周囲の住人からの視線が気になりにくく、防犯面でも安心。インターホンにはTVモニタもついているため、相手の顔を確認してから来客対応することができます。
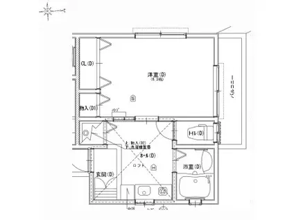
人気の角部屋で周囲の居住者の生活音も気になりにくく、また、フローリングのお部屋なのでお掃除もラクラク。室内にはウォークインクローゼットがありますので、たくさんの荷物も効率的に収納ができます。キッチンはシステムキッチン仕様になっていますので、お料理好きの方にもぴったり。また、バス・トイレは別で、のんびりお風呂タイムも楽しめるでしょう。
通信設備面では、インターネット接続が可能です。また、CATVにも対応しているので、おうち時間も充実するでしょう(別途工事、契約料が必要な場合あり)。
このお部屋は2階以上に位置しているので、通行人や周囲の住人からの視線が気になりにくく、防犯面でも安心。インターホンにはTVモニタもついているため、相手の顔を確認してから来客対応することができます。
人気の角部屋で周囲の居住者の生活音も気になりにくく、また、フローリングのお部屋なのでお掃除もラクラク。室内にはウォークインクローゼットがありますので、たくさんの荷物も効率的に収納ができます。キッチンはシステムキッチン仕様になっていますので、お料理好きの方にもぴったり。また、バス・トイレは別で、のんびりお風呂タイムも楽しめるでしょう。
通信設備面では、インターネット接続が可能です。また、CATVにも対応しているので、おうち時間も充実するでしょう(別途工事、契約料が必要な場合あり)。
お金・契約の情報
※「-」と表示されているものは、実際は料金が発生するものもございます。詳細はお問い合わせください。
| 家賃 | 6.3万円 | 管理費・共益費 | 2,000円 |
|---|---|---|---|
| 敷金 | 6.3万円 | 礼金 | なし |
| 入居決定でお祝い金最大100,000円 | |||
| 保証金 | - | 償却・敷引 | - |
| 住宅保険料 | - | 更新料 | - |
| 保証会社利用 | 必須 | 保証会社名 | - |
| 保証会社費用 | - | 保証会社備考 | 保証会社利用必 初回保証料:総賃料の50% 継続保証料:13 000円 |
| 契約形態 | - | 契約期間 | - |
| 入居・引渡期間 | 即時 | 現況 | - |
| 契約備考 | 合計1.98万円(内訳:鍵交換代1.98万円) 1DK 普通借家2年 損保【2万円2年】 バストイレ別、バルコニー、エアコン、クロゼット、フローリング、TVインターホン、システムキッチン、角住戸、2口コンロ、駐輪場、光ファイバー、即入居可、礼金不要、最上階、照明付、ロフト、保証人不要、バイク置場、2沿線利用可、24時間換気システム、クロゼット2ヶ所、2駅利用可、駅徒歩10分以内、都市ガス、保証会社利用可、IT重説対応物件、初期費用カード決済可 | ||
部屋の情報
| 間取り | 1DK | 専有面積 | 24.01m2 |
|---|---|---|---|
| 所在階 / 向き | 2階 / - | バルコニー面積 | - |
| 水道 / ガス | - | ||
| 設備 | バス・トイレ別、2階以上、テレビドアホン、インターネット対応、システムキッチン、エアコン、角部屋、バルコニー、フローリング、ロフトあり、2口コンロ | ||
| 当社物件ID | 24147724 | ||
建物の情報
| 建物名 | 山手町ヴィラ | ||
|---|---|---|---|
| 所在地 | 神奈川県横浜市中区山手町 | ||
| 交通 | JR根岸線 石川町駅 徒歩10分 みなとみらい線 元町・中華街駅 徒歩21分 | ||
| 階数 | 2階建 | 総戸数 | - |
| 築年月 | 2011年10月 / 築15年 | エレベーター | - |
| 駐車場 | 近隣 190m21000円 | バイク置き場 | あり |
| 駐輪場 | あり | 管理人/管理会社 | - |
| 周辺環境 | その他 長靴をはいた猫(飲食店)まで616m その他 柏葉公園(公園)まで395m その他 セブンイレブン 横浜山元町店(コンビニ)まで447m その他 ーソン 横浜山元町2丁目店(コンビニ)まで578m その他 カシワバ薬局 柏葉店(ドラッグストア)まで185m | ||
| 建物種別 | アパート | 建物構造 | 木造 |
この部屋の取扱い不動産会社
| 会社名 | ありったけの夢不動産 桜木町支店エストワイ(株)(SUUMO経由) | ||
|---|---|---|---|
| 所在地 | 神奈川県横浜市中区花咲町1-5 第一東商ビル4階A号室 | 交通 | - |
| 営業時間 | 10:00~19:00 | 定休日 | 水曜日 |
| 免許番号 | 神奈川県知事31755 | 取引態様 | 仲介 |
| 不動産会社管理番号 | 100493231148 | 当社管理番号 | 89 |
| 所属団体 | (公社)全日本不動産協会神奈川県本部会員 | ||
| 公正取引協議会 | (公社)首都圏不動産公正取引協議会加盟 | ||
| 取扱い物件情報 | 物件詳細へ | ||
※各種情報と現状に差異がある場合は、現状優先となります。問い合わせをすることで、より詳しい条件、情報を確認する事ができます。
提供:ありったけの夢不動産 桜木町支店エストワイ(株)(SUUMO経由)
この物件が気になったら掲載期限まであと10日
山手町ヴィラに条件(家賃・エリア)が近い物件一覧
| 写真 | 家賃 管理費等 | 敷金 礼金 | 間取り 専有面積 | 築年数 | 最寄り駅 所在地 | キープ | 詳細 |
|---|---|---|---|---|---|---|---|
アパート ラ・カンパネラ中央林間(1K/3階) | |||||||
![]() | 8.7万円 1.1万円 | なし 8.7万円 | 1K 21.09m2 | 築10年 | 小田急江ノ島線 中央林間駅 徒歩4分 東急田園都市線 つきみ野駅 徒歩16分 小田急江ノ島線 南林間駅 徒歩19分 神奈川県大和市中央林間 | 詳細を見る | |
マンション エスポワールIII(ワンルーム/5階) | |||||||
![]() | 9.7万円 4,000円 | 9.7万円 9.7万円 | ワンルーム 24.36m2 | 築28年 | JR南武線 武蔵中原駅 徒歩13分 東急東横線 武蔵小杉駅 徒歩19分 東急目黒線 新丸子駅 徒歩27分 神奈川県川崎市中原区下小田中 | 詳細を見る | |
マンション やまわハイツ(2LDK/2階) | |||||||
![]() | 8.5万円 なし | 8.5万円 なし | 2LDK 45.5m2 | 築37年 | JR南武線 中野島駅 徒歩8分 JR南武線 登戸駅 徒歩23分 小田急線 向ケ丘遊園駅 徒歩24分 神奈川県川崎市多摩区中野島 | 詳細を見る | |
アパート コーポ清樹I(2DK/2階) | |||||||
![]() | 6.7万円 3,000円 | 6.7万円 なし | 2DK 42.92m2 | 築40年 | 東急田園都市線 宮崎台駅 徒歩21分 東急田園都市線 宮前平駅 徒歩21分 神奈川県川崎市宮前区東有馬 | 詳細を見る | |
マンション ルレーブ横濱伊勢佐木町(1K/3階) | |||||||
![]() | 7.9万円 5,000円 | なし 11.85万円 | 1K 30.2m2 | 築20年 | ブルーライン 阪東橋駅 徒歩3分 京急本線 黄金町駅 徒歩4分 神奈川県横浜市中区伊勢佐木町 | 詳細を見る | |
アパート ハウスブロッサム(1K/1階) | |||||||
![]() | 4.8万円 2,000円 | 4.8万円 4.8万円 | 1K 25m2 | 築31年 | 小田急多摩線 新百合ケ丘駅 徒歩11分 小田急線 百合ケ丘駅 徒歩12分 小田急線 読売ランド前駅 徒歩23分 神奈川県川崎市麻生区百合丘 | 詳細を見る | |
アパート シャルムハラシマ(2DK/1階) | |||||||
![]() | 7万円 1,000円 | 7万円 なし | 2DK 36m2 | 築35年 | 京王相模原線 京王稲田堤駅 徒歩4分 JR南武線 稲田堤駅 徒歩10分 JR南武線 矢野口駅 徒歩11分 神奈川県川崎市多摩区菅 | 詳細を見る | |






