賃貸マンション
アスティーレ秋葉原の賃貸物件情報(ワンルーム/2階)
| 家賃 | 管理費等 | 敷金 | 礼金 | 間取り | 専有面積 |
|---|---|---|---|---|---|
| 11.9万円 | 1万円 | なし | なし | ワンルーム | 26.32m2 |
入居決定でお祝い金最大100,000円
- 保証金
- -
- 償却・敷引
- -
- 築年数
- 築4年
- 所在階
- 2階
- 向き
- 西
Point
初期費用分割払い可能☆最大24ヶ月払い☆カード決済も対応しております!!遠方の方や忙しい方向けオンライン内見実施中☆
提供:PRA(株)青山店(SUUMO経由)

詳細情報 アスティーレ秋葉原
物件紹介
アスティーレ秋葉原はJR総武線浅草橋駅から徒歩7分にあり、駅近で通勤通学に便利なマンションです。
このお部屋は2階以上に位置しているので、通行人や周囲の住人からの視線が気になりにくく、防犯面でも安心。建物のエントランスはオートロックがついており、インターホンにはTVモニタもついているため、相手の顔を確認してから来客対応することができます。
フローリングのお部屋なのでお掃除もラクラク。キッチンはシステムキッチン仕様になっていますので、お料理好きの方にもぴったり。バス・トイレは別なので、のんびりお風呂タイムも楽しめるでしょう。また、雨の日でも浴室乾燥機を使えば、お洗濯も問題ありません。
通信設備面では、インターネット接続が可能です。また、BSアンテナ・CSアンテナもありますので、おうち時間も充実するでしょう(別途工事、契約料が必要な場合あり)。
共用部には宅配ボックスが設定されているので、不在の時にも荷物を受け取ることができます。
このお部屋は2階以上に位置しているので、通行人や周囲の住人からの視線が気になりにくく、防犯面でも安心。建物のエントランスはオートロックがついており、インターホンにはTVモニタもついているため、相手の顔を確認してから来客対応することができます。
フローリングのお部屋なのでお掃除もラクラク。キッチンはシステムキッチン仕様になっていますので、お料理好きの方にもぴったり。バス・トイレは別なので、のんびりお風呂タイムも楽しめるでしょう。また、雨の日でも浴室乾燥機を使えば、お洗濯も問題ありません。
通信設備面では、インターネット接続が可能です。また、BSアンテナ・CSアンテナもありますので、おうち時間も充実するでしょう(別途工事、契約料が必要な場合あり)。
共用部には宅配ボックスが設定されているので、不在の時にも荷物を受け取ることができます。
お金・契約の情報
※「-」と表示されているものは、実際は料金が発生するものもございます。詳細はお問い合わせください。
| 家賃 | 11.9万円 | 管理費・共益費 | 1万円 |
|---|---|---|---|
| 敷金 | なし | 礼金 | なし |
| 入居決定でお祝い金最大100,000円 | |||
| 保証金 | - | 償却・敷引 | - |
| 住宅保険料 | - | 更新料 | - |
| 保証会社利用 | 必須 | 保証会社名 | - |
| 保証会社費用 | - | 保証会社備考 | 保証会社利用必 初回保証委託料:月額賃料等の40% 詳細はお問い合わせください。 |
| 契約形態 | - | 契約期間 | - |
| 入居・引渡期間 | 即時 | 現況 | - |
| 契約備考 | 通勤管理 合計2.75万円(内訳:鍵交換代2.75万円) 更新料 新賃料1.00ヶ月分 室内清掃費用 38500円 ワンルーム 二人入居可 普通借家2年 損保【1.8万円2年】 バストイレ別、バルコニー、エアコン、クロゼット、TVインターホン、浴室乾燥機、オートロック、室内洗濯置、陽当り良好、シューズボックス、システムキッチン、温水洗浄便座、洗面所独立、2口コンロ、駐輪場、宅配ボックス、礼金不要、閑静な住宅地、BS・CS、敷金不要、防犯カメラ、IHクッキングヒーター、保証人不要、二人入居相談、全居室フローリング、ディンプルキー、ネット専用回線、眺望良好、ダブルロックキー、築2年以内、24時間換気システム、耐火構造、耐震構造、防犯ガラス、高気密住宅、2駅利用可、3駅以上利用可、駅前、防犯強化地域、駅徒歩10分以内、耐風構造、24時間ゴミ出し可、敷地内ごみ置き場、日勤管理、備付食器棚、都市ガス、敷金・礼金不要、通風良好 | ||
部屋の情報
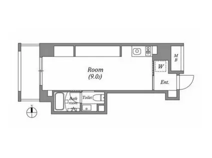
| 間取り | ワンルーム | 専有面積 | 26.32m2 |
|---|---|---|---|
| 所在階 / 向き | 2階 / 西 | バルコニー面積 | - |
| 水道 / ガス | - | ||
| 設備 | バス・トイレ別、2階以上、オートロック、テレビドアホン、宅配ボックス、浴室乾燥機、インターネット対応、システムキッチン、エアコン、温水洗浄便座、バルコニー、フローリング、洗髪洗面化粧台、2口コンロ、コンロ:IH、CSアンテナ、BSアンテナ、洗濯機:室内 | ||
| 当社物件ID | 159980421 | ||
建物の情報
| 建物名 | アスティーレ秋葉原 | ||
|---|---|---|---|
| 所在地 | 東京都台東区浅草橋 | ||
| 交通 | JR総武線 浅草橋駅 徒歩7分 東京メトロ日比谷線 秋葉原駅 徒歩9分 都営新宿線 岩本町駅 徒歩13分 | ||
| 階数 | 9階建 | 総戸数 | - |
| 築年月 | 2023年02月 / 築4年 | エレベーター | - |
| 駐車場 | なし | バイク置き場 | - |
| 駐輪場 | あり | 管理人/管理会社 | - |
| 周辺環境 | その他 ファミリーマート 台東鳥越店(コンビニ)まで289m その他 セブンイレブン 台東浅草橋1丁目店(コンビニ)まで615m | ||
| 建物種別 | マンション | 建物構造 | RC(鉄筋コンクリート) |
この部屋の取扱い不動産会社
| 会社名 | Ptif(株)(SUUMO経由) | ||
|---|---|---|---|
| 所在地 | 東京都港区北青山1-3-3 6階 | 交通 | - |
| 営業時間 | 9:00~21:00 | 定休日 | 年中無休です! |
| 免許番号 | 東京都知事107647 | 取引態様 | 仲介 |
| 不動産会社管理番号 | 100475547883 | 当社管理番号 | 89 |
| 所属団体 | (公社)東京都宅地建物取引業協会会員 | ||
| 公正取引協議会 | (公社)首都圏不動産公正取引協議会加盟 | ||
| 取扱い物件情報 | 物件詳細へ | ||
※各種情報と現状に差異がある場合は、現状優先となります。問い合わせをすることで、より詳しい条件、情報を確認する事ができます。
提供:Ptif(株)(SUUMO経由)
この物件が気になったら掲載期限まであと11日
アスティーレ秋葉原に条件(家賃・エリア)が近い物件一覧
| 写真 | 家賃 管理費等 | 敷金 礼金 | 間取り 専有面積 | 築年数 | 最寄り駅 所在地 | キープ | 詳細 |
|---|---|---|---|---|---|---|---|
マンション サンウッド東日本橋フラッツ(1LDK/3階) | |||||||
![]() | 18万円 9,000円 | 18万円 18万円 | 1LDK 39.93m2 | 築10年 | JR総武線快速 馬喰町駅 徒歩1分 都営浅草線 東日本橋駅 徒歩3分 都営新宿線 馬喰横山駅 徒歩3分 東京都中央区日本橋横山町 | 詳細を見る | |
マンション ガーラ元浅草(1K/6階) | |||||||
![]() | 9.9万円 9,000円 | 9.9万円 19.8万円 | 1K 30.22m2 | 築27年 | 東京都大江戸線 新御徒町駅 徒歩4分 東京地下鉄銀座線 田原町駅(東京) 徒歩8分 東京都浅草線 蔵前駅 徒歩10分 東京都台東区元浅草3丁目 | 詳細を見る | |
マンション イクシオ熊野前駅(1DK/1階) | |||||||
![]() | 11.4万円 5,000円 | なし 11.4万円 | 1DK 30.25m2 | 築1年 | 東京都荒川線 東尾久三丁目駅 徒歩4分 日暮里舎人ライナー 熊野前駅 徒歩5分 東京地下鉄千代田線 町屋駅 徒歩13分 東京都荒川区町屋 六丁目 | 詳細を見る | |
マンション アルファコート曳舟2(1SLDK/5階) | |||||||
![]() | 17.1万円 1.5万円 | なし なし | 1SLDK 41.02m2 | 築1年 | 東武伊勢崎・大師線 曳舟駅 徒歩10分 京成電鉄押上線 京成曳舟駅 徒歩15分 東京地下鉄半蔵門線 押上駅 徒歩16分 東京都墨田区向島5丁目 | 詳細を見る | |
マンション プライムステイ築地(ワンルーム/4階) | |||||||
![]() | 8万円 1万円 | 8万円 8万円 | ワンルーム 17.28m2 | 築40年 | 東京地下鉄日比谷線 築地駅 徒歩3分 東京地下鉄有楽町線 新富町駅(東京) 徒歩6分 東京都大江戸線 築地市場駅 徒歩9分 東京都中央区築地3丁目 | 詳細を見る | |
マンション RELUXIA新御徒町(1K/4階) | |||||||
![]() | 11万円 2万円 | なし 11万円 | 1K 26.23m2 | 築5年 | 東京都大江戸線 新御徒町駅 徒歩3分 東京地下鉄銀座線 稲荷町駅(東京) 徒歩9分 東京都浅草線 蔵前駅 徒歩10分 東京都台東区元浅草3丁目 | 詳細を見る | |
マンション コンフォリア浅草橋(1K/11階) | |||||||
![]() | 13万円 8,000円 | 13万円 なし | 1K 25.11m2 | 築15年 | 都営浅草線 浅草橋駅 徒歩6分 都営大江戸線 蔵前駅 徒歩7分 都営浅草線 東日本橋駅 徒歩12分 東京都台東区柳橋 | 詳細を見る | |
マンション ローズコート日本橋茅場町(1SLDK/2階) | |||||||
![]() | 18万円 5,000円 | 18万円 18万円 | 1SLDK 45.32m2 | 築11年 | 東京メトロ日比谷線 茅場町駅 徒歩4分 東京メトロ日比谷線 八丁堀駅(東京) 徒歩6分 都営浅草線 日本橋駅(東京) 徒歩6分 東京都中央区日本橋茅場町 | 詳細を見る | |









