賃貸マンション
メインステージ多摩川IIの賃貸物件情報(1K/1階)
| 家賃 | 管理費等 | 敷金 | 礼金 | 間取り | 専有面積 |
|---|---|---|---|---|---|
| 7.5万円 | 1.5万円 | なし | なし | 1K | 21.8m2 |
入居決定でお祝い金最大100,000円
- 保証金
- -
- 償却・敷引
- -
- 築年数
- 築19年
- 所在階
- 1階
- 向き
- 南
Point
室内見学承ります・お客様のご都合に合わせてオンラインまたはお近くの店舗でご提案可・初期費用分割払い可・クレジットカード利用可・引越業者割引・初期費用のお見積や入居日のご相談もお気軽にお問合せください
提供:(株)リライフ蒲田店(SUUMO経由)

詳細情報 メインステージ多摩川II
物件紹介
メインステージ多摩川IIは東急多摩川線矢口渡駅から徒歩6分にあり、駅近で通勤通学に便利なマンションです。
建物のエントランスはオートロックがついており、インターホンにはTVモニタもついているため、相手の顔を確認してから来客対応することができます。
人気の南向きのお部屋。また、フローリングなのでお掃除もラクラク。キッチンはシステムキッチン仕様になっていますので、お料理好きの方にもぴったり。バス・トイレは別なので、のんびりお風呂タイムも楽しめるでしょう。また、雨の日でも浴室乾燥機を使えば、お洗濯も問題ありません。
通信設備面ではBSアンテナ・CSアンテナがあり、CATVにも対応しているので、おうち時間も充実するでしょう(別途工事、契約料が必要な場合あり)。
建物にはエレベーターがついているので、重い荷物があっても安心。共用部には宅配ボックスが設定されているので、不在の時にも荷物を受け取ることができます。
建物のエントランスはオートロックがついており、インターホンにはTVモニタもついているため、相手の顔を確認してから来客対応することができます。
人気の南向きのお部屋。また、フローリングなのでお掃除もラクラク。キッチンはシステムキッチン仕様になっていますので、お料理好きの方にもぴったり。バス・トイレは別なので、のんびりお風呂タイムも楽しめるでしょう。また、雨の日でも浴室乾燥機を使えば、お洗濯も問題ありません。
通信設備面ではBSアンテナ・CSアンテナがあり、CATVにも対応しているので、おうち時間も充実するでしょう(別途工事、契約料が必要な場合あり)。
建物にはエレベーターがついているので、重い荷物があっても安心。共用部には宅配ボックスが設定されているので、不在の時にも荷物を受け取ることができます。
お金・契約の情報
※「-」と表示されているものは、実際は料金が発生するものもございます。詳細はお問い合わせください。
| 家賃 | 7.5万円 | 管理費・共益費 | 1.5万円 |
|---|---|---|---|
| 敷金 | なし | 礼金 | なし |
| 入居決定でお祝い金最大100,000円 | |||
| 保証金 | - | 償却・敷引 | - |
| 住宅保険料 | - | 更新料 | - |
| 保証会社利用 | 必須 | 保証会社名 | - |
| 保証会社費用 | - | 保証会社備考 | 保証会社利用必 家賃総額の50%~ |
| 契約形態 | - | 契約期間 | - |
| 入居・引渡期間 | 即時 | 現況 | - |
| 契約備考 | 当物件は「住まいのリライフ」で取り扱っております。リライフは首都圏25店舗のネットワークで豊富な物件情報をお客様へご提供します。当物件に類似した未公開物件なども合わせてご提案可能です。お気軽にお問合せください。違約金有:1年未満=1ヶ月、半年未満=2ヶ月 合計1.65万円(内訳:AMLクラブサポート費用(初回のみ)1.65万円) 1K 法人希望/事務所利用不可 損保【1.5万円2年】 バストイレ別、バルコニー、エアコン、ガスコンロ対応、クロゼット、フローリング、TVインターホン、浴室乾燥機、オートロック、室内洗濯置、シューズボックス、システムキッチン、南向き、温水洗浄便座、脱衣所、エレベーター、洗面所独立、2口コンロ、駐輪場、宅配ボックス、CATV、BS・CS、防犯カメラ、分譲賃貸、保証人不要、ディンプルキー、ダブルロックキー、24時間換気システム、3駅以上利用可、3沿線以上利用可、24時間ゴミ出し可、敷地内ごみ置き場、都市ガス、玄関収納、保証会社利用可、初期費用カード決済可 | ||
部屋の情報
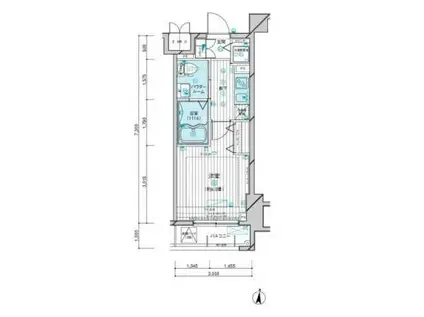
| 間取り | 1K | 専有面積 | 21.8m2 |
|---|---|---|---|
| 所在階 / 向き | 1階 / 南 | バルコニー面積 | - |
| 水道 / ガス | - | ||
| 設備 | バス・トイレ別、オートロック、テレビドアホン、宅配ボックス、浴室乾燥機、システムキッチン、エアコン、エレベーター、温水洗浄便座、南向き、バルコニー、フローリング、洗髪洗面化粧台、2口コンロ、コンロ:ガス、CATV、CSアンテナ、BSアンテナ、洗濯機:室内 | ||
| 当社物件ID | 11009295 | ||
建物の情報
| 建物名 | メインステージ多摩川II | ||
|---|---|---|---|
| 所在地 | 東京都大田区多摩川 | ||
| 交通 | 東急多摩川線 矢口渡駅 徒歩6分 東急池上線 蓮沼駅 徒歩16分 JR京浜東北線 蒲田駅 徒歩22分 | ||
| 階数 | 5階建 | 総戸数 | - |
| 築年月 | 2007年06月 / 築19年 | エレベーター | あり |
| 駐車場 | なし | バイク置き場 | - |
| 駐輪場 | あり | 管理人/管理会社 | - |
| 周辺環境 | その他 西友 矢口ノ渡店(スーパー)まで224m その他 まいばすけつと 矢口渡店(スーパー)まで476m その他 セブンイレブン 大田区多摩川1丁目店(コンビニ)まで200m その他 ファミリーマート かわだ多摩川二丁目店(コンビニ)まで284m その他 スギ薬局 矢口渡店(ドラッグストア)まで352m その他 ホワイト急便 多摩川店(その他)まで297m | ||
| 建物種別 | マンション | 建物構造 | RC(鉄筋コンクリート) |
この部屋の取扱い不動産会社
| 会社名 | (株)リライフ蒲田店(SUUMO経由) | ||
|---|---|---|---|
| 所在地 | 東京都大田区蒲田5-18-1 ザ・シティ蒲田6階 | 交通 | - |
| 営業時間 | 10:00~18:30 | 定休日 | 火曜日水曜日(祝日を除く) |
| 免許番号 | 国土交通大臣10792 | 取引態様 | 仲介 |
| 不動産会社管理番号 | 100467419961 | 当社管理番号 | 89 |
| 所属団体 | (公社)東京都宅地建物取引業協会会員 | ||
| 公正取引協議会 | (公社)首都圏不動産公正取引協議会加盟 | ||
| 取扱い物件情報 | 物件詳細へ | ||
※各種情報と現状に差異がある場合は、現状優先となります。問い合わせをすることで、より詳しい条件、情報を確認する事ができます。
提供:(株)リライフ蒲田店(SUUMO経由)
この物件が気になったら掲載期限まであと10日
メインステージ多摩川IIに条件(家賃・エリア)が近い物件一覧
| 写真 | 家賃 管理費等 | 敷金 礼金 | 間取り 専有面積 | 築年数 | 最寄り駅 所在地 | キープ | 詳細 |
|---|---|---|---|---|---|---|---|
マンション グレースマンション原田(1K/3階) | |||||||
![]() | 8.4万円 5,000円 | 8.4万円 16.8万円 | 1K 24.98m2 | 築22年 | 京急本線 六郷土手駅 徒歩4分 京急本線 雑色駅 徒歩18分 東京都大田区西六郷 | 詳細を見る | |
マンション グラウンデュークス西大島(ワンルーム/1階) | |||||||
![]() | 10.4万円 1.5万円 | なし なし | ワンルーム 21.64m2 | 築6年 | 都営新宿線 西大島駅 徒歩6分 東京メトロ半蔵門線 住吉駅(東京) 徒歩12分 都営新宿線 住吉駅(東京) 徒歩12分 東京都江東区大島 | 詳細を見る | |
マンション ベルフェリーク木場(1K/3階) | |||||||
![]() | 11.6万円 1万円 | 11.6万円 11.6万円 | 1K 25.19m2 | 築9年 | 東京地下鉄東西線 木場駅 徒歩6分 東京地下鉄東西線 東陽町駅 徒歩10分 東京都江東区東陽1丁目 | 詳細を見る | |
アパート SEED SAVE PETIRASU Ⅲ(1DK/1階) | |||||||
![]() | 8.5万円 1万円 | 17万円 8.5万円 | 1DK 25.36m2 | 新築 | 東京モノレール羽田 昭和島駅 徒歩12分 京浜急行電鉄本線 大森町駅 徒歩18分 東京都大田区大森東5丁目 | 詳細を見る | |
マンション ロフティ池上(1K/2階) | |||||||
![]() | 6.7万円 2,000円 | 6.7万円 なし | 1K 22.54m2 | 築33年 | 東急池上線 池上駅 徒歩6分 東急池上線 千鳥町駅 徒歩11分 東京都大田区池上3丁目 | 詳細を見る | |
アパート プロスペリティ(1K/1階) | |||||||
![]() | 7.1万円 3,000円 | 7.1万円 7.1万円 | 1K 20.93m2 | 築26年 | 京急本線 京急蒲田駅 徒歩5分 京急本線 梅屋敷駅(東京) 徒歩11分 JR京浜東北線 蒲田駅 徒歩15分 東京都大田区南蒲田 | 詳細を見る | |
マンション SEED JUST B-BASE II(1LDK/1階) | |||||||
![]() | 8.8万円 1.5万円 | 8.8万円 8.8万円 | 1LDK 23.07m2 | 新築 | 東京モノレール羽田 昭和島駅 徒歩11分 京浜急行電鉄本線 梅屋敷駅(東京) 徒歩19分 東京都大田区大森南4丁目 | 詳細を見る | |
マンション グレイス蒲田(1K/3階) | |||||||
![]() | 6.2万円 3,000円 | 6.2万円 なし | 1K 18.14m2 | 築34年 | JR京浜東北線 蒲田駅 徒歩8分 京急本線 京急蒲田駅 徒歩14分 京急本線 梅屋敷駅(東京) 徒歩15分 東京都大田区蒲田 | 詳細を見る | |









