賃貸マンション
内田ビルの賃貸物件情報(2DK/3階)
| 家賃 | 管理費等 | 敷金 | 礼金 | 間取り | 専有面積 |
|---|---|---|---|---|---|
| 7.7万円 | 3,000円 | 7.7万円 | なし | 2DK | 31.5m2 |
入居決定でお祝い金最大100,000円
Point
魅力も多い賃貸物件はいかがでしょうか。こちらは賃料7.7万円の物件です。
提供:いえらび八王子店(株)ドリームアーク(SUUMO経由)

詳細情報 内田ビル
物件紹介
内田ビルはJR中央線八王子駅から徒歩5分にあり、駅近で通勤通学に便利なマンションです。
このお部屋は2階以上に位置しているので、通行人や周囲の住人からの視線が気になりにくく、防犯面でも安心です。
人気の南向き・フローリングのお部屋。角部屋でもあるため、周囲の居住者の生活音も気になりにくい場所です。キッチンはシステムキッチン仕様になっていますので、お料理好きの方にもぴったり。また、バス・トイレは別で、のんびりお風呂タイムも楽しめるでしょう。
通信設備面では、インターネット接続が可能です。また、CATVにも対応しているので、おうち時間も充実するでしょう(別途工事、契約料が必要な場合あり)。
このお部屋は2階以上に位置しているので、通行人や周囲の住人からの視線が気になりにくく、防犯面でも安心です。
人気の南向き・フローリングのお部屋。角部屋でもあるため、周囲の居住者の生活音も気になりにくい場所です。キッチンはシステムキッチン仕様になっていますので、お料理好きの方にもぴったり。また、バス・トイレは別で、のんびりお風呂タイムも楽しめるでしょう。
通信設備面では、インターネット接続が可能です。また、CATVにも対応しているので、おうち時間も充実するでしょう(別途工事、契約料が必要な場合あり)。
お金・契約の情報
※「-」と表示されているものは、実際は料金が発生するものもございます。詳細はお問い合わせください。
| 家賃 | 7.7万円 | 管理費・共益費 | 3,000円 |
|---|---|---|---|
| 敷金 | 7.7万円 | 礼金 | なし |
| 入居決定でお祝い金最大100,000円 | |||
| 保証金 | - | 償却・敷引 | - |
| 住宅保険料 | 1円 | 更新料 | - |
| 保証会社利用 | 必須 | 保証会社名 | - |
| 保証会社費用 | - | 保証会社備考 | 初回50%から120% |
| 契約形態 | - | 契約期間 | 2年 |
| 入居・引渡期間 | 即時 | 現況 | - |
| 入居可能条件 | 事務所不可、2人入居可、学生可、楽器不可、ペット不可 | ||
| 契約備考 | 火災保険19000円 24時間サポート8800円年間 その他設備/条件:室内洗濯機置き場、独立洗面台、全居室収納、クローゼット、シューズボックス、照明器具付き | ||
部屋の情報
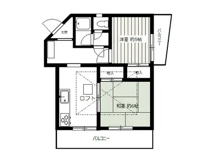
| 間取り | 2DK | 専有面積 | 31.5m2 |
|---|---|---|---|
| 間取り詳細 | 和室(6帖)、DK(5.5帖)、洋室(5帖)、その他(5帖) | ||
| 所在階 / 向き | 3階 / 南 | バルコニー面積 | - |
| 水道 / ガス | 水道【公営】、ガス【都市】 | ||
| 設備 | バス・トイレ別、インターネット対応、エアコン、角部屋、バルコニー、フローリング、洗髪洗面化粧台、2口コンロ、コンロ:ガス、シャワー、給湯 | ||
| 当社物件ID | 17643856 | ||
建物の情報
| 建物名 | 内田ビル | ||
|---|---|---|---|
| 所在地 | 東京都八王子市子安町1丁目 | ||
| 交通 | 中央本線 八王子駅 徒歩5分 京王電鉄京王線 京王八王子駅 徒歩14分 | ||
| 階数 | 3階建 | 総戸数 | 12戸 |
| 築年月 | 1991年03月 / 築35年 | エレベーター | - |
| 駐車場 | なし | バイク置き場 | - |
| 駐輪場 | - | 管理人/管理会社 | - |
| 周辺環境 | 販売店 徒歩8分(580m) その他 ドラッグストア その他 公園 その他 銀行 その他 * | ||
| 建物種別 | マンション | 建物構造 | 鉄骨造 |
この部屋の取扱い不動産会社
| 会社名 | ハウスコム西東京株式会社 八王子店 | ||
|---|---|---|---|
| 所在地 | 東京都八王子市1-12Def・Aビル1階 | 交通 | - |
| 営業時間 | 10:00~18:00 | 定休日 | 水曜定休 |
| 免許番号 | 東京都知事(1)第108225号 | 取引態様 | 仲介 |
| 不動産会社管理番号 | HC2-286869-303-0023 | 当社管理番号 | 468 |
| 所属団体 | 、 | ||
| 取扱い物件情報 | 物件詳細へ | ||
※各種情報と現状に差異がある場合は、現状優先となります。問い合わせをすることで、より詳しい条件、情報を確認する事ができます。
提供:ハウスコム西東京株式会社 八王子店
この物件が気になったら掲載期限まであと5日
内田ビルに条件(家賃・エリア)が近い物件一覧
| 写真 | 家賃 管理費等 | 敷金 礼金 | 間取り 専有面積 | 築年数 | 最寄り駅 所在地 | キープ | 詳細 |
|---|---|---|---|---|---|---|---|
アパート ジャルディネット(1LDK/1階) | |||||||
![]() | 7.2万円 5,000円 | なし なし | 1LDK 33.62m2 | 築17年 | 京王電鉄京王線 南平駅 徒歩10分 京王電鉄京王線 平山城址公園駅 徒歩11分 中央本線 豊田駅 徒歩26分 東京都日野市平山4丁目 | 詳細を見る | |
マンション サンライズN(2DK/1階) | |||||||
![]() | 7万円 4,000円 | なし 7万円 | 2DK 40.5m2 | 築41年 | JR青梅線 拝島駅 徒歩5分 JR五日市線 熊川駅 徒歩20分 JR青梅線 昭島駅 徒歩27分 東京都昭島市松原町 | 詳細を見る | |
マンション ホワイトレジデンス(1K/1階) | |||||||
![]() | 5.4万円 3,000円 | なし なし | 1K 23.3m2 | 築25年 | 京王電鉄京王線 多摩動物公園駅 徒歩5分 多摩モノレール 程久保駅 徒歩15分 東京都日野市程久保8丁目 | 詳細を見る | |
マンション CS19 HIJIKATA(1K/1階) | |||||||
![]() | 5.05万円 4,000円 | なし なし | 1K 23.76m2 | 築27年 | 多摩都市モノレール 万願寺駅 徒歩5分 多摩都市モノレール 甲州街道駅 徒歩19分 京王線 高幡不動駅 徒歩20分 東京都日野市 | 詳細を見る | |
マンション コンフォール(1LDK/3階) | |||||||
![]() | 11.5万円 9,000円 | なし 11.5万円 | 1LDK 47.86m2 | 築13年 | 中央本線 日野駅(東京) 徒歩13分 八高線 小宮駅 徒歩22分 中央本線 豊田駅 徒歩42分 東京都日野市新町3丁目 | 詳細を見る | |
マンション FRENCIA NOIE 八王子(1K/11階) | |||||||
![]() | 7.5万円 6,000円 | なし なし | 1K 19.02m2 | 築23年 | JR八高線 八王子駅 徒歩11分 京王線 京王八王子駅 徒歩12分 京王高尾線 京王片倉駅 徒歩28分 東京都八王子市横山町 | 詳細を見る | |
アパート ウエストヒルズショウB(2K/1階) | |||||||
![]() | 5.4万円 3,500円 | 5.4万円 なし | 2K 39.23m2 | 築36年 | 京王電鉄京王線 長沼駅(東京) 徒歩17分 東京都日野市西平山4丁目 | 詳細を見る | |







