賃貸マンション
パラドールYの賃貸物件情報(1K/3階)
| 家賃 | 管理費等 | 敷金 | 礼金 | 間取り | 専有面積 |
|---|---|---|---|---|---|
| 6.8万円 | 8,000円 | 6.8万円 | 13.6万円 | 1K | 30.4m2 |
入居決定でお祝い金最大100,000円
- 保証金
- -
- 償却・敷引
- -
- 築年数
- 新築(築1年)
- 所在階
- 3階
- 向き
- 南
Point
阪急電鉄京都線西院駅徒歩17分のマンションです。お部屋の床はフローリングとなっており、独立洗面台も完備されております。京都ファミリーまで徒歩5分と充実しております。
提供:ハウスコム株式会社 太秦天神川店

詳細情報 パラドールY
物件紹介
パラドールYは京福嵐山本線山ノ内駅から徒歩12分にあるマンションです。
このお部屋は2階以上に位置しているので、通行人や周囲の住人からの視線が気になりにくく、防犯面でも安心。建物のエントランスはオートロックがついており、インターホンにはTVモニタもついているため、相手の顔を確認してから来客対応することができます。
人気の南向きのお部屋。また、フローリングなのでお掃除もラクラク。キッチンはシステムキッチン仕様になっていますので、お料理好きの方にもぴったり。バス・トイレは別なので、のんびりお風呂タイムも楽しめるでしょう。また、雨の日でも浴室乾燥機を使えば、お洗濯も問題ありません。
通信設備面では、インターネットが無料で使えるので、月々の出費を抑えられるのも魅力です。また、CATVにも対応しているので、おうち時間も充実するでしょう(別途工事、CATVの契約料等が必要な場合あり)。
建物にはエレベーターがついているので、重い荷物があっても安心。共用部には宅配ボックスが設定されているので、不在の時にも荷物を受け取ることができます。
このお部屋は2階以上に位置しているので、通行人や周囲の住人からの視線が気になりにくく、防犯面でも安心。建物のエントランスはオートロックがついており、インターホンにはTVモニタもついているため、相手の顔を確認してから来客対応することができます。
人気の南向きのお部屋。また、フローリングなのでお掃除もラクラク。キッチンはシステムキッチン仕様になっていますので、お料理好きの方にもぴったり。バス・トイレは別なので、のんびりお風呂タイムも楽しめるでしょう。また、雨の日でも浴室乾燥機を使えば、お洗濯も問題ありません。
通信設備面では、インターネットが無料で使えるので、月々の出費を抑えられるのも魅力です。また、CATVにも対応しているので、おうち時間も充実するでしょう(別途工事、CATVの契約料等が必要な場合あり)。
建物にはエレベーターがついているので、重い荷物があっても安心。共用部には宅配ボックスが設定されているので、不在の時にも荷物を受け取ることができます。
お金・契約の情報
※「-」と表示されているものは、実際は料金が発生するものもございます。詳細はお問い合わせください。
| 家賃 | 6.8万円 | 管理費・共益費 | 8,000円 |
|---|---|---|---|
| 敷金 | 6.8万円 | 礼金 | 13.6万円 |
| 入居決定でお祝い金最大100,000円 | |||
| 保証金 | - | 償却・敷引 | - |
| 住宅保険料 | 住宅保険料あり | 更新料 | - |
| 契約形態 | - | 契約期間 | 2年 |
| 入居・引渡期間 | 2026年02月上旬 | 現況 | 空室 |
| 契約備考 | 京都外国語大学まで徒歩5分 初回:賃貸保証料:31,796円 更新料:1ヶ月 その他設備/条件:コンロ2口以上、独立洗面台、TVドアホン | ||
部屋の情報
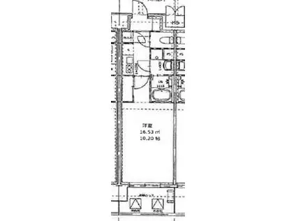
| 間取り | 1K | 専有面積 | 30.4m2 |
|---|---|---|---|
| 間取り詳細 | 洋室(10帖) | ||
| 所在階 / 向き | 3階 / 南 | バルコニー面積 | - |
| 水道 / ガス | ガス【都市】 | ||
| 設備 | バス・トイレ別、2階以上、オートロック、宅配ボックス、浴室乾燥機、インターネット対応、システムキッチン、エアコン、エレベーター、温水洗浄便座、南向き、バルコニー、フローリング、コンロ:ガス、洗濯機:室内 | ||
| 当社物件ID | 160166841 | ||
建物の情報
| 建物名 | パラドールY | ||
|---|---|---|---|
| 所在地 | 京都府京都市右京区西院安塚町 | ||
| 交通 | 阪急電鉄京都線 西院駅(阪急) 徒歩17分 阪急電鉄京都線 西京極駅 徒歩18分 京都市東西線 太秦天神川駅 徒歩20分 | ||
| 階数 | 9階建 | 総戸数 | - |
| 築年月 | 2025年12月 / 新築(築1年) | エレベーター | あり |
| 駐車場 | - | バイク置き場 | - |
| 駐輪場 | あり | 管理人/管理会社 | - |
| 建物種別 | マンション | 建物構造 | RC(鉄筋コンクリート) |
この部屋の取扱い不動産会社
| 会社名 | 株式会社エリッツ 賃貸のエリッツ 西院店(賃貸スモッカ経由) | ||
|---|---|---|---|
| 所在地 | 京都市右京区西院巽町37-1 TAKE7 1F | 交通 | - |
| 営業時間 | - | 定休日 | - |
| 免許番号 | 国土交通大臣免許(7)第5206号 | 取引態様 | 仲介 |
| 不動産会社管理番号 | elitz_178420-0302 | 当社管理番号 | 463 |
| 所属団体 | (公社)京都府宅地建物取引業協会\n公益社団法人近畿地区不動産公正取引協議会 | ||
| 公正取引協議会 | (公社)全国宅地建物取引業保証協会 | ||
| 取扱い物件情報 | 物件詳細へ | ||
※各種情報と現状に差異がある場合は、現状優先となります。問い合わせをすることで、より詳しい条件、情報を確認する事ができます。
提供:株式会社エリッツ 賃貸のエリッツ 西院店(賃貸スモッカ経由)
この物件が気になったら掲載期限まであと5日
パラドールYの空き部屋一覧
全部で28の空き部屋があります。
パラドールYに条件(家賃・エリア)が近い物件一覧
| 写真 | 家賃 管理費等 | 敷金 礼金 | 間取り 専有面積 | 築年数 | 最寄り駅 所在地 | キープ | 詳細 |
|---|---|---|---|---|---|---|---|
マンション 近鉄京都線 伊勢田駅 徒歩5分 築53年(1DK/1階) | |||||||
![]() | 4.8万円 なし | なし なし | 1DK 23m2 | 築53年 | 近鉄京都線 伊勢田駅 徒歩5分 近鉄京都線 大久保駅(京都) 徒歩19分 京都府宇治市伊勢田町 | 詳細を見る | |
マンション 近鉄京都線 小倉駅(京都) 徒歩3分 築36年(2LDK/4階) | |||||||
![]() | 7万円 1万円 | なし 3.5万円 | 2LDK 42.76m2 | 築36年 | 近鉄京都線 小倉駅(京都) 徒歩3分 近鉄京都線 伊勢田駅 徒歩13分 京都府宇治市小倉町 | 詳細を見る | |
マンション 阪急電鉄京都線 西院駅(阪急) 徒歩10分 築34年(1LDK/3階) | |||||||
![]() | 5.6万円 5,000円 | なし 5.6万円 | 1LDK 31.84m2 | 築34年 | 阪急電鉄京都線 西院駅(阪急) 徒歩10分 京都市東西線 太秦天神川駅 徒歩14分 京都府京都市右京区西院春栄町 | 詳細を見る | |
マンション 京福嵐山本線 有栖川駅 徒歩4分 築49年(3DK/4階) | |||||||
![]() | 7.9万円 なし | 7.9万円 7.9万円 | 3DK 56.92m2 | 築49年 | 京福嵐山本線 有栖川駅 徒歩4分 山陰本線 太秦駅(JR) 徒歩12分 京都府京都市右京区嵯峨野開町 | 詳細を見る | |
マンション エスポワール雅(2DK/4階) | |||||||
![]() | 5.5万円 7,000円 | なし なし | 2DK 32m2 | 築38年 | 阪急嵐山線 松尾大社駅 徒歩9分 地下鉄東西線 太秦天神川駅 徒歩27分 阪急京都線 西院駅(阪急) 徒歩40分 京都府京都市右京区梅津中倉町 | 詳細を見る | |
マンション 阪急電鉄京都線 西院駅(阪急) 徒歩9分 築1年(1DK/7階) | |||||||
![]() | 8.68万円 8,800円 | なし なし | 1DK 28.42m2 | 築1年 | 阪急電鉄京都線 西院駅(阪急) 徒歩9分 京都市東西線 西大路御池駅 徒歩17分 京都府京都市右京区西院矢掛町 | 詳細を見る | |
マンション 近鉄京都線 向島駅 徒歩9分 築35年(1K/3階) | |||||||
![]() | 4.3万円 4,000円 | なし 5万円 | 1K 25.67m2 | 築35年 | 近鉄京都線 向島駅 徒歩9分 京阪電気鉄道宇治線 観月橋駅 徒歩28分 京都府宇治市槇島町落合 | 詳細を見る | |
マンション メルサンテかめおか(3LDK/2階) | |||||||
![]() | 6.9万円 6,000円 | 5万円 6.9万円 | 3LDK 82m2 | 築34年 | JR山陰本線 亀岡駅 徒歩20分 JR山陰本線 並河駅 徒歩24分 JR山陰本線 馬堀駅 徒歩47分 京都府亀岡市北河原町 | 詳細を見る | |









