賃貸マンション
コンフォリア品川イーストの賃貸物件情報(1K/6階)
| 家賃 | 管理費等 | 敷金 | 礼金 | 間取り | 専有面積 |
|---|---|---|---|---|---|
| 12.3万円 | 8,000円 | 12.3万円 | なし | 1K | 22.26m2 |
入居決定でお祝い金最大100,000円
Point
共用部には宅配ボックスが備え付けられているため、非対面での荷物の受け取りが可能です。
提供:ハウスコム西東京株式会社 大岡山店

詳細情報 コンフォリア品川イースト
物件紹介
コンフォリア品川イーストは京浜急行電鉄本線北品川駅から徒歩5分にあり、駅近で通勤通学に便利なマンションです。
このお部屋は2階以上に位置しているので、通行人や周囲の住人からの視線が気になりにくく、防犯面でも安心。建物のエントランスはオートロックがついており、インターホンにはTVモニタもついているため、相手の顔を確認してから来客対応することができます。
フローリングのお部屋なのでお掃除もラクラク。キッチンはシステムキッチン仕様になっていますので、お料理好きの方にもぴったり。また、バス・トイレは別で、のんびりお風呂タイムも楽しめるでしょう。
通信設備面では、インターネット接続が可能です(別途工事、契約料が必要な場合あり)。
建物にはエレベーターがついているので、重い荷物があっても安心。共用部には宅配ボックスが設定されているので、不在の時にも荷物を受け取ることができます。また、ペット飼育の相談ができますので、あなたの大切な家族の一員も快適に暮らせるか、ぜひ確認してみてください。
このお部屋は2階以上に位置しているので、通行人や周囲の住人からの視線が気になりにくく、防犯面でも安心。建物のエントランスはオートロックがついており、インターホンにはTVモニタもついているため、相手の顔を確認してから来客対応することができます。
フローリングのお部屋なのでお掃除もラクラク。キッチンはシステムキッチン仕様になっていますので、お料理好きの方にもぴったり。また、バス・トイレは別で、のんびりお風呂タイムも楽しめるでしょう。
通信設備面では、インターネット接続が可能です(別途工事、契約料が必要な場合あり)。
建物にはエレベーターがついているので、重い荷物があっても安心。共用部には宅配ボックスが設定されているので、不在の時にも荷物を受け取ることができます。また、ペット飼育の相談ができますので、あなたの大切な家族の一員も快適に暮らせるか、ぜひ確認してみてください。
お金・契約の情報
※「-」と表示されているものは、実際は料金が発生するものもございます。詳細はお問い合わせください。
| 家賃 | 12.3万円 | 管理費・共益費 | 8,000円 |
|---|---|---|---|
| 敷金 | 12.3万円 | 礼金 | なし |
| 入居決定でお祝い金最大100,000円 | |||
| 保証金 | - | 償却・敷引 | - |
| 住宅保険料 | 1円 | 更新料 | - |
| その他費用 | 鍵交換代:3.3万円 | ||
| 保証会社利用 | 必須 | 保証会社名 | - |
| 保証会社費用 | - | 保証会社備考 | クレディセゾン 保証料:賃料等の50%(最低1.5万円)、2年目〜:0.7万円(法人は一律3万)/年 |
| 契約形態 | - | 契約期間 | 2年 |
| 入居・引渡期間 | 2026年03月下旬 | 現況 | - |
| 入居可能条件 | ペット相談 | ||
| 契約備考 | その他設備/条件:室内洗濯機置き場、独立洗面台、クローゼット、シューズボックス | ||
部屋の情報
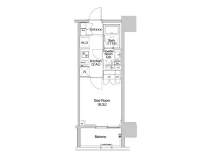
| 間取り | 1K | 専有面積 | 22.26m2 |
|---|---|---|---|
| 間取り詳細 | K(2.4帖)、洋室(6.3帖) | ||
| 所在階 / 向き | 6階 / 北西 | バルコニー面積 | - |
| 水道 / ガス | 水道【公営】、ガス【都市】 | ||
| 設備 | バス・トイレ別、オートロック、テレビドアホン、宅配ボックス、追い焚き、光ファイバー対応、システムキッチン、エアコン、エレベーター、温水洗浄便座、バルコニー、フローリング、2口コンロ、コンロ:ガス、シャワー、給湯 | ||
| 当社物件ID | 23990940 | ||
建物の情報
| 建物名 | コンフォリア品川イースト | ||
|---|---|---|---|
| 所在地 | 東京都品川区北品川1丁目 | ||
| 交通 | 京浜急行電鉄本線 北品川駅 徒歩5分 山手線 品川駅 徒歩11分 | ||
| 階数 | 12階建 | 総戸数 | 97戸 |
| 築年月 | 2015年02月 / 築12年 | エレベーター | あり |
| 駐車場 | なし | バイク置き場 | あり |
| 駐輪場 | あり | 管理人/管理会社 | - |
| 周辺環境 | その他 ドラッグストア その他 公園 その他 銀行 その他 * | ||
| 建物種別 | マンション | 建物構造 | RC(鉄筋コンクリート) |
この部屋の取扱い不動産会社
| 会社名 | ハウスコム西東京株式会社 蒲田店 | ||
|---|---|---|---|
| 所在地 | 東京都大田区5-8コパンビル1階 | 交通 | - |
| 営業時間 | 10:00~18:00 | 定休日 | - |
| 免許番号 | 東京都知事(1)第108225号 | 取引態様 | 仲介 |
| 不動産会社管理番号 | HC5-141651-0602-0099 | 当社管理番号 | 468 |
| 所属団体 | 、 | ||
| 取扱い物件情報 | 物件詳細へ | ||
※各種情報と現状に差異がある場合は、現状優先となります。問い合わせをすることで、より詳しい条件、情報を確認する事ができます。
提供:ハウスコム西東京株式会社 蒲田店
この物件が気になったら掲載期限まであと4日
コンフォリア品川イーストに条件(家賃・エリア)が近い物件一覧
| 写真 | 家賃 管理費等 | 敷金 礼金 | 間取り 専有面積 | 築年数 | 最寄り駅 所在地 | キープ | 詳細 |
|---|---|---|---|---|---|---|---|
マンション SEED JUST B-BASE Ⅱ(1LDK/4階) | |||||||
![]() | 9.4万円 1.5万円 | 9.4万円 9.4万円 | 1LDK 24.55m2 | 築1年 | 東京モノレール羽田 昭和島駅 徒歩11分 京浜急行電鉄本線 梅屋敷駅(東京) 徒歩19分 東京都大田区大森南4丁目 | 詳細を見る | |
マンション NSマンション(1K/3階) | |||||||
![]() | 8万円 2,000円 | 8万円 8万円 | 1K 18m2 | 築39年 | 東急池上線 蓮沼駅 徒歩3分 JR京浜東北線 蒲田駅 徒歩13分 東急池上線 池上駅 徒歩14分 東京都大田区西蒲田 | 詳細を見る | |
アパート タカマルハイム(1LDK/1階) | |||||||
![]() | 11.5万円 3,000円 | 11.5万円 11.5万円 | 1LDK 34m2 | 築11年 | 東急多摩川線 武蔵新田駅 徒歩8分 東急多摩川線 下丸子駅 徒歩9分 東京都大田区下丸子2丁目 | 詳細を見る | |
マンション スカイコート東京ベイ 東雲(1K/5階) | |||||||
![]() | 11.1万円 1.1万円 | なし 11.1万円 | 1K 24.62m2 | 築19年 | 東京臨海高速鉄道 東雲駅(東京) 徒歩5分 東京地下鉄有楽町線 辰巳駅 徒歩14分 ゆりかもめ 有明テニスの森駅 徒歩16分 東京都江東区東雲2丁目 | 詳細を見る | |
マンション SAKURA(2LDK/2階) | |||||||
![]() | 19.5万円 5,000円 | 19.5万円 19.5万円 | 2LDK 54.84m2 | 築5年 | 京急本線 梅屋敷駅(東京) 徒歩7分 京急本線 大森町駅 徒歩9分 東京都大田区大森中 | 詳細を見る | |
アパート SEED SAVE PETIRASU Ⅲ(1LDK/3階) | |||||||
![]() | 10.7万円 1万円 | 21.4万円 10.7万円 | 1LDK 30.55m2 | 築1年 | 東京モノレール羽田 昭和島駅 徒歩12分 京浜急行電鉄本線 大森町駅 徒歩18分 東京都大田区大森東5丁目 | 詳細を見る | |
マンション メイクスデザイン住吉アジールコート(1K/4階) | |||||||
![]() | 11.6万円 1.1万円 | なし 11.6万円 | 1K 25.6m2 | 築12年 | 東京メトロ半蔵門線 住吉駅(東京) 徒歩8分 都営大江戸線 清澄白河駅 徒歩14分 都営新宿線 菊川駅(東京) 徒歩16分 東京都江東区扇橋 | 詳細を見る | |








