賃貸マンション
ララプレイス三宮ルミナージュの賃貸物件情報(1K/12階)
| 家賃 | 管理費等 | 敷金 | 礼金 | 間取り | 専有面積 |
|---|---|---|---|---|---|
| 6.6万円 | 8,000円 | なし | なし | 1K | 22.62m2 |
入居決定でお祝い金最大100,000円
- 保証金
- -
- 償却・敷引
- -
- 築年数
- 築10年
- 所在階
- 12階
- 向き
- 北
Point
セキュリティ面は、オートロック・TVインターホンなどを備え付けているので安心して暮らせます◎収納はシューズボックス・ウォークインクロゼットなど豊富なので、広々と空間を利用することも可能です(^_^)
提供:(株)SuMirai(SUUMO経由)

詳細情報 ララプレイス三宮ルミナージュ
物件紹介
ララプレイス三宮ルミナージュは地下鉄海岸線三宮・花時計前駅から徒歩10分にあり、駅近で通勤通学に便利なマンションです。
このお部屋は2階以上に位置しているので、通行人や周囲の住人からの視線が気になりにくく、防犯面でも安心。建物のエントランスはオートロックがついており、インターホンにはTVモニタもついているため、相手の顔を確認してから来客対応することができます。
フローリングのお部屋なのでお掃除もラクラク。室内には人気のウォークインクローゼットがありますので、たくさんの荷物も効率的に収納ができます。キッチンはシステムキッチン仕様になっていますので、お料理好きの方にもぴったり。バス・トイレは別なので、のんびりお風呂タイムも楽しめるでしょう。また、雨の日でも浴室乾燥機を使えば、お洗濯も問題ありません。
通信設備面では、インターネット接続が可能です。また、BSアンテナ・CSアンテナがありCATVにも対応しているので、おうち時間も充実するでしょう(別途工事、契約料が必要な場合あり)。
建物にはエレベーターがついているので、重い荷物があっても安心。共用部には宅配ボックスが設定されているので、不在の時にも荷物を受け取ることができます。
このお部屋は2階以上に位置しているので、通行人や周囲の住人からの視線が気になりにくく、防犯面でも安心。建物のエントランスはオートロックがついており、インターホンにはTVモニタもついているため、相手の顔を確認してから来客対応することができます。
フローリングのお部屋なのでお掃除もラクラク。室内には人気のウォークインクローゼットがありますので、たくさんの荷物も効率的に収納ができます。キッチンはシステムキッチン仕様になっていますので、お料理好きの方にもぴったり。バス・トイレは別なので、のんびりお風呂タイムも楽しめるでしょう。また、雨の日でも浴室乾燥機を使えば、お洗濯も問題ありません。
通信設備面では、インターネット接続が可能です。また、BSアンテナ・CSアンテナがありCATVにも対応しているので、おうち時間も充実するでしょう(別途工事、契約料が必要な場合あり)。
建物にはエレベーターがついているので、重い荷物があっても安心。共用部には宅配ボックスが設定されているので、不在の時にも荷物を受け取ることができます。
お金・契約の情報
※「-」と表示されているものは、実際は料金が発生するものもございます。詳細はお問い合わせください。
| 家賃 | 6.6万円 | 管理費・共益費 | 8,000円 |
|---|---|---|---|
| 敷金 | なし | 礼金 | なし |
| 入居決定でお祝い金最大100,000円 | |||
| 保証金 | - | 償却・敷引 | - |
| 住宅保険料 | - | 更新料 | - |
| 契約形態 | - | 契約期間 | - |
| 入居・引渡期間 | 即時 | 現況 | - |
| 契約備考 | 巡回管理 1K 普通借家1年 損保【要】 バストイレ別、バルコニー、エアコン、ガスコンロ対応、クロゼット、フローリング、TVインターホン、浴室乾燥機、オートロック、室内洗濯置、シューズボックス、システムキッチン、温水洗浄便座、脱衣所、エレベーター、洗面所独立、洗面化粧台、2口コンロ、駐輪場、宅配ボックス、CATV、光ファイバー、外壁タイル張り、即入居可、礼金不要、閑静な住宅地、BS・CS、敷金不要、防犯カメラ、独立型キッチン、分譲賃貸、全居室洋室、ウォークインクロゼット、保証人不要、CATVインターネット、バイク置場、2沿線利用可、ディンプルキー、CS、ネット専用回線、駅まで平坦、眺望良好、ダブルロックキー、24時間換気システム、平坦地、人感照明センサー、耐火構造、耐震構造、2駅利用可、3駅以上利用可、3沿線以上利用可、駅徒歩10分以内、敷地内ごみ置き場、都市ガス、洗面所にドア、間接照明、オートライト、BS、敷金・礼金不要、通風良好 | ||
部屋の情報
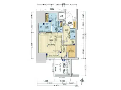
| 間取り | 1K | 専有面積 | 22.62m2 |
|---|---|---|---|
| 所在階 / 向き | 12階 / 北 | バルコニー面積 | - |
| 水道 / ガス | - | ||
| 設備 | バス・トイレ別、2階以上、オートロック、テレビドアホン、宅配ボックス、浴室乾燥機、ウォークインクローゼット、インターネット対応、システムキッチン、エアコン、エレベーター、温水洗浄便座、バルコニー、フローリング、洗髪洗面化粧台、2口コンロ、コンロ:ガス、CATV、CSアンテナ、BSアンテナ、洗濯機:室内 | ||
| 当社物件ID | 21625807 | ||
建物の情報
| 建物名 | ララプレイス三宮ルミナージュ | ||
|---|---|---|---|
| 所在地 | 兵庫県神戸市中央区御幸通 | ||
| 交通 | 地下鉄海岸線 三宮・花時計前駅 徒歩10分 ポートアイランド線 貿易センター駅 徒歩11分 JR東海道本線 三ノ宮駅(JR) 徒歩13分 | ||
| 階数 | 15階建 | 総戸数 | 56戸 |
| 築年月 | 2016年07月 / 築10年 | エレベーター | あり |
| 駐車場 | なし | バイク置き場 | あり |
| 駐輪場 | あり | 管理人/管理会社 | - |
| 周辺環境 | その他 カレーハウスCoCo壱番屋 中央区磯上通店(飲食店)まで492m その他 ローソン 神戸御幸通四丁目店(コンビニ)まで266m その他 コナミスポーツクラブ三宮(その他)まで383m その他 セブンイレブン 神戸三宮磯上通店(コンビニ)まで438m その他 朋誠会(医療法人社団)ゆう透析クリニック(病院)まで535m その他 セブンイレブン 神戸三宮旭通店(コンビニ)まで442m | ||
| 建物種別 | マンション | 建物構造 | RC(鉄筋コンクリート) |
この部屋の取扱い不動産会社
| 会社名 | (株)SuMirai(SUUMO経由) | ||
|---|---|---|---|
| 所在地 | 兵庫県神戸市中央区琴ノ緒町5-29-501 | 交通 | - |
| 営業時間 | 9:00~19:00 | 定休日 | 水曜日 |
| 免許番号 | 兵庫県知事12483 | 取引態様 | 仲介 |
| 不動産会社管理番号 | 100459867731 | 当社管理番号 | 89 |
| 所属団体 | (公社)全日本不動産協会兵庫県本部会員 | ||
| 公正取引協議会 | (公社)近畿地区不動産公正取引協議会加盟 | ||
| 取扱い物件情報 | 物件詳細へ | ||
※各種情報と現状に差異がある場合は、現状優先となります。問い合わせをすることで、より詳しい条件、情報を確認する事ができます。
提供:(株)SuMirai(SUUMO経由)
この物件が気になったら掲載期限まであと10日
ララプレイス三宮ルミナージュに条件(家賃・エリア)が近い物件一覧
| 写真 | 家賃 管理費等 | 敷金 礼金 | 間取り 専有面積 | 築年数 | 最寄り駅 所在地 | キープ | 詳細 |
|---|---|---|---|---|---|---|---|
アパート ペルル5(1LDK/1階) | |||||||
![]() | 7.3万円 4,500円 | 7.3万円 なし | 1LDK 42.5m2 | 新築 | 山陽電気鉄道本線 藤江駅 徒歩5分 山陽本線 西明石駅 徒歩20分 山陽電気鉄道本線 中八木駅 徒歩20分 兵庫県明石市藤江 | 詳細を見る | |
マンション シーサイドパストラル林崎II(2LDK/1階) | |||||||
![]() | 8.6万円 6,000円 | なし 20万円 | 2LDK 67.12m2 | 築29年 | 山陽電気鉄道本線 林崎松江海岸駅 徒歩3分 山陽電気鉄道本線 西新町駅 徒歩23分 山陽本線 西明石駅 徒歩30分 兵庫県明石市林崎町3丁目 | 詳細を見る | |
アパート 山陽本線 明石駅 徒歩10分 築10年(ワンルーム/2階) | |||||||
![]() | 6.1万円 5,000円 | なし なし | ワンルーム 27m2 | 築10年 | 山陽本線 明石駅 徒歩10分 山陽電気鉄道本線 人丸前駅 徒歩10分 山陽電気鉄道本線 山陽明石駅 徒歩10分 兵庫県明石市上ノ丸1丁目 | 詳細を見る | |
アパート べアーレ(ワンルーム/1階) | |||||||
![]() | 4.4万円 3,000円 | なし 5万円 | ワンルーム 21.73m2 | 築20年 | 神戸電鉄粟生線 緑が丘駅(兵庫) 徒歩9分 神戸電鉄粟生線 広野ゴルフ場前駅 徒歩15分 神戸電鉄粟生線 押部谷駅 徒歩30分 兵庫県三木市緑が丘町中 | 詳細を見る | |
アパート クレール(1K/1階) | |||||||
![]() | 4.8万円 なし | 4.8万円 4.8万円 | 1K 23.77m2 | 築23年 | 神戸電鉄粟生線 恵比須駅 徒歩5分 神戸電鉄粟生線 三木上の丸駅 徒歩18分 神戸電鉄粟生線 志染駅 徒歩32分 兵庫県三木市宿原 | 詳細を見る | |
アパート 神戸電鉄粟生線 三木駅(神戸電鉄) 徒歩7分 築35年(2LDK/2階) | |||||||
![]() | 6.5万円 3,000円 | なし 6.5万円 | 2LDK 48.02m2 | 築35年 | 神戸電鉄粟生線 三木駅(神戸電鉄) 徒歩7分 神戸電鉄粟生線 三木上の丸駅 徒歩10分 神戸電鉄粟生線 恵比須駅 徒歩19分 兵庫県三木市末広1 | 詳細を見る | |
アパート ジーメゾン大久保アスピダ(1LDK/2階) | |||||||
![]() | 7.1万円 5,000円 | なし なし | 1LDK 34.24m2 | 築1年 | JR山陽本線 大久保駅(兵庫) 徒歩11分 山陽電鉄本線 江井ケ島駅 徒歩21分 山陽電鉄本線 中八木駅 徒歩29分 兵庫県明石市大久保町大窪 | 詳細を見る | |
アパート グランドールⅡ(1LDK/1階) | |||||||
![]() | 7.5万円 3,000円 | なし 7.5万円 | 1LDK 44.2m2 | 新築 | 神戸電鉄粟生線 広野ゴルフ場前駅 徒歩10分 神戸電鉄粟生線 志染駅 徒歩19分 兵庫県三木市志染町東自由が丘1丁目 | 詳細を見る | |







