賃貸マンション
ベルシード氷川台508の賃貸物件情報(1K/5階)
| 家賃 | 管理費等 | 敷金 | 礼金 | 間取り | 専有面積 |
|---|---|---|---|---|---|
| 10.2万円 | 1.5万円 | なし | 10.2万円 | 1K | 30.8m2 |
入居決定でお祝い金最大100,000円
- 保証金
- -
- 償却・敷引
- -
- 築年数
- 築5年
- 所在階
- 5階
- 向き
- -
Point
暮らすほどに快適さを実感できる設備仕様!都心を身近に、ストレスフリーな暮らしを楽しむ!住むほどに愛着が深まる暮らしやすい街!!
提供:(株)タウンハウジング東京 阿佐ヶ谷店(SUUMO経由)

詳細情報 ベルシード氷川台508
物件紹介
ベルシード氷川台508は東京メトロ副都心線氷川台駅から徒歩10分にあり、駅近で通勤通学に便利なマンションです。
このお部屋は2階以上に位置しているので、通行人や周囲の住人からの視線が気になりにくく、防犯面でも安心。建物のエントランスはオートロックがついており、インターホンにはTVモニタもついているため、相手の顔を確認してから来客対応することができます。
フローリングのお部屋なのでお掃除もラクラク。キッチンはシステムキッチン仕様になっていますので、お料理好きの方にもぴったり。バス・トイレは別なので、のんびりお風呂タイムも楽しめるでしょう。また、雨の日でも浴室乾燥機を使えば、お洗濯も問題ありません。
通信設備面では、インターネットが無料で使えるので、月々の出費を抑えられるのも魅力です。また、BSアンテナ・CSアンテナもありますので、おうち時間も充実するでしょう(別途工事、BS・CSの契約料等が必要な場合あり)。
建物にはエレベーターがついているので、重い荷物があっても安心。共用部には宅配ボックスが設定されているので、不在の時にも荷物を受け取ることができます。また、ペット飼育の相談ができますので、あなたの大切な家族の一員も快適に暮らせるか、ぜひ確認してみてください。
このお部屋は2階以上に位置しているので、通行人や周囲の住人からの視線が気になりにくく、防犯面でも安心。建物のエントランスはオートロックがついており、インターホンにはTVモニタもついているため、相手の顔を確認してから来客対応することができます。
フローリングのお部屋なのでお掃除もラクラク。キッチンはシステムキッチン仕様になっていますので、お料理好きの方にもぴったり。バス・トイレは別なので、のんびりお風呂タイムも楽しめるでしょう。また、雨の日でも浴室乾燥機を使えば、お洗濯も問題ありません。
通信設備面では、インターネットが無料で使えるので、月々の出費を抑えられるのも魅力です。また、BSアンテナ・CSアンテナもありますので、おうち時間も充実するでしょう(別途工事、BS・CSの契約料等が必要な場合あり)。
建物にはエレベーターがついているので、重い荷物があっても安心。共用部には宅配ボックスが設定されているので、不在の時にも荷物を受け取ることができます。また、ペット飼育の相談ができますので、あなたの大切な家族の一員も快適に暮らせるか、ぜひ確認してみてください。
お金・契約の情報
※「-」と表示されているものは、実際は料金が発生するものもございます。詳細はお問い合わせください。
| 家賃 | 10.2万円 | 管理費・共益費 | 1.5万円 |
|---|---|---|---|
| 敷金 | なし | 礼金 | 10.2万円 |
| 入居決定でお祝い金最大100,000円 | |||
| 保証金 | - | 償却・敷引 | - |
| 住宅保険料 | - | 更新料 | - |
| 保証会社利用 | 必須 | 保証会社名 | - |
| 保証会社費用 | - | 保証会社備考 | 保証会社利用必 賃貸保証料:0.50ヶ月 初回:50% |
| 契約形態 | - | 契約期間 | - |
| 入居・引渡期間 | 相談 | 現況 | - |
| 入居可能条件 | ペット相談 | ||
| 契約備考 | タウンハウジングは、200社以上の会社と取引があり、常に新着の情報を仕入れております。インターネット公開情報以外にも多くのご紹介が可能です。地域トップクラスの情報量・取扱い物件をお客様にご提案させていただきます。一部クレジット払いも対応しています♪♪1年以内の解約は違約金1か月かかります 合計11.55万円(内訳:鍵交換代:44000円/室内清掃費用:55000円/24時間サポート:16500円) 更新料新賃料(ヶ月):1.50ヶ月 1K ペット相談 普通借家2年 損保【2.5万円2年】 バストイレ別、バルコニー、エアコン、ガスコンロ対応、クロゼット、フローリング、シャワー付洗面台、TVインターホン、浴室乾燥機、オートロック、室内洗濯置、シューズボックス、システムキッチン、温水洗浄便座、脱衣所、エレベーター、洗面所独立、2口コンロ、駐輪場、宅配ボックス、閑静な住宅地、BS・CS、敷金不要、防犯カメラ、独立型キッチン、ペット相談、全居室収納、分譲賃貸、全居室洋室、保証人不要、全居室フローリング、2沿線利用可、ネット専用回線、駅まで平坦、ネット使用料不要、保証金不要、24時間換気システム、2駅利用可、駅徒歩10分以内、24時間ゴミ出し可、敷地内ごみ置き場、全居室6畳以上、全居室8畳以上、都市ガス、礼金1ヶ月、IT重説対応物件、初期費用カード決済可 | ||
部屋の情報
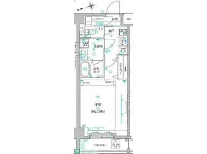
| 間取り | 1K | 専有面積 | 30.8m2 |
|---|---|---|---|
| 所在階 / 向き | 5階 / - | バルコニー面積 | 3m2 |
| 水道 / ガス | - | ||
| 設備 | バス・トイレ別、2階以上、オートロック、テレビドアホン、宅配ボックス、浴室乾燥機、インターネット対応、システムキッチン、エアコン、エレベーター、温水洗浄便座、バルコニー、フローリング、洗髪洗面化粧台、2口コンロ、コンロ:ガス、CSアンテナ、BSアンテナ、インターネット使用料無料、洗濯機:室内 | ||
| 当社物件ID | 159148123 | ||
建物の情報
| 建物名 | ベルシード氷川台508 | ||
|---|---|---|---|
| 所在地 | 東京都練馬区氷川台 | ||
| 交通 | 東京メトロ副都心線 氷川台駅 徒歩10分 西武有楽町線 新桜台駅 徒歩18分 東京メトロ副都心線 小竹向原駅 徒歩21分 | ||
| 階数 | 6階建 | 総戸数 | - |
| 築年月 | 2021年07月 / 築5年 | エレベーター | あり |
| 駐車場 | なし | バイク置き場 | - |
| 駐輪場 | あり | 管理人/管理会社 | - |
| 周辺環境 | その他 ミニコープ氷川台駅前店(スーパー)まで718m その他 サミットストア氷川台駅前店(スーパー)まで748m その他 アコレ氷川台店(スーパー)まで851m その他 コモディイイダ氷川台店(スーパー)まで857m その他 ファミリーマート氷川台三丁目店(コンビニ)まで320m その他 ファミリーマート羽沢三丁目店(コンビニ)まで392m | ||
| 建物種別 | マンション | 建物構造 | RC(鉄筋コンクリート) |
この部屋の取扱い不動産会社
| 会社名 | (株)タウンハウジング東京 阿佐ヶ谷店(SUUMO経由) | ||
|---|---|---|---|
| 所在地 | 東京都杉並区阿佐谷南2-17-3 Libera Asagaya1階 | 交通 | - |
| 営業時間 | AM10:00~PM7:00 | 定休日 | 水曜日 |
| 免許番号 | 国土交通大臣9926 | 取引態様 | 仲介 |
| 不動産会社管理番号 | 100485653880 | 当社管理番号 | 89 |
| 所属団体 | (公社)東京都宅地建物取引業協会会員 | ||
| 公正取引協議会 | (公社)首都圏不動産公正取引協議会加盟 | ||
| 取扱い物件情報 | 物件詳細へ | ||
※各種情報と現状に差異がある場合は、現状優先となります。問い合わせをすることで、より詳しい条件、情報を確認する事ができます。
提供:(株)タウンハウジング東京 阿佐ヶ谷店(SUUMO経由)
この物件が気になったら掲載期限まであと10日
ベルシード氷川台508に条件(家賃・エリア)が近い物件一覧
| 写真 | 家賃 管理費等 | 敷金 礼金 | 間取り 専有面積 | 築年数 | 最寄り駅 所在地 | キープ | 詳細 |
|---|---|---|---|---|---|---|---|
アパート レオパレスオリーブハウス(1K/1階) | |||||||
![]() | 7.2万円 5,500円 | なし 7.2万円 | 1K 22.35m2 | 築22年 | 西武池袋・豊島線 石神井公園駅 徒歩18分 東京都練馬区石神井台3丁目 | 詳細を見る | |
アパート エクラ中台(1K/1階) | |||||||
![]() | 7.3万円 5,000円 | なし 3.65万円 | 1K 17.8m2 | 新築 | 東京都三田線 志村三丁目駅 徒歩9分 東京都板橋区中台2丁目 | 詳細を見る | |
マンション ベルシード志村坂上(1K/6階) | |||||||
![]() | 8.9万円 1.5万円 | なし 17.8万円 | 1K 26.06m2 | 築9年 | 東京都三田線 志村坂上駅 徒歩13分 東京都板橋区小豆沢4丁目 | 詳細を見る | |
マンション ぱいんどあ成増II(2DK/1階) | |||||||
![]() | 8.5万円 2,000円 | 8.5万円 なし | 2DK 40m2 | 築34年 | 東武東上線 成増駅 徒歩7分 東京メトロ有楽町線 地下鉄成増駅 徒歩9分 東武東上線 下赤塚駅 徒歩17分 東京都板橋区赤塚 | 詳細を見る | |
アパート 関町アパートメント(1K/1階) | |||||||
![]() | 6.4万円 2,000円 | なし 6.4万円 | 1K 27.07m2 | 築32年 | 西武新宿線 武蔵関駅 徒歩10分 西武新宿線 上石神井駅 徒歩17分 東京都練馬区関町南 | 詳細を見る | |
アパート ワイズときわ台(1K/2階) | |||||||
![]() | 7.8万円 5,000円 | なし なし | 1K 23.86m2 | 築10年 | 東武東上線 上板橋駅 徒歩5分 都営三田線 志村三丁目駅 徒歩24分 東京メトロ有楽町線 氷川台駅 徒歩29分 東京都板橋区常盤台 | 詳細を見る | |
マンション ハイネスときわ台(ワンルーム/2階) | |||||||
![]() | 7.4万円 6,000円 | 7.4万円 7.4万円 | ワンルーム 24.3m2 | 築38年 | 東武鉄道東上線 ときわ台駅(東京) 徒歩8分 東京都板橋区前野町2丁目 | 詳細を見る | |
アパート アカツキテラス和泉III(ワンルーム/2階) | |||||||
![]() | 6.6万円 4,000円 | なし 6.6万円 | ワンルーム 11m2 | 築5年 | 京王線 代田橋駅 徒歩10分 東京メトロ丸ノ内線 方南町駅 徒歩13分 京王線 明大前駅 徒歩15分 東京都杉並区和泉 | 詳細を見る | |









