賃貸マンション
プレサンス梅田東ディアロの賃貸物件情報(1K/5階)
| 家賃 | 管理費等 | 敷金 | 礼金 | 間取り | 専有面積 |
|---|---|---|---|---|---|
| 7.45万円 | 9,590円 | なし | 10万円 | 1K | 22.04m2 |
入居決定でお祝い金最大100,000円
- 保証金
- -
- 償却・敷引
- -
- 築年数
- 築13年
- 所在階
- 5階
- 向き
- 南
Point
インターネット・Wi-Fi無料★浴室乾燥や宅配BOX等の設備が充実しています♪弊社は全国650店舗以上の総合不動産会社ですのでご安心してお任せ下さい!!
提供:ピタットハウス大阪駅前第3ビル店(株)エポックハウス(SUUMO経由)

詳細情報 プレサンス梅田東ディアロ
物件紹介
プレサンス梅田東ディアロは地下鉄谷町線中崎町駅から徒歩3分にあり、駅近で通勤通学に便利なマンションです。
このお部屋は2階以上に位置しているので、通行人や周囲の住人からの視線が気になりにくく、防犯面でも安心。建物のエントランスはオートロックがついており、インターホンにはTVモニタもついているため、相手の顔を確認してから来客対応することができます。
人気の南向きのお部屋。また、フローリングなのでお掃除もラクラク。キッチンはシステムキッチン仕様になっていますので、お料理好きの方にもぴったり。バス・トイレは別なので、のんびりお風呂タイムも楽しめるでしょう。また、雨の日でも浴室乾燥機を使えば、お洗濯も問題ありません。
通信設備面では、インターネットが無料で使えるので、月々の出費を抑えられるのも魅力です。また、BSアンテナ・CSアンテナがありCATVにも対応しているので、おうち時間も充実するでしょう(別途工事、BS・CS・CATVの契約料等が必要な場合あり)。
建物にはエレベーターがついているので、重い荷物があっても安心。共用部には宅配ボックスが設定されているので、不在の時にも荷物を受け取ることができます。
このお部屋は2階以上に位置しているので、通行人や周囲の住人からの視線が気になりにくく、防犯面でも安心。建物のエントランスはオートロックがついており、インターホンにはTVモニタもついているため、相手の顔を確認してから来客対応することができます。
人気の南向きのお部屋。また、フローリングなのでお掃除もラクラク。キッチンはシステムキッチン仕様になっていますので、お料理好きの方にもぴったり。バス・トイレは別なので、のんびりお風呂タイムも楽しめるでしょう。また、雨の日でも浴室乾燥機を使えば、お洗濯も問題ありません。
通信設備面では、インターネットが無料で使えるので、月々の出費を抑えられるのも魅力です。また、BSアンテナ・CSアンテナがありCATVにも対応しているので、おうち時間も充実するでしょう(別途工事、BS・CS・CATVの契約料等が必要な場合あり)。
建物にはエレベーターがついているので、重い荷物があっても安心。共用部には宅配ボックスが設定されているので、不在の時にも荷物を受け取ることができます。
お金・契約の情報
※「-」と表示されているものは、実際は料金が発生するものもございます。詳細はお問い合わせください。
| 家賃 | 7.45万円 | 管理費・共益費 | 9,590円 |
|---|---|---|---|
| 敷金 | なし | 礼金 | 10万円 |
| 入居決定でお祝い金最大100,000円 | |||
| 保証金 | - | 償却・敷引 | - |
| 住宅保険料 | - | 更新料 | - |
| 保証会社利用 | 必須 | 保証会社名 | - |
| 保証会社費用 | - | 保証会社備考 | 保証会社利用必 その他 初回:総賃料の50% |
| 契約形態 | - | 契約期間 | - |
| 入居・引渡期間 | 即時 | 現況 | - |
| 契約備考 | オンライン内覧対応可!! 合計2.97万円(内訳:鍵交換費用2.97万円) 1K 損保【1.1万円1年】 バストイレ別、バルコニー、エアコン、クロゼット、フローリング、シャワー付洗面台、TVインターホン、浴室乾燥機、オートロック、室内洗濯置、シューズボックス、システムキッチン、南向き、脱衣所、エレベーター、洗面所独立、洗面化粧台、2口コンロ、駐輪場、宅配ボックス、CATV、光ファイバー、即入居可、敷金不要、防犯カメラ、照明付、分譲賃貸、全居室洋室、保証人不要、バイク置場、仲手0.55ヶ月、ディンプルキー、CS、ネット使用料不要、24時間換気システム、耐震構造、3沿線以上利用可、駅徒歩5分以内、駅徒歩10分以内、24時間ゴミ出し可、敷地内ごみ置き場、都市ガス、BS、高速ネット対応、IT重説対応物件、初期費用カード決済可 | ||
部屋の情報
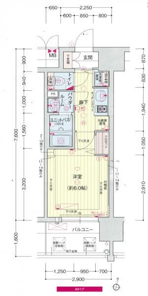
| 間取り | 1K | 専有面積 | 22.04m2 |
|---|---|---|---|
| 所在階 / 向き | 5階 / 南 | バルコニー面積 | - |
| 水道 / ガス | - | ||
| 設備 | バス・トイレ別、2階以上、オートロック、テレビドアホン、宅配ボックス、浴室乾燥機、インターネット対応、システムキッチン、エアコン、エレベーター、南向き、バルコニー、フローリング、洗髪洗面化粧台、2口コンロ、CATV、CSアンテナ、BSアンテナ、インターネット使用料無料、洗濯機:室内 | ||
| 当社物件ID | 7273049 | ||
建物の情報
| 建物名 | プレサンス梅田東ディアロ | ||
|---|---|---|---|
| 所在地 | 大阪府大阪市北区扇町 | ||
| 交通 | 地下鉄谷町線 中崎町駅 徒歩3分 JR大阪環状線 天満駅 徒歩7分 地下鉄御堂筋線 梅田駅 徒歩10分 | ||
| 階数 | 14階建 | 総戸数 | 78戸 |
| 築年月 | 2013年02月 / 築13年 | エレベーター | あり |
| 駐車場 | 近隣 200m30000円 | バイク置き場 | あり |
| 駐輪場 | あり | 管理人/管理会社 | - |
| 周辺環境 | その他 ライフ中崎町駅前店(スーパー)まで219m その他 セブンイレブン梅田万歳町店(コンビニ)まで140m その他 大阪府曽根崎警察署(警察署・交番)まで879m その他 扇町公園(公園)まで436m その他 公益財団法人田附興風会医学研究所北野病院(病院)まで206m その他 ダイコクドラッグNEW堂山店(ドラッグストア)まで443m | ||
| 建物種別 | マンション | 建物構造 | RC(鉄筋コンクリート) |
この部屋の取扱い不動産会社
| 会社名 | ピタットハウス大阪駅前第3ビル店(株)エポックハウス(SUUMO経由) | ||
|---|---|---|---|
| 所在地 | 大阪府大阪市北区梅田1-1-3-100 | 交通 | - |
| 営業時間 | 10:00~19:00 | 定休日 | 定休日無 |
| 免許番号 | 大阪府知事50195 | 取引態様 | 仲介 |
| 不動産会社管理番号 | 100452949020 | 当社管理番号 | 89 |
| 所属団体 | (公社)全日本不動産協会大阪府本部会員 | ||
| 公正取引協議会 | (公社)近畿地区不動産公正取引協議会加盟 | ||
| 取扱い物件情報 | 物件詳細へ | ||
※各種情報と現状に差異がある場合は、現状優先となります。問い合わせをすることで、より詳しい条件、情報を確認する事ができます。
提供:ピタットハウス大阪駅前第3ビル店(株)エポックハウス(SUUMO経由)
この物件が気になったら掲載期限まであと11日
プレサンス梅田東ディアロに条件(家賃・エリア)が近い物件一覧
| 写真 | 家賃 管理費等 | 敷金 礼金 | 間取り 専有面積 | 築年数 | 最寄り駅 所在地 | キープ | 詳細 |
|---|---|---|---|---|---|---|---|
アパート GRANDIR津久野(1LDK/3階) | |||||||
![]() | 6.1万円 4,000円 | なし 6.1万円 | 1LDK 29.71m2 | 築1年 | 阪和線 津久野駅 徒歩7分 阪和線 上野芝駅 徒歩15分 阪和線 鳳駅 徒歩28分 大阪府堺市西区神野町2丁 | 詳細を見る | |
マンション WORVE吹田江坂(2K/4階) | |||||||
| 11.8万円 1.2万円 | なし なし | 2K 31.28m2 | 築1年 | 北大阪急行南北線 江坂駅 徒歩9分 阪急電鉄千里線 豊津駅(大阪) 徒歩19分 おおさか東線 南吹田駅 徒歩20分 大阪府吹田市広芝町17-18 | 詳細を見る | ||
マンション 中ビル(1LDK/3階) | |||||||
![]() | 5.9万円 6,000円 | なし なし | 1LDK 53.13m2 | 築42年 | 近鉄南大阪線 河内松原駅 徒歩10分 近鉄南大阪線 高見ノ里駅 徒歩20分 近鉄南大阪線 布忍駅 徒歩28分 大阪府松原市三宅中2丁目 | 詳細を見る | |
一戸建て 大阪市長堀鶴見緑地 門真南駅 徒歩29分 築25年(4LDK) | |||||||
![]() | 11.5万円 なし | なし 40万円 | 4LDK 132.15m2 | 築25年 | 大阪市長堀鶴見緑地 門真南駅 徒歩29分 片町線 住道駅 徒歩30分 片町線 野崎駅(大阪) 徒歩32分 大阪府門真市江端町 | 詳細を見る | |
マンション ハイムタケダT8(1DK/6階) | |||||||
| 8.3万円 7,000円 | 8.3万円 16.6万円 | 1DK 44m2 | 築29年 | 北大阪急行南北線 江坂駅 徒歩12分 北大阪急行南北線 緑地公園駅 徒歩12分 阪急電鉄千里線 関大前駅 徒歩15分 大阪府吹田市江坂町3丁目4-1 | 詳細を見る | ||
マンション グランディールSUEHIRO(1LDK/2階) | |||||||
| 11万円 1万円 | なし 22万円 | 1LDK 37.47m2 | 築7年 | 東海道本線 吹田駅(JR) 徒歩10分 阪急電鉄京都線 相川駅 徒歩16分 阪急電鉄千里線 吹田駅(阪急) 徒歩23分 大阪府吹田市末広町12-2 | 詳細を見る | ||
マンション HOPECITY天神橋(1K/4階) | |||||||
| 5.2万円 1万円 | なし 5万円 | 1K 20.71m2 | 築28年 | 阪急電鉄千里線 天神橋筋六丁目駅 徒歩4分 大阪市堺筋線 天神橋筋六丁目駅 徒歩4分 大阪市谷町線 天神橋筋六丁目駅 徒歩5分 大阪府大阪市北区浪花町13-33 | 詳細を見る | ||
マンション アーデン江坂2(ワンルーム/10階) | |||||||
| 7.4万円 9,000円 | なし なし | ワンルーム 23.89m2 | 築23年 | 大阪市御堂筋線 江坂駅 徒歩6分 おおさか東線 南吹田駅 徒歩26分 大阪市御堂筋線 東三国駅 徒歩27分 大阪府吹田市江の木町15-25 | 詳細を見る | ||




