賃貸マンション
コンシェリア横濱 の賃貸物件情報(1DK/10階)
| 家賃 | 管理費等 | 敷金 | 礼金 | 間取り | 専有面積 |
|---|---|---|---|---|---|
| 10.6万円 | 1.2万円 | なし | 10.6万円 | 1DK | 26.88m2 |
入居決定でお祝い金最大100,000円
- 保証金
- -
- 償却・敷引
- -
- 築年数
- 築1年
- 所在階
- 10階
- 向き
- 北
Point
【新築デザイナーズマンション】駅チカ好立地&都心や横浜へアクセス良好★オルトヨコハマやスーパー・飲食店など周辺環境充実★WiFiネット無料・オートロック・宅配BOX/独立洗面台・浴室乾燥機★
提供:(株)クレアスレント横浜店(SUUMO経由)

詳細情報 コンシェリア横濱
物件紹介
コンシェリア横濱 はJR京浜東北線新子安駅から徒歩3分にあり、駅近で通勤通学に便利なマンションです。
このお部屋は2階以上に位置しているので、通行人や周囲の住人からの視線が気になりにくく、防犯面でも安心。建物のエントランスはオートロックがついており、インターホンにはTVモニタもついているため、相手の顔を確認してから来客対応することができます。
おしゃれなデザイナーズ物件!人気の角部屋で周囲の居住者の生活音も気になりにくく、また、フローリングのお部屋なのでお掃除もラクラク。キッチンはシステムキッチン仕様になっていますので、お料理好きの方にもぴったり。バス・トイレは別なので、のんびりお風呂タイムも楽しめるでしょう。また、雨の日でも浴室乾燥機を使えば、お洗濯も問題ありません。
通信設備面では、インターネットが無料で使えるので、月々の出費を抑えられるのも魅力です。また、BSアンテナ・CSアンテナもありますので、おうち時間も充実するでしょう(別途工事、BS・CSの契約料等が必要な場合あり)。
建物にはエレベーターがついているので、重い荷物があっても安心。共用部には宅配ボックスが設定されているので、不在の時にも荷物を受け取ることができます。
このお部屋は2階以上に位置しているので、通行人や周囲の住人からの視線が気になりにくく、防犯面でも安心。建物のエントランスはオートロックがついており、インターホンにはTVモニタもついているため、相手の顔を確認してから来客対応することができます。
おしゃれなデザイナーズ物件!人気の角部屋で周囲の居住者の生活音も気になりにくく、また、フローリングのお部屋なのでお掃除もラクラク。キッチンはシステムキッチン仕様になっていますので、お料理好きの方にもぴったり。バス・トイレは別なので、のんびりお風呂タイムも楽しめるでしょう。また、雨の日でも浴室乾燥機を使えば、お洗濯も問題ありません。
通信設備面では、インターネットが無料で使えるので、月々の出費を抑えられるのも魅力です。また、BSアンテナ・CSアンテナもありますので、おうち時間も充実するでしょう(別途工事、BS・CSの契約料等が必要な場合あり)。
建物にはエレベーターがついているので、重い荷物があっても安心。共用部には宅配ボックスが設定されているので、不在の時にも荷物を受け取ることができます。
お金・契約の情報
※「-」と表示されているものは、実際は料金が発生するものもございます。詳細はお問い合わせください。
| 家賃 | 10.6万円 | 管理費・共益費 | 1.2万円 |
|---|---|---|---|
| 敷金 | なし | 礼金 | 10.6万円 |
| フリーレント | あり | ||
| 入居決定でお祝い金最大100,000円 | |||
| 保証金 | - | 償却・敷引 | - |
| 住宅保険料 | - | 更新料 | - |
| 保証会社利用 | 必須 | 保証会社名 | - |
| 保証会社費用 | - | 保証会社備考 | 保証会社利用必 初回保証委託料総賃料70%年間保証委託料1万円 |
| 契約形態 | - | 契約期間 | - |
| 入居・引渡期間 | 即時 | 現況 | - |
| 契約備考 | 【オンライン内見・現地お待合わせも可能】当社専任で紹介可能なお部屋です☆退去時クリーニング費49500円。安心入居パック39600円。ファストドクターの入居者サポート付、仕様・図面・写真等に相違があった場合は現況優先。内部洗浄特約16500円 合計2.18万円(内訳:口座振替サービス料0.528万円室内抗菌代1.65万円) 更新料 新賃料1.50ヶ月分 1DK 二人入居可/フリーレント2ヶ月 普通借家2年 損保【要】 バストイレ別、バルコニー、エアコン、ガスコンロ対応、クロゼット、フローリング、TVインターホン、浴室乾燥機、オートロック、室内洗濯置、シューズボックス、システムキッチン、角住戸、温水洗浄便座、脱衣所、エレベーター、洗面所独立、洗面化粧台、2口コンロ、駐輪場、宅配ボックス、即入居可、2面採光、敷金不要、防犯カメラ、照明付、分譲賃貸、保証人不要、二人入居相談、24時間緊急通報システム、デザイナーズ、CS、ネット専用回線、ネット使用料不要、フリーレント、ダブルロックキー、24時間換気システム、人感照明センサー、防音サッシ、未入居、3駅以上利用可、3沿線以上利用可、二重床構造、二重天井構造、24時間ゴミ出し可、敷地内ごみ置き場、当社管理物件、耐震ラッチ吊戸棚、都市ガス、室内物干機、BS、マルチメディアコンセント、IT重説対応物件、初期費用カード決済可 | ||
部屋の情報
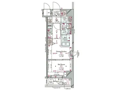
| 間取り | 1DK | 専有面積 | 26.88m2 |
|---|---|---|---|
| 所在階 / 向き | 10階 / 北 | バルコニー面積 | 3m2 |
| 水道 / ガス | - | ||
| 設備 | バス・トイレ別、2階以上、オートロック、テレビドアホン、宅配ボックス、浴室乾燥機、インターネット対応、システムキッチン、エアコン、エレベーター、温水洗浄便座、角部屋、バルコニー、フローリング、洗髪洗面化粧台、2口コンロ、コンロ:ガス、デザイナーズ、CSアンテナ、BSアンテナ、インターネット使用料無料、洗濯機:室内 | ||
| 当社物件ID | 160324378 | ||
建物の情報
| 建物名 | コンシェリア横濱 | ||
|---|---|---|---|
| 所在地 | 神奈川県横浜市神奈川区子安通 | ||
| 交通 | JR京浜東北線 新子安駅 徒歩3分 京急本線 京急新子安駅 徒歩3分 JR横浜線 大口駅 徒歩19分 | ||
| 階数 | 11階建 | 総戸数 | - |
| 築年月 | 2026年01月 / 築1年 | エレベーター | あり |
| 駐車場 | なし | バイク置き場 | - |
| 駐輪場 | あり | 管理人/管理会社 | - |
| 周辺環境 | その他 そうてつローゼンオルト新子安店(スーパー)まで428m その他 オーケー 新子安店(スーパー)まで684m その他 オルトヨコハマ(ショッピングセンター)まで351m その他 セブンイレブン 横浜子安通2丁目店(コンビニ)まで72m その他 ハックドラッグ新子安店(ドラッグストア)まで375m その他 マクドナルド 15号新子安店(飲食店)まで319m | ||
| 建物種別 | マンション | 建物構造 | RC(鉄筋コンクリート) |
この部屋の取扱い不動産会社
| 会社名 | (株)クレアスレント横浜店(SUUMO経由) | ||
|---|---|---|---|
| 所在地 | 神奈川県横浜市神奈川区台町 17-1 マストビル7階 | 交通 | - |
| 営業時間 | 10時~19時 | 定休日 | 毎週水曜日・GW・夏季・年末年 |
| 免許番号 | 国土交通大臣10473 | 取引態様 | 仲介 |
| 不動産会社管理番号 | 100486053392 | 当社管理番号 | 89 |
| 所属団体 | (公社)東京都宅地建物取引業協会会員 | ||
| 公正取引協議会 | (公社)首都圏不動産公正取引協議会加盟 | ||
| 取扱い物件情報 | 物件詳細へ | ||
※各種情報と現状に差異がある場合は、現状優先となります。問い合わせをすることで、より詳しい条件、情報を確認する事ができます。
提供:(株)クレアスレント横浜店(SUUMO経由)
この物件が気になったら掲載期限まであと11日
コンシェリア横濱 に条件(家賃・エリア)が近い物件一覧
| 写真 | 家賃 管理費等 | 敷金 礼金 | 間取り 専有面積 | 築年数 | 最寄り駅 所在地 | キープ | 詳細 |
|---|---|---|---|---|---|---|---|
マンション パラッツォヴィオラ(1K/4階) | |||||||
![]() | 7.2万円 5,000円 | 7.2万円 7.2万円 | 1K 20.08m2 | 築26年 | JR京浜東北線 大船駅 徒歩2分 湘南新宿ライン高海 大船駅 徒歩2分 JR東海道本線 大船駅 徒歩2分 神奈川県鎌倉市大船 | 詳細を見る | |
アパート グリーンヒル光ヶ丘(1K/1階) | |||||||
![]() | 7万円 3,000円 | 7万円 7万円 | 1K 27.8m2 | 新築 | 小田急電鉄江ノ島線 大和駅(神奈川) 徒歩17分 神奈川県大和市深見 | 詳細を見る | |
アパート ハイムYOU&I(2DK/1階) | |||||||
![]() | 7万円 2,000円 | 7万円 7万円 | 2DK 35.91m2 | 築40年 | 神奈川県逗子市久木 | 詳細を見る | |
マンション レオパレスヨロズヤC(1K/2階) | |||||||
![]() | 8万円 5,500円 | なし 8万円 | 1K 19.87m2 | 築24年 | JR横須賀線 新川崎駅 徒歩18分 JR南武線 鹿島田駅 徒歩19分 JR南武線 平間駅 徒歩30分 神奈川県川崎市幸区南加瀬 | 詳細を見る | |
アパート リベラマーロIV(1LDK/2階) | |||||||
![]() | 11.4万円 6,000円 | なし 5.7万円 | 1LDK 34.49m2 | 築2年 | 小田急江ノ島線 本鵠沼駅 徒歩2分 江ノ島電鉄線 石上駅 徒歩14分 江ノ島電鉄線 柳小路駅 徒歩18分 神奈川県藤沢市本鵠沼 | 詳細を見る | |
マンション STREET CORNER(1K/4階) | |||||||
![]() | 6.7万円 3,000円 | なし 6.7万円 | 1K 20.74m2 | 築19年 | JR南武線 浜川崎駅 徒歩17分 神奈川県川崎市川崎区大島 | 詳細を見る | |
マンション ディアコート川崎(1K/1階) | |||||||
![]() | 8.2万円 8,000円 | 8.2万円 8.2万円 | 1K 26.61m2 | 築11年 | 東海道本線 川崎駅 徒歩28分 神奈川県川崎市川崎区大島3丁目 | 詳細を見る | |








